Property
Account |
| Property ID: | 31167 | Abbreviated Legal Description: | 7-6-36 TAX 14 |
| Parcel Number: | 360607230007 | Agent Code: | |
| Type: | Real | | |
| Tax Area: | 101 - 140-4 | Land Use Code | 12 |
| Open Space: | N | DFL | N |
| Historic Property: | N | Remodel Property: | N |
| Multi-Family Redevelopment: | N | | |
| Township: | 6 | Section: | 7 |
| Range: | 36 |
Location |
| Address: | 3836 PRANGER RD WA 99362 | Mapsco: | |
| Neighborhood: | E Res Mult Res Rural/City Inf | Map ID: | |
| Neighborhood CD: | 416082 |
Owner |
| Name: | WALLENDA SHANE A & MARIA AIMEE L | Owner ID: | 59645 |
| Mailing Address: | 3836 PRANGER RD WALLA WALLA, WA 99362 | % Ownership: | 100.0000000000% |
| | | Exemptions: | |
Taxes and Assessment Details
Property Tax Information as of
02/21/2026
Click on "Statement Details" to expand or collapse a tax statement.
* Please enter a valid date ** Please enter a valid date *
Statement Details |
| | TOTAL: | $0.00 | $0.00 | $0.00 | $0.00 | $0.00 | $0.00 |
|
| | $0.00 | $0.00 | $0.00 | $0.00 | $0.00 | $0.00 |
Values
| (+) Improvement Homesite Value: | + | $0 | |
| (+) Improvement Non-Homesite Value: | + | $564,100 | |
| (+) Land Homesite Value: | + | $0 | |
| (+) Land Non-Homesite Value: | + | $208,000 | |
| (+) Curr Use (HS): | + | $0 | $0 |
| (+) Curr Use (NHS): | + | $0 | $0 |
| | | -------------------------- | |
| (=) Market Value: | = | $772,100 | |
| (–) Productivity Loss: | – | $0 | |
| | | -------------------------- | |
| (=) Subtotal: | = | $772,100 | |
| (+) Senior Appraised Value: | + | $0 | |
| (+) Non-Senior Appraised Value: | + | $772,100 | |
| | | -------------------------- | |
| (=) Total Appraised Value: | = | $772,100 | |
| (–) Senior Exemption Loss: | – | $0 | |
| (–) Exemption Loss: | – | $0 | |
| | | -------------------------- | |
| (=) Taxable Value: | = | $772,100 | |
Taxing Jurisdiction
| Owner: | WALLENDA SHANE A & MARIA AIMEE L | | |
| % Ownership: | 100.0000000000% | | |
| Total Value: | $772,100 | | |
| Tax Area: | 101 - 140-4 |
| CERFD | CURRENT EXPENSE REFUND 010 | 0.0000000000 | $772,100 | $772,100 | $0.00 | | |
| CURREXP | CURRENT EXPENSE 010 | 1.0175366760 | $772,100 | $772,100 | $785.64 | | |
| HUMNSERV | HUMAN SERVICES 119 | 0.0250000000 | $772,100 | $772,100 | $19.30 | | |
| SLDREL | SOLDIERS RELIEF 121 | 0.0155990005 | $772,100 | $772,100 | $12.04 | | |
| EMERGSER | EMS 147 | 0.3792580840 | $772,100 | $772,100 | $292.83 | | |
| EMSRFD | EMS REFUND 147 | 0.0000000000 | $772,100 | $772,100 | $0.00 | | |
| FD4EXP | FD #4 EXPENSE 686 | 0.8836993059 | $772,100 | $772,100 | $682.30 | | |
| RLBRFD | RURAL LIBRARY REFUND 623 | 0.0000000000 | $772,100 | $772,100 | $0.00 | | |
| RURALLIB | RURAL LIBRARY 623 | 0.3710609029 | $772,100 | $772,100 | $286.50 | | |
| PORTRFD | PORT REFUND 640 | 0.0000000000 | $772,100 | $772,100 | $0.00 | | |
| PORTWWGEN | PORT OF WW 640 | 0.2460186015 | $772,100 | $772,100 | $189.95 | | |
| SD140BOND | SD #140 BOND 764 | 0.8342371393 | $772,100 | $772,100 | $644.11 | | |
| SD140GEN | SD #140 GENERAL 760 | 2.0646500647 | $772,100 | $772,100 | $1,594.12 | | |
| ST2 | STATE SCHOOL PART 2 600 | 0.8131451643 | $772,100 | $772,100 | $627.83 | | |
| STATESCHL | STATE SCHOOL 600 | 1.5158548041 | $772,100 | $772,100 | $1,170.39 | | |
| STREFUND | STATE REFUND LEVY 603 | 0.0000000000 | $772,100 | $772,100 | $0.00 | | |
| COROAD | COUNTY ROAD 115 | 1.6549953990 | $772,100 | $772,100 | $1,277.82 | | |
| CRPRD | COUNTY ROAD REFUND 115 | 0.0000000000 | $772,100 | $772,100 | $0.00 | | |
| | Total Tax Rate: | 9.8210551422 | | | | | |
| | | | | Taxes w/Current Exemptions: | $7,582.83 | | |
| | | | | Taxes w/o Exemptions: | $7,582.83 | | |
Improvement / Building
| Improvement #1: | RESIDENTIAL | State Code: | 12 | 1512.0 sqft | Value: | $439,650 |
| Exterior Wall: | PLYWOOD | Heating/Cooling: | BASEBOARD ELECTRIC | | Number of Bathrooms: | 2 | Number of Bedrooms: | 2 | | Plumbing: | 9 | Roof Covering: | COMP SHINGLE |
|
| | Type | Description | Class CD | Sub Class CD | Year Built | Area |
| | MA | Main Area | 1 | 30 | 1976 | 1512.0 |
| | CPC | COVERED CARPORT/PATIO | 1 | 30 | 0 | 240.0 |
| | POL3 | POLE BUILDING-CON,ELEC,INSU | 1 | 30 | 0 | 576.0 |
| | SI1 | SITE IMPROVEMENT | 1 | 30 | 0 | 3.5 |
| | BASE | BASEMENT | 1 | 30 | 1976 | 624.0 |
| | DTG | Detached Garage | 1 | 30 | 1976 | 640.0 |
| | RPO | OPEN PORCH W/ROOF | 1 | 30 | 1976 | 182.0 |
| Improvement #2: | RESIDENTIAL | State Code: | 12 | 840.0 sqft | Value: | $124,450 |
| Exterior Wall: | PLYWOOD | Heating/Cooling: | BASEBOARD ELECTRIC | | Number of Bathrooms: | 1 | Number of Bedrooms: | 1 | | Plumbing: | 6 | Roof Covering: | COMP SHINGLE |
|
| | Type | Description | Class CD | Sub Class CD | Year Built | Area |
| | MA | Main Area | 4 | 20 | 1976 | 840.0 |
| | UPFL | Upper Floor (included in main area) | 4 | 20 | 1976 | 280.0 |
Sketch
Property Image
Land
| 1 | RES 1 | Converted: Residential | 2.0000 | 0.00 | 0.00 | 0.00 | 1.00 | $208,000 | $0 |
Roll Value History
| 2026 | N/A | N/A | N/A | N/A | N/A |
| 2025 | $547,400 | $208,000 | $0 | $755,400 | $755,400 |
| 2024 | $547,400 | $208,000 | $0 | $755,400 | $755,400 |
| 2023 | $564,100 | $208,000 | $0 | $772,100 | $772,100 |
| 2022 | $521,670 | $93,000 | $0 | $614,670 | $614,670 |
| 2021 | $372,630 | $93,000 | $0 | $465,630 | $465,630 |
| 2020 | $266,160 | $93,000 | $0 | $359,160 | $359,160 |
| 2019 | $266,160 | $93,000 | $0 | $359,160 | $359,160 |
| 2018 | $253,490 | $93,000 | $0 | $346,490 | $346,490 |
| 2017 | $253,490 | $93,000 | $0 | $346,490 | $346,490 |
| 2016 | $193,700 | $93,000 | $0 | $286,700 | $286,700 |
| 2015 | $193,700 | $93,000 | $0 | $286,700 | $286,700 |
| 2014 | $193,700 | $93,000 | $0 | $286,700 | $286,700 |
| 2013 | $193,700 | $93,000 | $0 | $286,700 | $286,700 |
| 2012 | $193,700 | $93,000 | $0 | $0 | $0 |
| 2011 | $158,000 | $128,000 | $0 | $0 | $0 |
| 2010 | $158,000 | $128,000 | $0 | $0 | $0 |
| 2009 | $189,800 | $128,000 | $0 | $0 | $0 |
| 2008 | $189,800 | $128,000 | $0 | $0 | $0 |
| 2007 | $144,600 | $50,000 | $0 | $0 | $0 |
Deed and Sales History
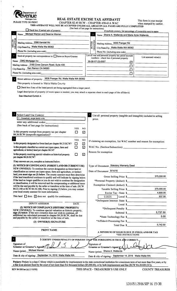
| 1 | 09/16/2016 | SWD | STATUTORY WARRANTY DEED | WARREN MICHAEL & DEANNE | WALLENDA SHANE A & MARIA AIMEE L | | | $375,000.00 | 131051 | 2016-07566 |
| 2 | 03/31/2004 | WARRANTY D | WARRANTY DEED | WESTON, DEBORAH S | WARREN, MICHAEL & DEANNE | | | $180,000.00 | 104396 | 2004-03385 |
| 3 | 07/11/1995 | WARRANTY D | WARRANTY DEED | | | | | $179,900.00 | 84338 | 2319-506286 |
Payout Agreement
| No payout information available.. |