Property
Account |
| Property ID: | 31124 | Abbreviated Legal Description: | VAN DONGE ACRES EAST LOT 13 |
| Parcel Number: | 360604540013 | Agent Code: | |
| Type: | Real | | |
| Tax Area: | 101 - 140-4 | Land Use Code | 11 |
| Open Space: | N | DFL | N |
| Historic Property: | N | Remodel Property: | N |
| Multi-Family Redevelopment: | N | | |
| Township: | 6 | Section: | 4 |
| Range: | 36 |
Location |
| Address: | 764 ETHEL RD WA 99362 | Mapsco: | |
| Neighborhood: | VG Res Rural/City Inf | Map ID: | |
| Neighborhood CD: | 415012 |
Owner |
| Name: | WILCOX MICHAEL J | Owner ID: | 72534 |
| Mailing Address: | MELISSA BUCKLEY 764 ETHEL RD WALLA WALLA, WA 99362 | % Ownership: | 100.0000000000% |
| | | Exemptions: | |
Taxes and Assessment Details
Values
| (+) Improvement Homesite Value: | + | $0 | |
| (+) Improvement Non-Homesite Value: | + | $819,310 | |
| (+) Land Homesite Value: | + | $0 | |
| (+) Land Non-Homesite Value: | + | $175,440 | |
| (+) Curr Use (HS): | + | $0 | $0 |
| (+) Curr Use (NHS): | + | $0 | $0 |
| | | -------------------------- | |
| (=) Market Value: | = | $994,750 | |
| (–) Productivity Loss: | – | $0 | |
| | | -------------------------- | |
| (=) Subtotal: | = | $994,750 | |
| (+) Senior Appraised Value: | + | $0 | |
| (+) Non-Senior Appraised Value: | + | $994,750 | |
| | | -------------------------- | |
| (=) Total Appraised Value: | = | $994,750 | |
| (–) Senior Exemption Loss: | – | $0 | |
| (–) Exemption Loss: | – | $0 | |
| | | -------------------------- | |
| (=) Taxable Value: | = | $994,750 | |
Taxing Jurisdiction
| Owner: | WILCOX MICHAEL J | | |
| % Ownership: | 100.0000000000% | | |
| Total Value: | $994,750 | | |
| Tax Area: | 101 - 140-4 |
| CERFD | CURRENT EXPENSE REFUND 010 | 0.0000000000 | $994,750 | $994,750 | $0.00 | | |
| CURREXP | CURRENT EXPENSE 010 | 1.0175366760 | $994,750 | $994,750 | $1,012.19 | | |
| HUMNSERV | HUMAN SERVICES 119 | 0.0250000000 | $994,750 | $994,750 | $24.87 | | |
| SLDREL | SOLDIERS RELIEF 121 | 0.0155990005 | $994,750 | $994,750 | $15.52 | | |
| EMERGSER | EMS 147 | 0.3792580840 | $994,750 | $994,750 | $377.27 | | |
| EMSRFD | EMS REFUND 147 | 0.0000000000 | $994,750 | $994,750 | $0.00 | | |
| FD4EXP | FD #4 EXPENSE 686 | 0.8836993059 | $994,750 | $994,750 | $879.06 | | |
| RLBRFD | RURAL LIBRARY REFUND 623 | 0.0000000000 | $994,750 | $994,750 | $0.00 | | |
| RURALLIB | RURAL LIBRARY 623 | 0.3710609029 | $994,750 | $994,750 | $369.11 | | |
| PORTRFD | PORT REFUND 640 | 0.0000000000 | $994,750 | $994,750 | $0.00 | | |
| PORTWWGEN | PORT OF WW 640 | 0.2460186015 | $994,750 | $994,750 | $244.73 | | |
| SD140BOND | SD #140 BOND 764 | 0.8342371393 | $994,750 | $994,750 | $829.86 | | |
| SD140GEN | SD #140 GENERAL 760 | 2.0646500647 | $994,750 | $994,750 | $2,053.81 | | |
| ST2 | STATE SCHOOL PART 2 600 | 0.8131451643 | $994,750 | $994,750 | $808.88 | | |
| STATESCHL | STATE SCHOOL 600 | 1.5158548041 | $994,750 | $994,750 | $1,507.90 | | |
| STREFUND | STATE REFUND LEVY 603 | 0.0000000000 | $994,750 | $994,750 | $0.00 | | |
| COROAD | COUNTY ROAD 115 | 1.6549953990 | $994,750 | $994,750 | $1,646.31 | | |
| CRPRD | COUNTY ROAD REFUND 115 | 0.0000000000 | $994,750 | $994,750 | $0.00 | | |
| | Total Tax Rate: | 9.8210551422 | | | | | |
| | | | | Taxes w/Current Exemptions: | $9,769.51 | | |
| | | | | Taxes w/o Exemptions: | $9,769.51 | | |
Improvement / Building
| Improvement #1: | RESIDENTIAL | State Code: | 11 | 2392.0 sqft | Value: | $819,310 |
| Exterior Wall: | HARDBOARD | Heating/Cooling: | HEAT PUMP | | Number of Bathrooms: | 3.5 | Number of Bedrooms: | 4 | | Plumbing: | 16 | Roof Covering: | COMP SHINGLE |
|
| | Type | Description | Class CD | Sub Class CD | Year Built | Area |
| | MA | Main Area | 4 | 45 | 1983 | 2392.0 |
| | UPFL | Upper Floor (included in main area) | 4 | 45 | 1983 | 952.0 |
| | SI1 | SITE IMPROVEMENT | 4 | 45 | 1983 | 7.0 |
| | BASE | BASEMENT | 4 | 45 | 1983 | 1440.0 |
| | BPF | BASEMENT -PARTITIONED FINISH | 4 | 45 | 1983 | 1440.0 |
| | D2F | Double 2 Story Fireplace | 4 | 45 | 1983 | 1.0 |
| | SMP | SWIMMING POOL | 4 | 45 | 2022 | 1.0 |
| | RPC | OPEN PORCH W/ROOF , CEILED | 4 | 45 | 1983 | 250.0 |
| | OSP | Open | 4 | 45 | 1983 | 330.0 |
| | RPO | OPEN PORCH W/ROOF | 4 | 45 | 1983 | 357.0 |
| | ATG | Attached Garage | 4 | 45 | 1983 | 638.0 |
| | TOOL | TOOL SHED | 4 | 45 | 1983 | 150.0 |
Sketch
Property Image
Land
| 1 | RES 1 | Converted: Residential | 1.5300 | 0.00 | 0.00 | 0.00 | 1.00 | $175,440 | $0 |
Roll Value History
| 2026 | N/A | N/A | N/A | N/A | N/A |
| 2025 | $819,310 | $175,440 | $0 | $994,750 | $994,750 |
| 2024 | $819,310 | $175,440 | $0 | $994,750 | $994,750 |
| 2023 | $819,310 | $175,440 | $0 | $994,750 | $994,750 |
| 2022 | $744,830 | $113,670 | $0 | $858,500 | $858,500 |
| 2021 | $608,470 | $113,670 | $0 | $722,140 | $722,140 |
| 2020 | $368,770 | $113,670 | $0 | $482,440 | $482,440 |
| 2019 | $368,770 | $113,670 | $0 | $482,440 | $482,440 |
| 2018 | $368,770 | $113,670 | $0 | $482,440 | $482,440 |
| 2017 | $368,770 | $113,670 | $0 | $482,440 | $482,440 |
| 2016 | $370,130 | $92,100 | $0 | $462,230 | $462,230 |
| 2015 | $370,130 | $92,100 | $0 | $462,230 | $462,230 |
| 2014 | $352,500 | $92,100 | $0 | $444,600 | $444,600 |
| 2013 | $352,500 | $92,100 | $0 | $444,600 | $444,600 |
| 2012 | $352,500 | $92,100 | $0 | $0 | $0 |
| 2011 | $320,900 | $122,100 | $0 | $0 | $0 |
| 2010 | $320,900 | $122,100 | $0 | $0 | $0 |
| 2009 | $346,700 | $122,100 | $0 | $0 | $0 |
| 2008 | $346,700 | $122,100 | $0 | $0 | $0 |
| 2007 | $241,400 | $63,200 | $0 | $0 | $0 |
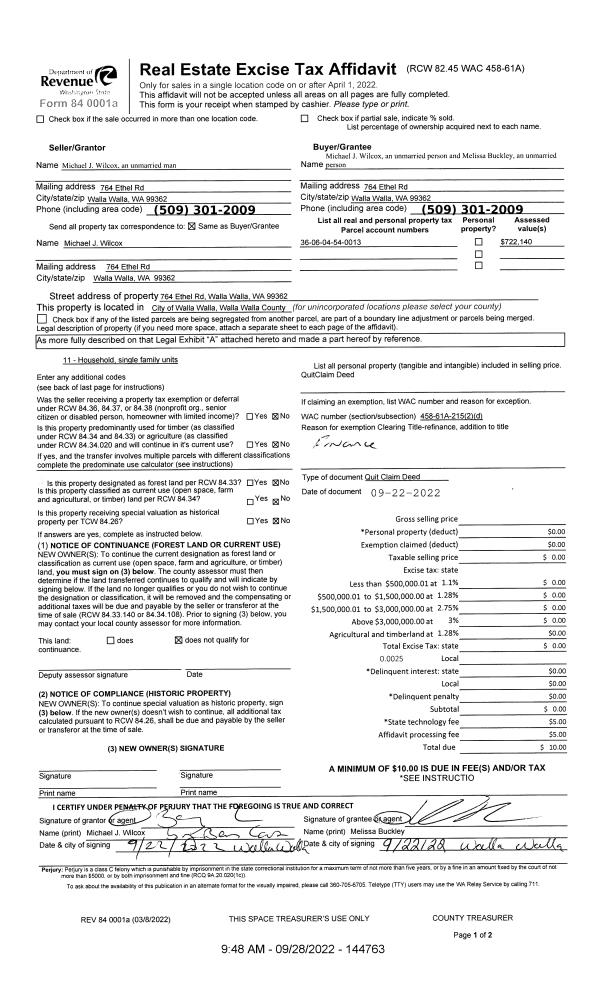
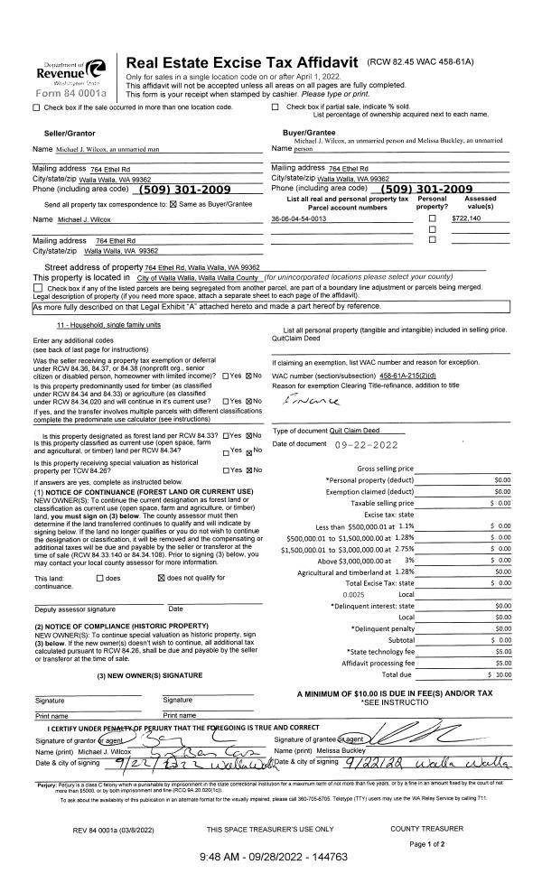
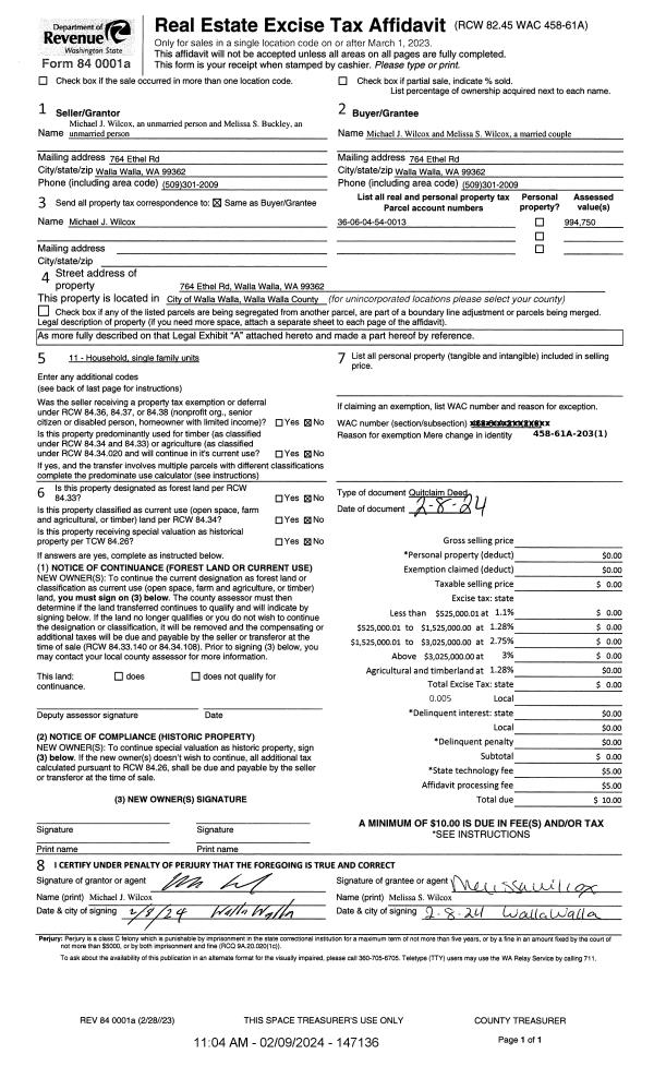
Deed and Sales History
| 1 | 02/09/2024 | QCD | QUIT CLAIM DEED | WILCOX MICHAEL J | WILCOX MICHAEL J & MELISSA S | | | | 147136 | 2024-00710 |
| 2 | 09/22/2022 | QCD | QUIT CLAIM DEED | WILCOX MICHAEL | WILCOX MICHAEL J | | | $0.00 | 144763 | 2022-08051 |
| 3 | 01/23/2009 | WARRANTY D | WARRANTY DEED | WILCOX, ANNE | WILCOX, MICHAEL | | | | 0 | CC #08-3--00263-7 |
| 4 | 08/30/2006 | WARRANTY D | WARRANTY DEED | MORAN, MATTHEW F & ANNE L | WILCOX, MICHAEL J & ANNE M | | | $472,500.00 | 111080 | 2006-10472 |
| 5 | 08/23/2002 | WARRANTY D | WARRANTY DEED | NEWHOUSE, FRANK | MORAN, MATTHEW F & ANNE L | | | $310,000.00 | 100217 | 2002-09491 |
| 6 | 07/19/1996 | WARRANTY D | WARRANTY DEED | | | | | $300,000.00 | 86534 | 2429-607252 |
Payout Agreement
| No payout information available.. |