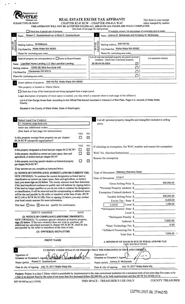
Property
Account |
| Property ID: | 31118 | Abbreviated Legal Description: | VAN DONGE ACRES EAST LOT 4 |
| Parcel Number: | 360604540004 | Agent Code: | |
| Type: | Real | | |
| Tax Area: | 101 - 140-4 | Land Use Code | 11 |
| Open Space: | N | DFL | N |
| Historic Property: | N | Remodel Property: | N |
| Multi-Family Redevelopment: | N | | |
| Township: | 6 | Section: | 4 |
| Range: | 36 |
Location |
| Address: | 649 HILL RD WA 99362 | Mapsco: | |
| Neighborhood: | VG Res Rural/City Inf | Map ID: | |
| Neighborhood CD: | 415012 |
Owner |
| Name: | MCDANIELS JOSHUA D & KIMBERLY M | Owner ID: | 61349 |
| Mailing Address: | 649 HILL RD WALLA WALLA, WA 99362 | % Ownership: | 100.0000000000% |
| | | Exemptions: | |
Taxes and Assessment Details
Values
| (+) Improvement Homesite Value: | + | $0 | |
| (+) Improvement Non-Homesite Value: | + | $793,210 | |
| (+) Land Homesite Value: | + | $0 | |
| (+) Land Non-Homesite Value: | + | $175,090 | |
| (+) Curr Use (HS): | + | $0 | $0 |
| (+) Curr Use (NHS): | + | $0 | $0 |
| | | -------------------------- | |
| (=) Market Value: | = | $968,300 | |
| (–) Productivity Loss: | – | $0 | |
| | | -------------------------- | |
| (=) Subtotal: | = | $968,300 | |
| (+) Senior Appraised Value: | + | $0 | |
| (+) Non-Senior Appraised Value: | + | $968,300 | |
| | | -------------------------- | |
| (=) Total Appraised Value: | = | $968,300 | |
| (–) Senior Exemption Loss: | – | $0 | |
| (–) Exemption Loss: | – | $0 | |
| | | -------------------------- | |
| (=) Taxable Value: | = | $968,300 | |
Taxing Jurisdiction
| Owner: | MCDANIELS JOSHUA D & KIMBERLY M | | |
| % Ownership: | 100.0000000000% | | |
| Total Value: | $968,300 | | |
| Tax Area: | 101 - 140-4 |
| CERFD | CURRENT EXPENSE REFUND 010 | 0.0000000000 | $968,300 | $968,300 | $0.00 | | |
| CURREXP | CURRENT EXPENSE 010 | 1.0175366760 | $968,300 | $968,300 | $985.28 | | |
| HUMNSERV | HUMAN SERVICES 119 | 0.0250000000 | $968,300 | $968,300 | $24.21 | | |
| SLDREL | SOLDIERS RELIEF 121 | 0.0155990005 | $968,300 | $968,300 | $15.10 | | |
| EMERGSER | EMS 147 | 0.3792580840 | $968,300 | $968,300 | $367.24 | | |
| EMSRFD | EMS REFUND 147 | 0.0000000000 | $968,300 | $968,300 | $0.00 | | |
| FD4EXP | FD #4 EXPENSE 686 | 0.8836993059 | $968,300 | $968,300 | $855.69 | | |
| RLBRFD | RURAL LIBRARY REFUND 623 | 0.0000000000 | $968,300 | $968,300 | $0.00 | | |
| RURALLIB | RURAL LIBRARY 623 | 0.3710609029 | $968,300 | $968,300 | $359.30 | | |
| PORTRFD | PORT REFUND 640 | 0.0000000000 | $968,300 | $968,300 | $0.00 | | |
| PORTWWGEN | PORT OF WW 640 | 0.2460186015 | $968,300 | $968,300 | $238.22 | | |
| SD140BOND | SD #140 BOND 764 | 0.8342371393 | $968,300 | $968,300 | $807.79 | | |
| SD140GEN | SD #140 GENERAL 760 | 2.0646500647 | $968,300 | $968,300 | $1,999.20 | | |
| ST2 | STATE SCHOOL PART 2 600 | 0.8131451643 | $968,300 | $968,300 | $787.37 | | |
| STATESCHL | STATE SCHOOL 600 | 1.5158548041 | $968,300 | $968,300 | $1,467.80 | | |
| STREFUND | STATE REFUND LEVY 603 | 0.0000000000 | $968,300 | $968,300 | $0.00 | | |
| COROAD | COUNTY ROAD 115 | 1.6549953990 | $968,300 | $968,300 | $1,602.53 | | |
| CRPRD | COUNTY ROAD REFUND 115 | 0.0000000000 | $968,300 | $968,300 | $0.00 | | |
| | Total Tax Rate: | 9.8210551422 | | | | | |
| | | | | Taxes w/Current Exemptions: | $9,509.73 | | |
| | | | | Taxes w/o Exemptions: | $9,509.73 | | |
Improvement / Building
| Improvement #1: | RESIDENTIAL | State Code: | 11 | 2960.0 sqft | Value: | $793,210 |
| Exterior Wall: | SIDING | Foundation: | SLAB FOUNDATION | | Heating/Cooling: | HEAT PUMP | Number of Bathrooms: | 3 | | Number of Bedrooms: | 4 | Plumbing: | 16 | | Roof Covering: | COMP SHINGLE |   |   |
|
| | Type | Description | Class CD | Sub Class CD | Year Built | Area |
| | MA | Main Area | 4 | 45 | 1986 | 2960.0 |
| | CPC | COVERED CARPORT/PATIO | 4 | 45 | 2006 | 133.0 |
| | DTG | Detached Garage | 4 | 45 | 2006 | 1204.0 |
| | RPC | OPEN PORCH W/ROOF , CEILED | 4 | 45 | 2006 | 116.0 |
| | SI1 | SITE IMPROVEMENT | 4 | 45 | 0 | 7.0 |
| | BASE | BASEMENT | 4 | 45 | 1986 | 1274.0 |
| | BPF | BASEMENT -PARTITIONED FINISH | 4 | 45 | 1986 | 1274.0 |
| | RPS | PORCH W/STEPS,ROOF | 4 | 45 | 1986 | 84.0 |
| | WOD | Wood Deck | 4 | 45 | 1986 | 222.0 |
| | S2F | Single 2S Fireplace | 4 | 45 | 1986 | 2.0 |
| | UPFL | Upper Floor (included in main area) | 4 | 45 | 1986 | 1218.0 |
| | WDR | WOOD DECK W/ROOF | 4 | 45 | 1986 | 120.0 |
| | WDR | WOOD DECK W/ROOF | 4 | 45 | 1986 | 383.0 |
Sketch
Property Image
Land
| 1 | RES 1 | Converted: Residential | 1.4600 | 0.00 | 0.00 | 0.00 | 1.00 | $175,090 | $0 |
Roll Value History
| 2026 | N/A | N/A | N/A | N/A | N/A |
| 2025 | $930,530 | $175,090 | $0 | $1,105,620 | $1,105,620 |
| 2024 | $807,710 | $175,090 | $0 | $982,800 | $982,800 |
| 2023 | $793,210 | $175,090 | $0 | $968,300 | $968,300 |
| 2022 | $793,210 | $114,040 | $0 | $907,250 | $907,250 |
| 2021 | $410,570 | $114,040 | $0 | $524,610 | $524,610 |
| 2020 | $391,020 | $114,040 | $0 | $505,060 | $505,060 |
| 2019 | $391,020 | $114,040 | $0 | $505,060 | $505,060 |
| 2018 | $355,470 | $114,040 | $0 | $469,510 | $469,510 |
| 2017 | $338,540 | $114,040 | $0 | $452,580 | $452,580 |
| 2016 | $345,860 | $91,800 | $0 | $437,660 | $437,660 |
| 2015 | $329,390 | $91,800 | $0 | $421,190 | $421,190 |
| 2014 | $319,800 | $91,800 | $0 | $411,600 | $411,600 |
| 2013 | $319,800 | $91,800 | $0 | $411,600 | $411,600 |
| 2012 | $319,800 | $91,800 | $0 | $0 | $0 |
| 2011 | $292,600 | $121,800 | $0 | $0 | $0 |
| 2010 | $292,600 | $121,800 | $0 | $0 | $0 |
| 2009 | $316,700 | $121,800 | $0 | $0 | $0 |
| 2008 | $316,700 | $121,800 | $0 | $0 | $0 |
| 2007 | $281,500 | $62,800 | $0 | $0 | $0 |
Deed and Sales History
| 1 | 07/17/2017 | SWD | STATUTORY WARRANTY DEED | QUACKENBUSH ROBERT C & ALICIA D | MCDANIELS JOSHUA D & KIMBERLY M | | | $500,000.00 | 132791 | 2017-05473 |
| 2 | 06/14/2004 | WARRANTY D | WARRANTY DEED | SHEPARD, MICHAEL B & RHONDA A | QUACKENBUSH, ROBERT C & ALICIA | | | $391,500.00 | 104997 | 2004-06528 |
| 3 | 01/11/2001 | WARRANTY D | WARRANTY DEED | | | | | $290,000.00 | 96458 | 3060-100319 |
Payout Agreement
| No payout information available.. |