Property
Account |
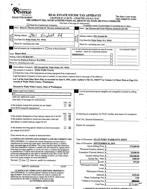
| Property ID: | 31105 | Abbreviated Legal Description: | STUBBLEFIELD LOT 1 OF S/P (NLY 147' OF LOT 8 BLK 2) |
| Parcel Number: | 360604510224 | Agent Code: | |
| Type: | Real | | |
| Tax Area: | 101 - 140-4 | Land Use Code | 11 |
| Open Space: | N | DFL | N |
| Historic Property: | N | Remodel Property: | N |
| Multi-Family Redevelopment: | N | | |
| Township: | 6 | Section: | 4 |
| Range: | 36 |
Location |
| Address: | 2901 KENDALL RD WA 99362 | Mapsco: | |
| Neighborhood: | VG Res Rural/City Inf | Map ID: | |
| Neighborhood CD: | 415012 |
Owner |
| Name: | THORSON JON & CARLA | Owner ID: | 57543 |
| Mailing Address: | 2901 KENDALL RD WALLA WALLA, WA 99362 | % Ownership: | 100.0000000000% |
| | | Exemptions: | |
Taxes and Assessment Details
Values
| (+) Improvement Homesite Value: | + | $0 | |
| (+) Improvement Non-Homesite Value: | + | $574,770 | |
| (+) Land Homesite Value: | + | $0 | |
| (+) Land Non-Homesite Value: | + | $171,460 | |
| (+) Curr Use (HS): | + | $0 | $0 |
| (+) Curr Use (NHS): | + | $0 | $0 |
| | | -------------------------- | |
| (=) Market Value: | = | $746,230 | |
| (–) Productivity Loss: | – | $0 | |
| | | -------------------------- | |
| (=) Subtotal: | = | $746,230 | |
| (+) Senior Appraised Value: | + | $0 | |
| (+) Non-Senior Appraised Value: | + | $746,230 | |
| | | -------------------------- | |
| (=) Total Appraised Value: | = | $746,230 | |
| (–) Senior Exemption Loss: | – | $0 | |
| (–) Exemption Loss: | – | $0 | |
| | | -------------------------- | |
| (=) Taxable Value: | = | $746,230 | |
Taxing Jurisdiction
| Owner: | THORSON JON & CARLA | | |
| % Ownership: | 100.0000000000% | | |
| Total Value: | $746,230 | | |
| Tax Area: | 101 - 140-4 |
| CERFD | CURRENT EXPENSE REFUND 010 | 0.0000000000 | $746,230 | $746,230 | $0.00 | | |
| CURREXP | CURRENT EXPENSE 010 | 1.0175366760 | $746,230 | $746,230 | $759.32 | | |
| HUMNSERV | HUMAN SERVICES 119 | 0.0250000000 | $746,230 | $746,230 | $18.66 | | |
| SLDREL | SOLDIERS RELIEF 121 | 0.0155990005 | $746,230 | $746,230 | $11.64 | | |
| EMERGSER | EMS 147 | 0.3792580840 | $746,230 | $746,230 | $283.01 | | |
| EMSRFD | EMS REFUND 147 | 0.0000000000 | $746,230 | $746,230 | $0.00 | | |
| FD4EXP | FD #4 EXPENSE 686 | 0.8836993059 | $746,230 | $746,230 | $659.44 | | |
| RLBRFD | RURAL LIBRARY REFUND 623 | 0.0000000000 | $746,230 | $746,230 | $0.00 | | |
| RURALLIB | RURAL LIBRARY 623 | 0.3710609029 | $746,230 | $746,230 | $276.90 | | |
| PORTRFD | PORT REFUND 640 | 0.0000000000 | $746,230 | $746,230 | $0.00 | | |
| PORTWWGEN | PORT OF WW 640 | 0.2460186015 | $746,230 | $746,230 | $183.59 | | |
| SD140BOND | SD #140 BOND 764 | 0.8342371393 | $746,230 | $746,230 | $622.53 | | |
| SD140GEN | SD #140 GENERAL 760 | 2.0646500647 | $746,230 | $746,230 | $1,540.70 | | |
| ST2 | STATE SCHOOL PART 2 600 | 0.8131451643 | $746,230 | $746,230 | $606.79 | | |
| STATESCHL | STATE SCHOOL 600 | 1.5158548041 | $746,230 | $746,230 | $1,131.18 | | |
| STREFUND | STATE REFUND LEVY 603 | 0.0000000000 | $746,230 | $746,230 | $0.00 | | |
| COROAD | COUNTY ROAD 115 | 1.6549953990 | $746,230 | $746,230 | $1,235.01 | | |
| CRPRD | COUNTY ROAD REFUND 115 | 0.0000000000 | $746,230 | $746,230 | $0.00 | | |
| | Total Tax Rate: | 9.8210551422 | | | | | |
| | | | | Taxes w/Current Exemptions: | $7,328.77 | | |
| | | | | Taxes w/o Exemptions: | $7,328.77 | | |
Improvement / Building
| Improvement #1: | RESIDENTIAL | State Code: | 11 | 2443.0 sqft | Value: | $574,770 |
| Exterior Wall: | HARDBOARD | Heating/Cooling: | WARM & COOLED AIR | | Number of Bathrooms: | 2 | Number of Bedrooms: | 3 | | Plumbing: | 10 | Roof Covering: | COMP SHINGLE |
|
| | Type | Description | Class CD | Sub Class CD | Year Built | Area |
| | MA | Main Area | 1 | 40 | 1994 | 2443.0 |
| | SI1 | SITE IMPROVEMENT | 1 | 40 | 0 | 3.5 |
| | BASE | BASEMENT | 1 | 40 | 1994 | 1234.0 |
| | BPF | BASEMENT -PARTITIONED FINISH | 1 | 40 | 1994 | 660.0 |
| | ATG | Attached Garage | 1 | 40 | 1994 | 1140.0 |
| | RPO | OPEN PORCH W/ROOF | 1 | 40 | 1994 | 68.0 |
| | WOD | Wood Deck | 1 | 40 | 1994 | 368.0 |
| | D2F | Double 2 Story Fireplace | 1 | 40 | 1994 | 1.0 |
Sketch
Property Image
Land
| 1 | RES 1 | Converted: Residential | 1.0400 | 0.00 | 0.00 | 0.00 | 1.00 | $171,460 | $0 |
Roll Value History
| 2026 | N/A | N/A | N/A | N/A | N/A |
| 2025 | $603,510 | $171,460 | $0 | $774,970 | $774,970 |
| 2024 | $574,770 | $171,460 | $0 | $746,230 | $746,230 |
| 2023 | $574,770 | $171,460 | $0 | $746,230 | $746,230 |
| 2022 | $574,770 | $111,520 | $0 | $686,290 | $686,290 |
| 2021 | $338,100 | $111,520 | $0 | $449,620 | $449,620 |
| 2020 | $338,100 | $111,520 | $0 | $449,620 | $449,620 |
| 2019 | $338,100 | $111,520 | $0 | $449,620 | $449,620 |
| 2018 | $322,000 | $111,520 | $0 | $433,520 | $433,520 |
| 2017 | $322,000 | $111,520 | $0 | $433,520 | $433,520 |
| 2016 | $343,320 | $90,200 | $0 | $433,520 | $433,520 |
| 2015 | $286,100 | $90,200 | $0 | $376,300 | $376,300 |
| 2014 | $286,100 | $90,200 | $0 | $376,300 | $376,300 |
| 2013 | $286,100 | $90,200 | $0 | $376,300 | $376,300 |
| 2012 | $286,100 | $90,200 | $0 | $0 | $0 |
| 2011 | $256,300 | $120,200 | $0 | $0 | $0 |
| 2010 | $256,300 | $120,200 | $0 | $0 | $0 |
| 2009 | $278,200 | $120,200 | $0 | $0 | $0 |
| 2008 | $278,200 | $120,200 | $0 | $0 | $0 |
| 2007 | $257,200 | $60,200 | $0 | $0 | $0 |
Deed and Sales History
| 1 | 10/02/2015 | SWD | STATUTORY WARRANTY DEED | THORSON BRUCE E & LINDA M | THORSON JON & CARLA | | | $350,000.00 | 128930 | 2015-08690 |
| 2 | 11/22/1995 | WARRANTY D | WARRANTY DEED | | | | | $248,000.00 | 85155 | 2359-511363 |
Payout Agreement
| No payout information available.. |