Property
Account |
| Property ID: | 31013 | Abbreviated Legal Description: | PROSPECT TERRACE LOT 26 |
| Parcel Number: | 360732810026 | Agent Code: | |
| Type: | Real | | |
| Tax Area: | 6 - OL-140-F-FB | Land Use Code | 11 |
| Open Space: | N | DFL | N |
| Historic Property: | N | Remodel Property: | N |
| Multi-Family Redevelopment: | N | | |
| Township: | 7 | Section: | 32 |
| Range: | 36 |
Location |
| Address: | 939 HIGHLAND RD WA 99362 | Mapsco: | |
| Neighborhood: | G Res Rural/City Inf | Map ID: | |
| Neighborhood CD: | 614012 |
Owner |
| Name: | ALEKEL THERESA | Owner ID: | 56557 |
| Mailing Address: | 939 HIGHLAND RD WALLA WALLA, WA 99362 | % Ownership: | 100.0000000000% |
| | | Exemptions: | |
Taxes and Assessment Details
Values
| (+) Improvement Homesite Value: | + | $0 | |
| (+) Improvement Non-Homesite Value: | + | $319,590 | |
| (+) Land Homesite Value: | + | $0 | |
| (+) Land Non-Homesite Value: | + | $85,000 | |
| (+) Curr Use (HS): | + | $0 | $0 |
| (+) Curr Use (NHS): | + | $0 | $0 |
| | | -------------------------- | |
| (=) Market Value: | = | $404,590 | |
| (–) Productivity Loss: | – | $0 | |
| | | -------------------------- | |
| (=) Subtotal: | = | $404,590 | |
| (+) Senior Appraised Value: | + | $0 | |
| (+) Non-Senior Appraised Value: | + | $404,590 | |
| | | -------------------------- | |
| (=) Total Appraised Value: | = | $404,590 | |
| (–) Senior Exemption Loss: | – | $0 | |
| (–) Exemption Loss: | – | $0 | |
| | | -------------------------- | |
| (=) Taxable Value: | = | $404,590 | |
Taxing Jurisdiction
| Owner: | ALEKEL THERESA | | |
| % Ownership: | 100.0000000000% | | |
| Total Value: | $404,590 | | |
| Tax Area: | 6 - OL-140-F-FB |
| CERFD | CURRENT EXPENSE REFUND 010 | 0.0000000000 | $404,590 | $404,590 | $0.00 | | |
| CURREXP | CURRENT EXPENSE 010 | 1.0175366760 | $404,590 | $404,590 | $411.69 | | |
| HUMNSERV | HUMAN SERVICES 119 | 0.0250000000 | $404,590 | $404,590 | $10.11 | | |
| SLDREL | SOLDIERS RELIEF 121 | 0.0155990005 | $404,590 | $404,590 | $6.31 | | |
| EMERGSER | EMS 147 | 0.3792580840 | $404,590 | $404,590 | $153.44 | | |
| EMSRFD | EMS REFUND 147 | 0.0000000000 | $404,590 | $404,590 | $0.00 | | |
| PORTRFD | PORT REFUND 640 | 0.0000000000 | $404,590 | $404,590 | $0.00 | | |
| PORTWWGEN | PORT OF WW 640 | 0.2460186015 | $404,590 | $404,590 | $99.54 | | |
| SD140BOND | SD #140 BOND 764 | 0.8342371393 | $404,590 | $404,590 | $337.52 | | |
| SD140GEN | SD #140 GENERAL 760 | 2.0646500647 | $404,590 | $404,590 | $835.34 | | |
| ST2 | STATE SCHOOL PART 2 600 | 0.8131451643 | $404,590 | $404,590 | $328.99 | | |
| STATESCHL | STATE SCHOOL 600 | 1.5158548041 | $404,590 | $404,590 | $613.30 | | |
| STREFUND | STATE REFUND LEVY 603 | 0.0000000000 | $404,590 | $404,590 | $0.00 | | |
| CWWBOND | C OF WW BOND 643 | 0.2760494372 | $404,590 | $404,590 | $111.69 | | |
| CWWGEN | CITY OF WW 631 | 1.6100204973 | $404,590 | $404,590 | $651.40 | | |
| CWWRFD | CITY OF WALLA WALLA REFUND 631 | 0.0000000000 | $404,590 | $404,590 | $0.00 | | |
| | Total Tax Rate: | 8.7973694689 | | | | | |
| | | | | Taxes w/Current Exemptions: | $3,559.33 | | |
| | | | | Taxes w/o Exemptions: | $3,559.33 | | |
Improvement / Building
| Improvement #1: | RESIDENTIAL | State Code: | 11 | 1556.0 sqft | Value: | $319,590 |
| Exterior Wall: | PLYWOOD | Heating/Cooling: | WARM & COOLED AIR | | Number of Bathrooms: | 2 | Number of Bedrooms: | 4 | | Plumbing: | 8 | Roof Covering: | COMP SHINGLE |
|
| | Type | Description | Class CD | Sub Class CD | Year Built | Area |
| | MA | Main Area | 1 | 30 | 2008 | 1556.0 |
| | SI1 | SITE IMPROVEMENT | 1 | 30 | 2008 | 2.2 |
| | ATG | Attached Garage | 1 | 30 | 2008 | 400.0 |
| | RPO | OPEN PORCH W/ROOF | 1 | 30 | 2008 | 80.0 |
| | GFP | GAS FIREPLACE | 1 | 30 | 2008 | 1.0 |
Sketch
Property Image
Land
| 1 | RES 1 | Converted: Residential | 0.1677 | 7304.00 | 0.00 | 0.00 | 1.00 | $85,000 | $0 |
Roll Value History
| 2026 | N/A | N/A | N/A | N/A | N/A |
| 2025 | $333,080 | $125,000 | $0 | $458,080 | $168,228 |
| 2024 | $335,570 | $85,000 | $0 | $420,570 | $168,228 |
| 2023 | $319,590 | $85,000 | $0 | $404,590 | $404,590 |
| 2022 | $304,370 | $70,000 | $0 | $374,370 | $374,370 |
| 2021 | $249,490 | $70,000 | $0 | $319,490 | $319,490 |
| 2020 | $172,060 | $70,000 | $0 | $242,060 | $242,060 |
| 2019 | $172,060 | $70,000 | $0 | $242,060 | $242,060 |
| 2018 | $158,930 | $60,000 | $0 | $218,930 | $79,120 |
| 2017 | $151,370 | $60,000 | $0 | $211,370 | $79,120 |
| 2016 | $148,400 | $60,000 | $0 | $208,400 | $79,120 |
| 2015 | $141,330 | $60,000 | $0 | $201,330 | $79,120 |
| 2014 | $134,600 | $60,000 | $0 | $194,600 | $77,840 |
| 2013 | $134,600 | $60,000 | $0 | $194,600 | $126,490 |
| 2012 | $132,600 | $60,000 | $0 | $0 | $0 |
| 2011 | $137,800 | $60,000 | $0 | $0 | $0 |
| 2010 | $149,100 | $60,000 | $0 | $0 | $0 |
| 2009 | $172,300 | $60,000 | $0 | $0 | $0 |
| 2008 | $0 | $3,700 | $0 | $0 | $0 |
| 2007 | $134,600 | $60,000 | $0 | $0 | $0 |
Deed and Sales History
| 1 | 05/20/2015 | QCD | QUIT CLAIM DEED | ALEKEL THEODORE & THERESA | ALEKEL THERESA | | | | 128017 | 2015-04287 |
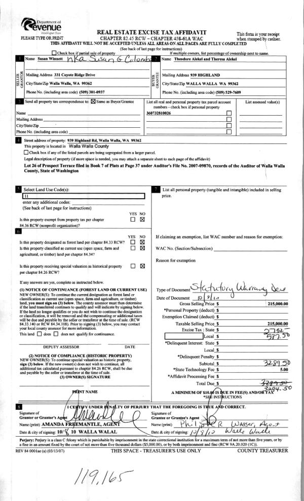
| 2 | 10/12/2010 | WARRANTY D | WARRANTY DEED | WINNETT, SUSAN G | ALEKEL, THEODORE & THERESA | | | $215,000.00 | 119165 | 2010-08182 |
| 3 | 07/17/2008 | WARRANTY D | WARRANTY DEED | HAYDEN HOMES LLC | WINNETT, SUSAN G | | | $232,475.00 | 115345 | 2008-07304 |
| 4 | 12/05/2007 | WARRANTY D | WARRANTY DEED | HAYDEN ENTERPRISES INC | | | | | 114183 | 2007-13846 |
Payout Agreement
| No payout information available.. |