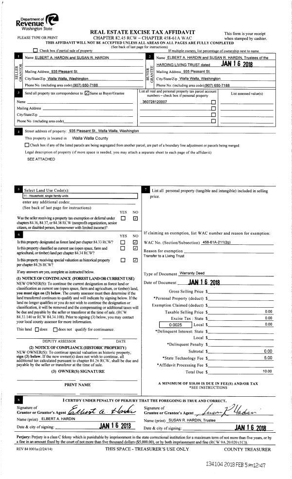
Property
Account |
| Property ID: | 31011 | Abbreviated Legal Description: | 28-7-36 TAX 5D |
| Parcel Number: | 360728120007 | Agent Code: | |
| Type: | Real | | |
| Tax Area: | 1 - OL-140-F | Land Use Code | 11 |
| Open Space: | N | DFL | N |
| Historic Property: | N | Remodel Property: | N |
| Multi-Family Redevelopment: | N | | |
| Township: | 7 | Section: | 28 |
| Range: | 36 |
Location |
| Address: | 935 PLEASANT ST WA 99362 | Mapsco: | |
| Neighborhood: | G Res | Map ID: | |
| Neighborhood CD: | 614011 |
Owner |
| Name: | HARDIN LIVING TRUST | Owner ID: | 62546 |
| Mailing Address: | 935 PLEASANT ST WALLA WALLA, WA 99362 | % Ownership: | 100.0000000000% |
| | | Exemptions: | |
Taxes and Assessment Details
Values
| (+) Improvement Homesite Value: | + | $317,100 | |
| (+) Improvement Non-Homesite Value: | + | $0 | |
| (+) Land Homesite Value: | + | $122,780 | |
| (+) Land Non-Homesite Value: | + | $0 | |
| (+) Curr Use (HS): | + | $0 | $0 |
| (+) Curr Use (NHS): | + | $0 | $0 |
| | | -------------------------- | |
| (=) Market Value: | = | $439,880 | |
| (–) Productivity Loss: | – | $0 | |
| | | -------------------------- | |
| (=) Subtotal: | = | $439,880 | |
| (+) Senior Appraised Value: | + | $0 | |
| (+) Non-Senior Appraised Value: | + | $439,880 | |
| | | -------------------------- | |
| (=) Total Appraised Value: | = | $439,880 | |
| (–) Senior Exemption Loss: | – | $0 | |
| (–) Exemption Loss: | – | $0 | |
| | | -------------------------- | |
| (=) Taxable Value: | = | $439,880 | |
Taxing Jurisdiction
| Owner: | HARDIN LIVING TRUST | | |
| % Ownership: | 100.0000000000% | | |
| Total Value: | $439,880 | | |
| Tax Area: | 1 - OL-140-F |
| CERFD | CURRENT EXPENSE REFUND 010 | 0.0000000000 | $439,880 | $439,880 | $0.00 | | |
| CURREXP | CURRENT EXPENSE 010 | 1.0175366760 | $439,880 | $439,880 | $447.59 | | |
| HUMNSERV | HUMAN SERVICES 119 | 0.0250000000 | $439,880 | $439,880 | $11.00 | | |
| SLDREL | SOLDIERS RELIEF 121 | 0.0155990005 | $439,880 | $439,880 | $6.86 | | |
| EMERGSER | EMS 147 | 0.3792580840 | $439,880 | $439,880 | $166.83 | | |
| EMSRFD | EMS REFUND 147 | 0.0000000000 | $439,880 | $439,880 | $0.00 | | |
| PORTRFD | PORT REFUND 640 | 0.0000000000 | $439,880 | $439,880 | $0.00 | | |
| PORTWWGEN | PORT OF WW 640 | 0.2460186015 | $439,880 | $439,880 | $108.22 | | |
| SD140BOND | SD #140 BOND 764 | 0.8342371393 | $439,880 | $439,880 | $366.96 | | |
| SD140GEN | SD #140 GENERAL 760 | 2.0646500647 | $439,880 | $439,880 | $908.20 | | |
| ST2 | STATE SCHOOL PART 2 600 | 0.8131451643 | $439,880 | $439,880 | $357.69 | | |
| STATESCHL | STATE SCHOOL 600 | 1.5158548041 | $439,880 | $439,880 | $666.79 | | |
| STREFUND | STATE REFUND LEVY 603 | 0.0000000000 | $439,880 | $439,880 | $0.00 | | |
| CWWBOND | C OF WW BOND 643 | 0.2760494372 | $439,880 | $439,880 | $121.43 | | |
| CWWGEN | CITY OF WW 631 | 1.6100204973 | $439,880 | $439,880 | $708.22 | | |
| CWWRFD | CITY OF WALLA WALLA REFUND 631 | 0.0000000000 | $439,880 | $439,880 | $0.00 | | |
| | Total Tax Rate: | 8.7973694689 | | | | | |
| | | | | Taxes w/Current Exemptions: | $3,869.79 | | |
| | | | | Taxes w/o Exemptions: | $3,869.79 | | |
Improvement / Building
| Improvement #1: | RESIDENTIAL | State Code: | 11 | 2192.0 sqft | Value: | $317,100 |
| Exterior Wall: | SIDING | Foundation: | SLAB FOUNDATION | | Heating/Cooling: | WARM & COOLED AIR | Number of Bathrooms: | 2 | | Number of Bedrooms: | 3 | Plumbing: | 8 | | Roof Covering: | COMP SHINGLE |   |   |
|
| | Type | Description | Class CD | Sub Class CD | Year Built | Area |
| | MA | Main Area | 3 | 30 | 1956 | 2192.0 |
| | CPC | COVERED CARPORT/PATIO | 3 | 30 | 1956 | 108.0 |
| | PRC | PORCH W STEPS, ROOF,CEILED | 3 | 30 | 1956 | 24.0 |
| | SI1 | SITE IMPROVEMENT | 3 | 30 | 1956 | 2.0 |
| | S1F | Single One Story Fireplace | 3 | 30 | 1956 | 1.0 |
| | DTG | Detached Garage | 3 | 30 | 1956 | 580.0 |
Sketch
Property Image
Land
| 1 | RES 1 | Converted: Residential | 0.3400 | 14810.00 | 0.00 | 0.00 | 1.00 | $122,780 | $0 |
Roll Value History
| 2026 | N/A | N/A | N/A | N/A | N/A |
| 2025 | $291,170 | $146,320 | $0 | $437,490 | $437,490 |
| 2024 | $317,100 | $122,780 | $0 | $439,880 | $439,880 |
| 2023 | $317,100 | $122,780 | $0 | $439,880 | $439,880 |
| 2022 | $317,100 | $100,860 | $0 | $417,960 | $417,960 |
| 2021 | $243,920 | $100,860 | $0 | $344,780 | $344,780 |
| 2020 | $187,630 | $100,860 | $0 | $288,490 | $288,490 |
| 2019 | $187,630 | $100,860 | $0 | $288,490 | $288,490 |
| 2018 | $180,180 | $51,200 | $0 | $231,380 | $231,380 |
| 2017 | $171,600 | $51,200 | $0 | $222,800 | $222,800 |
| 2016 | $163,430 | $51,200 | $0 | $214,630 | $214,630 |
| 2015 | $157,100 | $51,200 | $0 | $208,300 | $208,300 |
| 2014 | $157,100 | $51,200 | $0 | $208,300 | $208,300 |
| 2013 | $157,100 | $51,200 | $0 | $208,300 | $108,810 |
| 2012 | $149,700 | $51,200 | $0 | $0 | $0 |
| 2011 | $149,700 | $51,200 | $0 | $0 | $0 |
| 2010 | $116,200 | $51,200 | $0 | $0 | $0 |
| 2009 | $134,800 | $51,200 | $0 | $0 | $0 |
| 2008 | $134,800 | $51,200 | $0 | $0 | $0 |
| 2007 | $107,800 | $28,700 | $0 | $0 | $0 |
Deed and Sales History
| 1 | 01/16/2018 | WARRANTY D | WARRANTY DEED | HARDIN ELBERT A & SUSAN R | HARDIN LIVING TRUST | | | $0.00 | 134104 | 2018-00983 |
| 2 | 09/01/2015 | SWD | STATUTORY WARRANTY DEED | HOERNER DOROTHY M | HARDIN ELBERT A & SUSAN R | | | $227,500.00 | 128744 | 2015-07735 |
| 3 | 10/01/1973 | QCD | QUIT CLAIM DEED | | | | | $0.00 | 0 | 9053-2424 |
Payout Agreement
| No payout information available.. |