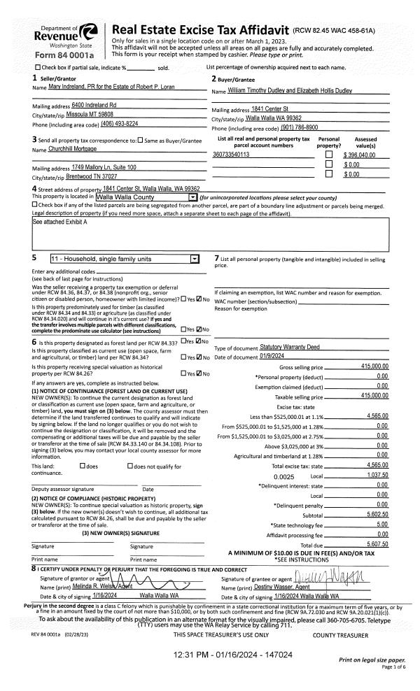
Property
Account |
| Property ID: | 31001 | Abbreviated Legal Description: | MT VIEW REPLAT LOT 13 BLK 1 |
| Parcel Number: | 360733540113 | Agent Code: | |
| Type: | Real | | |
| Tax Area: | 1 - OL-140-F | Land Use Code | 11 |
| Open Space: | N | DFL | N |
| Historic Property: | N | Remodel Property: | N |
| Multi-Family Redevelopment: | N | | |
| Township: | 7 | Section: | 33 |
| Range: | 36 |
Location |
| Address: | 1841 CENTER ST WA 99362 | Mapsco: | |
| Neighborhood: | G Res | Map ID: | |
| Neighborhood CD: | 614011 |
Owner |
| Name: | LORAN ROBERT P ESTATE OF | Owner ID: | 62119 |
| Mailing Address: | 1841 CENTER ST WALLA WALLA, WA 99362 | % Ownership: | 100.0000000000% |
| | | Exemptions: | |
Taxes and Assessment Details
Values
| (+) Improvement Homesite Value: | + | $272,200 | |
| (+) Improvement Non-Homesite Value: | + | $0 | |
| (+) Land Homesite Value: | + | $123,840 | |
| (+) Land Non-Homesite Value: | + | $0 | |
| (+) Curr Use (HS): | + | $0 | $0 |
| (+) Curr Use (NHS): | + | $0 | $0 |
| | | -------------------------- | |
| (=) Market Value: | = | $396,040 | |
| (–) Productivity Loss: | – | $0 | |
| | | -------------------------- | |
| (=) Subtotal: | = | $396,040 | |
| (+) Senior Appraised Value: | + | $0 | |
| (+) Non-Senior Appraised Value: | + | $396,040 | |
| | | -------------------------- | |
| (=) Total Appraised Value: | = | $396,040 | |
| (–) Senior Exemption Loss: | – | $0 | |
| (–) Exemption Loss: | – | $0 | |
| | | -------------------------- | |
| (=) Taxable Value: | = | $396,040 | |
Taxing Jurisdiction
| Owner: | LORAN ROBERT P ESTATE OF | | |
| % Ownership: | 100.0000000000% | | |
| Total Value: | $396,040 | | |
| Tax Area: | 1 - OL-140-F |
| CERFD | CURRENT EXPENSE REFUND 010 | 0.0000000000 | $396,040 | $396,040 | $0.00 | | |
| CURREXP | CURRENT EXPENSE 010 | 1.0175366760 | $396,040 | $396,040 | $402.99 | | |
| HUMNSERV | HUMAN SERVICES 119 | 0.0250000000 | $396,040 | $396,040 | $9.90 | | |
| SLDREL | SOLDIERS RELIEF 121 | 0.0155990005 | $396,040 | $396,040 | $6.18 | | |
| EMERGSER | EMS 147 | 0.3792580840 | $396,040 | $396,040 | $150.20 | | |
| EMSRFD | EMS REFUND 147 | 0.0000000000 | $396,040 | $396,040 | $0.00 | | |
| PORTRFD | PORT REFUND 640 | 0.0000000000 | $396,040 | $396,040 | $0.00 | | |
| PORTWWGEN | PORT OF WW 640 | 0.2460186015 | $396,040 | $396,040 | $97.43 | | |
| SD140BOND | SD #140 BOND 764 | 0.8342371393 | $396,040 | $396,040 | $330.39 | | |
| SD140GEN | SD #140 GENERAL 760 | 2.0646500647 | $396,040 | $396,040 | $817.68 | | |
| ST2 | STATE SCHOOL PART 2 600 | 0.8131451643 | $396,040 | $396,040 | $322.04 | | |
| STATESCHL | STATE SCHOOL 600 | 1.5158548041 | $396,040 | $396,040 | $600.34 | | |
| STREFUND | STATE REFUND LEVY 603 | 0.0000000000 | $396,040 | $396,040 | $0.00 | | |
| CWWBOND | C OF WW BOND 643 | 0.2760494372 | $396,040 | $396,040 | $109.33 | | |
| CWWGEN | CITY OF WW 631 | 1.6100204973 | $396,040 | $396,040 | $637.63 | | |
| CWWRFD | CITY OF WALLA WALLA REFUND 631 | 0.0000000000 | $396,040 | $396,040 | $0.00 | | |
| | Total Tax Rate: | 8.7973694689 | | | | | |
| | | | | Taxes w/Current Exemptions: | $3,484.11 | | |
| | | | | Taxes w/o Exemptions: | $3,484.11 | | |
Improvement / Building
| Improvement #1: | RESIDENTIAL | State Code: | 11 | 1036.0 sqft | Value: | $272,200 |
| Exterior Wall: | VINYL | Heating/Cooling: | WARM & COOLED AIR | | Number of Bathrooms: | 2 | Number of Bedrooms: | 3 | | Plumbing: | 9 | Roof Covering: | COMP SHINGLE |
|
| | Type | Description | Class CD | Sub Class CD | Year Built | Area |
| | MA | Main Area | 1 | 30 | 1953 | 1036.0 |
| | SI1 | SITE IMPROVEMENT | 1 | 30 | 1953 | 3.0 |
| | BASE | BASEMENT | 1 | 30 | 1953 | 1036.0 |
| | BPF | BASEMENT -PARTITIONED FINISH | 1 | 30 | 1953 | 518.0 |
| | ATG | Attached Garage | 1 | 30 | 1953 | 312.0 |
| | D2F | Double 2 Story Fireplace | 1 | 30 | 1953 | 1.0 |
| | CPC | COVERED CARPORT/PATIO | 1 | 30 | 1953 | 432.0 |
| | RPC | OPEN PORCH W/ROOF , CEILED | 1 | 30 | 1953 | 40.0 |
| | UTST | Utility Storage Shed | 1 | 30 | 1953 | 99.0 |
Sketch
Property Image
Land
| 1 | RES 1 | Converted: Residential | 0.3673 | 16000.00 | 0.00 | 0.00 | 1.00 | $123,840 | $0 |
Roll Value History
| 2026 | N/A | N/A | N/A | N/A | N/A |
| 2025 | $287,680 | $147,360 | $0 | $435,040 | $435,040 |
| 2024 | $272,200 | $123,840 | $0 | $396,040 | $396,040 |
| 2023 | $272,200 | $123,840 | $0 | $396,040 | $396,040 |
| 2022 | $272,200 | $101,600 | $0 | $373,800 | $45,600 |
| 2021 | $194,430 | $101,600 | $0 | $296,030 | $45,600 |
| 2020 | $155,540 | $101,600 | $0 | $257,140 | $45,600 |
| 2019 | $155,540 | $101,600 | $0 | $257,140 | $45,600 |
| 2018 | $157,580 | $52,200 | $0 | $209,780 | $45,600 |
| 2017 | $150,080 | $52,200 | $0 | $202,280 | $45,600 |
| 2016 | $130,500 | $52,200 | $0 | $182,700 | $45,600 |
| 2015 | $130,500 | $52,200 | $0 | $182,700 | $45,600 |
| 2014 | $130,500 | $52,200 | $0 | $182,700 | $114,000 |
| 2013 | $130,500 | $52,200 | $0 | $182,700 | $114,000 |
| 2012 | $130,500 | $52,200 | $0 | $0 | $0 |
| 2011 | $130,500 | $52,200 | $0 | $0 | $0 |
| 2010 | $106,700 | $52,200 | $0 | $0 | $0 |
| 2009 | $124,300 | $52,200 | $0 | $0 | $0 |
| 2008 | $124,300 | $52,200 | $0 | $0 | $0 |
| 2007 | $91,000 | $29,700 | $0 | $0 | $0 |
Deed and Sales History
| 1 | 01/16/2024 | SWD | STATUTORY WARRANTY DEED | LORAN ROBERT P ESTATE OF | DUDLEY WILLIAM TIMOTHY & ELIZABETH HOLLIS | | | $415,000.00 | 147024 | 2024-00217 |
| 2 | 11/30/2017 | QCD | QUIT CLAIM DEED | LORAN ROBERT P & HELEN C | LORAN ROBERT P ESTATE OF | | | $0.00 | 133708 | 2017-09585 |
| 3 | 07/12/1994 | WARRANTY D | WARRANTY DEED | | | | | $108,000.00 | 82088 | 2219-408147 |
Payout Agreement
| No payout information available.. |