Property
Account |
| Property ID: | 30986 | Abbreviated Legal Description: | LYONS LOT 10 |
| Parcel Number: | 350735530010 | Agent Code: | |
| Type: | Real | | |
| Tax Area: | 75 - CP 250 | Land Use Code | 11 |
| Open Space: | N | DFL | N |
| Historic Property: | N | Remodel Property: | N |
| Multi-Family Redevelopment: | N | | |
| Township: | 7 | Section: | 35 |
| Range: | 35 |
Location |
| Address: | 1027 SW BADE AVE WA 99324 | Mapsco: | |
| Neighborhood: | A SFR | Map ID: | |
| Neighborhood CD: | 113011 |
Owner |
| Name: | SANCHEZ JOSE G | Owner ID: | 57583 |
| Mailing Address: | 1027 SW BADE AVE COLLEGE PLACE, WA 99324 | % Ownership: | 100.0000000000% |
| | | Exemptions: | |
Taxes and Assessment Details
Property Tax Information as of
02/21/2026
Click on "Statement Details" to expand or collapse a tax statement.
* Please enter a valid date ** Please enter a valid date *
Statement Details |
| | TOTAL: | $0.00 | $0.00 | $0.00 | $0.00 | $0.00 | $0.00 |
|
| | $0.00 | $0.00 | $0.00 | $0.00 | $0.00 | $0.00 |
Values
| (+) Improvement Homesite Value: | + | $313,380 | |
| (+) Improvement Non-Homesite Value: | + | $0 | |
| (+) Land Homesite Value: | + | $61,530 | |
| (+) Land Non-Homesite Value: | + | $0 | |
| (+) Curr Use (HS): | + | $0 | $0 |
| (+) Curr Use (NHS): | + | $0 | $0 |
| | | -------------------------- | |
| (=) Market Value: | = | $374,910 | |
| (–) Productivity Loss: | – | $0 | |
| | | -------------------------- | |
| (=) Subtotal: | = | $374,910 | |
| (+) Senior Appraised Value: | + | $0 | |
| (+) Non-Senior Appraised Value: | + | $374,910 | |
| | | -------------------------- | |
| (=) Total Appraised Value: | = | $374,910 | |
| (–) Senior Exemption Loss: | – | $0 | |
| (–) Exemption Loss: | – | $0 | |
| | | -------------------------- | |
| (=) Taxable Value: | = | $374,910 | |
Taxing Jurisdiction
| Owner: | SANCHEZ JOSE G | | |
| % Ownership: | 100.0000000000% | | |
| Total Value: | $374,910 | | |
| Tax Area: | 75 - CP 250 |
| CERFD | CURRENT EXPENSE REFUND 010 | 0.0000000000 | $374,910 | $374,910 | $0.00 | | |
| CURREXP | CURRENT EXPENSE 010 | 1.0175366760 | $374,910 | $374,910 | $381.48 | | |
| HUMNSERV | HUMAN SERVICES 119 | 0.0250000000 | $374,910 | $374,910 | $9.37 | | |
| SLDREL | SOLDIERS RELIEF 121 | 0.0155990005 | $374,910 | $374,910 | $5.85 | | |
| COLLPLBOND | C OF CP BOND 644 | 0.4374241808 | $374,910 | $374,910 | $163.99 | | |
| COLLPLGEN | CITY OF CP 632 | 1.4453819216 | $374,910 | $374,910 | $541.89 | | |
| EMERGSER | EMS 147 | 0.3792580840 | $374,910 | $374,910 | $142.19 | | |
| EMSRFD | EMS REFUND 147 | 0.0000000000 | $374,910 | $374,910 | $0.00 | | |
| RURALLIB | RURAL LIBRARY 623 | 0.3710609029 | $374,910 | $374,910 | $139.11 | | |
| PORTRFD | PORT REFUND 640 | 0.0000000000 | $374,910 | $374,910 | $0.00 | | |
| PORTWWGEN | PORT OF WW 640 | 0.2460186015 | $374,910 | $374,910 | $92.23 | | |
| SD250BOND | SD #250 BOND 773 | 1.4560608159 | $374,910 | $374,910 | $545.89 | | |
| SD250GEN | SD #250 GENERAL 770 | 2.3880724087 | $374,910 | $374,910 | $895.31 | | |
| ST2 | STATE SCHOOL PART 2 600 | 0.8131451643 | $374,910 | $374,910 | $304.86 | | |
| STATESCHL | STATE SCHOOL 600 | 1.5158548041 | $374,910 | $374,910 | $568.31 | | |
| STREFUND | STATE REFUND LEVY 603 | 0.0000000000 | $374,910 | $374,910 | $0.00 | | |
| | Total Tax Rate: | 10.1104125603 | | | | | |
| | | | | Taxes w/Current Exemptions: | $3,790.48 | | |
| | | | | Taxes w/o Exemptions: | $3,790.48 | | |
Improvement / Building
| Improvement #1: | RESIDENTIAL | State Code: | 11 | 1854.0 sqft | Value: | $313,380 |
| Exterior Wall: | PLYWOOD | Foundation: | SLAB FOUNDATION | | Heating/Cooling: | WARM & COOLED AIR | Number of Bathrooms: | 2 | | Number of Bedrooms: | 4 | Plumbing: | 9 | | Roof Covering: | COMP SHINGLE |   |   |
|
| | Type | Description | Class CD | Sub Class CD | Year Built | Area |
| | MA | Main Area | 1 | 30 | 1974 | 1854.0 |
| | SI1 | SITE IMPROVEMENT | 1 | 30 | 1974 | 2.5 |
| | DTG | Detached Garage | 1 | 30 | 1974 | 864.0 |
| | RPO | OPEN PORCH W/ROOF | 1 | 30 | 1974 | 120.0 |
| | WDR | WOOD DECK W/ROOF | 1 | 30 | 1974 | 258.0 |
Sketch
Property Image
Land
| 1 | RES 1 | Converted: Residential | 0.2410 | 10500.00 | 0.00 | 0.00 | 1.00 | $61,530 | $0 |
Roll Value History
| 2026 | N/A | N/A | N/A | N/A | N/A |
| 2025 | $313,380 | $91,770 | $0 | $405,150 | $405,150 |
| 2024 | $313,380 | $61,530 | $0 | $374,910 | $374,910 |
| 2023 | $313,380 | $61,530 | $0 | $374,910 | $374,910 |
| 2022 | $261,150 | $61,530 | $0 | $322,680 | $322,680 |
| 2021 | $208,920 | $61,530 | $0 | $270,450 | $270,450 |
| 2020 | $181,670 | $61,530 | $0 | $243,200 | $243,200 |
| 2019 | $195,600 | $47,600 | $0 | $243,200 | $243,200 |
| 2018 | $170,090 | $47,600 | $0 | $217,690 | $217,690 |
| 2017 | $147,900 | $47,600 | $0 | $195,500 | $195,500 |
| 2016 | $147,900 | $47,600 | $0 | $195,500 | $195,500 |
| 2015 | $147,900 | $47,600 | $0 | $195,500 | $195,500 |
| 2014 | $147,900 | $47,600 | $0 | $195,500 | $195,500 |
| 2013 | $147,900 | $47,600 | $0 | $195,500 | $142,700 |
| 2012 | $147,900 | $47,600 | $0 | $0 | $0 |
| 2011 | $147,900 | $47,600 | $0 | $0 | $0 |
| 2010 | $141,000 | $47,600 | $0 | $0 | $0 |
| 2009 | $162,000 | $47,600 | $0 | $0 | $0 |
| 2008 | $117,500 | $25,200 | $0 | $0 | $0 |
| 2007 | $117,500 | $25,200 | $0 | $0 | $0 |
Deed and Sales History
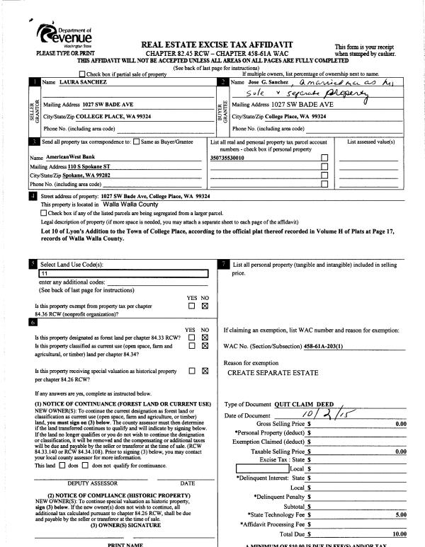
| 1 | 10/05/2015 | QCD | QUIT CLAIM DEED | SANCHEZ LAURA | SANCHEZ JOSE G | | | | 128945 | 2015-08761 |
| 2 | 10/05/2015 | SWD | STATUTORY WARRANTY DEED | ARIAS CLEDIA M | SANCHEZ JOSE G | | | $199,700.00 | 128944 | 2015-08760 |
| 3 | 09/28/2015 | DEATH CERT | DEATH CERTIFICATE | ARIAS JOSE R | ARIAS CLEDIA M | | | | 0 | 2015-08444 |
| 4 | 09/28/2015 | COMMUNITY | COMMUNITY PROPERTY AGREEMENT | ARIAS JOSE R & CLEDIA M | ARIAS JOSE R & CLEDIA M | | | | 0 | 2015-08445 |
| 5 | 12/01/1986 | WARRANTY D | WARRANTY DEED | | | | | $59,000.00 | 0 | 1608-609349 |
Payout Agreement
| No payout information available.. |