Property
Account |
| Property ID: | 30983 | Abbreviated Legal Description: | BLALOCK ORCHARDS W 156.32' OF LOT 3 BLK 9 |
| Parcel Number: | 350723520903 | Agent Code: | |
| Type: | Real | | |
| Tax Area: | 311 - 250-4 | Land Use Code | 11 |
| Open Space: | N | DFL | N |
| Historic Property: | N | Remodel Property: | N |
| Multi-Family Redevelopment: | N | | |
| Township: | 7 | Section: | 23 |
| Range: | 35 |
Location |
| Address: | 839 NEWTOWN RD WA 99324 | Mapsco: | |
| Neighborhood: | A SFR Rural/City Infl | Map ID: | |
| Neighborhood CD: | 313012 |
Owner |
| Name: | BECKNER BRADLEY & KARA | Owner ID: | 67825 |
| Mailing Address: | 839 NEWTOWN RD WALLA WALLA, WA 99362 | % Ownership: | 100.0000000000% |
| | | Exemptions: | |
Taxes and Assessment Details
Property Tax Information as of
02/21/2026
Click on "Statement Details" to expand or collapse a tax statement.
* Please enter a valid date ** Please enter a valid date *
Statement Details |
| | TOTAL: | $0.00 | $0.00 | $0.00 | $0.00 | $0.00 | $0.00 |
|
| | $0.00 | $0.00 | $0.00 | $0.00 | $0.00 | $0.00 |
Values
| (+) Improvement Homesite Value: | + | $0 | |
| (+) Improvement Non-Homesite Value: | + | $334,810 | |
| (+) Land Homesite Value: | + | $0 | |
| (+) Land Non-Homesite Value: | + | $132,500 | |
| (+) Curr Use (HS): | + | $0 | $0 |
| (+) Curr Use (NHS): | + | $0 | $0 |
| | | -------------------------- | |
| (=) Market Value: | = | $467,310 | |
| (–) Productivity Loss: | – | $0 | |
| | | -------------------------- | |
| (=) Subtotal: | = | $467,310 | |
| (+) Senior Appraised Value: | + | $0 | |
| (+) Non-Senior Appraised Value: | + | $467,310 | |
| | | -------------------------- | |
| (=) Total Appraised Value: | = | $467,310 | |
| (–) Senior Exemption Loss: | – | $0 | |
| (–) Exemption Loss: | – | $0 | |
| | | -------------------------- | |
| (=) Taxable Value: | = | $467,310 | |
Taxing Jurisdiction
| Owner: | BECKNER BRADLEY & KARA | | |
| % Ownership: | 100.0000000000% | | |
| Total Value: | $467,310 | | |
| Tax Area: | 311 - 250-4 |
| CERFD | CURRENT EXPENSE REFUND 010 | 0.0000000000 | $467,310 | $467,310 | $0.00 | | |
| CURREXP | CURRENT EXPENSE 010 | 1.0175366760 | $467,310 | $467,310 | $475.51 | | |
| HUMNSERV | HUMAN SERVICES 119 | 0.0250000000 | $467,310 | $467,310 | $11.68 | | |
| SLDREL | SOLDIERS RELIEF 121 | 0.0155990005 | $467,310 | $467,310 | $7.29 | | |
| EMERGSER | EMS 147 | 0.3792580840 | $467,310 | $467,310 | $177.23 | | |
| EMSRFD | EMS REFUND 147 | 0.0000000000 | $467,310 | $467,310 | $0.00 | | |
| FD4EXP | FD #4 EXPENSE 686 | 0.8836993059 | $467,310 | $467,310 | $412.96 | | |
| RLBRFD | RURAL LIBRARY REFUND 623 | 0.0000000000 | $467,310 | $467,310 | $0.00 | | |
| RURALLIB | RURAL LIBRARY 623 | 0.3710609029 | $467,310 | $467,310 | $173.40 | | |
| PORTRFD | PORT REFUND 640 | 0.0000000000 | $467,310 | $467,310 | $0.00 | | |
| PORTWWGEN | PORT OF WW 640 | 0.2460186015 | $467,310 | $467,310 | $114.97 | | |
| SD250BOND | SD #250 BOND 773 | 1.4560608159 | $467,310 | $467,310 | $680.43 | | |
| SD250GEN | SD #250 GENERAL 770 | 2.3880724087 | $467,310 | $467,310 | $1,115.97 | | |
| ST2 | STATE SCHOOL PART 2 600 | 0.8131451643 | $467,310 | $467,310 | $379.99 | | |
| STATESCHL | STATE SCHOOL 600 | 1.5158548041 | $467,310 | $467,310 | $708.37 | | |
| STREFUND | STATE REFUND LEVY 603 | 0.0000000000 | $467,310 | $467,310 | $0.00 | | |
| COROAD | COUNTY ROAD 115 | 1.6549953990 | $467,310 | $467,310 | $773.40 | | |
| CRPRD | COUNTY ROAD REFUND 115 | 0.0000000000 | $467,310 | $467,310 | $0.00 | | |
| | Total Tax Rate: | 10.7663011628 | | | | | |
| | | | | Taxes w/Current Exemptions: | $5,031.20 | | |
| | | | | Taxes w/o Exemptions: | $5,031.20 | | |
Improvement / Building
| Improvement #1: | RESIDENTIAL | State Code: | 11 | 1451.0 sqft | Value: | $334,810 |
| Exterior Wall: | CEMENT FIBER | Heating/Cooling: | HEAT PUMP | | Number of Bathrooms: | 2 | Number of Bedrooms: | 3 | | Plumbing: | 10 | Roof Covering: | COMP SHINGLE |
|
| | Type | Description | Class CD | Sub Class CD | Year Built | Area |
| | MA | Main Area | 1 | 35 | 2021 | 1451.0 |
| | SI1 | SITE IMPROVEMENT | 1 | 35 | 2021 | 4.0 |
| | ATG | Attached Garage | 1 | 35 | 2021 | 440.0 |
| | RPO | OPEN PORCH W/ROOF | 1 | 35 | 2021 | 42.0 |
| | RPO | OPEN PORCH W/ROOF | 1 | 35 | 2021 | 128.0 |
Sketch
Property Image
Land
| 1 | RES 1 | Converted: Residential | 1.5000 | 0.00 | 0.00 | 0.00 | 1.00 | $132,500 | $0 |
Roll Value History
| 2026 | N/A | N/A | N/A | N/A | N/A |
| 2025 | $434,540 | $132,500 | $0 | $567,040 | $567,040 |
| 2024 | $377,860 | $132,500 | $0 | $510,360 | $510,360 |
| 2023 | $334,810 | $132,500 | $0 | $467,310 | $467,310 |
| 2022 | $269,010 | $132,500 | $0 | $401,510 | $401,510 |
| 2021 | $0 | $79,000 | $0 | $79,000 | $79,000 |
| 2020 | $0 | $79,000 | $0 | $79,000 | $79,000 |
| 2019 | $2,580 | $79,000 | $0 | $81,580 | $21,580 |
| 2018 | $2,580 | $79,000 | $0 | $81,580 | $21,580 |
| 2017 | $2,580 | $79,000 | $0 | $81,580 | $21,580 |
| 2016 | $2,580 | $79,000 | $0 | $81,580 | $21,580 |
| 2015 | $2,700 | $79,000 | $0 | $81,700 | $21,700 |
| 2014 | $2,700 | $79,000 | $0 | $81,700 | $21,700 |
| 2013 | $2,700 | $79,000 | $0 | $81,700 | $81,700 |
| 2012 | $2,700 | $79,000 | $0 | $0 | $0 |
| 2011 | $2,700 | $79,000 | $0 | $0 | $0 |
| 2010 | $0 | $77,700 | $0 | $0 | $0 |
| 2009 | $7,600 | $47,000 | $0 | $0 | $0 |
| 2008 | $7,600 | $47,000 | $0 | $0 | $0 |
| 2007 | $7,600 | $47,000 | $0 | $0 | $0 |
Deed and Sales History
| 1 | 08/26/2020 | SWD | STATUTORY WARRANTY DEED | BECKNER DANIEL R & BARBARA A | BECKNER BRADLEY & KARA | | | $152,000.00 | 139772 | 2020-08558 |
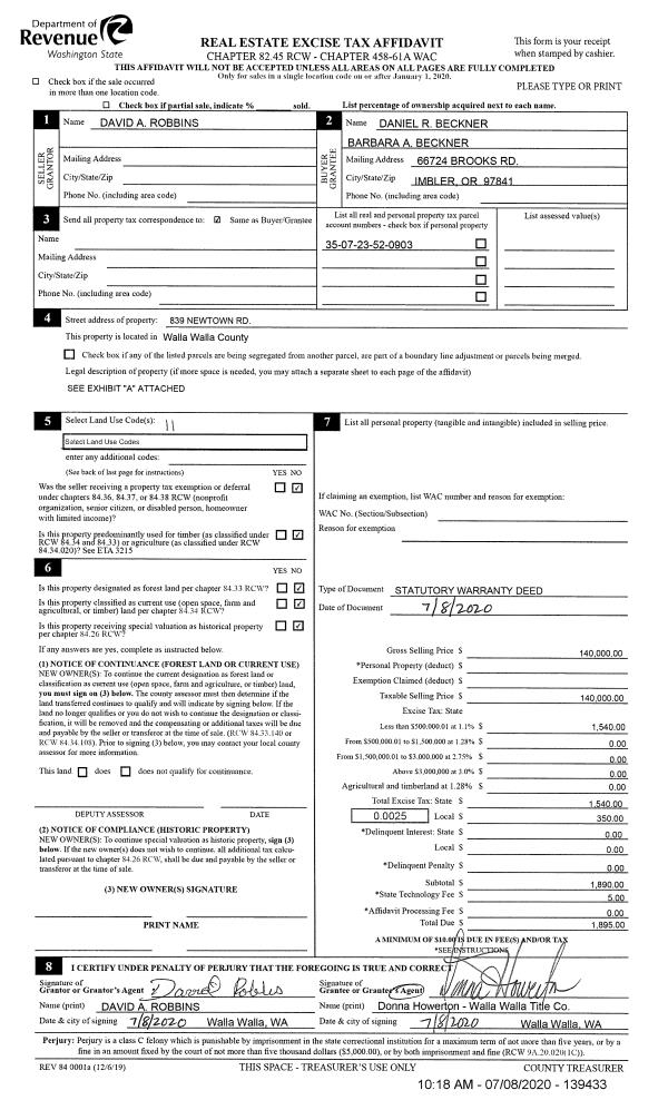
| 2 | 07/08/2020 | SWD | STATUTORY WARRANTY DEED | ROBBINS DAVID A | BECKNER DANIEL R & BARBARA A | | | $140,000.00 | 139433 | 2020-06422 |
Payout Agreement
| No payout information available.. |