Property
Account |
| Property ID: | 30973 | Abbreviated Legal Description: | MT VISTA ADDN LOT 17 BLK 1 |
| Parcel Number: | 350725560117 | Agent Code: | |
| Type: | Real | | |
| Tax Area: | 75 - CP 250 | Land Use Code | 11 |
| Open Space: | N | DFL | N |
| Historic Property: | N | Remodel Property: | N |
| Multi-Family Redevelopment: | N | | |
| Township: | 7 | Section: | 25 |
| Range: | 35 |
Location |
| Address: | 22 NE TREMONT DR WA 99324 | Mapsco: | |
| Neighborhood: | G SFR | Map ID: | |
| Neighborhood CD: | 114011 |
Owner |
| Name: | WRIGHT IRA ROSS IV & MICHELLE LYNN | Owner ID: | 70623 |
| Mailing Address: | 22 NE TREMONT DR COLLEGE PLACE, WA 99324 | % Ownership: | 100.0000000000% |
| | | Exemptions: | |
Taxes and Assessment Details
Values
| (+) Improvement Homesite Value: | + | $0 | |
| (+) Improvement Non-Homesite Value: | + | $332,790 | |
| (+) Land Homesite Value: | + | $0 | |
| (+) Land Non-Homesite Value: | + | $75,000 | |
| (+) Curr Use (HS): | + | $0 | $0 |
| (+) Curr Use (NHS): | + | $0 | $0 |
| | | -------------------------- | |
| (=) Market Value: | = | $407,790 | |
| (–) Productivity Loss: | – | $0 | |
| | | -------------------------- | |
| (=) Subtotal: | = | $407,790 | |
| (+) Senior Appraised Value: | + | $0 | |
| (+) Non-Senior Appraised Value: | + | $407,790 | |
| | | -------------------------- | |
| (=) Total Appraised Value: | = | $407,790 | |
| (–) Senior Exemption Loss: | – | $0 | |
| (–) Exemption Loss: | – | $0 | |
| | | -------------------------- | |
| (=) Taxable Value: | = | $407,790 | |
Taxing Jurisdiction
| Owner: | WRIGHT IRA ROSS IV & MICHELLE LYNN | | |
| % Ownership: | 100.0000000000% | | |
| Total Value: | $407,790 | | |
| Tax Area: | 75 - CP 250 |
| CERFD | CURRENT EXPENSE REFUND 010 | 0.0000000000 | $407,790 | $407,790 | $0.00 | | |
| CURREXP | CURRENT EXPENSE 010 | 1.0175366760 | $407,790 | $407,790 | $414.94 | | |
| HUMNSERV | HUMAN SERVICES 119 | 0.0250000000 | $407,790 | $407,790 | $10.19 | | |
| SLDREL | SOLDIERS RELIEF 121 | 0.0155990005 | $407,790 | $407,790 | $6.36 | | |
| COLLPLBOND | C OF CP BOND 644 | 0.4374241808 | $407,790 | $407,790 | $178.38 | | |
| COLLPLGEN | CITY OF CP 632 | 1.4453819216 | $407,790 | $407,790 | $589.41 | | |
| EMERGSER | EMS 147 | 0.3792580840 | $407,790 | $407,790 | $154.66 | | |
| EMSRFD | EMS REFUND 147 | 0.0000000000 | $407,790 | $407,790 | $0.00 | | |
| RURALLIB | RURAL LIBRARY 623 | 0.3710609029 | $407,790 | $407,790 | $151.31 | | |
| PORTRFD | PORT REFUND 640 | 0.0000000000 | $407,790 | $407,790 | $0.00 | | |
| PORTWWGEN | PORT OF WW 640 | 0.2460186015 | $407,790 | $407,790 | $100.32 | | |
| SD250BOND | SD #250 BOND 773 | 1.4560608159 | $407,790 | $407,790 | $593.77 | | |
| SD250GEN | SD #250 GENERAL 770 | 2.3880724087 | $407,790 | $407,790 | $973.83 | | |
| ST2 | STATE SCHOOL PART 2 600 | 0.8131451643 | $407,790 | $407,790 | $331.59 | | |
| STATESCHL | STATE SCHOOL 600 | 1.5158548041 | $407,790 | $407,790 | $618.15 | | |
| STREFUND | STATE REFUND LEVY 603 | 0.0000000000 | $407,790 | $407,790 | $0.00 | | |
| | Total Tax Rate: | 10.1104125603 | | | | | |
| | | | | Taxes w/Current Exemptions: | $4,122.91 | | |
| | | | | Taxes w/o Exemptions: | $4,122.91 | | |
Improvement / Building
| Improvement #1: | RESIDENTIAL | State Code: | 11 | 1464.0 sqft | Value: | $332,790 |
| Exterior Wall: | SIDING | Heating/Cooling: | WARM & COOLED AIR | | Number of Bathrooms: | 2 | Number of Bedrooms: | 3 | | Plumbing: | 9 | Roof Covering: | COMP SHINGLE |
|
| | Type | Description | Class CD | Sub Class CD | Year Built | Area |
| | MA | Main Area | 1 | 35 | 1965 | 1464.0 |
| | SI1 | SITE IMPROVEMENT | 1 | 35 | 1965 | 2.0 |
| | BASE | BASEMENT | 1 | 35 | 1965 | 1464.0 |
| | ATG | Attached Garage | 1 | 35 | 1965 | 462.0 |
| | RPC | OPEN PORCH W/ROOF , CEILED | 1 | 35 | 1965 | 116.0 |
| | D2F | Double 2 Story Fireplace | 1 | 35 | 1965 | 1.0 |
| | RPC | OPEN PORCH W/ROOF , CEILED | 1 | 35 | 1965 | 198.0 |
Sketch
Property Image
Land
| 1 | RES 1 | Converted: Residential | 0.2893 | 12600.00 | 0.00 | 0.00 | 1.00 | $75,000 | $0 |
Roll Value History
| 2026 | N/A | N/A | N/A | N/A | N/A |
| 2025 | $366,070 | $125,000 | $0 | $491,070 | $491,070 |
| 2024 | $332,790 | $75,000 | $0 | $407,790 | $407,790 |
| 2023 | $332,790 | $75,000 | $0 | $407,790 | $407,790 |
| 2022 | $332,790 | $75,000 | $0 | $407,790 | $407,790 |
| 2021 | $229,510 | $75,000 | $0 | $304,510 | $304,510 |
| 2020 | $183,610 | $75,000 | $0 | $258,610 | $258,610 |
| 2019 | $198,610 | $60,000 | $0 | $258,610 | $258,610 |
| 2018 | $158,890 | $60,000 | $0 | $218,890 | $218,890 |
| 2017 | $105,920 | $60,000 | $0 | $165,920 | $165,920 |
| 2016 | $100,880 | $60,000 | $0 | $160,880 | $160,880 |
| 2015 | $100,880 | $60,000 | $0 | $160,880 | $160,880 |
| 2014 | $126,100 | $60,000 | $0 | $186,100 | $186,100 |
| 2013 | $126,100 | $60,000 | $0 | $186,100 | $186,100 |
| 2012 | $126,100 | $60,000 | $0 | $0 | $0 |
| 2011 | $126,100 | $60,000 | $0 | $0 | $0 |
| 2010 | $126,100 | $60,000 | $0 | $0 | $0 |
| 2009 | $135,900 | $60,000 | $0 | $0 | $0 |
| 2008 | $128,400 | $30,000 | $0 | $0 | $0 |
| 2007 | $128,400 | $30,000 | $0 | $0 | $0 |
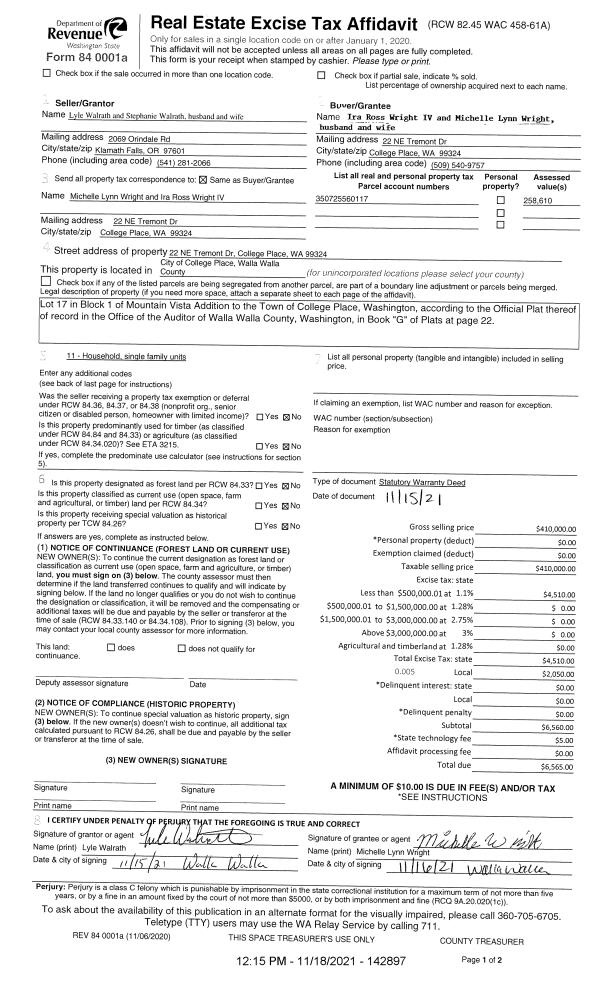
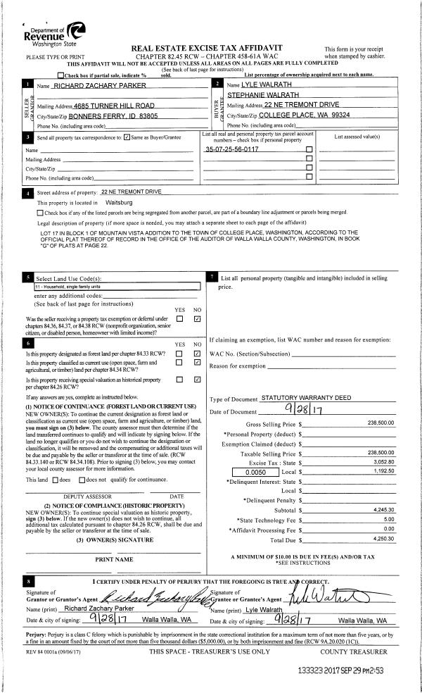
Deed and Sales History
| 1 | 11/18/2021 | SWD | STATUTORY WARRANTY DEED | WALRATH LYLE & STEPHANIE | WRIGHT IRA ROSS IV & MICHELLE LYNN | | | $410,000.00 | 142897 | 2021-13732 |
| 2 | 09/29/2017 | SWD | STATUTORY WARRANTY DEED | PARKER RICHARD ZACHARY | WALRATH LYLE & STEPHANIE | | | $238,500.00 | 133323 | 2017-07745 |
| 3 | 06/05/2015 | SWD | STATUTORY WARRANTY DEED | CHAMBERS HARRY D & ROBERTA B | PARKER RICHARD ZACHARY | | | $168,550.00 | 128112 | 2015-04753 |
| 4 | 05/10/2011 | QCD | QUIT CLAIM DEED | CHAMBERS, HARRY D | CHAMBERS, HARRY D & ROBERTA B | | | | 120101 | 2011-03668 |
| 5 | 02/25/2005 | WARRANTY D | WARRANTY DEED | CHAMBERS, JAMES R (DECEASED?) | CHAMBERS, HARRY D | | | | 106841 | 2005-02188 |
| 6 | 01/01/1966 | WARRANTY D | WARRANTY DEED | | | | | $2,400.00 | 0 | 3170-473526 |
Payout Agreement
| No payout information available.. |