Property
Account |
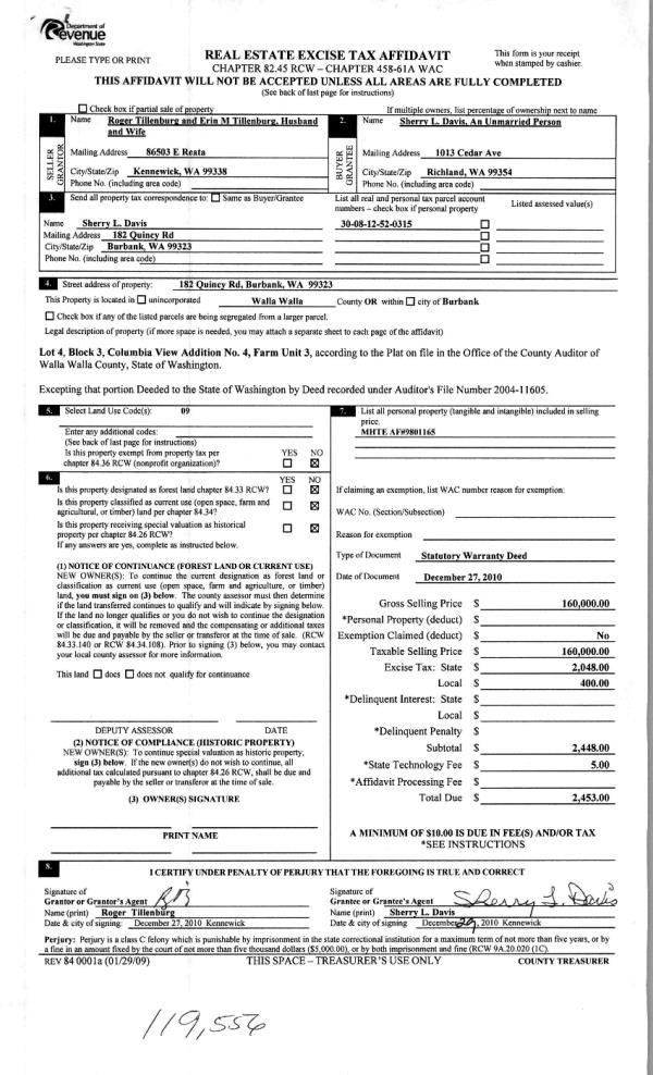
| Property ID: | 30883 | Abbreviated Legal Description: | COLUMBIA VIEW #4 LOT 4 BLK 3 LESS STRIP TO N FOR HWY |
| Parcel Number: | 300812520315 | Agent Code: | |
| Type: | Real | | |
| Tax Area: | 328 - 400-M-5 | Land Use Code | 11 |
| Open Space: | N | DFL | N |
| Historic Property: | N | Remodel Property: | N |
| Multi-Family Redevelopment: | N | | |
| Township: | 8 | Section: | 12 |
| Range: | 30 |
Location |
| Address: | 388 QUINCY RD WA 99323 | Mapsco: | |
| Neighborhood: | Burbank A MH | Map ID: | |
| Neighborhood CD: | 213761 |
Owner |
| Name: | TOLLBOM TRENNA RUTH | Owner ID: | 62709 |
| Mailing Address: | 388 QUINCY RD BURBANK, WA 99323 | % Ownership: | 100.0000000000% |
| | | Exemptions: | |
Taxes and Assessment Details
Property Tax Information as of
02/21/2026
Click on "Statement Details" to expand or collapse a tax statement.
* Please enter a valid date ** Please enter a valid date *
Statement Details |
| | TOTAL: | $0.00 | $0.00 | $0.00 | $0.00 | $0.00 | $0.00 |
|
| | $0.00 | $0.00 | $0.00 | $0.00 | $0.00 | $0.00 |
Values
| (+) Improvement Homesite Value: | + | $274,410 | |
| (+) Improvement Non-Homesite Value: | + | $0 | |
| (+) Land Homesite Value: | + | $63,260 | |
| (+) Land Non-Homesite Value: | + | $0 | |
| (+) Curr Use (HS): | + | $0 | $0 |
| (+) Curr Use (NHS): | + | $0 | $0 |
| | | -------------------------- | |
| (=) Market Value: | = | $337,670 | |
| (–) Productivity Loss: | – | $0 | |
| | | -------------------------- | |
| (=) Subtotal: | = | $337,670 | |
| (+) Senior Appraised Value: | + | $0 | |
| (+) Non-Senior Appraised Value: | + | $337,670 | |
| | | -------------------------- | |
| (=) Total Appraised Value: | = | $337,670 | |
| (–) Senior Exemption Loss: | – | $0 | |
| (–) Exemption Loss: | – | $0 | |
| | | -------------------------- | |
| (=) Taxable Value: | = | $337,670 | |
Taxing Jurisdiction
| Owner: | TOLLBOM TRENNA RUTH | | |
| % Ownership: | 100.0000000000% | | |
| Total Value: | $337,670 | | |
| Tax Area: | 328 - 400-M-5 |
| CERFD | CURRENT EXPENSE REFUND 010 | 0.0000000000 | $337,670 | $337,670 | $0.00 | | |
| CURREXP | CURRENT EXPENSE 010 | 1.0175366760 | $337,670 | $337,670 | $343.59 | | |
| HUMNSERV | HUMAN SERVICES 119 | 0.0250000000 | $337,670 | $337,670 | $8.44 | | |
| SLDREL | SOLDIERS RELIEF 121 | 0.0155990005 | $337,670 | $337,670 | $5.27 | | |
| EMERGSER | EMS 147 | 0.3792580840 | $337,670 | $337,670 | $128.06 | | |
| EMSRFD | EMS REFUND 147 | 0.0000000000 | $337,670 | $337,670 | $0.00 | | |
| FD5EXP | FD #5 EXPENSE 689 | 1.2045331840 | $337,670 | $337,670 | $406.73 | | |
| RLBRFD | RURAL LIBRARY REFUND 623 | 0.0000000000 | $337,670 | $337,670 | $0.00 | | |
| RURALLIB | RURAL LIBRARY 623 | 0.3710609029 | $337,670 | $337,670 | $125.30 | | |
| PORTRFD | PORT REFUND 640 | 0.0000000000 | $337,670 | $337,670 | $0.00 | | |
| PORTWWGEN | PORT OF WW 640 | 0.2460186015 | $337,670 | $337,670 | $83.07 | | |
| SD400BOND | SD #400 BOND 793 | 0.0000000000 | $337,670 | $337,670 | $0.00 | | |
| SD400CAP | SD #400 CP 792 | 0.3443722657 | $337,670 | $337,670 | $116.28 | | |
| SD400GEN | SD #400 GENERAL 790 | 1.9278469916 | $337,670 | $337,670 | $650.98 | | |
| ST2 | STATE SCHOOL PART 2 600 | 0.8131451643 | $337,670 | $337,670 | $274.57 | | |
| STATESCHL | STATE SCHOOL 600 | 1.5158548041 | $337,670 | $337,670 | $511.86 | | |
| STREFUND | STATE REFUND LEVY 603 | 0.0000000000 | $337,670 | $337,670 | $0.00 | | |
| COROAD | COUNTY ROAD 115 | 1.6549953990 | $337,670 | $337,670 | $558.84 | | |
| CRPRD | COUNTY ROAD REFUND 115 | 0.0000000000 | $337,670 | $337,670 | $0.00 | | |
| | Total Tax Rate: | 9.5152210736 | | | | | |
| | | | | Taxes w/Current Exemptions: | $3,212.99 | | |
| | | | | Taxes w/o Exemptions: | $3,212.99 | | |
Improvement / Building
| Improvement #1: | MANUFACTURED HOME | State Code: | 11 | 1620.0 sqft | Value: | $274,410 |
| Exterior Wall: | PLYWOOD | Heating/Cooling: | REV-HEAT-PUMP-W/DUCT | | Number of Bathrooms: | 2 | Number of Bedrooms: | 3 | | Plumbing: | 8 | Roof Covering: | COMP SHINGLE |
|
| | Type | Description | Class CD | Sub Class CD | Year Built | Area |
| | MOBHOME | MANUFACTURD HOMES | 1 | 30 | 1998 | 1620.0 |
| | SI1 | SITE IMPROVEMENT | 1 | 30 | 1998 | 1.5 |
| | POL2 | POLE BUILDING-CONCRETE | 1 | 30 | 1998 | 1020.0 |
| | WDR | WOOD DECK W/ROOF | 1 | 30 | 1998 | 200.0 |
Sketch
Property Image
Land
| 1 | RES 1 | Converted: Residential | 0.5480 | 23870.00 | 0.00 | 0.00 | 1.00 | $63,260 | $0 |
Roll Value History
| 2026 | N/A | N/A | N/A | N/A | N/A |
| 2025 | $288,140 | $63,260 | $0 | $351,400 | $351,400 |
| 2024 | $274,410 | $63,260 | $0 | $337,670 | $337,670 |
| 2023 | $274,410 | $63,260 | $0 | $337,670 | $337,670 |
| 2022 | $219,530 | $63,260 | $0 | $282,790 | $282,790 |
| 2021 | $168,870 | $63,260 | $0 | $232,130 | $232,130 |
| 2020 | $146,080 | $28,400 | $0 | $174,480 | $174,480 |
| 2019 | $146,080 | $28,400 | $0 | $174,480 | $174,480 |
| 2018 | $146,080 | $28,400 | $0 | $174,480 | $174,480 |
| 2017 | $139,130 | $28,400 | $0 | $167,530 | $167,530 |
| 2016 | $132,500 | $28,400 | $0 | $160,900 | $160,900 |
| 2015 | $132,500 | $28,400 | $0 | $160,900 | $160,900 |
| 2014 | $132,500 | $28,400 | $0 | $160,900 | $45,400 |
| 2013 | $132,500 | $28,400 | $0 | $160,900 | $45,400 |
| 2012 | $124,800 | $28,400 | $0 | $0 | $0 |
| 2011 | $85,100 | $28,400 | $0 | $0 | $0 |
| 2010 | $85,100 | $28,400 | $0 | $0 | $0 |
| 2009 | $97,700 | $27,700 | $0 | $0 | $0 |
| 2008 | $55,900 | $27,700 | $0 | $0 | $0 |
| 2007 | $55,900 | $27,700 | $0 | $0 | $0 |
Deed and Sales History
| 1 | 06/16/2017 | COURT CASE | COURT CASE | LEE TRENNA RUTH | TOLLBOM TRENNA RUTH | | | | 0 | CC 17-3-0064-1 |
| 2 | 07/26/2017 | QCD | QUIT CLAIM DEED | LEE MARION D & TRENNA R | LEE TRENNA RUTH | | | $0.00 | 132876 | 2017-05824 |
| 3 | 07/30/2015 | SWD | STATUTORY WARRANTY DEED | DAVIS SHERRY L | LEE MARION D & TRENNA R | | | $169,900.00 | 128498 | 2015-06537 |
| 4 | 12/30/2010 | WARRANTY D | WARRANTY DEED | TILLENBURG, ERIN | DAVIS, SHERRY L | | | $160,000.00 | 119556 | 2010-10876 |
Payout Agreement
| No payout information available.. |