Property
Account |
| Property ID: | 30814 | Abbreviated Legal Description: | BRYANTS LOT 24 BLOCK 4 |
| Parcel Number: | 360728530426 | Agent Code: | |
| Type: | Real | | |
| Tax Area: | 1 - OL-140-F | Land Use Code | 11 |
| Open Space: | N | DFL | N |
| Historic Property: | N | Remodel Property: | N |
| Multi-Family Redevelopment: | N | | |
| Township: | 7 | Section: | 28 |
| Range: | 36 |
Location |
| Address: | 601 JUNIPER ST WA 99362 | Mapsco: | |
| Neighborhood: | A Res | Map ID: | |
| Neighborhood CD: | 613011 |
Owner |
| Name: | WITHERINGTON JAMES W IV & KATHRYN L | Owner ID: | 73413 |
| Mailing Address: | 601 JUNIPER ST WALLA WALLA, WA 99362 | % Ownership: | 100.0000000000% |
| | | Exemptions: | |
Taxes and Assessment Details
Values
| (+) Improvement Homesite Value: | + | $0 | |
| (+) Improvement Non-Homesite Value: | + | $251,220 | |
| (+) Land Homesite Value: | + | $0 | |
| (+) Land Non-Homesite Value: | + | $70,000 | |
| (+) Curr Use (HS): | + | $0 | $0 |
| (+) Curr Use (NHS): | + | $0 | $0 |
| | | -------------------------- | |
| (=) Market Value: | = | $321,220 | |
| (–) Productivity Loss: | – | $0 | |
| | | -------------------------- | |
| (=) Subtotal: | = | $321,220 | |
| (+) Senior Appraised Value: | + | $0 | |
| (+) Non-Senior Appraised Value: | + | $321,220 | |
| | | -------------------------- | |
| (=) Total Appraised Value: | = | $321,220 | |
| (–) Senior Exemption Loss: | – | $0 | |
| (–) Exemption Loss: | – | $0 | |
| | | -------------------------- | |
| (=) Taxable Value: | = | $321,220 | |
Taxing Jurisdiction
| Owner: | WITHERINGTON JAMES W IV & KATHRYN L | | |
| % Ownership: | 100.0000000000% | | |
| Total Value: | $321,220 | | |
| Tax Area: | 1 - OL-140-F |
| CERFD | CURRENT EXPENSE REFUND 010 | 0.0000000000 | $321,220 | $321,220 | $0.00 | | |
| CURREXP | CURRENT EXPENSE 010 | 1.0175366760 | $321,220 | $321,220 | $326.85 | | |
| HUMNSERV | HUMAN SERVICES 119 | 0.0250000000 | $321,220 | $321,220 | $8.03 | | |
| SLDREL | SOLDIERS RELIEF 121 | 0.0155990005 | $321,220 | $321,220 | $5.01 | | |
| EMERGSER | EMS 147 | 0.3792580840 | $321,220 | $321,220 | $121.83 | | |
| EMSRFD | EMS REFUND 147 | 0.0000000000 | $321,220 | $321,220 | $0.00 | | |
| PORTRFD | PORT REFUND 640 | 0.0000000000 | $321,220 | $321,220 | $0.00 | | |
| PORTWWGEN | PORT OF WW 640 | 0.2460186015 | $321,220 | $321,220 | $79.03 | | |
| SD140BOND | SD #140 BOND 764 | 0.8342371393 | $321,220 | $321,220 | $267.97 | | |
| SD140GEN | SD #140 GENERAL 760 | 2.0646500647 | $321,220 | $321,220 | $663.21 | | |
| ST2 | STATE SCHOOL PART 2 600 | 0.8131451643 | $321,220 | $321,220 | $261.20 | | |
| STATESCHL | STATE SCHOOL 600 | 1.5158548041 | $321,220 | $321,220 | $486.92 | | |
| STREFUND | STATE REFUND LEVY 603 | 0.0000000000 | $321,220 | $321,220 | $0.00 | | |
| CWWBOND | C OF WW BOND 643 | 0.2760494372 | $321,220 | $321,220 | $88.67 | | |
| CWWGEN | CITY OF WW 631 | 1.6100204973 | $321,220 | $321,220 | $517.17 | | |
| CWWRFD | CITY OF WALLA WALLA REFUND 631 | 0.0000000000 | $321,220 | $321,220 | $0.00 | | |
| | Total Tax Rate: | 8.7973694689 | | | | | |
| | | | | Taxes w/Current Exemptions: | $2,825.89 | | |
| | | | | Taxes w/o Exemptions: | $2,825.89 | | |
Improvement / Building
| Improvement #1: | RESIDENTIAL | State Code: | 11 | 1695.0 sqft | Value: | $251,220 |
| Exterior Wall: | VINYL | Heating/Cooling: | WARM & COOLED AIR | | Number of Bathrooms: | 1.5 | Number of Bedrooms: | 4 | | Plumbing: | 9 | Roof Covering: | COMP SHINGLE |
|
| | Type | Description | Class CD | Sub Class CD | Year Built | Area |
| | MA | Main Area | 4 | 25 | 1900 | 1695.0 |
| | UPFL | Upper Floor (included in main area) | 4 | 25 | 1900 | 700.0 |
| | SI1 | SITE IMPROVEMENT | 4 | 25 | 1900 | 1.0 |
| | RPS | PORCH W/STEPS,ROOF | 4 | 25 | 1900 | 25.0 |
| | SWP | Solid Wall Porch | 4 | 25 | 1900 | 91.0 |
| | DTG | Detached Garage | 4 | 25 | 1900 | 264.0 |
| | CPC | COVERED CARPORT/PATIO | 4 | 25 | 1900 | 306.0 |
Sketch
Property Image
Land
| 1 | RES 1 | Converted: Residential | 0.1377 | 5997.00 | 0.00 | 0.00 | 1.00 | $70,000 | $0 |
Roll Value History
| 2026 | N/A | N/A | N/A | N/A | N/A |
| 2025 | $293,360 | $65,970 | $0 | $359,330 | $359,330 |
| 2024 | $251,220 | $70,000 | $0 | $321,220 | $321,220 |
| 2023 | $251,220 | $70,000 | $0 | $321,220 | $321,220 |
| 2022 | $239,260 | $55,000 | $0 | $294,260 | $294,260 |
| 2021 | $184,040 | $55,000 | $0 | $239,040 | $239,040 |
| 2020 | $131,460 | $55,000 | $0 | $186,460 | $186,460 |
| 2019 | $131,460 | $55,000 | $0 | $186,460 | $186,460 |
| 2018 | $120,080 | $36,000 | $0 | $156,080 | $156,080 |
| 2017 | $100,070 | $36,000 | $0 | $136,070 | $136,070 |
| 2016 | $100,070 | $36,000 | $0 | $136,070 | $136,070 |
| 2015 | $100,070 | $36,000 | $0 | $136,070 | $136,070 |
| 2014 | $95,300 | $36,000 | $0 | $131,300 | $131,300 |
| 2013 | $95,300 | $36,000 | $0 | $131,300 | $131,300 |
| 2012 | $88,900 | $36,000 | $0 | $0 | $0 |
| 2011 | $88,900 | $36,000 | $0 | $0 | $0 |
| 2010 | $88,900 | $36,000 | $0 | $0 | $0 |
| 2009 | $102,800 | $36,000 | $0 | $0 | $0 |
| 2008 | $102,800 | $36,000 | $0 | $0 | $0 |
| 2007 | $68,400 | $18,000 | $0 | $0 | $0 |
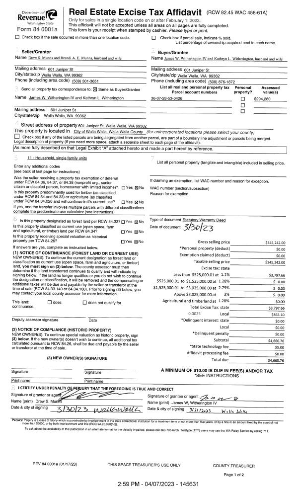
Deed and Sales History
| 1 | 04/07/2023 | SWD | STATUTORY WARRANTY DEED | MUNNS DREW S & BRANDI A E | WITHERINGTON JAMES W IV & KATHRYN L | | | $345,242.00 | 145631 | 2023-01816 |
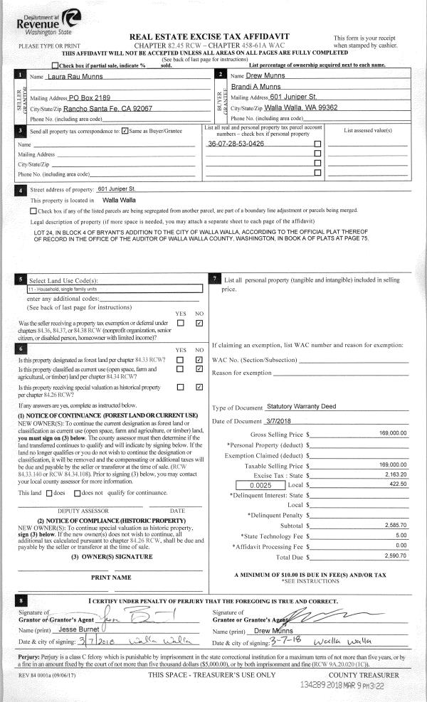
| 2 | 03/09/2018 | SWD | STATUTORY WARRANTY DEED | MUNNS LAURA RAU | MUNNS DREW S & BRANDI A E | | | $169,000.00 | 134289 | 2018-01889 |
| 3 | 12/29/2011 | WARRANTY D | WARRANTY DEED | BAKER BOYER NATIONAL BANK | MUNNS, LAURA RAU | | | $75,000.00 | 121189 | 2011-10298 |
| 4 | 04/12/2011 | WARRANTY D | WARRANTY DEED | LUTCHER, GREGORY AS TRUSTEE FO | BAKER BOYER NATIONAL BANK | | | $130,239.00 | 120000 | 2011-03021 |
Payout Agreement
| No payout information available.. |