Property
Account |
| Property ID: | 30811 | Abbreviated Legal Description: | MELODY PARK LOT 21 BLK 3 |
| Parcel Number: | 360716530321 | Agent Code: | |
| Type: | Real | | |
| Tax Area: | 5 - OL-140 | Land Use Code | 11 |
| Open Space: | N | DFL | N |
| Historic Property: | N | Remodel Property: | N |
| Multi-Family Redevelopment: | N | | |
| Township: | 7 | Section: | 16 |
| Range: | 36 |
Location |
| Address: | 629 CARDINAL DR WA 99362 | Mapsco: | |
| Neighborhood: | A-Superior SFR | Map ID: | |
| Neighborhood CD: | 513211 |
Owner |
| Name: | HUDSON GARRETT D | Owner ID: | 60871 |
| Mailing Address: | 629 CARDINAL DR WALLA WALLA, WA 99362 | % Ownership: | 100.0000000000% |
| | | Exemptions: | |
Taxes and Assessment Details
Property Tax Information as of
02/21/2026
Click on "Statement Details" to expand or collapse a tax statement.
* Please enter a valid date ** Please enter a valid date *
Statement Details |
| | TOTAL: | $0.00 | $0.00 | $0.00 | $0.00 | $0.00 | $0.00 |
|
| | $0.00 | $0.00 | $0.00 | $0.00 | $0.00 | $0.00 |
Values
| (+) Improvement Homesite Value: | + | $281,280 | |
| (+) Improvement Non-Homesite Value: | + | $0 | |
| (+) Land Homesite Value: | + | $50,040 | |
| (+) Land Non-Homesite Value: | + | $0 | |
| (+) Curr Use (HS): | + | $0 | $0 |
| (+) Curr Use (NHS): | + | $0 | $0 |
| | | -------------------------- | |
| (=) Market Value: | = | $331,320 | |
| (–) Productivity Loss: | – | $0 | |
| | | -------------------------- | |
| (=) Subtotal: | = | $331,320 | |
| (+) Senior Appraised Value: | + | $0 | |
| (+) Non-Senior Appraised Value: | + | $331,320 | |
| | | -------------------------- | |
| (=) Total Appraised Value: | = | $331,320 | |
| (–) Senior Exemption Loss: | – | $0 | |
| (–) Exemption Loss: | – | $0 | |
| | | -------------------------- | |
| (=) Taxable Value: | = | $331,320 | |
Taxing Jurisdiction
| Owner: | HUDSON GARRETT D | | |
| % Ownership: | 100.0000000000% | | |
| Total Value: | $331,320 | | |
| Tax Area: | 5 - OL-140 |
| CERFD | CURRENT EXPENSE REFUND 010 | 0.0000000000 | $331,320 | $331,320 | $0.00 | | |
| CURREXP | CURRENT EXPENSE 010 | 1.0175366760 | $331,320 | $331,320 | $337.13 | | |
| HUMNSERV | HUMAN SERVICES 119 | 0.0250000000 | $331,320 | $331,320 | $8.28 | | |
| SLDREL | SOLDIERS RELIEF 121 | 0.0155990005 | $331,320 | $331,320 | $5.17 | | |
| EMERGSER | EMS 147 | 0.3792580840 | $331,320 | $331,320 | $125.66 | | |
| EMSRFD | EMS REFUND 147 | 0.0000000000 | $331,320 | $331,320 | $0.00 | | |
| PORTRFD | PORT REFUND 640 | 0.0000000000 | $331,320 | $331,320 | $0.00 | | |
| PORTWWGEN | PORT OF WW 640 | 0.2460186015 | $331,320 | $331,320 | $81.51 | | |
| SD140BOND | SD #140 BOND 764 | 0.8342371393 | $331,320 | $331,320 | $276.40 | | |
| SD140GEN | SD #140 GENERAL 760 | 2.0646500647 | $331,320 | $331,320 | $684.06 | | |
| ST2 | STATE SCHOOL PART 2 600 | 0.8131451643 | $331,320 | $331,320 | $269.41 | | |
| STATESCHL | STATE SCHOOL 600 | 1.5158548041 | $331,320 | $331,320 | $502.23 | | |
| STREFUND | STATE REFUND LEVY 603 | 0.0000000000 | $331,320 | $331,320 | $0.00 | | |
| CWWBOND | C OF WW BOND 643 | 0.2760494372 | $331,320 | $331,320 | $91.46 | | |
| CWWGEN | CITY OF WW 631 | 1.6100204973 | $331,320 | $331,320 | $533.43 | | |
| CWWRFD | CITY OF WALLA WALLA REFUND 631 | 0.0000000000 | $331,320 | $331,320 | $0.00 | | |
| | Total Tax Rate: | 8.7973694689 | | | | | |
| | | | | Taxes w/Current Exemptions: | $2,914.74 | | |
| | | | | Taxes w/o Exemptions: | $2,914.74 | | |
Improvement / Building
| Improvement #1: | RESIDENTIAL | State Code: | 11 | 1000.0 sqft | Value: | $281,280 |
| Exterior Wall: | SIDING | Heating/Cooling: | WARM & COOLED AIR | | Number of Bathrooms: | 1 | Number of Bedrooms: | 2 | | Plumbing: | 6 | Roof Covering: | COMP SHINGLE |
|
| | Type | Description | Class CD | Sub Class CD | Year Built | Area |
| | MA | Main Area | 1 | 30 | 1969 | 1000.0 |
| | CPC | COVERED CARPORT/PATIO | 1 | 30 | 0 | 580.0 |
| | SI1 | SITE IMPROVEMENT | 1 | 30 | 0 | 1.5 |
| | BASE | BASEMENT | 1 | 30 | 1969 | 1000.0 |
| | BPF | BASEMENT -PARTITIONED FINISH | 1 | 30 | 1969 | 1000.0 |
| | RPO | OPEN PORCH W/ROOF | 1 | 30 | 1969 | 84.0 |
| | DTG | Detached Garage | 1 | 30 | 1969 | 576.0 |
Sketch
Property Image
Land
| 1 | RES 1 | Converted: Residential | 0.1838 | 8007.00 | 0.00 | 0.00 | 1.00 | $50,040 | $0 |
Roll Value History
| 2026 | N/A | N/A | N/A | N/A | N/A |
| 2025 | $281,840 | $80,070 | $0 | $361,910 | $361,910 |
| 2024 | $245,080 | $80,070 | $0 | $325,150 | $325,150 |
| 2023 | $281,280 | $50,040 | $0 | $331,320 | $331,320 |
| 2022 | $267,890 | $50,040 | $0 | $317,930 | $317,930 |
| 2021 | $184,750 | $50,040 | $0 | $234,790 | $234,790 |
| 2020 | $160,650 | $50,040 | $0 | $210,690 | $210,690 |
| 2019 | $160,650 | $50,040 | $0 | $210,690 | $210,690 |
| 2018 | $153,000 | $50,040 | $0 | $203,040 | $203,040 |
| 2017 | $130,300 | $32,000 | $0 | $162,300 | $162,300 |
| 2016 | $104,240 | $32,000 | $0 | $136,240 | $136,240 |
| 2015 | $104,240 | $32,000 | $0 | $136,240 | $136,240 |
| 2014 | $130,300 | $32,000 | $0 | $162,300 | $162,300 |
| 2013 | $130,300 | $32,000 | $0 | $162,300 | $92,300 |
| 2012 | $130,300 | $32,000 | $0 | $0 | $0 |
| 2011 | $122,600 | $32,000 | $0 | $0 | $0 |
| 2010 | $115,200 | $32,000 | $0 | $0 | $0 |
| 2009 | $131,600 | $32,000 | $0 | $0 | $0 |
| 2008 | $110,300 | $32,000 | $0 | $0 | $0 |
| 2007 | $110,300 | $32,000 | $0 | $0 | $0 |
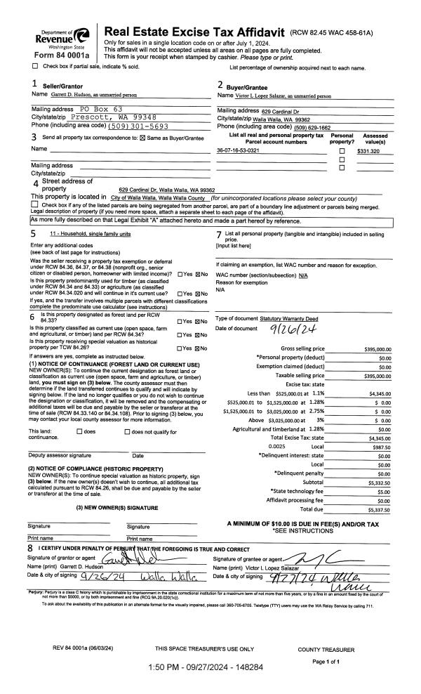
Deed and Sales History
| 1 | 09/27/2024 | SWD | STATUTORY WARRANTY DEED | HUDSON GARRETT D | SALAZAR VICTOR L LOPEZ | | | $395,000.00 | 148284 | 2024-05612 |
| 2 | 05/19/2017 | SWD | STATUTORY WARRANTY DEED | OLSON ROBERT J | HUDSON GARRETT D | | | $210,000.00 | 132433 | 2017-03802 |
| 3 | 12/18/2014 | SWD | STATUTORY WARRANTY DEED | LANDERS RICHARD C | OLSON ROBERT J | | | $120,000.00 | 127127 | 2014-09192 |
Payout Agreement
| No payout information available.. |