Property
Account |
| Property ID: | 30784 | Abbreviated Legal Description: | VILLAGES OF GARRISON CRK PHASE V LOT 70 |
| Parcel Number: | 350736920024 | Agent Code: | |
| Type: | Real | | |
| Tax Area: | 77 - CP-250-F | Land Use Code | 11 |
| Open Space: | N | DFL | N |
| Historic Property: | N | Remodel Property: | N |
| Multi-Family Redevelopment: | N | | |
| Township: | 7 | Section: | 36 |
| Range: | 35 |
Location |
| Address: | 837 SE COVEY CT WA 99324 | Mapsco: | |
| Neighborhood: | G SFR | Map ID: | |
| Neighborhood CD: | 114011 |
Owner |
| Name: | CLARDY SUSAN SNEAD TRUST | Owner ID: | 59775 |
| Mailing Address: | 837 SE COVEY CT COLLEGE PLACE, WA 99324 | % Ownership: | 100.0000000000% |
| | | Exemptions: | |
Taxes and Assessment Details
Property Tax Information as of
02/21/2026
Click on "Statement Details" to expand or collapse a tax statement.
* Please enter a valid date ** Please enter a valid date *
Statement Details |
| | TOTAL: | $0.00 | $0.00 | $0.00 | $0.00 | $0.00 | $0.00 |
|
| | $0.00 | $0.00 | $0.00 | $0.00 | $0.00 | $0.00 |
Values
| (+) Improvement Homesite Value: | + | $0 | |
| (+) Improvement Non-Homesite Value: | + | $419,080 | |
| (+) Land Homesite Value: | + | $0 | |
| (+) Land Non-Homesite Value: | + | $100,000 | |
| (+) Curr Use (HS): | + | $0 | $0 |
| (+) Curr Use (NHS): | + | $0 | $0 |
| | | -------------------------- | |
| (=) Market Value: | = | $519,080 | |
| (–) Productivity Loss: | – | $0 | |
| | | -------------------------- | |
| (=) Subtotal: | = | $519,080 | |
| (+) Senior Appraised Value: | + | $0 | |
| (+) Non-Senior Appraised Value: | + | $519,080 | |
| | | -------------------------- | |
| (=) Total Appraised Value: | = | $519,080 | |
| (–) Senior Exemption Loss: | – | $0 | |
| (–) Exemption Loss: | – | $0 | |
| | | -------------------------- | |
| (=) Taxable Value: | = | $519,080 | |
Taxing Jurisdiction
| Owner: | CLARDY SUSAN SNEAD TRUST | | |
| % Ownership: | 100.0000000000% | | |
| Total Value: | $519,080 | | |
| Tax Area: | 77 - CP-250-F |
| CERFD | CURRENT EXPENSE REFUND 010 | 0.0000000000 | $519,080 | $519,080 | $0.00 | | |
| CURREXP | CURRENT EXPENSE 010 | 1.0175366760 | $519,080 | $519,080 | $528.18 | | |
| HUMNSERV | HUMAN SERVICES 119 | 0.0250000000 | $519,080 | $519,080 | $12.98 | | |
| SLDREL | SOLDIERS RELIEF 121 | 0.0155990005 | $519,080 | $519,080 | $8.10 | | |
| COLLPLBOND | C OF CP BOND 644 | 0.4374241808 | $519,080 | $519,080 | $227.06 | | |
| COLLPLGEN | CITY OF CP 632 | 1.4453819216 | $519,080 | $519,080 | $750.27 | | |
| EMERGSER | EMS 147 | 0.3792580840 | $519,080 | $519,080 | $196.87 | | |
| EMSRFD | EMS REFUND 147 | 0.0000000000 | $519,080 | $519,080 | $0.00 | | |
| RURALLIB | RURAL LIBRARY 623 | 0.3710609029 | $519,080 | $519,080 | $192.61 | | |
| PORTRFD | PORT REFUND 640 | 0.0000000000 | $519,080 | $519,080 | $0.00 | | |
| PORTWWGEN | PORT OF WW 640 | 0.2460186015 | $519,080 | $519,080 | $127.70 | | |
| SD250BOND | SD #250 BOND 773 | 1.4560608159 | $519,080 | $519,080 | $755.81 | | |
| SD250GEN | SD #250 GENERAL 770 | 2.3880724087 | $519,080 | $519,080 | $1,239.60 | | |
| ST2 | STATE SCHOOL PART 2 600 | 0.8131451643 | $519,080 | $519,080 | $422.09 | | |
| STATESCHL | STATE SCHOOL 600 | 1.5158548041 | $519,080 | $519,080 | $786.85 | | |
| STREFUND | STATE REFUND LEVY 603 | 0.0000000000 | $519,080 | $519,080 | $0.00 | | |
| | Total Tax Rate: | 10.1104125603 | | | | | |
| | | | | Taxes w/Current Exemptions: | $5,248.12 | | |
| | | | | Taxes w/o Exemptions: | $5,248.12 | | |
Improvement / Building
| Improvement #1: | RESIDENTIAL | State Code: | 11 | 1982.0 sqft | Value: | $419,080 |
| Exterior Wall: | PLYWOOD | Heating/Cooling: | WARM & COOLED AIR | | Number of Bathrooms: | 2 | Number of Bedrooms: | 2 | | Plumbing: | 11 | Roof Covering: | COMP SHINGLE |
|
| | Type | Description | Class CD | Sub Class CD | Year Built | Area |
| | MA | Main Area | 1 | 45 | 2000 | 1982.0 |
| | SI1 | SITE IMPROVEMENT | 1 | 45 | 2000 | 3.0 |
| | ATG | Attached Garage | 1 | 45 | 2000 | 480.0 |
| | RPC | OPEN PORCH W/ROOF , CEILED | 1 | 45 | 2000 | 96.0 |
| | WOD | Wood Deck | 1 | 45 | 2000 | 78.0 |
| | GFP | GAS FIREPLACE | 1 | 45 | 2000 | 1.0 |
Sketch
Property Image
Land
| 1 | RES 1 | Converted: Residential | 0.1852 | 8068.00 | 0.00 | 0.00 | 1.00 | $100,000 | $0 |
Roll Value History
| 2026 | N/A | N/A | N/A | N/A | N/A |
| 2025 | $419,080 | $175,000 | $0 | $594,080 | $594,080 |
| 2024 | $419,080 | $100,000 | $0 | $519,080 | $519,080 |
| 2023 | $419,080 | $100,000 | $0 | $519,080 | $519,080 |
| 2022 | $419,080 | $100,000 | $0 | $519,080 | $519,080 |
| 2021 | $279,380 | $100,000 | $0 | $379,380 | $379,380 |
| 2020 | $266,080 | $100,000 | $0 | $366,080 | $366,080 |
| 2019 | $271,080 | $95,000 | $0 | $366,080 | $366,080 |
| 2018 | $235,720 | $95,000 | $0 | $330,720 | $330,720 |
| 2017 | $224,500 | $95,000 | $0 | $319,500 | $319,500 |
| 2016 | $204,090 | $95,000 | $0 | $299,090 | $299,090 |
| 2015 | $194,370 | $95,000 | $0 | $289,370 | $289,370 |
| 2014 | $176,700 | $95,000 | $0 | $271,700 | $271,700 |
| 2013 | $176,700 | $95,000 | $0 | $271,700 | $271,700 |
| 2012 | $217,300 | $95,000 | $0 | $0 | $0 |
| 2011 | $237,300 | $75,000 | $0 | $0 | $0 |
| 2010 | $237,300 | $75,000 | $0 | $0 | $0 |
| 2009 | $253,700 | $75,000 | $0 | $0 | $0 |
| 2008 | $168,400 | $45,000 | $0 | $0 | $0 |
| 2007 | $168,400 | $45,000 | $0 | $0 | $0 |
Deed and Sales History
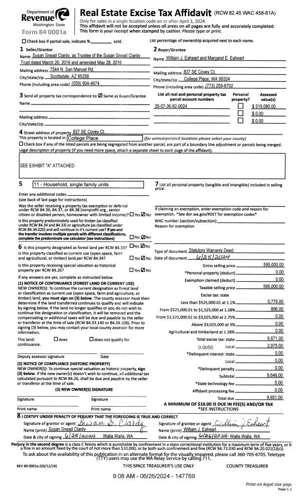
| 1 | 06/26/2024 | SWD | STATUTORY WARRANTY DEED | CLARDY SUSAN SNEAD TRUST | EAHEART WILLIAM J & MARGARET E | | | $595,000.00 | 147769 | 2024-03397 |
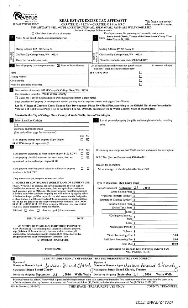
| 2 | 09/21/2016 | QCD | QUIT CLAIM DEED | CLARDY SUSAN SNEAD | CLARDY SUSAN SNEAD TRUST | | | $0.00 | 131127 | 2016-07932 |
| 3 | 06/30/2016 | SWD | STATUTORY WARRANTY DEED | BECK EDWIN C & JACQUELYN F TRUST | CLARDY SUSAN SNEAD | | | $345,000.00 | 130536 | 2016-05073 |
| 4 | 04/04/2011 | QCD | QUIT CLAIM DEED | BECK, EDWIN C & JACQUELYN | BECK, EDWIN C & JACQUELYN F TR | | | | 119970 | 2011-02790 |
| 5 | 12/01/1999 | WARRANTY D | WARRANTY DEED | | | | | $39,000.00 | 94098 | 2929-913521 |
Payout Agreement
| No payout information available.. |