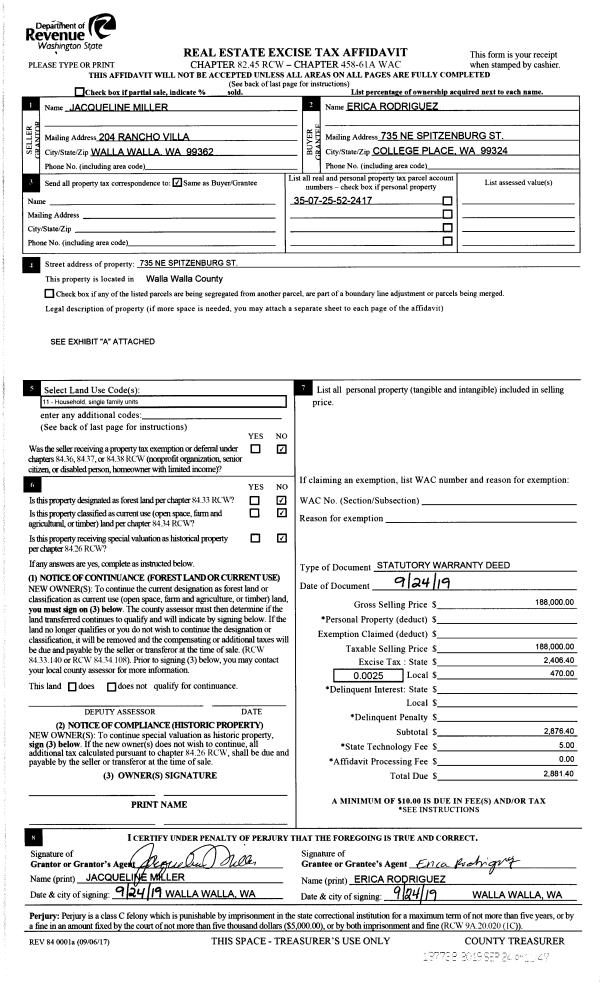
Property
Account |
| Property ID: | 30746 | Abbreviated Legal Description: | BLALOCK ORCHARDS TAX 10 LOT 1 BLK 24 |
| Parcel Number: | 350725522417 | Agent Code: | |
| Type: | Real | | |
| Tax Area: | 311 - 250-4 | Land Use Code | 11 |
| Open Space: | N | DFL | N |
| Historic Property: | N | Remodel Property: | N |
| Multi-Family Redevelopment: | N | | |
| Township: | 7 | Section: | 25 |
| Range: | 35 |
Location |
| Address: | 735 NE SPITZENBURG ST WA 99324 | Mapsco: | |
| Neighborhood: | A SFR | Map ID: | |
| Neighborhood CD: | 113011 |
Owner |
| Name: | RODRIGUEZ ERICA | Owner ID: | 66012 |
| Mailing Address: | 735 NE SPITZENBURG ST COLLEGE PLACE, WA 99324 | % Ownership: | 100.0000000000% |
| | | Exemptions: | |
Taxes and Assessment Details
Values
| (+) Improvement Homesite Value: | + | $183,300 | |
| (+) Improvement Non-Homesite Value: | + | $0 | |
| (+) Land Homesite Value: | + | $49,980 | |
| (+) Land Non-Homesite Value: | + | $0 | |
| (+) Curr Use (HS): | + | $0 | $0 |
| (+) Curr Use (NHS): | + | $0 | $0 |
| | | -------------------------- | |
| (=) Market Value: | = | $233,280 | |
| (–) Productivity Loss: | – | $0 | |
| | | -------------------------- | |
| (=) Subtotal: | = | $233,280 | |
| (+) Senior Appraised Value: | + | $0 | |
| (+) Non-Senior Appraised Value: | + | $233,280 | |
| | | -------------------------- | |
| (=) Total Appraised Value: | = | $233,280 | |
| (–) Senior Exemption Loss: | – | $0 | |
| (–) Exemption Loss: | – | $0 | |
| | | -------------------------- | |
| (=) Taxable Value: | = | $233,280 | |
Taxing Jurisdiction
| Owner: | RODRIGUEZ ERICA | | |
| % Ownership: | 100.0000000000% | | |
| Total Value: | $233,280 | | |
| Tax Area: | 311 - 250-4 |
| CERFD | CURRENT EXPENSE REFUND 010 | 0.0000000000 | $233,280 | $233,280 | $0.00 | | |
| CURREXP | CURRENT EXPENSE 010 | 1.0175366760 | $233,280 | $233,280 | $237.37 | | |
| HUMNSERV | HUMAN SERVICES 119 | 0.0250000000 | $233,280 | $233,280 | $5.83 | | |
| SLDREL | SOLDIERS RELIEF 121 | 0.0155990005 | $233,280 | $233,280 | $3.64 | | |
| EMERGSER | EMS 147 | 0.3792580840 | $233,280 | $233,280 | $88.47 | | |
| EMSRFD | EMS REFUND 147 | 0.0000000000 | $233,280 | $233,280 | $0.00 | | |
| FD4EXP | FD #4 EXPENSE 686 | 0.8836993059 | $233,280 | $233,280 | $206.15 | | |
| RLBRFD | RURAL LIBRARY REFUND 623 | 0.0000000000 | $233,280 | $233,280 | $0.00 | | |
| RURALLIB | RURAL LIBRARY 623 | 0.3710609029 | $233,280 | $233,280 | $86.56 | | |
| PORTRFD | PORT REFUND 640 | 0.0000000000 | $233,280 | $233,280 | $0.00 | | |
| PORTWWGEN | PORT OF WW 640 | 0.2460186015 | $233,280 | $233,280 | $57.39 | | |
| SD250BOND | SD #250 BOND 773 | 1.4560608159 | $233,280 | $233,280 | $339.67 | | |
| SD250GEN | SD #250 GENERAL 770 | 2.3880724087 | $233,280 | $233,280 | $557.09 | | |
| ST2 | STATE SCHOOL PART 2 600 | 0.8131451643 | $233,280 | $233,280 | $189.69 | | |
| STATESCHL | STATE SCHOOL 600 | 1.5158548041 | $233,280 | $233,280 | $353.62 | | |
| STREFUND | STATE REFUND LEVY 603 | 0.0000000000 | $233,280 | $233,280 | $0.00 | | |
| COROAD | COUNTY ROAD 115 | 1.6549953990 | $233,280 | $233,280 | $386.08 | | |
| CRPRD | COUNTY ROAD REFUND 115 | 0.0000000000 | $233,280 | $233,280 | $0.00 | | |
| | Total Tax Rate: | 10.7663011628 | | | | | |
| | | | | Taxes w/Current Exemptions: | $2,511.56 | | |
| | | | | Taxes w/o Exemptions: | $2,511.56 | | |
Improvement / Building
| Improvement #1: | RESIDENTIAL | State Code: | 11 | 1261.0 sqft | Value: | $183,300 |
| Exterior Wall: | SIDING | Heating/Cooling: | FORCED AIR | | Number of Bathrooms: | 2 | Number of Bedrooms: | 3 | | Plumbing: | 9 | Roof Covering: | COMP SHINGLE |
|
| | Type | Description | Class CD | Sub Class CD | Year Built | Area |
| | MA | Main Area | 1 | 25 | 1940 | 1261.0 |
| | SI1 | SITE IMPROVEMENT | 1 | 25 | 1940 | 1.0 |
| | OSP | Open | 1 | 25 | 1940 | 24.0 |
| | S1F | Single One Story Fireplace | 1 | 25 | 1940 | 1.0 |
| | CPC | COVERED CARPORT/PATIO | 1 | 25 | 1940 | 240.0 |
| | CPCD | CARPORT/DIRT FLOOR | 1 | 25 | 1940 | 240.0 |
Sketch
Property Image
Land
| 1 | RES 1 | Converted: Residential | 0.1700 | 7405.00 | 0.00 | 0.00 | 1.00 | $49,980 | $0 |
Roll Value History
| 2026 | N/A | N/A | N/A | N/A | N/A |
| 2025 | $230,960 | $74,050 | $0 | $305,010 | $305,010 |
| 2024 | $192,470 | $49,980 | $0 | $242,450 | $242,450 |
| 2023 | $183,300 | $49,980 | $0 | $233,280 | $233,280 |
| 2022 | $166,640 | $49,980 | $0 | $216,620 | $216,620 |
| 2021 | $158,710 | $49,980 | $0 | $208,690 | $208,690 |
| 2020 | $102,390 | $49,980 | $0 | $152,370 | $152,370 |
| 2019 | $107,970 | $44,400 | $0 | $152,370 | $152,370 |
| 2018 | $98,150 | $44,400 | $0 | $142,550 | $142,550 |
| 2017 | $81,800 | $44,400 | $0 | $126,200 | $126,200 |
| 2016 | $77,900 | $44,400 | $0 | $122,300 | $122,300 |
| 2015 | $77,900 | $44,400 | $0 | $122,300 | $122,300 |
| 2014 | $77,900 | $44,400 | $0 | $122,300 | $122,300 |
| 2013 | $77,900 | $44,400 | $0 | $122,300 | $122,300 |
| 2012 | $57,500 | $44,400 | $0 | $0 | $0 |
| 2011 | $57,500 | $44,400 | $0 | $0 | $0 |
| 2010 | $19,800 | $44,400 | $0 | $0 | $0 |
| 2009 | $70,400 | $44,400 | $0 | $0 | $0 |
| 2008 | $60,100 | $22,200 | $0 | $0 | $0 |
| 2007 | $60,100 | $22,200 | $0 | $0 | $0 |
Deed and Sales History
| 1 | 09/24/2019 | SWD | STATUTORY WARRANTY DEED | MILLER JACQUELINE | RODRIGUEZ ERICA | | | $188,000.00 | 137738 | 2019-07541 |
| 2 | 06/01/2011 | WARRANTY D | WARRANTY DEED | BENEFICIAL WASHINGTON INC | MILLER, JACQUELINE | | | $125,000.00 | 120228 | 2011-04284 |
| 3 | 03/09/2011 | WARRANTY D | WARRANTY DEED | GROOM, WILLIAM G | BENEFICIAL WASHINGTON INC | | | $119,674.00 | 119860 | 2011-02153 |
| 4 | 03/30/1990 | WARRANTY D | WARRANTY DEED | | | | | $44,900.00 | 0 | 1819-002123 |
Payout Agreement
| No payout information available.. |