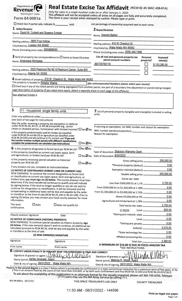
Property
Account |
| Property ID: | 30744 | Abbreviated Legal Description: | SOUTH PARK LOT 16 BLK A(1) |
| Parcel Number: | 360729760116 | Agent Code: | |
| Type: | Real | | |
| Tax Area: | 1 - OL-140-F | Land Use Code | 11 |
| Open Space: | N | DFL | N |
| Historic Property: | N | Remodel Property: | N |
| Multi-Family Redevelopment: | N | | |
| Township: | 7 | Section: | 29 |
| Range: | 36 |
Location |
| Address: | 410 W CHESTNUT ST WA 99362 | Mapsco: | |
| Neighborhood: | Fair Inferior Res | Map ID: | |
| Neighborhood CD: | 512111 |
Owner |
| Name: | BARKER ALANDRA | Owner ID: | 72185 |
| Mailing Address: | 410 W CHESTNUT ST WALLA WALLA, WA 99362 | % Ownership: | 100.0000000000% |
| | | Exemptions: | |
Taxes and Assessment Details
Property Tax Information as of
02/21/2026
Click on "Statement Details" to expand or collapse a tax statement.
* Please enter a valid date ** Please enter a valid date *
Statement Details |
| | TOTAL: | $0.00 | $0.00 | $0.00 | $0.00 | $0.00 | $0.00 |
|
| | $0.00 | $0.00 | $0.00 | $0.00 | $0.00 | $0.00 |
Values
| (+) Improvement Homesite Value: | + | $0 | |
| (+) Improvement Non-Homesite Value: | + | $181,770 | |
| (+) Land Homesite Value: | + | $0 | |
| (+) Land Non-Homesite Value: | + | $26,250 | |
| (+) Curr Use (HS): | + | $0 | $0 |
| (+) Curr Use (NHS): | + | $0 | $0 |
| | | -------------------------- | |
| (=) Market Value: | = | $208,020 | |
| (–) Productivity Loss: | – | $0 | |
| | | -------------------------- | |
| (=) Subtotal: | = | $208,020 | |
| (+) Senior Appraised Value: | + | $0 | |
| (+) Non-Senior Appraised Value: | + | $208,020 | |
| | | -------------------------- | |
| (=) Total Appraised Value: | = | $208,020 | |
| (–) Senior Exemption Loss: | – | $0 | |
| (–) Exemption Loss: | – | $0 | |
| | | -------------------------- | |
| (=) Taxable Value: | = | $208,020 | |
Taxing Jurisdiction
| Owner: | BARKER ALANDRA | | |
| % Ownership: | 100.0000000000% | | |
| Total Value: | $208,020 | | |
| Tax Area: | 1 - OL-140-F |
| CERFD | CURRENT EXPENSE REFUND 010 | 0.0000000000 | $208,020 | $208,020 | $0.00 | | |
| CURREXP | CURRENT EXPENSE 010 | 1.0175366760 | $208,020 | $208,020 | $211.67 | | |
| HUMNSERV | HUMAN SERVICES 119 | 0.0250000000 | $208,020 | $208,020 | $5.20 | | |
| SLDREL | SOLDIERS RELIEF 121 | 0.0155990005 | $208,020 | $208,020 | $3.24 | | |
| EMERGSER | EMS 147 | 0.3792580840 | $208,020 | $208,020 | $78.89 | | |
| EMSRFD | EMS REFUND 147 | 0.0000000000 | $208,020 | $208,020 | $0.00 | | |
| PORTRFD | PORT REFUND 640 | 0.0000000000 | $208,020 | $208,020 | $0.00 | | |
| PORTWWGEN | PORT OF WW 640 | 0.2460186015 | $208,020 | $208,020 | $51.18 | | |
| SD140BOND | SD #140 BOND 764 | 0.8342371393 | $208,020 | $208,020 | $173.54 | | |
| SD140GEN | SD #140 GENERAL 760 | 2.0646500647 | $208,020 | $208,020 | $429.49 | | |
| ST2 | STATE SCHOOL PART 2 600 | 0.8131451643 | $208,020 | $208,020 | $169.15 | | |
| STATESCHL | STATE SCHOOL 600 | 1.5158548041 | $208,020 | $208,020 | $315.33 | | |
| STREFUND | STATE REFUND LEVY 603 | 0.0000000000 | $208,020 | $208,020 | $0.00 | | |
| CWWBOND | C OF WW BOND 643 | 0.2760494372 | $208,020 | $208,020 | $57.42 | | |
| CWWGEN | CITY OF WW 631 | 1.6100204973 | $208,020 | $208,020 | $334.92 | | |
| CWWRFD | CITY OF WALLA WALLA REFUND 631 | 0.0000000000 | $208,020 | $208,020 | $0.00 | | |
| | Total Tax Rate: | 8.7973694689 | | | | | |
| | | | | Taxes w/Current Exemptions: | $1,830.03 | | |
| | | | | Taxes w/o Exemptions: | $1,830.03 | | |
Improvement / Building
| Improvement #1: | RESIDENTIAL | State Code: | 11 | 858.0 sqft | Value: | $181,770 |
| Exterior Wall: | STUCCO | Heating/Cooling: | FLOOR FURNACE | | Number of Bathrooms: | 1 | Number of Bedrooms: | 2 | | Plumbing: | 6 | Roof Covering: | COMP SHINGLE |
|
| | Type | Description | Class CD | Sub Class CD | Year Built | Area |
| | MA | Main Area | 1 | 25 | 1938 | 858.0 |
| | SI1 | SITE IMPROVEMENT | 1 | 25 | 1938 | 1.0 |
| | BASE | BASEMENT | 1 | 25 | 1938 | 288.0 |
| | RPS | PORCH W/STEPS,ROOF | 1 | 25 | 1938 | 48.0 |
| | SWP | Solid Wall Porch | 1 | 25 | 1938 | 60.0 |
| | CPC | COVERED CARPORT/PATIO | 1 | 25 | 1938 | 162.0 |
| | CPC | COVERED CARPORT/PATIO | 1 | 25 | 1938 | 304.0 |
| | TOOL | TOOL SHED | 1 | 25 | 1938 | 256.0 |
Sketch
Property Image
Land
| 1 | RES 1 | Converted: Residential | 0.1148 | 5000.00 | 0.00 | 0.00 | 1.00 | $26,250 | $0 |
Roll Value History
| 2026 | N/A | N/A | N/A | N/A | N/A |
| 2025 | $198,500 | $45,000 | $0 | $243,500 | $243,500 |
| 2024 | $198,500 | $45,000 | $0 | $243,500 | $243,500 |
| 2023 | $181,770 | $26,250 | $0 | $208,020 | $208,020 |
| 2022 | $113,610 | $26,250 | $0 | $139,860 | $139,860 |
| 2021 | $103,280 | $26,250 | $0 | $129,530 | $129,530 |
| 2020 | $73,770 | $26,250 | $0 | $100,020 | $100,020 |
| 2019 | $73,770 | $26,250 | $0 | $100,020 | $100,020 |
| 2018 | $73,770 | $26,250 | $0 | $100,020 | $100,020 |
| 2017 | $60,500 | $30,000 | $0 | $90,500 | $90,500 |
| 2016 | $55,000 | $30,000 | $0 | $85,000 | $85,000 |
| 2015 | $55,000 | $30,000 | $0 | $85,000 | $85,000 |
| 2014 | $55,000 | $30,000 | $0 | $85,000 | $85,000 |
| 2013 | $55,000 | $30,000 | $0 | $85,000 | $85,000 |
| 2012 | $60,800 | $30,000 | $0 | $0 | $0 |
| 2011 | $60,800 | $30,000 | $0 | $0 | $0 |
| 2010 | $76,800 | $30,000 | $0 | $0 | $0 |
| 2009 | $95,600 | $30,000 | $0 | $0 | $0 |
| 2008 | $95,600 | $30,000 | $0 | $0 | $0 |
| 2007 | $70,600 | $10,000 | $0 | $0 | $0 |
Deed and Sales History
| 1 | 08/31/2022 | SWD | STATUTORY WARRANTY DEED | CORBETT DAVID W & SHAWNA M | BARKER ALANDRA | | | $250,000.00 | 144596 | 2022-07302 |
| 2 | 03/03/2011 | QCD | QUIT CLAIM DEED | WYATT, DONALD ET AL | CORBETT, DAVID W & SHAWNA M | | | $40,500.00 | 119830 | 2011-01939 |
| 3 | 05/04/2006 | QCD | QUIT CLAIM DEED | BERTRAND, MARY FLORENCE | CORBETT, DAVID W & SHAWNA M | | | $4,000.00 | 110184 | 2006-05065 |
Payout Agreement
| No payout information available.. |