Property
Account |
| Property ID: | 30734 | Abbreviated Legal Description: | RITZ LOT 8 BLK 14 AND TRACT |
| Parcel Number: | 360730541408 | Agent Code: | |
| Type: | Real | | |
| Tax Area: | 1 - OL-140-F | Land Use Code | 11 |
| Open Space: | N | DFL | N |
| Historic Property: | N | Remodel Property: | N |
| Multi-Family Redevelopment: | N | | |
| Township: | 7 | Section: | 30 |
| Range: | 36 |
Location |
| Address: | 824 W BIRCH ST WA 99362 | Mapsco: | |
| Neighborhood: | A-SFR | Map ID: | |
| Neighborhood CD: | 313011 |
Owner |
| Name: | ENRIQUEZ NORBERTO & NORMA | Owner ID: | 54597 |
| Mailing Address: | 824 W BIRCH ST WALLA WALLA, WA 99362 | % Ownership: | 100.0000000000% |
| | | Exemptions: | |
Taxes and Assessment Details
Values
| (+) Improvement Homesite Value: | + | $0 | |
| (+) Improvement Non-Homesite Value: | + | $190,990 | |
| (+) Land Homesite Value: | + | $0 | |
| (+) Land Non-Homesite Value: | + | $53,630 | |
| (+) Curr Use (HS): | + | $0 | $0 |
| (+) Curr Use (NHS): | + | $0 | $0 |
| | | -------------------------- | |
| (=) Market Value: | = | $244,620 | |
| (–) Productivity Loss: | – | $0 | |
| | | -------------------------- | |
| (=) Subtotal: | = | $244,620 | |
| (+) Senior Appraised Value: | + | $0 | |
| (+) Non-Senior Appraised Value: | + | $244,620 | |
| | | -------------------------- | |
| (=) Total Appraised Value: | = | $244,620 | |
| (–) Senior Exemption Loss: | – | $0 | |
| (–) Exemption Loss: | – | $0 | |
| | | -------------------------- | |
| (=) Taxable Value: | = | $244,620 | |
Taxing Jurisdiction
| Owner: | ENRIQUEZ NORBERTO & NORMA | | |
| % Ownership: | 100.0000000000% | | |
| Total Value: | $244,620 | | |
| Tax Area: | 1 - OL-140-F |
| CERFD | CURRENT EXPENSE REFUND 010 | 0.0000000000 | $244,620 | $244,620 | $0.00 | | |
| CURREXP | CURRENT EXPENSE 010 | 1.0175366760 | $244,620 | $244,620 | $248.91 | | |
| HUMNSERV | HUMAN SERVICES 119 | 0.0250000000 | $244,620 | $244,620 | $6.12 | | |
| SLDREL | SOLDIERS RELIEF 121 | 0.0155990005 | $244,620 | $244,620 | $3.82 | | |
| EMERGSER | EMS 147 | 0.3792580840 | $244,620 | $244,620 | $92.77 | | |
| EMSRFD | EMS REFUND 147 | 0.0000000000 | $244,620 | $244,620 | $0.00 | | |
| PORTRFD | PORT REFUND 640 | 0.0000000000 | $244,620 | $244,620 | $0.00 | | |
| PORTWWGEN | PORT OF WW 640 | 0.2460186015 | $244,620 | $244,620 | $60.18 | | |
| SD140BOND | SD #140 BOND 764 | 0.8342371393 | $244,620 | $244,620 | $204.07 | | |
| SD140GEN | SD #140 GENERAL 760 | 2.0646500647 | $244,620 | $244,620 | $505.05 | | |
| ST2 | STATE SCHOOL PART 2 600 | 0.8131451643 | $244,620 | $244,620 | $198.91 | | |
| STATESCHL | STATE SCHOOL 600 | 1.5158548041 | $244,620 | $244,620 | $370.81 | | |
| STREFUND | STATE REFUND LEVY 603 | 0.0000000000 | $244,620 | $244,620 | $0.00 | | |
| CWWBOND | C OF WW BOND 643 | 0.2760494372 | $244,620 | $244,620 | $67.53 | | |
| CWWGEN | CITY OF WW 631 | 1.6100204973 | $244,620 | $244,620 | $393.84 | | |
| CWWRFD | CITY OF WALLA WALLA REFUND 631 | 0.0000000000 | $244,620 | $244,620 | $0.00 | | |
| | Total Tax Rate: | 8.7973694689 | | | | | |
| | | | | Taxes w/Current Exemptions: | $2,152.01 | | |
| | | | | Taxes w/o Exemptions: | $2,152.01 | | |
Improvement / Building
| Improvement #1: | RESIDENTIAL | State Code: | 11 | 1226.0 sqft | Value: | $190,990 |
| Exterior Wall: | VINYL | Heating/Cooling: | FORCED AIR | | Number of Bathrooms: | 1 | Number of Bedrooms: | 2 | | Plumbing: | 8 | Roof Covering: | COMP SHINGLE |
|
| | Type | Description | Class CD | Sub Class CD | Year Built | Area |
| | MA | Main Area | 1 | 30 | 1900 | 1226.0 |
| | SI1 | SITE IMPROVEMENT | 1 | 30 | 1900 | 1.0 |
| | BASE | BASEMENT | 1 | 30 | 1900 | 192.0 |
| | PRC | PORCH W STEPS, ROOF,CEILED | 1 | 30 | 1900 | 84.0 |
Sketch
Property Image
Land
| 1 | RES 1 | Converted: Residential | 0.1492 | 6500.00 | 0.00 | 0.00 | 1.00 | $53,630 | $0 |
Roll Value History
| 2026 | N/A | N/A | N/A | N/A | N/A |
| 2025 | $250,670 | $53,630 | $0 | $304,300 | $304,300 |
| 2024 | $238,730 | $53,630 | $0 | $292,360 | $292,360 |
| 2023 | $190,990 | $53,630 | $0 | $244,620 | $244,620 |
| 2022 | $181,890 | $53,630 | $0 | $235,520 | $235,520 |
| 2021 | $206,480 | $24,800 | $0 | $231,280 | $231,280 |
| 2020 | $125,140 | $24,800 | $0 | $149,940 | $149,940 |
| 2019 | $125,140 | $24,800 | $0 | $149,940 | $149,940 |
| 2018 | $119,180 | $24,800 | $0 | $143,980 | $143,980 |
| 2017 | $113,510 | $24,800 | $0 | $138,310 | $138,310 |
| 2016 | $108,100 | $24,800 | $0 | $132,900 | $132,900 |
| 2015 | $108,130 | $24,800 | $0 | $132,930 | $132,930 |
| 2014 | $98,300 | $24,800 | $0 | $123,100 | $123,100 |
| 2013 | $98,300 | $24,800 | $0 | $123,100 | $123,100 |
| 2012 | $98,300 | $24,800 | $0 | $0 | $0 |
| 2011 | $98,300 | $24,800 | $0 | $0 | $0 |
| 2010 | $102,400 | $24,800 | $0 | $0 | $0 |
| 2009 | $91,600 | $11,400 | $0 | $0 | $0 |
| 2008 | $53,000 | $11,400 | $0 | $0 | $0 |
| 2007 | $53,000 | $11,400 | $0 | $0 | $0 |
Deed and Sales History
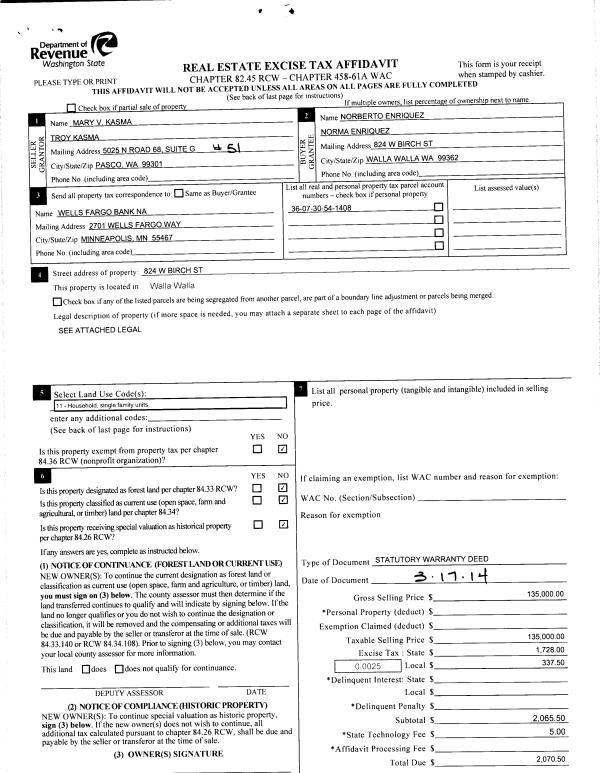
| 1 | 03/18/2014 | SWD | STATUTORY WARRANTY DEED | KASMA TROY & MARY V | ENRIQUEZ NORBERTO & NORMA | | | $135,000.00 | 125582 | 2014-01835 |
| 2 | 03/23/2011 | QCD | QUIT CLAIM DEED | KASMA, MARY V | KASMA, TROY & MARY V | | | | 119917 | 2011-02512 |
| 3 | 09/29/2008 | WARRANTY D | WARRANTY DEED | JOHNSON, MARTIN D & DIANNE L | KASMA, MARY V | | | $139,900.00 | 115716 | 2008-09971 |
| 4 | 09/29/2008 | QCD | QUIT CLAIM DEED | KASMA, TROY A | KASMA, MARY V | | | $0.00 | 115715 | 2008-09970 |
| 5 | 11/06/2006 | WARRANTY D | WARRANTY DEED | DANIEL, BARBARA G | JOHNSON, MARTIN D & DIANNE L | | | $88,800.00 | 111598 | 2006-13366 |
| 6 | 12/13/1995 | WARRANTY D | WARRANTY DEED | | | | | $63,000.00 | 85259 | 2360-000000 |
Payout Agreement
| No payout information available.. |