Property
Account |
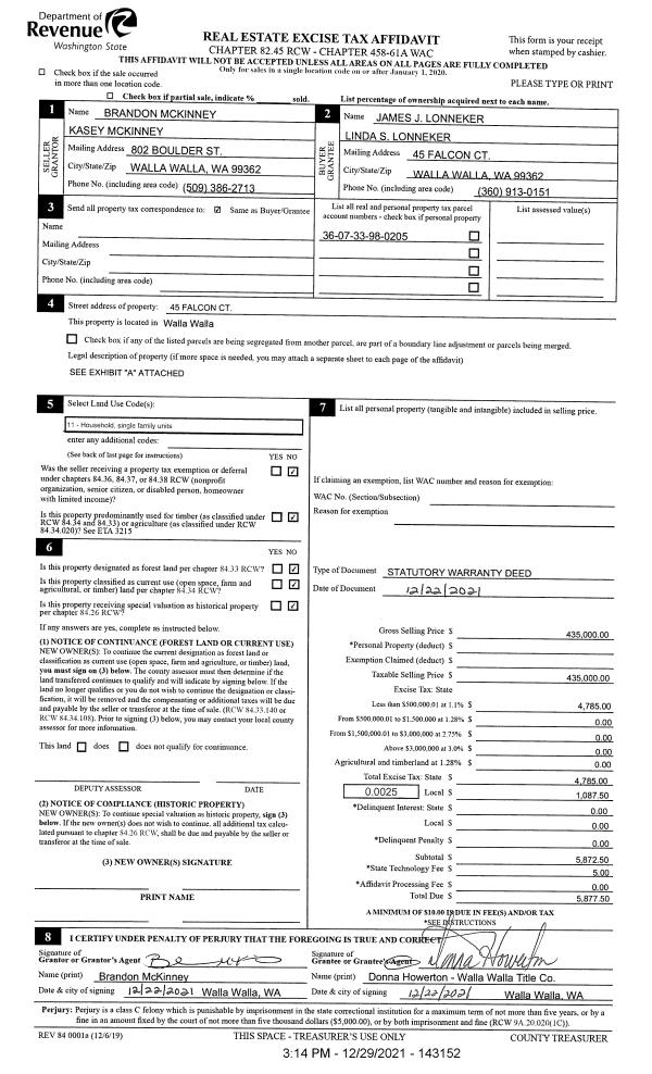
| Property ID: | 30714 | Abbreviated Legal Description: | TRIPLE CREEK MEADOWS PHASE 2 LOT 14 BLOCK 2 |
| Parcel Number: | 360733980205 | Agent Code: | |
| Type: | Real | | |
| Tax Area: | 5 - OL-140 | Land Use Code | 11 |
| Open Space: | N | DFL | N |
| Historic Property: | N | Remodel Property: | N |
| Multi-Family Redevelopment: | N | | |
| Township: | 7 | Section: | 33 |
| Range: | 36 |
Location |
| Address: | 45 FALCON CT WA 99362 | Mapsco: | |
| Neighborhood: | G Res Rural/City Inf | Map ID: | |
| Neighborhood CD: | 614012 |
Owner |
| Name: | LONNEKER JAMES J & LINDA S | Owner ID: | 70903 |
| Mailing Address: | 45 FALCON CT WALLA WALLA, WA 99362 | % Ownership: | 100.0000000000% |
| | | Exemptions: | |
Taxes and Assessment Details
Property Tax Information as of
02/21/2026
Click on "Statement Details" to expand or collapse a tax statement.
* Please enter a valid date ** Please enter a valid date *
Statement Details |
| | TOTAL: | $0.00 | $0.00 | $0.00 | $0.00 | $0.00 | $0.00 |
|
| | $0.00 | $0.00 | $0.00 | $0.00 | $0.00 | $0.00 |
Values
| (+) Improvement Homesite Value: | + | $0 | |
| (+) Improvement Non-Homesite Value: | + | $287,590 | |
| (+) Land Homesite Value: | + | $0 | |
| (+) Land Non-Homesite Value: | + | $100,000 | |
| (+) Curr Use (HS): | + | $0 | $0 |
| (+) Curr Use (NHS): | + | $0 | $0 |
| | | -------------------------- | |
| (=) Market Value: | = | $387,590 | |
| (–) Productivity Loss: | – | $0 | |
| | | -------------------------- | |
| (=) Subtotal: | = | $387,590 | |
| (+) Senior Appraised Value: | + | $0 | |
| (+) Non-Senior Appraised Value: | + | $387,590 | |
| | | -------------------------- | |
| (=) Total Appraised Value: | = | $387,590 | |
| (–) Senior Exemption Loss: | – | $0 | |
| (–) Exemption Loss: | – | $0 | |
| | | -------------------------- | |
| (=) Taxable Value: | = | $387,590 | |
Taxing Jurisdiction
| Owner: | LONNEKER JAMES J & LINDA S | | |
| % Ownership: | 100.0000000000% | | |
| Total Value: | $387,590 | | |
| Tax Area: | 5 - OL-140 |
| CERFD | CURRENT EXPENSE REFUND 010 | 0.0000000000 | $387,590 | $387,590 | $0.00 | | |
| CURREXP | CURRENT EXPENSE 010 | 1.0175366760 | $387,590 | $387,590 | $394.39 | | |
| HUMNSERV | HUMAN SERVICES 119 | 0.0250000000 | $387,590 | $387,590 | $9.69 | | |
| SLDREL | SOLDIERS RELIEF 121 | 0.0155990005 | $387,590 | $387,590 | $6.05 | | |
| EMERGSER | EMS 147 | 0.3792580840 | $387,590 | $387,590 | $147.00 | | |
| EMSRFD | EMS REFUND 147 | 0.0000000000 | $387,590 | $387,590 | $0.00 | | |
| PORTRFD | PORT REFUND 640 | 0.0000000000 | $387,590 | $387,590 | $0.00 | | |
| PORTWWGEN | PORT OF WW 640 | 0.2460186015 | $387,590 | $387,590 | $95.35 | | |
| SD140BOND | SD #140 BOND 764 | 0.8342371393 | $387,590 | $387,590 | $323.34 | | |
| SD140GEN | SD #140 GENERAL 760 | 2.0646500647 | $387,590 | $387,590 | $800.24 | | |
| ST2 | STATE SCHOOL PART 2 600 | 0.8131451643 | $387,590 | $387,590 | $315.17 | | |
| STATESCHL | STATE SCHOOL 600 | 1.5158548041 | $387,590 | $387,590 | $587.53 | | |
| STREFUND | STATE REFUND LEVY 603 | 0.0000000000 | $387,590 | $387,590 | $0.00 | | |
| CWWBOND | C OF WW BOND 643 | 0.2760494372 | $387,590 | $387,590 | $106.99 | | |
| CWWGEN | CITY OF WW 631 | 1.6100204973 | $387,590 | $387,590 | $624.03 | | |
| CWWRFD | CITY OF WALLA WALLA REFUND 631 | 0.0000000000 | $387,590 | $387,590 | $0.00 | | |
| | Total Tax Rate: | 8.7973694689 | | | | | |
| | | | | Taxes w/Current Exemptions: | $3,409.78 | | |
| | | | | Taxes w/o Exemptions: | $3,409.78 | | |
Improvement / Building
| Improvement #1: | RESIDENTIAL | State Code: | 11 | 1474.0 sqft | Value: | $287,590 |
| Exterior Wall: | STUCCO | Heating/Cooling: | WARM & COOLED AIR | | Number of Bathrooms: | 2 | Number of Bedrooms: | 3 | | Plumbing: | 10 | Roof Covering: | COMP SHINGLE |
|
| | Type | Description | Class CD | Sub Class CD | Year Built | Area |
| | MA | Main Area | 1 | 35 | 2010 | 1474.0 |
| | SI1 | SITE IMPROVEMENT | 1 | 35 | 2010 | 3.0 |
| | ATG | Attached Garage | 1 | 35 | 2010 | 420.0 |
| | GFP | GAS FIREPLACE | 1 | 35 | 2010 | 1.0 |
| | RPO | OPEN PORCH W/ROOF | 1 | 35 | 2010 | 44.0 |
| | OSP | Open | 1 | 35 | 2010 | 192.0 |
Sketch
Property Image
Land
| 1 | RES 1 | Converted: Residential | 0.2978 | 12970.00 | 0.00 | 0.00 | 1.00 | $100,000 | $0 |
Roll Value History
| 2026 | N/A | N/A | N/A | N/A | N/A |
| 2025 | $325,180 | $125,000 | $0 | $450,180 | $450,180 |
| 2024 | $287,590 | $100,000 | $0 | $387,590 | $387,590 |
| 2023 | $287,590 | $100,000 | $0 | $387,590 | $387,590 |
| 2022 | $287,590 | $85,000 | $0 | $372,590 | $372,590 |
| 2021 | $221,230 | $85,000 | $0 | $306,230 | $306,230 |
| 2020 | $163,870 | $85,000 | $0 | $248,870 | $248,870 |
| 2019 | $163,870 | $85,000 | $0 | $248,870 | $248,870 |
| 2018 | $188,930 | $50,000 | $0 | $238,930 | $238,930 |
| 2017 | $188,930 | $50,000 | $0 | $238,930 | $238,930 |
| 2016 | $164,290 | $50,000 | $0 | $214,290 | $214,290 |
| 2015 | $164,290 | $50,000 | $0 | $214,290 | $214,290 |
| 2014 | $159,500 | $50,000 | $0 | $209,500 | $209,500 |
| 2013 | $159,500 | $50,000 | $0 | $209,500 | $209,500 |
| 2012 | $154,500 | $55,000 | $0 | $0 | $0 |
| 2011 | $0 | $55,000 | $0 | $0 | $0 |
| 2010 | $0 | $55,000 | $0 | $0 | $0 |
| 2009 | $0 | $65,000 | $0 | $0 | $0 |
| 2008 | $0 | $65,000 | $0 | $0 | $0 |
| 2007 | $159,500 | $50,000 | $0 | $0 | $0 |
Deed and Sales History
| 1 | 12/29/2021 | SWD | STATUTORY WARRANTY DEED | MC KINNEY BRANDON & KASEY | LONNEKER JAMES J & LINDA S | | | $435,000.00 | 143152 | 2021-15143 |
| 2 | 09/12/2016 | QCD | QUIT CLAIM DEED | MC KINNEY BRANDON H | MC KINNEY BRANDON & KASEY | | | | 131013 | 2016-07434 |
| 3 | 03/01/2011 | WARRANTY D | WARRANTY DEED | DAWSON, BEN J | MC KINNEY, BRANDON H | | | $216,500.00 | 119818 | 2011-01905 |
| 4 | 08/25/2010 | WARRANTY D | WARRANTY DEED | MAJERUS, DOUGLAS | DAWSON, BEN J | | | $48,500.00 | 118908 | 2010-06569 |
Payout Agreement
| No payout information available.. |