Property
Account |
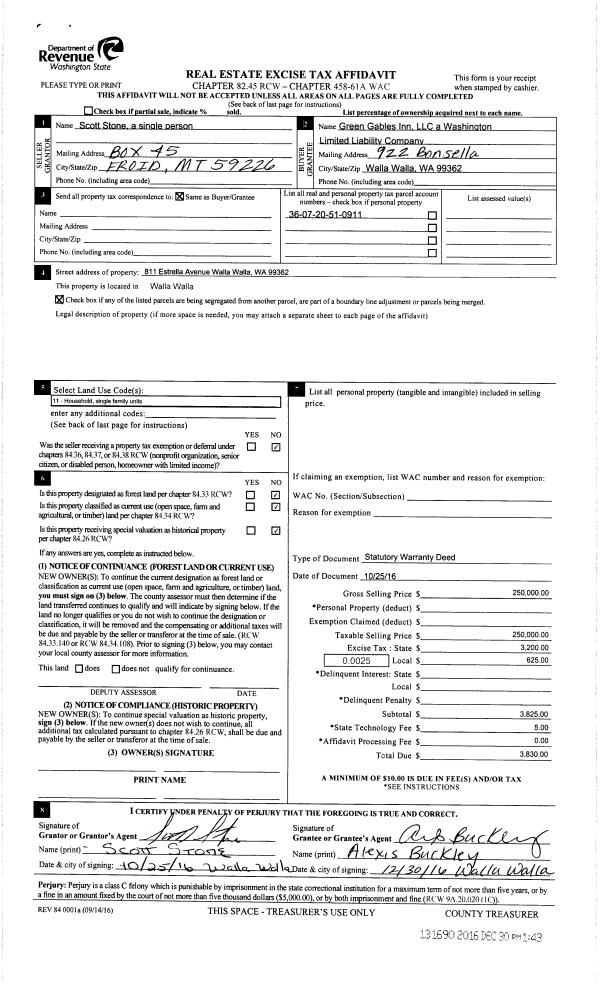
| Property ID: | 30696 | Abbreviated Legal Description: | GREEN PARK TAX 2 LOT 9 BLK 9 |
| Parcel Number: | 360720510911 | Agent Code: | |
| Type: | Real | | |
| Tax Area: | 1 - OL-140-F | Land Use Code | 11 |
| Open Space: | N | DFL | N |
| Historic Property: | N | Remodel Property: | N |
| Multi-Family Redevelopment: | N | | |
| Township: | 7 | Section: | 20 |
| Range: | 36 |
Location |
| Address: | 811 ESTRELLA AVE WA 99362 | Mapsco: | |
| Neighborhood: | G Superior SFR | Map ID: | |
| Neighborhood CD: | 514211 |
Owner |
| Name: | HARBERT JANEEN | Owner ID: | 69481 |
| Mailing Address: | 811 ESTRELLA AVE WALLA WALLA, WA 99362 | % Ownership: | 100.0000000000% |
| | | Exemptions: | |
Taxes and Assessment Details
Values
| (+) Improvement Homesite Value: | + | $395,690 | |
| (+) Improvement Non-Homesite Value: | + | $0 | |
| (+) Land Homesite Value: | + | $30,860 | |
| (+) Land Non-Homesite Value: | + | $0 | |
| (+) Curr Use (HS): | + | $0 | $0 |
| (+) Curr Use (NHS): | + | $0 | $0 |
| | | -------------------------- | |
| (=) Market Value: | = | $426,550 | |
| (–) Productivity Loss: | – | $0 | |
| | | -------------------------- | |
| (=) Subtotal: | = | $426,550 | |
| (+) Senior Appraised Value: | + | $0 | |
| (+) Non-Senior Appraised Value: | + | $426,550 | |
| | | -------------------------- | |
| (=) Total Appraised Value: | = | $426,550 | |
| (–) Senior Exemption Loss: | – | $0 | |
| (–) Exemption Loss: | – | $0 | |
| | | -------------------------- | |
| (=) Taxable Value: | = | $426,550 | |
Taxing Jurisdiction
| Owner: | HARBERT JANEEN | | |
| % Ownership: | 100.0000000000% | | |
| Total Value: | $426,550 | | |
| Tax Area: | 1 - OL-140-F |
| CERFD | CURRENT EXPENSE REFUND 010 | 0.0000000000 | $426,550 | $426,550 | $0.00 | | |
| CURREXP | CURRENT EXPENSE 010 | 1.0175366760 | $426,550 | $426,550 | $434.03 | | |
| HUMNSERV | HUMAN SERVICES 119 | 0.0250000000 | $426,550 | $426,550 | $10.66 | | |
| SLDREL | SOLDIERS RELIEF 121 | 0.0155990005 | $426,550 | $426,550 | $6.65 | | |
| EMERGSER | EMS 147 | 0.3792580840 | $426,550 | $426,550 | $161.77 | | |
| EMSRFD | EMS REFUND 147 | 0.0000000000 | $426,550 | $426,550 | $0.00 | | |
| PORTRFD | PORT REFUND 640 | 0.0000000000 | $426,550 | $426,550 | $0.00 | | |
| PORTWWGEN | PORT OF WW 640 | 0.2460186015 | $426,550 | $426,550 | $104.94 | | |
| SD140BOND | SD #140 BOND 764 | 0.8342371393 | $426,550 | $426,550 | $355.84 | | |
| SD140GEN | SD #140 GENERAL 760 | 2.0646500647 | $426,550 | $426,550 | $880.68 | | |
| ST2 | STATE SCHOOL PART 2 600 | 0.8131451643 | $426,550 | $426,550 | $346.85 | | |
| STATESCHL | STATE SCHOOL 600 | 1.5158548041 | $426,550 | $426,550 | $646.59 | | |
| STREFUND | STATE REFUND LEVY 603 | 0.0000000000 | $426,550 | $426,550 | $0.00 | | |
| CWWBOND | C OF WW BOND 643 | 0.2760494372 | $426,550 | $426,550 | $117.75 | | |
| CWWGEN | CITY OF WW 631 | 1.6100204973 | $426,550 | $426,550 | $686.75 | | |
| CWWRFD | CITY OF WALLA WALLA REFUND 631 | 0.0000000000 | $426,550 | $426,550 | $0.00 | | |
| | Total Tax Rate: | 8.7973694689 | | | | | |
| | | | | Taxes w/Current Exemptions: | $3,752.51 | | |
| | | | | Taxes w/o Exemptions: | $3,752.51 | | |
Improvement / Building
| Improvement #1: | RESIDENTIAL | State Code: | 11 | 1058.0 sqft | Value: | $395,690 |
| Exterior Wall: | SIDING | Heating/Cooling: | WARM & COOLED AIR | | Number of Bathrooms: | 2 | Number of Bedrooms: | 2 | | Plumbing: | 10 | Roof Covering: | COMP SHINGLE |
|
| | Type | Description | Class CD | Sub Class CD | Year Built | Area |
| | MA | Main Area | 1 | 35 | 1937 | 1058.0 |
| | SI1 | SITE IMPROVEMENT | 1 | 35 | 1937 | 2.5 |
| | BASE | BASEMENT | 1 | 35 | 1937 | 1012.0 |
| | BPF | BASEMENT -PARTITIONED FINISH | 1 | 35 | 1937 | 778.0 |
| | OPS | OPEN PORCH W/STEPS | 1 | 35 | 1937 | 28.0 |
| | S1F | Single One Story Fireplace | 1 | 35 | 1937 | 2.5 |
| | STG1 | Sub Terrain Garage Single | 1 | 35 | 1937 | 1.0 |
Sketch
Property Image
Land
| 1 | RES 1 | Converted: Residential | 0.0977 | 4256.00 | 0.00 | 0.00 | 1.00 | $30,860 | $0 |
Roll Value History
| 2026 | N/A | N/A | N/A | N/A | N/A |
| 2025 | $375,090 | $46,820 | $0 | $421,910 | $421,910 |
| 2024 | $375,090 | $46,820 | $0 | $421,910 | $421,910 |
| 2023 | $395,690 | $30,860 | $0 | $426,550 | $426,550 |
| 2022 | $395,690 | $30,860 | $0 | $426,550 | $426,550 |
| 2021 | $282,630 | $30,860 | $0 | $313,490 | $313,490 |
| 2020 | $226,110 | $30,860 | $0 | $256,970 | $256,970 |
| 2019 | $226,110 | $30,860 | $0 | $256,970 | $256,970 |
| 2018 | $215,340 | $30,860 | $0 | $246,200 | $246,200 |
| 2017 | $227,010 | $19,200 | $0 | $246,210 | $246,210 |
| 2016 | $227,010 | $19,200 | $0 | $246,210 | $246,210 |
| 2015 | $216,200 | $19,200 | $0 | $235,400 | $94,160 |
| 2014 | $216,200 | $19,200 | $0 | $235,400 | $94,160 |
| 2013 | $216,200 | $19,200 | $0 | $235,400 | $94,160 |
| 2012 | $216,200 | $19,200 | $0 | $0 | $0 |
| 2011 | $216,200 | $19,200 | $0 | $0 | $0 |
| 2010 | $143,200 | $19,200 | $0 | $0 | $0 |
| 2009 | $143,200 | $19,200 | $0 | $0 | $0 |
| 2008 | $143,200 | $19,200 | $0 | $0 | $0 |
| 2007 | $143,200 | $19,200 | $0 | $0 | $0 |
Deed and Sales History
| 1 | 06/01/2021 | SWD | STATUTORY WARRANTY DEED | GREEN GABLES INN LLC | HARBERT JANEEN | | | $465,000.00 | 141686 | 2021-06642 |
| 2 | 12/30/2016 | SWD | STATUTORY WARRANTY DEED | STONE SCOTT | GREEN GABLES INN LLC | | | $250,000.00 | 131690 | 2016-10796 |
| 3 | 02/23/2009 | WARRANTY D | WARRANTY DEED | BUCHAN, JAMES R & MARGARET L | STONE, SCOTT | | | $245,000.00 | 116360 | 2009-01671 |
| 4 | 09/03/1993 | WARRANTY D | WARRANTY DEED | | | | | $61,000.00 | 79912 | 2109-309161 |
Payout Agreement
| No payout information available.. |