| 1 | 11/10/2014 | WARRANTY D | WARRANTY DEED | BENNETT GARY V & DEBORAH T | TINKER JENNIFER L REVOCABLE LIVING TRUST | | | | 127319 | 2015-00626 |
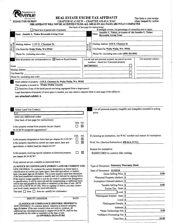
| 2 | 11/12/2014 | SWD | STATUTORY WARRANTY DEED | BENNETT GARY V & DEBORAH T | TINKER JENNIFER L REVOCABLE LIVING TRUST | | | $370,000.00 | 126920 | 2014-08201 |
| 3 | 03/02/2011 | QCD | QUIT CLAIM DEED | BENNETT, GARY V | BENNETT, GARY V & DEBORAH T | | | | 119823 | 2011-01914 |
| 4 | 11/09/2009 | WARRANTY D | WARRANTY DEED | CONETTO, ALPHONSO J & MELODY P | BENNETT, GARY V | | | $365,000.00 | 117647 | 2009-11058 |
| 5 | 10/09/2003 | WARRANTY D | WARRANTY DEED | BRADSHAW, DENIS & KANDEE | CONETTO, ALPHONSO J & MELODY P | | | $274,947.00 | 103218 | 2003-15594 |
| 6 | 04/02/2003 | QCD | QUIT CLAIM DEED | BRADSHAW, DENIS & KANDEE | BRADSHAW DENIS & KANDEE | | | | 101739 | 2003-04590 |