Property
Account |
| Property ID: | 30680 | Abbreviated Legal Description: | 24-7-35 TAX 19 LESS TAX 19A,B,C,D,E |
| Parcel Number: | 350724320032 | Agent Code: | |
| Type: | Real | | |
| Tax Area: | 101 - 140-4 | Land Use Code | 11 |
| Open Space: | N | DFL | N |
| Historic Property: | N | Remodel Property: | N |
| Multi-Family Redevelopment: | N | | |
| Township: | 7 | Section: | 24 |
| Range: | 35 |
Location |
| Address: | 112 N GOSE ST WA 99362 | Mapsco: | |
| Neighborhood: | A SFR Rural/City Infl | Map ID: | |
| Neighborhood CD: | 313012 |
Owner |
| Name: | MARQUEZ DAVID | Owner ID: | 59597 |
| Mailing Address: | MICHELLE JOHNSON 112 N GOSE ST WALLA WALLA, WA 99362 | % Ownership: | 100.0000000000% |
| | | Exemptions: | |
Taxes and Assessment Details
Property Tax Information as of
02/21/2026
Click on "Statement Details" to expand or collapse a tax statement.
* Please enter a valid date ** Please enter a valid date *
Statement Details |
| | TOTAL: | $0.00 | $0.00 | $0.00 | $0.00 | $0.00 | $0.00 |
|
| | $0.00 | $0.00 | $0.00 | $0.00 | $0.00 | $0.00 |
Values
| (+) Improvement Homesite Value: | + | $0 | |
| (+) Improvement Non-Homesite Value: | + | $258,680 | |
| (+) Land Homesite Value: | + | $0 | |
| (+) Land Non-Homesite Value: | + | $69,980 | |
| (+) Curr Use (HS): | + | $0 | $0 |
| (+) Curr Use (NHS): | + | $0 | $0 |
| | | -------------------------- | |
| (=) Market Value: | = | $328,660 | |
| (–) Productivity Loss: | – | $0 | |
| | | -------------------------- | |
| (=) Subtotal: | = | $328,660 | |
| (+) Senior Appraised Value: | + | $0 | |
| (+) Non-Senior Appraised Value: | + | $328,660 | |
| | | -------------------------- | |
| (=) Total Appraised Value: | = | $328,660 | |
| (–) Senior Exemption Loss: | – | $0 | |
| (–) Exemption Loss: | – | $0 | |
| | | -------------------------- | |
| (=) Taxable Value: | = | $328,660 | |
Taxing Jurisdiction
| Owner: | MARQUEZ DAVID | | |
| % Ownership: | 100.0000000000% | | |
| Total Value: | $328,660 | | |
| Tax Area: | 101 - 140-4 |
| CERFD | CURRENT EXPENSE REFUND 010 | 0.0000000000 | $328,660 | $328,660 | $0.00 | | |
| CURREXP | CURRENT EXPENSE 010 | 1.0175366760 | $328,660 | $328,660 | $334.42 | | |
| HUMNSERV | HUMAN SERVICES 119 | 0.0250000000 | $328,660 | $328,660 | $8.22 | | |
| SLDREL | SOLDIERS RELIEF 121 | 0.0155990005 | $328,660 | $328,660 | $5.13 | | |
| EMERGSER | EMS 147 | 0.3792580840 | $328,660 | $328,660 | $124.65 | | |
| EMSRFD | EMS REFUND 147 | 0.0000000000 | $328,660 | $328,660 | $0.00 | | |
| FD4EXP | FD #4 EXPENSE 686 | 0.8836993059 | $328,660 | $328,660 | $290.44 | | |
| RLBRFD | RURAL LIBRARY REFUND 623 | 0.0000000000 | $328,660 | $328,660 | $0.00 | | |
| RURALLIB | RURAL LIBRARY 623 | 0.3710609029 | $328,660 | $328,660 | $121.95 | | |
| PORTRFD | PORT REFUND 640 | 0.0000000000 | $328,660 | $328,660 | $0.00 | | |
| PORTWWGEN | PORT OF WW 640 | 0.2460186015 | $328,660 | $328,660 | $80.86 | | |
| SD140BOND | SD #140 BOND 764 | 0.8342371393 | $328,660 | $328,660 | $274.18 | | |
| SD140GEN | SD #140 GENERAL 760 | 2.0646500647 | $328,660 | $328,660 | $678.57 | | |
| ST2 | STATE SCHOOL PART 2 600 | 0.8131451643 | $328,660 | $328,660 | $267.25 | | |
| STATESCHL | STATE SCHOOL 600 | 1.5158548041 | $328,660 | $328,660 | $498.20 | | |
| STREFUND | STATE REFUND LEVY 603 | 0.0000000000 | $328,660 | $328,660 | $0.00 | | |
| COROAD | COUNTY ROAD 115 | 1.6549953990 | $328,660 | $328,660 | $543.93 | | |
| CRPRD | COUNTY ROAD REFUND 115 | 0.0000000000 | $328,660 | $328,660 | $0.00 | | |
| | Total Tax Rate: | 9.8210551422 | | | | | |
| | | | | Taxes w/Current Exemptions: | $3,227.80 | | |
| | | | | Taxes w/o Exemptions: | $3,227.80 | | |
Improvement / Building
| Improvement #1: | RESIDENTIAL | State Code: | 11 | 1056.0 sqft | Value: | $258,680 |
| Exterior Wall: | STUCCO | Heating/Cooling: | FORCED AIR | | Number of Bathrooms: | 1 | Number of Bedrooms: | 3 | | Plumbing: | 7 | Roof Covering: | COMP SHINGLE |
|
| | Type | Description | Class CD | Sub Class CD | Year Built | Area |
| | MA | Main Area | 1 | 30 | 1950 | 1056.0 |
| | SI1 | SITE IMPROVEMENT | 1 | 30 | 0 | 1.5 |
| | BASE | BASEMENT | 1 | 30 | 1950 | 960.0 |
| | BPF | BASEMENT -PARTITIONED FINISH | 1 | 30 | 1950 | 960.0 |
| | CPC | COVERED CARPORT/PATIO | 1 | 30 | 1950 | 414.0 |
| | UTST | Utility Storage Shed | 1 | 30 | 1950 | 120.0 |
| | SWP | Solid Wall Porch | 1 | 30 | 1950 | 32.0 |
| | DTG | Detached Garage | 1 | 30 | 1950 | 864.0 |
Sketch
Property Image
Land
| 1 | RES 1 | Converted: Residential | 0.2700 | 11761.00 | 0.00 | 0.00 | 1.00 | $69,980 | $0 |
Roll Value History
| 2026 | N/A | N/A | N/A | N/A | N/A |
| 2025 | $258,680 | $69,980 | $0 | $328,660 | $328,660 |
| 2024 | $258,680 | $69,980 | $0 | $328,660 | $328,660 |
| 2023 | $258,680 | $69,980 | $0 | $328,660 | $328,660 |
| 2022 | $206,940 | $69,980 | $0 | $276,920 | $276,920 |
| 2021 | $192,240 | $48,600 | $0 | $240,840 | $240,840 |
| 2020 | $174,770 | $48,600 | $0 | $223,370 | $223,370 |
| 2019 | $174,770 | $48,600 | $0 | $223,370 | $223,370 |
| 2018 | $174,770 | $48,600 | $0 | $223,370 | $223,370 |
| 2017 | $151,970 | $48,600 | $0 | $200,570 | $200,570 |
| 2016 | $116,900 | $48,600 | $0 | $165,500 | $165,500 |
| 2015 | $109,800 | $48,600 | $0 | $158,400 | $158,400 |
| 2014 | $73,200 | $48,600 | $0 | $121,800 | $121,800 |
| 2013 | $73,200 | $48,600 | $0 | $121,800 | $121,800 |
| 2012 | $71,700 | $25,700 | $0 | $0 | $0 |
| 2011 | $71,700 | $25,700 | $0 | $0 | $0 |
| 2010 | $91,200 | $25,700 | $0 | $0 | $0 |
| 2009 | $96,800 | $26,300 | $0 | $0 | $0 |
| 2008 | $72,200 | $26,300 | $0 | $0 | $0 |
| 2007 | $72,200 | $26,300 | $0 | $0 | $0 |
Deed and Sales History
| 1 | 09/09/2016 | SWD | STATUTORY WARRANTY DEED | PELLHAM ZACHARY ELGIN | MARQUEZ DAVID | | | $235,000.00 | 131003 | 2016-07377 |
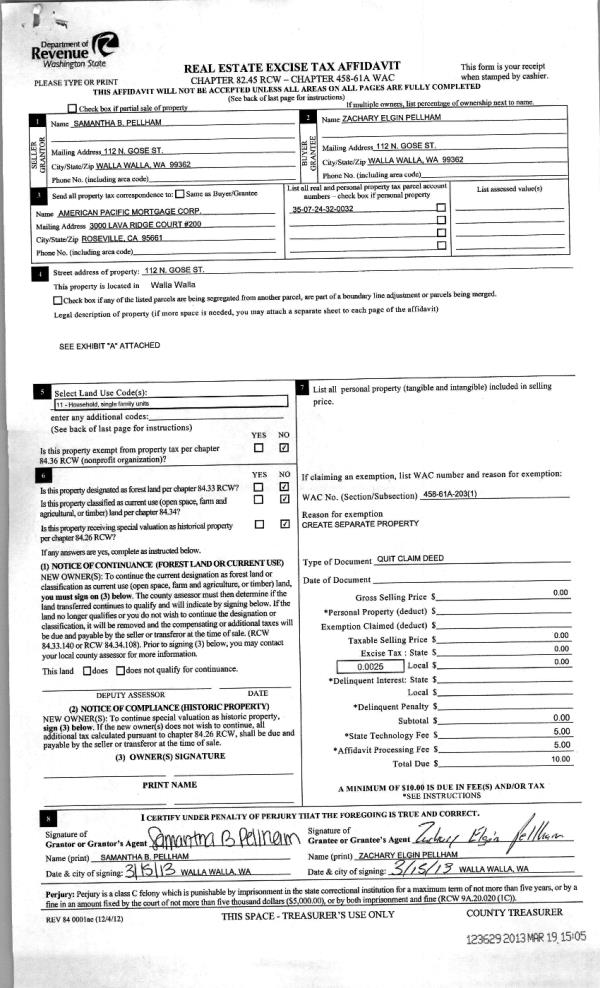
| 2 | 03/19/2013 | QCD | QUIT CLAIM DEED | PELLHAM, SAMANTHA B | PELLHAM, ZACHARY ELGIN | | | $0.00 | 123629 | 2013-02579 |
| 3 | 03/19/2013 | WARRANTY D | WARRANTY DEED | LOCATI, FRANK R | PELLHAM, ZACHARY ELGIN | | | $165,000.00 | 123628 | 2013-02578 |
| 4 | 02/09/2011 | WARRANTY D | WARRANTY DEED | LOCATI CARL V | LOCATI FRANK R | | | $150,000.00 | 119720 | 2011-01303 |
|   | |
| 5 | 09/01/1972 | QCD | QUIT CLAIM DEED | | | | | $0.00 | 0 | 3470-523891 |
Payout Agreement
| No payout information available.. |