Property
Account |
| Property ID: | 30659 | Abbreviated Legal Description: | ENNIS ANNEX E 120' OF LOT 1 BLK 8 LESS TAX 8 & LESS N 88.71' |
| Parcel Number: | 360721550817 | Agent Code: | |
| Type: | Real | | |
| Tax Area: | 1 - OL-140-F | Land Use Code | 11 |
| Open Space: | N | DFL | N |
| Historic Property: | N | Remodel Property: | N |
| Multi-Family Redevelopment: | N | | |
| Township: | 7 | Section: | 21 |
| Range: | 36 |
Location |
| Address: | 21 N ROOSEVELT ST WA 99362 | Mapsco: | |
| Neighborhood: | A-SFR | Map ID: | |
| Neighborhood CD: | 513011 |
Owner |
| Name: | HAZELTINE NICHOLAS & ELLIE | Owner ID: | 61059 |
| Mailing Address: | 21 N ROOSEVELT ST WALLA WALLA, WA 99362 | % Ownership: | 100.0000000000% |
| | | Exemptions: | |
Taxes and Assessment Details
Values
| (+) Improvement Homesite Value: | + | $0 | |
| (+) Improvement Non-Homesite Value: | + | $300,000 | |
| (+) Land Homesite Value: | + | $0 | |
| (+) Land Non-Homesite Value: | + | $52,500 | |
| (+) Curr Use (HS): | + | $0 | $0 |
| (+) Curr Use (NHS): | + | $0 | $0 |
| | | -------------------------- | |
| (=) Market Value: | = | $352,500 | |
| (–) Productivity Loss: | – | $0 | |
| | | -------------------------- | |
| (=) Subtotal: | = | $352,500 | |
| (+) Senior Appraised Value: | + | $0 | |
| (+) Non-Senior Appraised Value: | + | $352,500 | |
| | | -------------------------- | |
| (=) Total Appraised Value: | = | $352,500 | |
| (–) Senior Exemption Loss: | – | $0 | |
| (–) Exemption Loss: | – | $0 | |
| | | -------------------------- | |
| (=) Taxable Value: | = | $352,500 | |
Taxing Jurisdiction
| Owner: | HAZELTINE NICHOLAS & ELLIE | | |
| % Ownership: | 100.0000000000% | | |
| Total Value: | $352,500 | | |
| Tax Area: | 1 - OL-140-F |
| CERFD | CURRENT EXPENSE REFUND 010 | 0.0000000000 | $352,500 | $352,500 | $0.00 | | |
| CURREXP | CURRENT EXPENSE 010 | 1.0175366760 | $352,500 | $352,500 | $358.68 | | |
| HUMNSERV | HUMAN SERVICES 119 | 0.0250000000 | $352,500 | $352,500 | $8.81 | | |
| SLDREL | SOLDIERS RELIEF 121 | 0.0155990005 | $352,500 | $352,500 | $5.50 | | |
| EMERGSER | EMS 147 | 0.3792580840 | $352,500 | $352,500 | $133.69 | | |
| EMSRFD | EMS REFUND 147 | 0.0000000000 | $352,500 | $352,500 | $0.00 | | |
| PORTRFD | PORT REFUND 640 | 0.0000000000 | $352,500 | $352,500 | $0.00 | | |
| PORTWWGEN | PORT OF WW 640 | 0.2460186015 | $352,500 | $352,500 | $86.72 | | |
| SD140BOND | SD #140 BOND 764 | 0.8342371393 | $352,500 | $352,500 | $294.07 | | |
| SD140GEN | SD #140 GENERAL 760 | 2.0646500647 | $352,500 | $352,500 | $727.79 | | |
| ST2 | STATE SCHOOL PART 2 600 | 0.8131451643 | $352,500 | $352,500 | $286.63 | | |
| STATESCHL | STATE SCHOOL 600 | 1.5158548041 | $352,500 | $352,500 | $534.34 | | |
| STREFUND | STATE REFUND LEVY 603 | 0.0000000000 | $352,500 | $352,500 | $0.00 | | |
| CWWBOND | C OF WW BOND 643 | 0.2760494372 | $352,500 | $352,500 | $97.31 | | |
| CWWGEN | CITY OF WW 631 | 1.6100204973 | $352,500 | $352,500 | $567.53 | | |
| CWWRFD | CITY OF WALLA WALLA REFUND 631 | 0.0000000000 | $352,500 | $352,500 | $0.00 | | |
| | Total Tax Rate: | 8.7973694689 | | | | | |
| | | | | Taxes w/Current Exemptions: | $3,101.07 | | |
| | | | | Taxes w/o Exemptions: | $3,101.07 | | |
Improvement / Building
| Improvement #1: | RESIDENTIAL | State Code: | 11 | 1710.0 sqft | Value: | $300,000 |
| Exterior Wall: | STUCCO | Heating/Cooling: | BASEBOARD HOT WATER | | Number of Bathrooms: | 2 | Number of Bedrooms: | 3 | | Plumbing: | 9 | Roof Covering: | COMP SHINGLE |
|
| | Type | Description | Class CD | Sub Class CD | Year Built | Area |
| | MA | Main Area | 1 | 30 | 1950 | 1710.0 |
| | SI1 | SITE IMPROVEMENT | 1 | 30 | 1950 | 1.5 |
| | BASE | BASEMENT | 1 | 30 | 1950 | 756.0 |
| | BPF | BASEMENT -PARTITIONED FINISH | 1 | 30 | 1950 | 756.0 |
| | S1F | Single One Story Fireplace | 1 | 30 | 1950 | 1.0 |
| | DTG | Detached Garage | 1 | 30 | 1950 | 360.0 |
| | RPO | OPEN PORCH W/ROOF | 1 | 30 | 1950 | 99.0 |
| | WOD | Wood Deck | 1 | 30 | 1950 | 168.0 |
Sketch
Property Image
Land
| 1 | RES 1 | Converted: Residential | 0.1928 | 8400.00 | 0.00 | 0.00 | 1.00 | $52,500 | $0 |
Roll Value History
| 2026 | N/A | N/A | N/A | N/A | N/A |
| 2025 | $330,580 | $84,000 | $0 | $414,580 | $414,580 |
| 2024 | $275,480 | $84,000 | $0 | $359,480 | $359,480 |
| 2023 | $300,000 | $52,500 | $0 | $352,500 | $352,500 |
| 2022 | $285,710 | $52,500 | $0 | $338,210 | $338,210 |
| 2021 | $219,780 | $52,500 | $0 | $272,280 | $272,280 |
| 2020 | $151,570 | $52,500 | $0 | $204,070 | $204,070 |
| 2019 | $151,570 | $52,500 | $0 | $204,070 | $204,070 |
| 2018 | $131,800 | $52,500 | $0 | $184,300 | $184,300 |
| 2017 | $114,120 | $33,600 | $0 | $147,720 | $147,720 |
| 2016 | $108,690 | $33,600 | $0 | $142,290 | $142,290 |
| 2015 | $103,510 | $33,600 | $0 | $137,110 | $137,110 |
| 2014 | $94,100 | $33,600 | $0 | $127,700 | $127,700 |
| 2013 | $94,100 | $33,600 | $0 | $127,700 | $127,700 |
| 2012 | $133,600 | $33,600 | $0 | $0 | $0 |
| 2011 | $133,600 | $33,600 | $0 | $0 | $0 |
| 2010 | $125,600 | $33,600 | $0 | $0 | $0 |
| 2009 | $143,300 | $33,600 | $0 | $0 | $0 |
| 2008 | $107,900 | $33,600 | $0 | $0 | $0 |
| 2007 | $107,900 | $33,600 | $0 | $0 | $0 |
Deed and Sales History
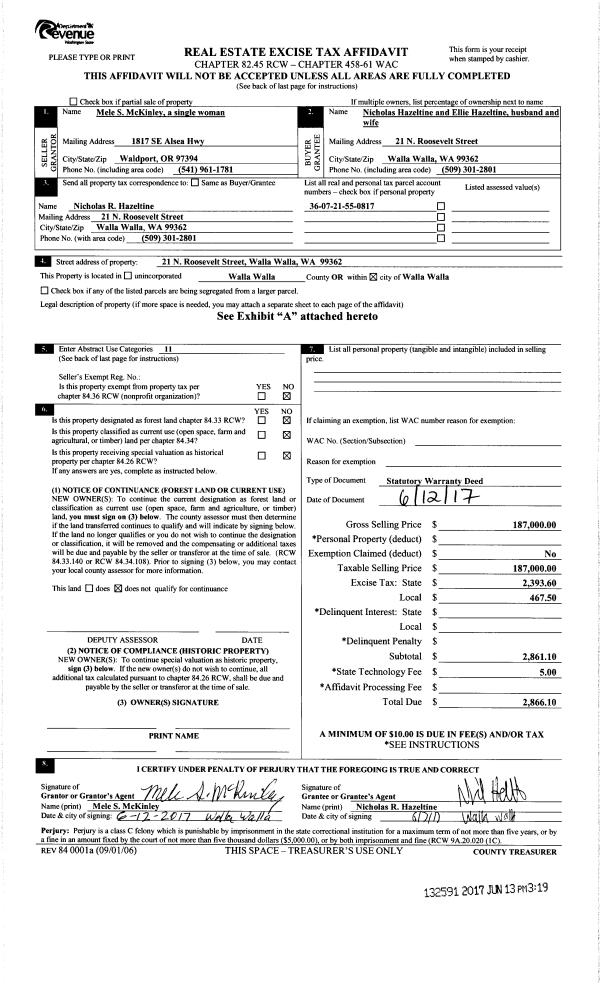
| 1 | 06/13/2017 | SWD | STATUTORY WARRANTY DEED | MC KINLEY MELE S | HAZELTINE NICHOLAS & ELLIE | | | $187,000.00 | 132591 | 2017-04516 |
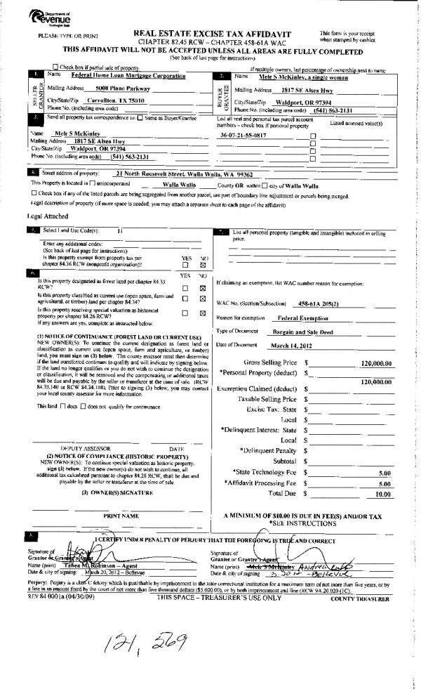
| 2 | 03/22/2012 | WARRANTY D | WARRANTY DEED | FEDERAL HOME LOAN MORTGAGE COR | MC KINLEY, MELE S | | | $120,000.00 | 121569 | 2012-02346 |
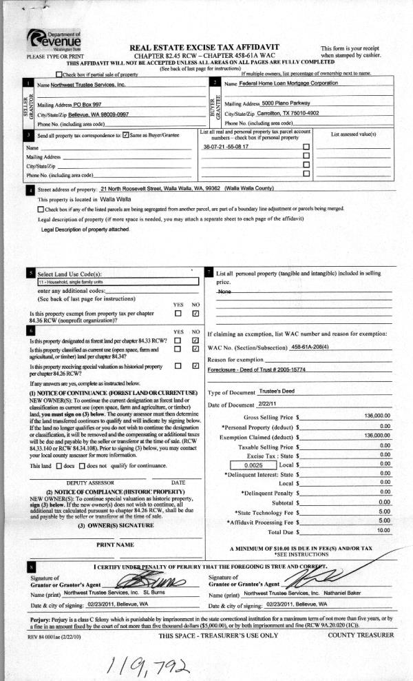
| 3 | 02/28/2011 | WARRANTY D | WARRANTY DEED | NORTHWEST TRUSTEE SERVICES INC | FEDERAL HOME LOAN MORTGAGE COR | | | $136,000.00 | 119792 | 2011-01799 |
| 4 | 11/18/1996 | WARRANTY D | WARRANTY DEED | | | | | $110,000.00 | 87231 | 2469-611518 |
Payout Agreement
| No payout information available.. |