Property
Account |
| Property ID: | 30658 | Abbreviated Legal Description: | CP #2 WLY PTN TAX 1 BLK 1 |
| Parcel Number: | 350736600124 | Agent Code: | |
| Type: | Real | | |
| Tax Area: | 75 - CP 250 | Land Use Code | 12 |
| Open Space: | N | DFL | N |
| Historic Property: | N | Remodel Property: | N |
| Multi-Family Redevelopment: | N | | |
| Township: | 7 | Section: | 36 |
| Range: | 35 |
Location |
| Address: | 625 SE 6TH ST WA 99324 | Mapsco: | |
| Neighborhood: | A Duplex | Map ID: | |
| Neighborhood CD: | 113031 |
Owner |
| Name: | SORIA JESSICA L ARREOLA | Owner ID: | 58467 |
| Mailing Address: | 114 EAGAN AVE WALLA WALLA, WA 99362 | % Ownership: | 100.0000000000% |
| | | Exemptions: | |
Taxes and Assessment Details
Values
| (+) Improvement Homesite Value: | + | $0 | |
| (+) Improvement Non-Homesite Value: | + | $373,850 | |
| (+) Land Homesite Value: | + | $0 | |
| (+) Land Non-Homesite Value: | + | $54,000 | |
| (+) Curr Use (HS): | + | $0 | $0 |
| (+) Curr Use (NHS): | + | $0 | $0 |
| | | -------------------------- | |
| (=) Market Value: | = | $427,850 | |
| (–) Productivity Loss: | – | $0 | |
| | | -------------------------- | |
| (=) Subtotal: | = | $427,850 | |
| (+) Senior Appraised Value: | + | $0 | |
| (+) Non-Senior Appraised Value: | + | $427,850 | |
| | | -------------------------- | |
| (=) Total Appraised Value: | = | $427,850 | |
| (–) Senior Exemption Loss: | – | $0 | |
| (–) Exemption Loss: | – | $0 | |
| | | -------------------------- | |
| (=) Taxable Value: | = | $427,850 | |
Taxing Jurisdiction
| Owner: | SORIA JESSICA L ARREOLA | | |
| % Ownership: | 100.0000000000% | | |
| Total Value: | $427,850 | | |
| Tax Area: | 75 - CP 250 |
| CERFD | CURRENT EXPENSE REFUND 010 | 0.0000000000 | $427,850 | $427,850 | $0.00 | | |
| CURREXP | CURRENT EXPENSE 010 | 1.0175366760 | $427,850 | $427,850 | $435.35 | | |
| HUMNSERV | HUMAN SERVICES 119 | 0.0250000000 | $427,850 | $427,850 | $10.70 | | |
| SLDREL | SOLDIERS RELIEF 121 | 0.0155990005 | $427,850 | $427,850 | $6.67 | | |
| COLLPLBOND | C OF CP BOND 644 | 0.4374241808 | $427,850 | $427,850 | $187.15 | | |
| COLLPLGEN | CITY OF CP 632 | 1.4453819216 | $427,850 | $427,850 | $618.41 | | |
| EMERGSER | EMS 147 | 0.3792580840 | $427,850 | $427,850 | $162.27 | | |
| EMSRFD | EMS REFUND 147 | 0.0000000000 | $427,850 | $427,850 | $0.00 | | |
| RURALLIB | RURAL LIBRARY 623 | 0.3710609029 | $427,850 | $427,850 | $158.76 | | |
| PORTRFD | PORT REFUND 640 | 0.0000000000 | $427,850 | $427,850 | $0.00 | | |
| PORTWWGEN | PORT OF WW 640 | 0.2460186015 | $427,850 | $427,850 | $105.26 | | |
| SD250BOND | SD #250 BOND 773 | 1.4560608159 | $427,850 | $427,850 | $622.98 | | |
| SD250GEN | SD #250 GENERAL 770 | 2.3880724087 | $427,850 | $427,850 | $1,021.74 | | |
| ST2 | STATE SCHOOL PART 2 600 | 0.8131451643 | $427,850 | $427,850 | $347.90 | | |
| STATESCHL | STATE SCHOOL 600 | 1.5158548041 | $427,850 | $427,850 | $648.56 | | |
| STREFUND | STATE REFUND LEVY 603 | 0.0000000000 | $427,850 | $427,850 | $0.00 | | |
| | Total Tax Rate: | 10.1104125603 | | | | | |
| | | | | Taxes w/Current Exemptions: | $4,325.75 | | |
| | | | | Taxes w/o Exemptions: | $4,325.75 | | |
Improvement / Building
| Improvement #1: | RESIDENTIAL | State Code: | 12 | 2698.0 sqft | Value: | $373,850 |
| Exterior Wall: | SIDING | Foundation: | SLAB FOUNDATION | | Heating/Cooling: | WARM & COOLED AIR | Number of Bathrooms: | 2 | | Number of Bedrooms: | 3 | Plumbing: | 13 | | Roof Covering: | COMP SHINGLE |   |   |
|
| | Type | Description | Class CD | Sub Class CD | Year Built | Area |
| | MA | Main Area | 2 | 30 | 1955 | 2698.0 |
| | SI1 | SITE IMPROVEMENT | 2 | 30 | 1955 | 1.5 |
| | UPFL | Upper Floor (included in main area) | 2 | 30 | 1955 | 1334.0 |
| | RPO | OPEN PORCH W/ROOF | 2 | 30 | 1955 | 21.0 |
| | WOD | Wood Deck | 2 | 30 | 2012 | 125.0 |
| | WOD | Wood Deck | 2 | 30 | 2012 | 125.0 |
| | EWS | EXT WOOD STAIRS | 2 | 30 | 2012 | 2.0 |
Sketch
Property Image
Land
| 1 | RES 1 | Converted: Residential | 0.1837 | 8000.00 | 0.00 | 0.00 | 1.00 | $54,000 | $0 |
Roll Value History
| 2026 | N/A | N/A | N/A | N/A | N/A |
| 2025 | $382,680 | $80,000 | $0 | $462,680 | $462,680 |
| 2024 | $318,900 | $54,000 | $0 | $372,900 | $372,900 |
| 2023 | $373,850 | $54,000 | $0 | $427,850 | $427,850 |
| 2022 | $311,540 | $54,000 | $0 | $365,540 | $365,540 |
| 2021 | $222,530 | $54,000 | $0 | $276,530 | $276,530 |
| 2020 | $158,950 | $54,000 | $0 | $212,950 | $212,950 |
| 2019 | $167,550 | $45,400 | $0 | $212,950 | $212,950 |
| 2018 | $139,620 | $45,400 | $0 | $185,020 | $185,020 |
| 2017 | $126,930 | $45,400 | $0 | $172,330 | $172,330 |
| 2016 | $115,390 | $45,400 | $0 | $160,790 | $160,790 |
| 2015 | $104,900 | $45,400 | $0 | $150,300 | $150,300 |
| 2014 | $104,900 | $45,400 | $0 | $150,300 | $150,300 |
| 2013 | $104,900 | $45,400 | $0 | $150,300 | $150,300 |
| 2012 | $69,900 | $45,400 | $0 | $0 | $0 |
| 2011 | $98,700 | $45,400 | $0 | $0 | $0 |
| 2010 | $98,700 | $45,400 | $0 | $0 | $0 |
| 2009 | $106,300 | $45,400 | $0 | $0 | $0 |
| 2008 | $96,800 | $22,900 | $0 | $0 | $0 |
| 2007 | $96,800 | $22,900 | $0 | $0 | $0 |
Deed and Sales History
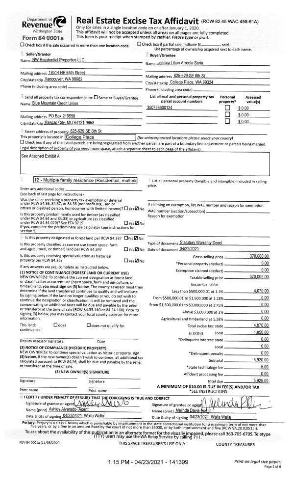
| 1 | 04/23/2021 | SWD | STATUTORY WARRANTY DEED | NW RESIDENTIAL PROPERTIES LLC | SORIA JESSICA L ARREOLA | | | $370,000.00 | 141399 | 2021-04795 |
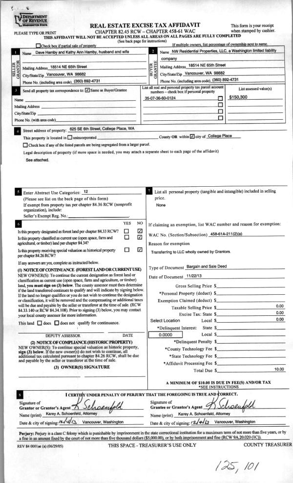
| 2 | 12/13/2013 | BARGAIN & | BARGAIN & SALE DEED | HAMBY DAVE & KATHY ANN | NW RESIDENTIAL PROPERTIES LLC | | | | 125101 | 2013-11925 |
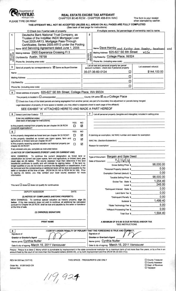
| 3 | 03/23/2011 | WARRANTY D | WARRANTY DEED | DEUTSCHE BANK NATIONAL TRUST C | HAMBY, DAVE & KATHY ANN | | | $98,000.00 | 119924 | 2011-02541 |
| 4 | 02/11/2011 | WARRANTY D | WARRANTY DEED | REGIONAL TRUSTEE SERVICES CORP | DEUTSCHE BANK NATIONAL TRUST C | | | $130,500.00 | 119726 | 2011-01369 |
| 5 | 05/08/1995 | WARRANTY D | WARRANTY DEED | | | | | $91,250.00 | 83944 | 2299-504211 |
Payout Agreement
| No payout information available.. |