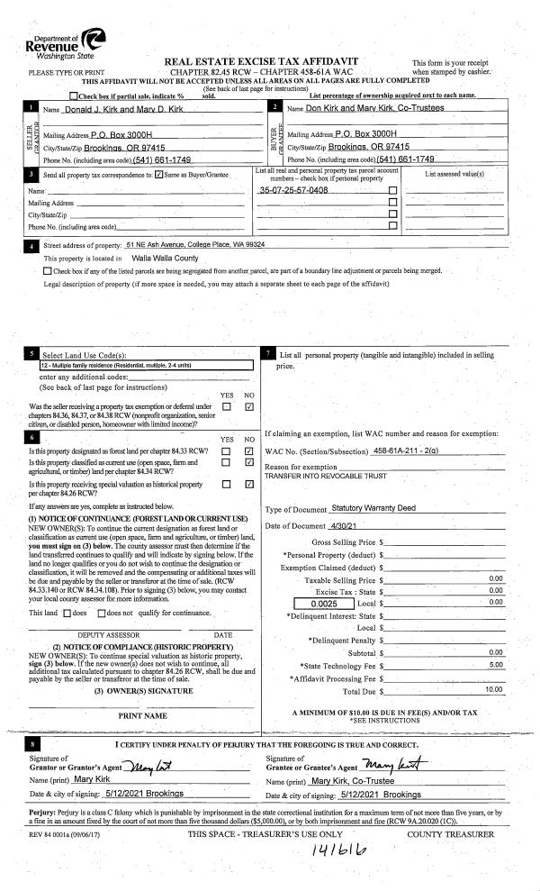
Property
Account |
| Property ID: | 30646 | Abbreviated Legal Description: | VALLEY MARKETING CENTER LT 8 BLK D |
| Parcel Number: | 350725570408 | Agent Code: | |
| Type: | Real | | |
| Tax Area: | 75 - CP 250 | Land Use Code | 12 |
| Open Space: | N | DFL | N |
| Historic Property: | N | Remodel Property: | N |
| Multi-Family Redevelopment: | N | | |
| Township: | 7 | Section: | 25 |
| Range: | 35 |
Location |
| Address: | 51 NE ASH AVE WA 99324 | Mapsco: | |
| Neighborhood: | A Duplex | Map ID: | |
| Neighborhood CD: | 113031 |
Owner |
| Name: | KIRK FAMILY TRUST | Owner ID: | 69463 |
| Mailing Address: | PO BOX 3000H BROOKINGS, OR 97415 | % Ownership: | 100.0000000000% |
| | | Exemptions: | |
Taxes and Assessment Details
Values
| (+) Improvement Homesite Value: | + | $0 | |
| (+) Improvement Non-Homesite Value: | + | $377,500 | |
| (+) Land Homesite Value: | + | $0 | |
| (+) Land Non-Homesite Value: | + | $56,630 | |
| (+) Curr Use (HS): | + | $0 | $0 |
| (+) Curr Use (NHS): | + | $0 | $0 |
| | | -------------------------- | |
| (=) Market Value: | = | $434,130 | |
| (–) Productivity Loss: | – | $0 | |
| | | -------------------------- | |
| (=) Subtotal: | = | $434,130 | |
| (+) Senior Appraised Value: | + | $0 | |
| (+) Non-Senior Appraised Value: | + | $434,130 | |
| | | -------------------------- | |
| (=) Total Appraised Value: | = | $434,130 | |
| (–) Senior Exemption Loss: | – | $0 | |
| (–) Exemption Loss: | – | $0 | |
| | | -------------------------- | |
| (=) Taxable Value: | = | $434,130 | |
Taxing Jurisdiction
| Owner: | KIRK FAMILY TRUST | | |
| % Ownership: | 100.0000000000% | | |
| Total Value: | $434,130 | | |
| Tax Area: | 75 - CP 250 |
| CERFD | CURRENT EXPENSE REFUND 010 | 0.0000000000 | $434,130 | $434,130 | $0.00 | | |
| CURREXP | CURRENT EXPENSE 010 | 1.0175366760 | $434,130 | $434,130 | $441.74 | | |
| HUMNSERV | HUMAN SERVICES 119 | 0.0250000000 | $434,130 | $434,130 | $10.85 | | |
| SLDREL | SOLDIERS RELIEF 121 | 0.0155990005 | $434,130 | $434,130 | $6.77 | | |
| COLLPLBOND | C OF CP BOND 644 | 0.4374241808 | $434,130 | $434,130 | $189.90 | | |
| COLLPLGEN | CITY OF CP 632 | 1.4453819216 | $434,130 | $434,130 | $627.48 | | |
| EMERGSER | EMS 147 | 0.3792580840 | $434,130 | $434,130 | $164.65 | | |
| EMSRFD | EMS REFUND 147 | 0.0000000000 | $434,130 | $434,130 | $0.00 | | |
| RURALLIB | RURAL LIBRARY 623 | 0.3710609029 | $434,130 | $434,130 | $161.09 | | |
| PORTRFD | PORT REFUND 640 | 0.0000000000 | $434,130 | $434,130 | $0.00 | | |
| PORTWWGEN | PORT OF WW 640 | 0.2460186015 | $434,130 | $434,130 | $106.80 | | |
| SD250BOND | SD #250 BOND 773 | 1.4560608159 | $434,130 | $434,130 | $632.12 | | |
| SD250GEN | SD #250 GENERAL 770 | 2.3880724087 | $434,130 | $434,130 | $1,036.73 | | |
| ST2 | STATE SCHOOL PART 2 600 | 0.8131451643 | $434,130 | $434,130 | $353.01 | | |
| STATESCHL | STATE SCHOOL 600 | 1.5158548041 | $434,130 | $434,130 | $658.08 | | |
| STREFUND | STATE REFUND LEVY 603 | 0.0000000000 | $434,130 | $434,130 | $0.00 | | |
| | Total Tax Rate: | 10.1104125603 | | | | | |
| | | | | Taxes w/Current Exemptions: | $4,389.22 | | |
| | | | | Taxes w/o Exemptions: | $4,389.22 | | |
Improvement / Building
| Improvement #1: | RESIDENTIAL | State Code: | 12 | 2228.0 sqft | Value: | $377,500 |
| Exterior Wall: | HARDBOARD | Heating/Cooling: | WARM & COOLED AIR | | Number of Bathrooms: | 4 | Number of Bedrooms: | 4 | | Plumbing: | 18 | Roof Covering: | COMP SHINGLE |
|
| | Type | Description | Class CD | Sub Class CD | Year Built | Area |
| | MA | Main Area | 2 | 30 | 2006 | 2228.0 |
| | SI1 | SITE IMPROVEMENT | 2 | 30 | 2006 | 2.0 |
| | UPFL | Upper Floor (included in main area) | 2 | 30 | 2006 | 1120.0 |
Sketch
Property Image
Land
| 1 | RES 1 | Converted: Residential | 0.1926 | 8390.00 | 0.00 | 0.00 | 1.00 | $56,630 | $0 |
Roll Value History
| 2026 | N/A | N/A | N/A | N/A | N/A |
| 2025 | $372,630 | $83,900 | $0 | $456,530 | $456,530 |
| 2024 | $322,000 | $56,600 | $0 | $378,600 | $378,600 |
| 2023 | $377,500 | $56,630 | $0 | $434,130 | $434,130 |
| 2022 | $314,580 | $56,630 | $0 | $371,210 | $371,210 |
| 2021 | $224,700 | $56,630 | $0 | $281,330 | $281,330 |
| 2020 | $187,250 | $56,630 | $0 | $243,880 | $243,880 |
| 2019 | $198,080 | $45,800 | $0 | $243,880 | $243,880 |
| 2018 | $180,080 | $45,800 | $0 | $225,880 | $225,880 |
| 2017 | $171,500 | $45,800 | $0 | $217,300 | $217,300 |
| 2016 | $171,500 | $45,800 | $0 | $217,300 | $217,300 |
| 2015 | $171,500 | $45,800 | $0 | $217,300 | $217,300 |
| 2014 | $171,500 | $45,800 | $0 | $217,300 | $217,300 |
| 2013 | $171,500 | $45,800 | $0 | $217,300 | $217,300 |
| 2012 | $171,500 | $45,800 | $0 | $0 | $0 |
| 2011 | $171,500 | $45,800 | $0 | $0 | $0 |
| 2010 | $171,500 | $45,800 | $0 | $0 | $0 |
| 2009 | $182,900 | $45,800 | $0 | $0 | $0 |
| 2008 | $189,000 | $23,300 | $0 | $0 | $0 |
| 2007 | $84,500 | $23,300 | $0 | $0 | $0 |
Deed and Sales History
| 1 | 05/12/2021 | SWD | STATUTORY WARRANTY DEED | KIRK DONALD J & MARY D | KIRK FAMILY TRUST | | | $0.00 | 141616 | 2021-06268 |
| 2 | 06/08/2018 | SWD | STATUTORY WARRANTY DEED | TOTAL PROPERTY MANAGEMENT INC | KIRK DONALD J & MARY D | | | $250,000.00 | 134886 | 2018-04610 |
| 3 | 02/14/2011 | QCD | QUIT CLAIM DEED | WHITE, MATTHEW E & CARRIE | TOTAL PROPERTY MANAGEMENT INC | | | | 119735 | 2011-01433 |
| 4 | 09/05/2006 | QCD | QUIT CLAIM DEED | WHITE, MATTHEW E | WHITE, MATTHEW E & CARIE J | | | | 111146 | 2006-10703 |
| 5 | 06/20/2003 | WARRANTY D | WARRANTY DEED | WALLA WALLA COLLEGE | WHITE, MATTHEW E | | | $23,500.00 | 102384 | 2003-09241 |
| 6 | 01/01/1958 | WARRANTY D | WARRANTY DEED | | | | | $0.00 | 0 | 2860-406057 |
Payout Agreement
| No payout information available.. |