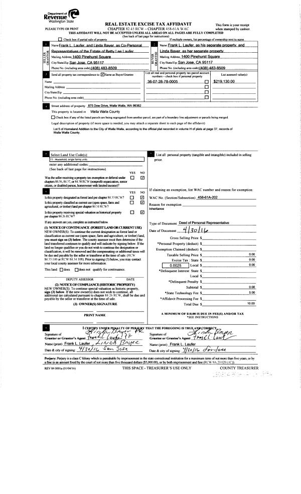
Property
Account |
| Property ID: | 30639 | Abbreviated Legal Description: | HOMELAND ADDN LOT 5 |
| Parcel Number: | 360728780005 | Agent Code: | |
| Type: | Real | | |
| Tax Area: | 1 - OL-140-F | Land Use Code | 11 |
| Open Space: | N | DFL | N |
| Historic Property: | N | Remodel Property: | N |
| Multi-Family Redevelopment: | N | | |
| Township: | 7 | Section: | 28 |
| Range: | 36 |
Location |
| Address: | 875 DOW DR WA 99362 | Mapsco: | |
| Neighborhood: | G Res | Map ID: | |
| Neighborhood CD: | 614011 |
Owner |
| Name: | JOHNSON SANDRA C | Owner ID: | 60225 |
| Mailing Address: | 875 DOW DR WALLA WALLA, WA 99362 | % Ownership: | 100.0000000000% |
| | | Exemptions: | SNR/DSBL |
Taxes and Assessment Details
Values
| (+) Improvement Homesite Value: | + | $302,740 | |
| (+) Improvement Non-Homesite Value: | + | $0 | |
| (+) Land Homesite Value: | + | $114,000 | |
| (+) Land Non-Homesite Value: | + | $0 | |
| (+) Curr Use (HS): | + | $0 | $0 |
| (+) Curr Use (NHS): | + | $0 | $0 |
| | | -------------------------- | |
| (=) Market Value: | = | $416,740 | |
| (–) Productivity Loss: | – | $0 | |
| | | -------------------------- | |
| (=) Subtotal: | = | $416,740 | |
| (+) Senior Appraised Value: | + | $382,380 | |
| (+) Non-Senior Appraised Value: | + | $0 | |
| | | -------------------------- | |
| (=) Total Appraised Value: | = | $382,380 | |
| (–) Senior Exemption Loss: | – | $229,428 | |
| (–) Exemption Loss: | – | $0 | |
| | | -------------------------- | |
| (=) Taxable Value: | = | $152,952 | |
Taxing Jurisdiction
| Owner: | JOHNSON SANDRA C | | |
| % Ownership: | 100.0000000000% | | |
| Total Value: | $416,740 | | |
| Tax Area: | 1 - OL-140-F |
| CERFD | CURRENT EXPENSE REFUND 010 | 0.0000000000 | $416,740 | $152,952 | $0.00 | | |
| CURREXP | CURRENT EXPENSE 010 | 1.0175366760 | $416,740 | $152,952 | $155.63 | | |
| HUMNSERV | HUMAN SERVICES 119 | 0.0250000000 | $416,740 | $152,952 | $3.82 | | |
| SLDREL | SOLDIERS RELIEF 121 | 0.0155990005 | $416,740 | $152,952 | $2.39 | | |
| EMERGSER | EMS 147 | 0.3792580840 | $416,740 | $152,952 | $58.01 | | |
| EMSRFD | EMS REFUND 147 | 0.0000000000 | $416,740 | $152,952 | $0.00 | | |
| PORTRFD | PORT REFUND 640 | 0.0000000000 | $416,740 | $152,952 | $0.00 | | |
| PORTWWGEN | PORT OF WW 640 | 0.2460186015 | $416,740 | $152,952 | $37.63 | | |
| SD140BOND | SD #140 BOND 764 | 0.0000000000 | $416,740 | $0 | $0.00 | | |
| SD140GEN | SD #140 GENERAL 760 | 0.0000000000 | $416,740 | $0 | $0.00 | | |
| ST2 | STATE SCHOOL PART 2 600 | 0.0000000000 | $416,740 | $0 | $0.00 | | |
| STATESCHL | STATE SCHOOL 600 | 1.5158548041 | $416,740 | $152,952 | $231.85 | | |
| STREFUND | STATE REFUND LEVY 603 | 0.0000000000 | $416,740 | $152,952 | $0.00 | | |
| CWWBOND | C OF WW BOND 643 | 0.0000000000 | $416,740 | $0 | $0.00 | | |
| CWWGEN | CITY OF WW 631 | 1.6100204973 | $416,740 | $152,952 | $246.26 | | |
| CWWRFD | CITY OF WALLA WALLA REFUND 631 | 0.0000000000 | $416,740 | $152,952 | $0.00 | | |
| | Total Tax Rate: | 4.8092876634 | | | | | |
| | | | | Taxes w/Current Exemptions: | $735.59 | | |
| | | | | Taxes w/o Exemptions: | $3,666.22 | | |
Improvement / Building
| Improvement #1: | RESIDENTIAL | State Code: | 11 | 1646.0 sqft | Value: | $302,740 |
| Exterior Wall: | SIDING | Heating/Cooling: | HEAT PUMP | | Number of Bathrooms: | 2 | Number of Bedrooms: | 2 | | Plumbing: | 9 | Roof Covering: | COMP SHINGLE |
|
| | Type | Description | Class CD | Sub Class CD | Year Built | Area |
| | MA | Main Area | 1 | 35 | 1976 | 1646.0 |
| | SI1 | SITE IMPROVEMENT | 1 | 35 | 1976 | 3.5 |
| | S1F | Single One Story Fireplace | 1 | 35 | 1976 | 1.0 |
| | OPS | OPEN PORCH W/STEPS | 1 | 35 | 1976 | 10.0 |
| | WOD | Wood Deck | 1 | 35 | 1976 | 216.0 |
| | ATG | Attached Garage | 1 | 35 | 1976 | 572.0 |
Sketch
Property Image
Land
| 1 | RES 1 | Converted: Residential | 0.2617 | 11400.00 | 0.00 | 0.00 | 1.00 | $114,000 | $0 |
Roll Value History
| 2026 | N/A | N/A | N/A | N/A | N/A |
| 2025 | $282,980 | $136,800 | $0 | $419,780 | $152,952 |
| 2024 | $302,740 | $114,000 | $0 | $416,740 | $152,952 |
| 2023 | $302,740 | $114,000 | $0 | $416,740 | $152,952 |
| 2022 | $288,330 | $94,050 | $0 | $382,380 | $152,952 |
| 2021 | $274,600 | $94,050 | $0 | $368,650 | $368,650 |
| 2020 | $196,140 | $94,050 | $0 | $290,190 | $290,190 |
| 2019 | $196,140 | $94,050 | $0 | $290,190 | $290,190 |
| 2018 | $204,260 | $48,300 | $0 | $252,560 | $252,560 |
| 2017 | $188,340 | $48,300 | $0 | $236,640 | $236,640 |
| 2016 | $179,370 | $48,300 | $0 | $227,670 | $227,670 |
| 2015 | $170,830 | $48,300 | $0 | $219,130 | $219,130 |
| 2014 | $155,300 | $48,300 | $0 | $203,600 | $99,905 |
| 2013 | $155,300 | $48,300 | $0 | $203,600 | $99,905 |
| 2012 | $155,300 | $48,300 | $0 | $0 | $0 |
| 2011 | $155,300 | $48,300 | $0 | $0 | $0 |
| 2010 | $136,800 | $48,300 | $0 | $0 | $0 |
| 2009 | $157,400 | $48,300 | $0 | $0 | $0 |
| 2008 | $157,400 | $48,300 | $0 | $0 | $0 |
| 2007 | $127,900 | $25,800 | $0 | $0 | $0 |
Deed and Sales History
| 1 | 12/22/2016 | SWD | STATUTORY WARRANTY DEED | LAUFER FRANK L | JOHNSON SANDRA C | | | $249,500.00 | 131651 | 2016-10552 |
| 2 | 04/30/2016 | DPR | DEED OF PERSONAL REPRESENTATIVE | LAUFER BETTY L | LAUFER FRANK L | | | | 130214 | 2016-03610 |
| 3 | 10/18/1976 | WARRANTY D | WARRANTY DEED | | | | | $9,700.00 | 0 | 4905-58564 |
Payout Agreement
| No payout information available.. |