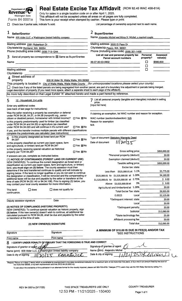
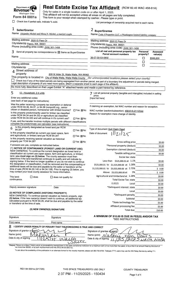
Property
Account |
| Property ID: | 30637 | Abbreviated Legal Description: | REESES LOT 2 BLK 9 |
| Parcel Number: | 360730530902 | Agent Code: | |
| Type: | Real | | |
| Tax Area: | 1 - OL-140-F | Land Use Code | 12 |
| Open Space: | N | DFL | N |
| Historic Property: | N | Remodel Property: | N |
| Multi-Family Redevelopment: | N | | |
| Township: | 7 | Section: | 30 |
| Range: | 36 |
Location |
| Address: | 609 W ALDER ST WALLA WALLA, WA 99362 | Mapsco: | |
| Neighborhood: | F Apartment | Map ID: | |
| Neighborhood CD: | 512021 |
Owner |
| Name: | 609 ALDER LLC | Owner ID: | 64970 |
| Mailing Address: | 2381 ROBERTSON DR RICHLAND, WA 99354 | % Ownership: | 100.0000000000% |
| | | Exemptions: | |
Taxes and Assessment Details
Values
| (+) Improvement Homesite Value: | + | $0 | |
| (+) Improvement Non-Homesite Value: | + | $517,580 | |
| (+) Land Homesite Value: | + | $0 | |
| (+) Land Non-Homesite Value: | + | $37,790 | |
| (+) Curr Use (HS): | + | $0 | $0 |
| (+) Curr Use (NHS): | + | $0 | $0 |
| | | -------------------------- | |
| (=) Market Value: | = | $555,370 | |
| (–) Productivity Loss: | – | $0 | |
| | | -------------------------- | |
| (=) Subtotal: | = | $555,370 | |
| (+) Senior Appraised Value: | + | $0 | |
| (+) Non-Senior Appraised Value: | + | $555,370 | |
| | | -------------------------- | |
| (=) Total Appraised Value: | = | $555,370 | |
| (–) Senior Exemption Loss: | – | $0 | |
| (–) Exemption Loss: | – | $0 | |
| | | -------------------------- | |
| (=) Taxable Value: | = | $555,370 | |
Taxing Jurisdiction
| Owner: | 609 ALDER LLC | | |
| % Ownership: | 100.0000000000% | | |
| Total Value: | $555,370 | | |
| Tax Area: | 1 - OL-140-F |
| CERFD | CURRENT EXPENSE REFUND 010 | 0.0000000000 | $555,370 | $555,370 | $0.00 | | |
| CURREXP | CURRENT EXPENSE 010 | 1.0175366760 | $555,370 | $555,370 | $565.11 | | |
| HUMNSERV | HUMAN SERVICES 119 | 0.0250000000 | $555,370 | $555,370 | $13.88 | | |
| SLDREL | SOLDIERS RELIEF 121 | 0.0155990005 | $555,370 | $555,370 | $8.66 | | |
| EMERGSER | EMS 147 | 0.3792580840 | $555,370 | $555,370 | $210.63 | | |
| EMSRFD | EMS REFUND 147 | 0.0000000000 | $555,370 | $555,370 | $0.00 | | |
| PORTRFD | PORT REFUND 640 | 0.0000000000 | $555,370 | $555,370 | $0.00 | | |
| PORTWWGEN | PORT OF WW 640 | 0.2460186015 | $555,370 | $555,370 | $136.63 | | |
| SD140BOND | SD #140 BOND 764 | 0.8342371393 | $555,370 | $555,370 | $463.31 | | |
| SD140GEN | SD #140 GENERAL 760 | 2.0646500647 | $555,370 | $555,370 | $1,146.64 | | |
| ST2 | STATE SCHOOL PART 2 600 | 0.8131451643 | $555,370 | $555,370 | $451.60 | | |
| STATESCHL | STATE SCHOOL 600 | 1.5158548041 | $555,370 | $555,370 | $841.86 | | |
| STREFUND | STATE REFUND LEVY 603 | 0.0000000000 | $555,370 | $555,370 | $0.00 | | |
| CWWBOND | C OF WW BOND 643 | 0.2760494372 | $555,370 | $555,370 | $153.31 | | |
| CWWGEN | CITY OF WW 631 | 1.6100204973 | $555,370 | $555,370 | $894.16 | | |
| CWWRFD | CITY OF WALLA WALLA REFUND 631 | 0.0000000000 | $555,370 | $555,370 | $0.00 | | |
| | Total Tax Rate: | 8.7973694689 | | | | | |
| | | | | Taxes w/Current Exemptions: | $4,885.79 | | |
| | | | | Taxes w/o Exemptions: | $4,885.79 | | |
Improvement / Building
| Improvement #1: | RESIDENTIAL | State Code: | 12 | 4663.0 sqft | Value: | $517,580 |
| Exterior Wall: | STUCCO | Heating/Cooling: | MINI-SPLIT HP SYSTEM | | Number of Bathrooms: | 8 | Number of Bedrooms: | 8 | | Plumbing: | 27 | Roof Covering: | COMP SHINGLE |
|
| | Type | Description | Class CD | Sub Class CD | Year Built | Area |
| | MA | Main Area | 2 | 30 | 2020 | 4663.0 |
| | UPFL | Upper Floor (included in main area) | 2 | 30 | 2020 | 2332.0 |
| | SI1 | SITE IMPROVEMENT | 2 | 30 | 2020 | 5.0 |
| | BLW | WOOD BALCONIES | 2 | 30 | 2020 | 47.0 |
| | BLW | WOOD BALCONIES | 2 | 30 | 2020 | 47.0 |
| | UTST | Utility Storage Shed | 2 | 30 | 2020 | 65.0 |
Sketch
Property Image
Land
| 1 | RES 1 | Converted: Residential | 0.1652 | 7198.00 | 0.00 | 0.00 | 1.00 | $37,790 | $0 |
Roll Value History
| 2026 | N/A | N/A | N/A | N/A | N/A |
| 2025 | $494,600 | $72,000 | $0 | $566,600 | $566,600 |
| 2024 | $492,500 | $64,800 | $0 | $557,300 | $557,300 |
| 2023 | $517,580 | $37,790 | $0 | $555,370 | $555,370 |
| 2023 | $517,580 | $37,790 | $0 | $555,370 | $555,370 |
| 2022 | $517,580 | $37,790 | $0 | $555,370 | $555,370 |
| 2021 | $207,030 | $37,790 | $0 | $244,820 | $244,820 |
| 2020 | $0 | $37,790 | $0 | $37,790 | $37,790 |
| 2019 | $0 | $37,790 | $0 | $37,790 | $37,790 |
| 2018 | $0 | $37,790 | $0 | $37,790 | $37,790 |
| 2017 | $0 | $21,600 | $0 | $21,600 | $21,600 |
| 2016 | $0 | $21,600 | $0 | $21,600 | $21,600 |
| 2015 | $0 | $21,600 | $0 | $21,600 | $21,600 |
| 2014 | $0 | $21,600 | $0 | $21,600 | $21,600 |
| 2013 | $0 | $21,600 | $0 | $21,600 | $21,600 |
| 2012 | $0 | $12,600 | $0 | $0 | $0 |
| 2011 | $0 | $12,600 | $0 | $0 | $0 |
| 2010 | $0 | $12,600 | $0 | $0 | $0 |
| 2009 | $0 | $12,600 | $0 | $0 | $0 |
| 2008 | $0 | $12,600 | $0 | $0 | $0 |
| 2007 | $0 | $12,600 | $0 | $0 | $0 |
Deed and Sales History
| 1 | 11/25/2025 | QCD | QUIT CLAIM DEED | MICHEL ALEJANDRO & MIRZA N | CODE 4 PROPERTIES LLC | | | | 0 | 2025-07316 |
| 2 | 11/21/2025 | SWD | STATUTORY WARRANTY DEED | 609 ALDER LLC | MICHEL ALEJANDRO & MIRZA N | | | $850,000.00 | 150400 | 2025-07232 |
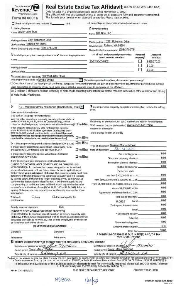
| 3 | 01/24/2023 | SWD | STATUTORY WARRANTY DEED | LAMARR JOINT TRUST | 609 ALDER LLC | | | $0.00 | 145302 | 2023-00363 |
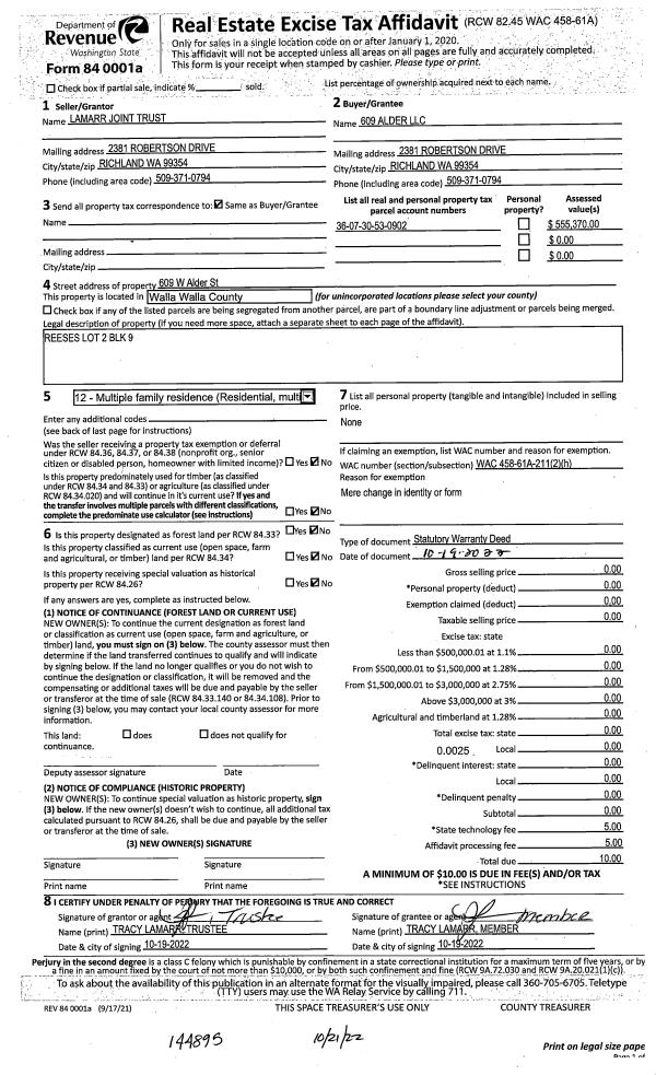
| 4 | 10/21/2022 | SWD | STATUTORY WARRANTY DEED | LAMARR JOINT TRUST | 609 ALDER LLC | | | | 144895 | 2022-08616 |
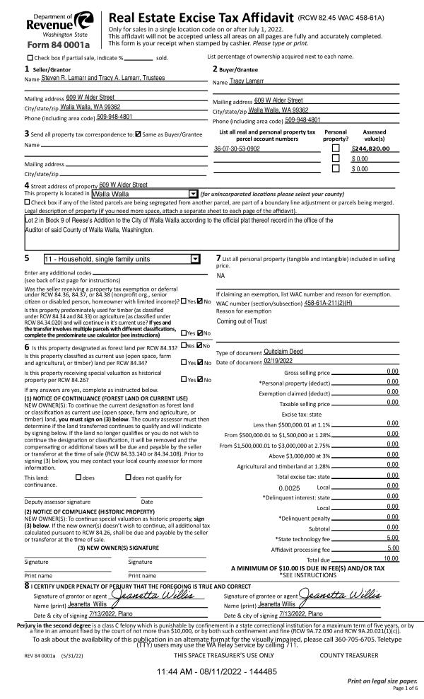
| 5 | 02/19/2022 | QCD | QUIT CLAIM DEED | LAMARR TRACY | LAMARR JOINT TRUST | | | $0.00 | 144568 | 2022-07380 |
| 6 | 08/11/2022 | QCD | QUIT CLAIM DEED | LAMARR JOINT TRUST | LAMARR TRACY | | | | 144485 | 2022-06729 |
| 7 | 09/28/2020 | SWD | STATUTORY WARRANTY DEED | 609 ALDER LLC | LAMARR JOINT TRUST | | | | 139984 | 2020-09923 |
| 8 | 04/19/2019 | SWD | STATUTORY WARRANTY DEED | KEMP CURTIS P | 609 ALDER LLC | | | $57,000.00 | 136713 | 2019-02494 |
| 9 | 01/22/2016 | SURVEY | SURVEY | | | | | | 0 | 2016-00518 |
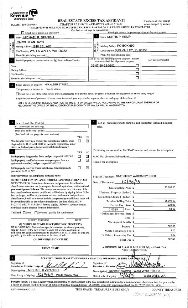
| 10 | 12/30/2015 | SWD | STATUTORY WARRANTY DEED | SPANISH MICHAEL R | KEMP CURTIS P | | | $25,000.00 | 129427 | 2015-11143 |
| 11 | 02/07/2011 | WARRANTY D | WARRANTY DEED | SPANISH MICHAEL | SPANISH MICHAEL R | | | | 119712 | 2011-01224 |
| 12 | 10/16/1974 | WARRANTY D | WARRANTY DEED | | | | | $1,500.00 | 0 | 2005-52000 |
Payout Agreement
| No payout information available.. |