Property
Account |
| Property ID: | 30636 | Abbreviated Legal Description: | KNAPP ADDN PARCEL 26 BLK 1 |
| Parcel Number: | 350736620126 | Agent Code: | |
| Type: | Real | | |
| Tax Area: | 77 - CP-250-F | Land Use Code | 11 |
| Open Space: | N | DFL | N |
| Historic Property: | N | Remodel Property: | N |
| Multi-Family Redevelopment: | N | | |
| Township: | 7 | Section: | 36 |
| Range: | 35 |
Location |
| Address: | 1349 SE INDEPENDENCE DR WA 99324 | Mapsco: | |
| Neighborhood: | A SFR Rural/City Inf | Map ID: | |
| Neighborhood CD: | 113012 |
Owner |
| Name: | SIMMONS THOMAS D | Owner ID: | 68604 |
| Mailing Address: | 1349 SE INDEPENDENCE DR COLLEGE PLACE, WA 99324 | % Ownership: | 100.0000000000% |
| | | Exemptions: | SNR/DSBL |
Taxes and Assessment Details
Values
| (+) Improvement Homesite Value: | + | $266,700 | |
| (+) Improvement Non-Homesite Value: | + | $0 | |
| (+) Land Homesite Value: | + | $70,000 | |
| (+) Land Non-Homesite Value: | + | $0 | |
| (+) Curr Use (HS): | + | $0 | $0 |
| (+) Curr Use (NHS): | + | $0 | $0 |
| | | -------------------------- | |
| (=) Market Value: | = | $336,700 | |
| (–) Productivity Loss: | – | $0 | |
| | | -------------------------- | |
| (=) Subtotal: | = | $336,700 | |
| (+) Senior Appraised Value: | + | $210,140 | |
| (+) Non-Senior Appraised Value: | + | $0 | |
| | | -------------------------- | |
| (=) Total Appraised Value: | = | $210,140 | |
| (–) Senior Exemption Loss: | – | $126,084 | |
| (–) Exemption Loss: | – | $0 | |
| | | -------------------------- | |
| (=) Taxable Value: | = | $84,056 | |
Taxing Jurisdiction
| Owner: | SIMMONS THOMAS D | | |
| % Ownership: | 100.0000000000% | | |
| Total Value: | $336,700 | | |
| Tax Area: | 77 - CP-250-F |
| CERFD | CURRENT EXPENSE REFUND 010 | 0.0000000000 | $336,700 | $84,056 | $0.00 | | |
| CURREXP | CURRENT EXPENSE 010 | 1.0175366760 | $336,700 | $84,056 | $85.53 | | |
| HUMNSERV | HUMAN SERVICES 119 | 0.0250000000 | $336,700 | $84,056 | $2.10 | | |
| SLDREL | SOLDIERS RELIEF 121 | 0.0155990005 | $336,700 | $84,056 | $1.31 | | |
| COLLPLBOND | C OF CP BOND 644 | 0.0000000000 | $336,700 | $0 | $0.00 | | |
| COLLPLGEN | CITY OF CP 632 | 1.4453819216 | $336,700 | $84,056 | $121.49 | | |
| EMERGSER | EMS 147 | 0.3792580840 | $336,700 | $84,056 | $31.88 | | |
| EMSRFD | EMS REFUND 147 | 0.0000000000 | $336,700 | $84,056 | $0.00 | | |
| RURALLIB | RURAL LIBRARY 623 | 0.3710609029 | $336,700 | $84,056 | $31.19 | | |
| PORTRFD | PORT REFUND 640 | 0.0000000000 | $336,700 | $84,056 | $0.00 | | |
| PORTWWGEN | PORT OF WW 640 | 0.2460186015 | $336,700 | $84,056 | $20.68 | | |
| SD250BOND | SD #250 BOND 773 | 0.0000000000 | $336,700 | $0 | $0.00 | | |
| SD250GEN | SD #250 GENERAL 770 | 0.0000000000 | $336,700 | $0 | $0.00 | | |
| ST2 | STATE SCHOOL PART 2 600 | 0.0000000000 | $336,700 | $0 | $0.00 | | |
| STATESCHL | STATE SCHOOL 600 | 1.5158548041 | $336,700 | $84,056 | $127.42 | | |
| STREFUND | STATE REFUND LEVY 603 | 0.0000000000 | $336,700 | $84,056 | $0.00 | | |
| | Total Tax Rate: | 5.0157099906 | | | | | |
| | | | | Taxes w/Current Exemptions: | $421.60 | | |
| | | | | Taxes w/o Exemptions: | $3,404.18 | | |
Improvement / Building
| Improvement #1: | RESIDENTIAL | State Code: | 11 | 994.0 sqft | Value: | $266,700 |
| Exterior Wall: | PLYWOOD | Heating/Cooling: | WARM & COOLED AIR | | Number of Bathrooms: | 2 | Number of Bedrooms: | 4 | | Plumbing: | 9 | Roof Covering: | COMP SHINGLE |
|
| | Type | Description | Class CD | Sub Class CD | Year Built | Area |
| | MA | Main Area | 11 | 30 | 1977 | 994.0 |
| | SI1 | SITE IMPROVEMENT | 11 | 30 | 1977 | 1.5 |
| | BASE | BASEMENT | 11 | 30 | 1977 | 936.0 |
| | BPF | BASEMENT -PARTITIONED FINISH | 11 | 30 | 1977 | 936.0 |
| | ATG | Attached Garage | 11 | 30 | 1977 | 440.0 |
| | WOD | Wood Deck | 11 | 30 | 1977 | 88.0 |
| | OPS | OPEN PORCH W/STEPS | 11 | 30 | 1977 | 56.0 |
Sketch
Property Image
Land
| 1 | RES 1 | Converted: Residential | 0.1722 | 7500.00 | 0.00 | 0.00 | 1.00 | $70,000 | $0 |
Roll Value History
| 2026 | N/A | N/A | N/A | N/A | N/A |
| 2025 | $253,370 | $130,000 | $0 | $383,370 | $84,056 |
| 2024 | $266,700 | $70,000 | $0 | $336,700 | $84,056 |
| 2023 | $266,700 | $70,000 | $0 | $336,700 | $84,056 |
| 2022 | $254,000 | $70,000 | $0 | $324,000 | $84,056 |
| 2021 | $203,200 | $70,000 | $0 | $273,200 | $84,056 |
| 2020 | $140,140 | $70,000 | $0 | $210,140 | $84,056 |
| 2019 | $155,140 | $55,000 | $0 | $210,140 | $210,140 |
| 2018 | $147,750 | $55,000 | $0 | $202,750 | $202,750 |
| 2017 | $147,750 | $55,000 | $0 | $202,750 | $202,750 |
| 2016 | $134,320 | $55,000 | $0 | $189,320 | $189,320 |
| 2015 | $134,320 | $55,000 | $0 | $189,320 | $189,320 |
| 2014 | $116,800 | $55,000 | $0 | $171,800 | $171,800 |
| 2013 | $116,800 | $55,000 | $0 | $171,800 | $171,800 |
| 2012 | $87,000 | $55,000 | $0 | $0 | $0 |
| 2011 | $122,500 | $55,000 | $0 | $0 | $0 |
| 2010 | $122,500 | $55,000 | $0 | $0 | $0 |
| 2009 | $131,800 | $55,000 | $0 | $0 | $0 |
| 2008 | $101,200 | $30,000 | $0 | $0 | $0 |
| 2007 | $101,200 | $30,000 | $0 | $0 | $0 |
Deed and Sales History
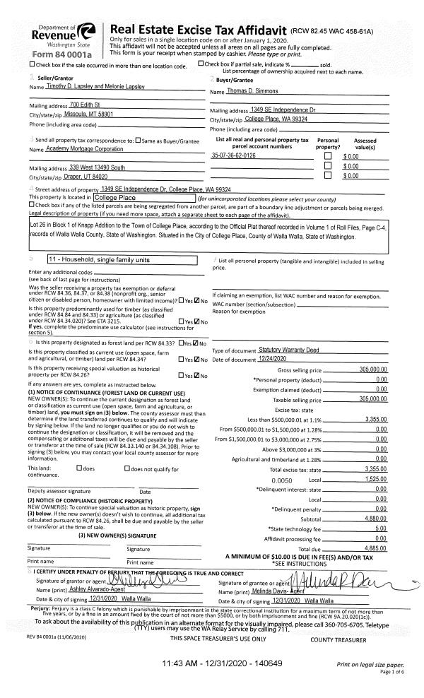
| 1 | 12/31/2020 | SWD | STATUTORY WARRANTY DEED | LAPSLEY TIMOTHY D & MELONIE | SIMMONS THOMAS D | | | $305,000.00 | 140649 | 2020-14020 |
| 2 | 11/26/2014 | SWD | STATUTORY WARRANTY DEED | DOWDY ROSCOE L & CHERYL R | LAPSLEY TIMOTHY D & MELONIE | | | $195,000.00 | 127023 | 2014-08635 |
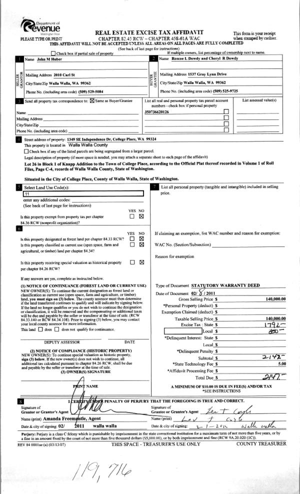
| 3 | 02/09/2011 | WARRANTY D | WARRANTY DEED | HUBER, JOHN M | DOWDY, ROSCOE L & CHERYL R | | | $140,000.00 | 119716 | 2011-01269 |
| 4 | 07/10/1988 | WARRANTY D | WARRANTY DEED | | | | | $56,000.00 | 0 | 1718-804421 |
Payout Agreement
| No payout information available.. |