Property
Account |
| Property ID: | 30620 | Abbreviated Legal Description: | TABLEROCK SUBDIVISION II LOT 37 |
| Parcel Number: | 360604590037 | Agent Code: | |
| Type: | Real | | |
| Tax Area: | 5 - OL-140 | Land Use Code | 11 |
| Open Space: | N | DFL | N |
| Historic Property: | N | Remodel Property: | N |
| Multi-Family Redevelopment: | N | | |
| Township: | 6 | Section: | 4 |
| Range: | 36 |
Location |
| Address: | 419 COYOTE RIDGE DR WA 99362 | Mapsco: | |
| Neighborhood: | VG Res Rural/City Inf | Map ID: | |
| Neighborhood CD: | 615012 |
Owner |
| Name: | EMIGH NICHOLAS A | Owner ID: | 49524 |
| Mailing Address: | KELLIE L EMIGH 419 COYOTE RIDGE WALLA WALLA, WA 99362 | % Ownership: | 100.0000000000% |
| | | Exemptions: | |
Taxes and Assessment Details
Property Tax Information as of
02/21/2026
Click on "Statement Details" to expand or collapse a tax statement.
* Please enter a valid date ** Please enter a valid date *
Statement Details |
| | TOTAL: | $0.00 | $0.00 | $0.00 | $0.00 | $0.00 | $0.00 |
|
| | $0.00 | $0.00 | $0.00 | $0.00 | $0.00 | $0.00 |
Values
| (+) Improvement Homesite Value: | + | $0 | |
| (+) Improvement Non-Homesite Value: | + | $476,710 | |
| (+) Land Homesite Value: | + | $0 | |
| (+) Land Non-Homesite Value: | + | $120,000 | |
| (+) Curr Use (HS): | + | $0 | $0 |
| (+) Curr Use (NHS): | + | $0 | $0 |
| | | -------------------------- | |
| (=) Market Value: | = | $596,710 | |
| (–) Productivity Loss: | – | $0 | |
| | | -------------------------- | |
| (=) Subtotal: | = | $596,710 | |
| (+) Senior Appraised Value: | + | $0 | |
| (+) Non-Senior Appraised Value: | + | $596,710 | |
| | | -------------------------- | |
| (=) Total Appraised Value: | = | $596,710 | |
| (–) Senior Exemption Loss: | – | $0 | |
| (–) Exemption Loss: | – | $0 | |
| | | -------------------------- | |
| (=) Taxable Value: | = | $596,710 | |
Taxing Jurisdiction
| Owner: | EMIGH NICHOLAS A | | |
| % Ownership: | 100.0000000000% | | |
| Total Value: | $596,710 | | |
| Tax Area: | 5 - OL-140 |
| CERFD | CURRENT EXPENSE REFUND 010 | 0.0000000000 | $596,710 | $596,710 | $0.00 | | |
| CURREXP | CURRENT EXPENSE 010 | 1.0175366760 | $596,710 | $596,710 | $607.17 | | |
| HUMNSERV | HUMAN SERVICES 119 | 0.0250000000 | $596,710 | $596,710 | $14.92 | | |
| SLDREL | SOLDIERS RELIEF 121 | 0.0155990005 | $596,710 | $596,710 | $9.31 | | |
| EMERGSER | EMS 147 | 0.3792580840 | $596,710 | $596,710 | $226.31 | | |
| EMSRFD | EMS REFUND 147 | 0.0000000000 | $596,710 | $596,710 | $0.00 | | |
| PORTRFD | PORT REFUND 640 | 0.0000000000 | $596,710 | $596,710 | $0.00 | | |
| PORTWWGEN | PORT OF WW 640 | 0.2460186015 | $596,710 | $596,710 | $146.80 | | |
| SD140BOND | SD #140 BOND 764 | 0.8342371393 | $596,710 | $596,710 | $497.80 | | |
| SD140GEN | SD #140 GENERAL 760 | 2.0646500647 | $596,710 | $596,710 | $1,232.00 | | |
| ST2 | STATE SCHOOL PART 2 600 | 0.8131451643 | $596,710 | $596,710 | $485.21 | | |
| STATESCHL | STATE SCHOOL 600 | 1.5158548041 | $596,710 | $596,710 | $904.53 | | |
| STREFUND | STATE REFUND LEVY 603 | 0.0000000000 | $596,710 | $596,710 | $0.00 | | |
| CWWBOND | C OF WW BOND 643 | 0.2760494372 | $596,710 | $596,710 | $164.72 | | |
| CWWGEN | CITY OF WW 631 | 1.6100204973 | $596,710 | $596,710 | $960.72 | | |
| CWWRFD | CITY OF WALLA WALLA REFUND 631 | 0.0000000000 | $596,710 | $596,710 | $0.00 | | |
| | Total Tax Rate: | 8.7973694689 | | | | | |
| | | | | Taxes w/Current Exemptions: | $5,249.49 | | |
| | | | | Taxes w/o Exemptions: | $5,249.49 | | |
Improvement / Building
| Improvement #1: | RESIDENTIAL | State Code: | 11 | 2994.0 sqft | Value: | $476,710 |
| Exterior Wall: | HARDBOARD | Heating/Cooling: | WARM & COOLED AIR | | Number of Bathrooms: | 2.5 | Number of Bedrooms: | 4 | | Plumbing: | 13 | Roof Covering: | COMP SHINGLE |
|
| | Type | Description | Class CD | Sub Class CD | Year Built | Area |
| | MA | Main Area | 2 | 35 | 2007 | 2994.0 |
| | GFP | GAS FIREPLACE | 2 | 35 | 0 | 2.0 |
| | RPC | OPEN PORCH W/ROOF , CEILED | 2 | 35 | 0 | 142.0 |
| | SI1 | SITE IMPROVEMENT | 2 | 35 | 0 | 3.5 |
| | ATG | Attached Garage | 2 | 35 | 0 | 600.0 |
| | UPFL | Upper Floor (included in main area) | 2 | 35 | 0 | 1521.0 |
Sketch
Property Image
Land
| 1 | RES 1 | Converted: Residential | 0.3301 | 14379.00 | 0.00 | 0.00 | 1.00 | $120,000 | $0 |
Roll Value History
| 2026 | N/A | N/A | N/A | N/A | N/A |
| 2025 | $505,160 | $180,000 | $0 | $685,160 | $685,160 |
| 2024 | $500,550 | $120,000 | $0 | $620,550 | $620,550 |
| 2023 | $476,710 | $120,000 | $0 | $596,710 | $596,710 |
| 2022 | $476,710 | $95,000 | $0 | $571,710 | $571,710 |
| 2021 | $353,120 | $95,000 | $0 | $448,120 | $448,120 |
| 2020 | $261,570 | $95,000 | $0 | $356,570 | $356,570 |
| 2019 | $261,570 | $95,000 | $0 | $356,570 | $356,570 |
| 2018 | $249,350 | $50,000 | $0 | $299,350 | $299,350 |
| 2017 | $237,480 | $50,000 | $0 | $287,480 | $287,480 |
| 2016 | $226,170 | $50,000 | $0 | $276,170 | $276,170 |
| 2015 | $226,170 | $50,000 | $0 | $276,170 | $276,170 |
| 2014 | $215,400 | $50,000 | $0 | $265,400 | $265,400 |
| 2013 | $215,400 | $50,000 | $0 | $265,400 | $265,400 |
| 2012 | $190,100 | $65,000 | $0 | $0 | $0 |
| 2011 | $260,100 | $80,000 | $0 | $0 | $0 |
| 2010 | $260,100 | $80,000 | $0 | $0 | $0 |
| 2009 | $279,900 | $80,000 | $0 | $0 | $0 |
| 2008 | $279,900 | $80,000 | $0 | $0 | $0 |
| 2007 | $0 | $600 | $0 | $0 | $0 |
Deed and Sales History
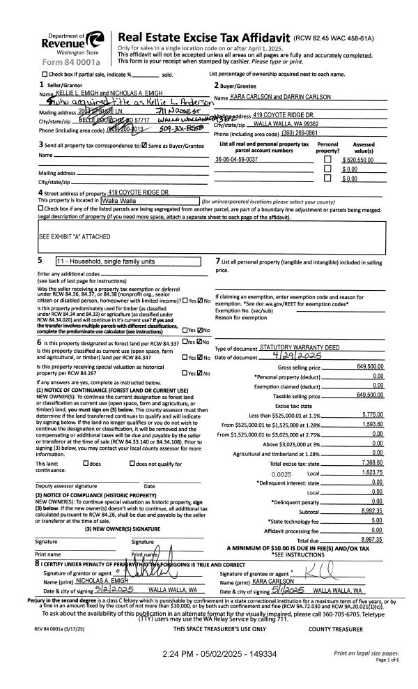
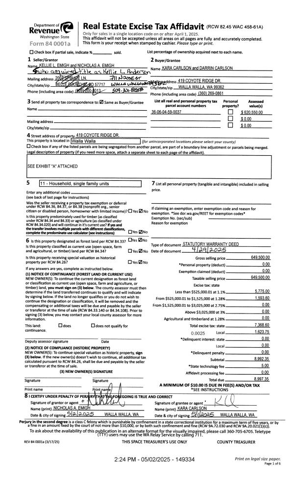
| 1 | 05/02/2025 | SWD | STATUTORY WARRANTY DEED | EMIGH NICHOLAS A | CARLSON KARA & DARRIN | | | $649,500.00 | 149334 | 2025-02407 |
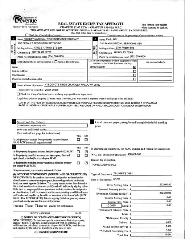
| 2 | 02/14/2011 | WARRANTY D | WARRANTY DEED | FV-1, INC | EMIGH, NICHOLAS A | | | $259,900.00 | 119738 | 2011-01438 |
| 3 | 04/29/2010 | WARRANTY D | WARRANTY DEED | FIDELITY NATIONAL TITLE INSURA | FV-1, INC | | | $272,900.00 | 118400 | 2010-03338 |
| 4 | 07/28/2006 | WARRANTY D | WARRANTY DEED | GATEWOOD, W PAUL & CAROL | MITCHELL, BROCK & GINA | | | $75,500.00 | 110824 | 2006-08888 |
Payout Agreement
| No payout information available.. |