Property
Account |
| Property ID: | 30537 | Abbreviated Legal Description: | NORMANS SUB LOT 16 BLK 14 |
| Parcel Number: | 360721701416 | Agent Code: | |
| Type: | Real | | |
| Tax Area: | 1 - OL-140-F | Land Use Code | 11 |
| Open Space: | N | DFL | N |
| Historic Property: | N | Remodel Property: | N |
| Multi-Family Redevelopment: | N | | |
| Township: | 7 | Section: | 21 |
| Range: | 36 |
Location |
| Address: | 1427 ISAACS AVE WA 99362 | Mapsco: | |
| Neighborhood: | A-SFR | Map ID: | |
| Neighborhood CD: | 513011 |
Owner |
| Name: | VIOLETTE LEO O & JUDITH J | Owner ID: | 7945 |
| Mailing Address: | 145 NEWELL ST WALLA WALLA, WA 99362 | % Ownership: | 100.0000000000% |
| | | Exemptions: | |
Taxes and Assessment Details
Property Tax Information as of
02/21/2026
Click on "Statement Details" to expand or collapse a tax statement.
* Please enter a valid date ** Please enter a valid date *
Statement Details |
| | TOTAL: | $0.00 | $0.00 | $0.00 | $0.00 | $0.00 | $0.00 |
|
| | $0.00 | $0.00 | $0.00 | $0.00 | $0.00 | $0.00 |
Values
| (+) Improvement Homesite Value: | + | $0 | |
| (+) Improvement Non-Homesite Value: | + | $240,190 | |
| (+) Land Homesite Value: | + | $0 | |
| (+) Land Non-Homesite Value: | + | $37,500 | |
| (+) Curr Use (HS): | + | $0 | $0 |
| (+) Curr Use (NHS): | + | $0 | $0 |
| | | -------------------------- | |
| (=) Market Value: | = | $277,690 | |
| (–) Productivity Loss: | – | $0 | |
| | | -------------------------- | |
| (=) Subtotal: | = | $277,690 | |
| (+) Senior Appraised Value: | + | $0 | |
| (+) Non-Senior Appraised Value: | + | $277,690 | |
| | | -------------------------- | |
| (=) Total Appraised Value: | = | $277,690 | |
| (–) Senior Exemption Loss: | – | $0 | |
| (–) Exemption Loss: | – | $0 | |
| | | -------------------------- | |
| (=) Taxable Value: | = | $277,690 | |
Taxing Jurisdiction
| Owner: | VIOLETTE LEO O & JUDITH J | | |
| % Ownership: | 100.0000000000% | | |
| Total Value: | $277,690 | | |
| Tax Area: | 1 - OL-140-F |
| CERFD | CURRENT EXPENSE REFUND 010 | 0.0000000000 | $277,690 | $277,690 | $0.00 | | |
| CURREXP | CURRENT EXPENSE 010 | 1.0175366760 | $277,690 | $277,690 | $282.56 | | |
| HUMNSERV | HUMAN SERVICES 119 | 0.0250000000 | $277,690 | $277,690 | $6.94 | | |
| SLDREL | SOLDIERS RELIEF 121 | 0.0155990005 | $277,690 | $277,690 | $4.33 | | |
| EMERGSER | EMS 147 | 0.3792580840 | $277,690 | $277,690 | $105.32 | | |
| EMSRFD | EMS REFUND 147 | 0.0000000000 | $277,690 | $277,690 | $0.00 | | |
| PORTRFD | PORT REFUND 640 | 0.0000000000 | $277,690 | $277,690 | $0.00 | | |
| PORTWWGEN | PORT OF WW 640 | 0.2460186015 | $277,690 | $277,690 | $68.32 | | |
| SD140BOND | SD #140 BOND 764 | 0.8342371393 | $277,690 | $277,690 | $231.66 | | |
| SD140GEN | SD #140 GENERAL 760 | 2.0646500647 | $277,690 | $277,690 | $573.33 | | |
| ST2 | STATE SCHOOL PART 2 600 | 0.8131451643 | $277,690 | $277,690 | $225.80 | | |
| STATESCHL | STATE SCHOOL 600 | 1.5158548041 | $277,690 | $277,690 | $420.94 | | |
| STREFUND | STATE REFUND LEVY 603 | 0.0000000000 | $277,690 | $277,690 | $0.00 | | |
| CWWBOND | C OF WW BOND 643 | 0.2760494372 | $277,690 | $277,690 | $76.66 | | |
| CWWGEN | CITY OF WW 631 | 1.6100204973 | $277,690 | $277,690 | $447.09 | | |
| CWWRFD | CITY OF WALLA WALLA REFUND 631 | 0.0000000000 | $277,690 | $277,690 | $0.00 | | |
| | Total Tax Rate: | 8.7973694689 | | | | | |
| | | | | Taxes w/Current Exemptions: | $2,442.95 | | |
| | | | | Taxes w/o Exemptions: | $2,442.95 | | |
Improvement / Building
| Improvement #1: | RESIDENTIAL | State Code: | 11 | 1217.0 sqft | Value: | $240,190 |
| Exterior Wall: | SIDING | Heating/Cooling: | WARM & COOLED AIR | | Number of Bathrooms: | 2 | Number of Bedrooms: | 2 | | Plumbing: | 9 | Roof Covering: | COMP SHINGLE |
|
| | Type | Description | Class CD | Sub Class CD | Year Built | Area |
| | MA | Main Area | 1 | 35 | 1911 | 1217.0 |
| | SI1 | SITE IMPROVEMENT | 1 | 35 | 1911 | 2.0 |
| | WDR | WOOD DECK W/ROOF | 1 | 35 | 1911 | 102.0 |
| | WOD | Wood Deck | 1 | 35 | 1911 | 120.0 |
| | UTST | Utility Storage Shed | 1 | 35 | 1911 | 100.0 |
Sketch
Property Image
Land
| 1 | RES 1 | Converted: Residential | 0.1377 | 6000.00 | 0.00 | 0.00 | 1.00 | $37,500 | $0 |
Roll Value History
| 2026 | N/A | N/A | N/A | N/A | N/A |
| 2025 | $269,610 | $60,000 | $0 | $329,610 | $329,610 |
| 2024 | $269,610 | $60,000 | $0 | $329,610 | $329,610 |
| 2023 | $240,190 | $37,500 | $0 | $277,690 | $277,690 |
| 2022 | $228,750 | $37,500 | $0 | $266,250 | $266,250 |
| 2021 | $171,600 | $37,500 | $0 | $209,100 | $209,100 |
| 2020 | $132,000 | $37,500 | $0 | $169,500 | $169,500 |
| 2019 | $132,000 | $37,500 | $0 | $169,500 | $169,500 |
| 2018 | $132,000 | $37,500 | $0 | $169,500 | $169,500 |
| 2017 | $114,550 | $24,000 | $0 | $138,550 | $138,550 |
| 2016 | $109,100 | $24,000 | $0 | $133,100 | $133,100 |
| 2015 | $103,900 | $24,000 | $0 | $127,900 | $127,900 |
| 2014 | $103,900 | $24,000 | $0 | $127,900 | $127,900 |
| 2013 | $103,900 | $24,000 | $0 | $127,900 | $127,900 |
| 2012 | $109,800 | $24,000 | $0 | $0 | $0 |
| 2011 | $109,800 | $24,000 | $0 | $0 | $0 |
| 2010 | $103,400 | $24,000 | $0 | $0 | $0 |
| 2009 | $117,600 | $24,000 | $0 | $0 | $0 |
| 2008 | $104,700 | $24,000 | $0 | $0 | $0 |
| 2007 | $104,700 | $24,000 | $0 | $0 | $0 |
Deed and Sales History
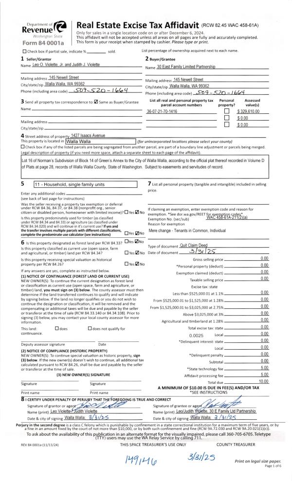
| 1 | 03/31/2025 | QCD | QUIT CLAIM DEED | VIOLETTE LEO O & JUDITH J | 30 EAST FAMILY LIMITED PARTNERSHIP | | | | 149146 | 2025-01694 |
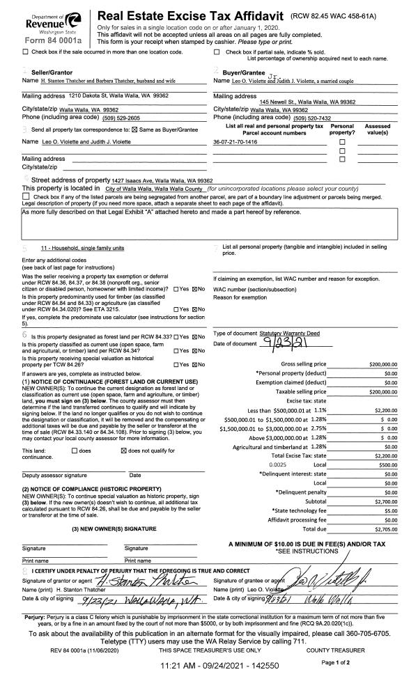
| 2 | 09/24/2021 | SWD | STATUTORY WARRANTY DEED | THATCHER H STANTON & BARBARA J | VIOLETTE LEO O & JUDITH J | | | $200,000.00 | 142550 | 2021-11707 |
| 3 | 01/31/1996 | WARRANTY D | WARRANTY DEED | | | | | $72,500.00 | 85539 | 2379-601008 |
Payout Agreement
| No payout information available.. |