Property
Account |
| Property ID: | 30533 | Abbreviated Legal Description: | CAINS LOT 7 BLK 10 |
| Parcel Number: | 360720571007 | Agent Code: | |
| Type: | Real | | |
| Tax Area: | 1 - OL-140-F | Land Use Code | 65 |
| Open Space: | N | DFL | N |
| Historic Property: | N | Remodel Property: | N |
| Multi-Family Redevelopment: | N | | |
| Township: | 7 | Section: | 20 |
| Range: | 36 |
Location |
| Address: | 409 E SUMACH ST WA 99362 | Mapsco: | |
| Neighborhood: | WW Downtown Core area #3 | Map ID: | |
| Neighborhood CD: | 5343 |
Owner |
| Name: | B & E PROPERTIES LLC | Owner ID: | 69773 |
| Mailing Address: | 409 E SUMACH ST WALLA WALLA, WA 99362 | % Ownership: | 100.0000000000% |
| | | Exemptions: | |
Taxes and Assessment Details
Values
| (+) Improvement Homesite Value: | + | $0 | |
| (+) Improvement Non-Homesite Value: | + | $266,400 | |
| (+) Land Homesite Value: | + | $0 | |
| (+) Land Non-Homesite Value: | + | $28,800 | |
| (+) Curr Use (HS): | + | $0 | $0 |
| (+) Curr Use (NHS): | + | $0 | $0 |
| | | -------------------------- | |
| (=) Market Value: | = | $295,200 | |
| (–) Productivity Loss: | – | $0 | |
| | | -------------------------- | |
| (=) Subtotal: | = | $295,200 | |
| (+) Senior Appraised Value: | + | $0 | |
| (+) Non-Senior Appraised Value: | + | $295,200 | |
| | | -------------------------- | |
| (=) Total Appraised Value: | = | $295,200 | |
| (–) Senior Exemption Loss: | – | $0 | |
| (–) Exemption Loss: | – | $0 | |
| | | -------------------------- | |
| (=) Taxable Value: | = | $295,200 | |
Taxing Jurisdiction
| Owner: | B & E PROPERTIES LLC | | |
| % Ownership: | 100.0000000000% | | |
| Total Value: | $295,200 | | |
| Tax Area: | 1 - OL-140-F |
| CERFD | CURRENT EXPENSE REFUND 010 | 0.0000000000 | $295,200 | $295,200 | $0.00 | | |
| CURREXP | CURRENT EXPENSE 010 | 1.0175366760 | $295,200 | $295,200 | $300.38 | | |
| HUMNSERV | HUMAN SERVICES 119 | 0.0250000000 | $295,200 | $295,200 | $7.38 | | |
| SLDREL | SOLDIERS RELIEF 121 | 0.0155990005 | $295,200 | $295,200 | $4.60 | | |
| EMERGSER | EMS 147 | 0.3792580840 | $295,200 | $295,200 | $111.96 | | |
| EMSRFD | EMS REFUND 147 | 0.0000000000 | $295,200 | $295,200 | $0.00 | | |
| PORTRFD | PORT REFUND 640 | 0.0000000000 | $295,200 | $295,200 | $0.00 | | |
| PORTWWGEN | PORT OF WW 640 | 0.2460186015 | $295,200 | $295,200 | $72.62 | | |
| SD140BOND | SD #140 BOND 764 | 0.8342371393 | $295,200 | $295,200 | $246.27 | | |
| SD140GEN | SD #140 GENERAL 760 | 2.0646500647 | $295,200 | $295,200 | $609.48 | | |
| ST2 | STATE SCHOOL PART 2 600 | 0.8131451643 | $295,200 | $295,200 | $240.04 | | |
| STATESCHL | STATE SCHOOL 600 | 1.5158548041 | $295,200 | $295,200 | $447.48 | | |
| STREFUND | STATE REFUND LEVY 603 | 0.0000000000 | $295,200 | $295,200 | $0.00 | | |
| CWWBOND | C OF WW BOND 643 | 0.2760494372 | $295,200 | $295,200 | $81.49 | | |
| CWWGEN | CITY OF WW 631 | 1.6100204973 | $295,200 | $295,200 | $475.28 | | |
| CWWRFD | CITY OF WALLA WALLA REFUND 631 | 0.0000000000 | $295,200 | $295,200 | $0.00 | | |
| | Total Tax Rate: | 8.7973694689 | | | | | |
| | | | | Taxes w/Current Exemptions: | $2,596.98 | | |
| | | | | Taxes w/o Exemptions: | $2,596.98 | | |
Improvement / Building
| Improvement #1: | COMMERCIAL | State Code: | 65 | 2384.0 sqft | Value: | $266,400 |
| | Type | Description | Class CD | Sub Class CD | Year Built | Area |
| | MA | Main Area | D | * | 1900 | 2384.0 |
| | SI1 | SITE IMPROVEMENT | D | * | 1900 | 3.0 |
Sketch
Property Image
Land
| 1 | RES 1 | Converted: Residential | 0.1653 | 7200.00 | 0.00 | 0.00 | 1.00 | $28,800 | $0 |
Roll Value History
| 2026 | N/A | N/A | N/A | N/A | N/A |
| 2025 | $305,600 | $43,200 | $0 | $348,800 | $348,800 |
| 2024 | $295,800 | $43,200 | $0 | $339,000 | $339,000 |
| 2023 | $266,400 | $28,800 | $0 | $295,200 | $295,200 |
| 2022 | $266,400 | $28,800 | $0 | $295,200 | $295,200 |
| 2021 | $266,400 | $28,800 | $0 | $295,200 | $295,200 |
| 2020 | $266,400 | $28,800 | $0 | $295,200 | $295,200 |
| 2019 | $266,400 | $28,800 | $0 | $295,200 | $295,200 |
| 2018 | $266,400 | $28,800 | $0 | $295,200 | $295,200 |
| 2017 | $211,420 | $21,600 | $0 | $233,020 | $233,020 |
| 2016 | $192,200 | $21,600 | $0 | $213,800 | $213,800 |
| 2015 | $192,200 | $21,600 | $0 | $213,800 | $213,800 |
| 2014 | $160,200 | $21,600 | $0 | $181,800 | $181,800 |
| 2013 | $160,200 | $21,600 | $0 | $181,800 | $181,800 |
| 2012 | $160,200 | $21,600 | $0 | $0 | $0 |
| 2011 | $160,200 | $21,600 | $0 | $0 | $0 |
| 2010 | $136,500 | $21,600 | $0 | $0 | $0 |
| 2009 | $154,100 | $21,600 | $0 | $0 | $0 |
| 2008 | $138,100 | $21,600 | $0 | $0 | $0 |
| 2007 | $138,100 | $21,600 | $0 | $0 | $0 |
Deed and Sales History
| 1 | 07/08/2021 | QCD | QUIT CLAIM DEED | WRIGHT BOBBY J | B & E PROPERTIES LLC | | | $0.00 | 142015 | 2021-08423 |
| 2 | 05/07/2021 | SWD | STATUTORY WARRANTY DEED | THOMPSON LARRY G & JUDITH A | WRIGHT BOBBY J | | | $362,200.00 | 141504 | 2021-05444 |
| 3 | 02/24/2020 | QCD | QUIT CLAIM DEED | THOMPSON STEPHEN M | THOMPSON LARRY G & JUDITH A | | | $263,400.00 | 138662 | 2020-01675 |
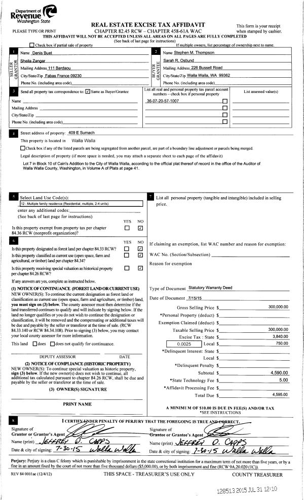
| 4 | 07/31/2015 | SWD | STATUTORY WARRANTY DEED | BUET DENIS & ZANGAR SHEILA N | THOMPSON STEPHEN M | | | $300,000.00 | 128513 | 2015-06589 |
| 5 | 07/30/2004 | WARRANTY D | WARRANTY DEED | PETERSEN, DAVID A & LUCIE | BUET, DENIS | | | $132,500.00 | 105377 | 2004-08660 |
| 6 | 04/04/1988 | WARRANTY D | WARRANTY DEED | | | | | $29,500.00 | 0 | 1698-802010 |
Payout Agreement
| No payout information available.. |