Property
Account |
| Property ID: | 30532 | Abbreviated Legal Description: | 28-7-36 TAX 127A |
| Parcel Number: | 360728110066 | Agent Code: | |
| Type: | Real | | |
| Tax Area: | 1 - OL-140-F | Land Use Code | 11 |
| Open Space: | N | DFL | N |
| Historic Property: | N | Remodel Property: | N |
| Multi-Family Redevelopment: | N | | |
| Township: | 7 | Section: | 28 |
| Range: | 36 |
Location |
| Address: | 1254 PLEASANT ST WA 99362 | Mapsco: | |
| Neighborhood: | G Res | Map ID: | |
| Neighborhood CD: | 614011 |
Owner |
| Name: | BEST RICHARD | Owner ID: | 60201 |
| Mailing Address: | 1254 PLEASANT ST WALLA WALLA, WA 99362 | % Ownership: | 100.0000000000% |
| | | Exemptions: | |
Taxes and Assessment Details
Values
| (+) Improvement Homesite Value: | + | $0 | |
| (+) Improvement Non-Homesite Value: | + | $214,830 | |
| (+) Land Homesite Value: | + | $0 | |
| (+) Land Non-Homesite Value: | + | $82,760 | |
| (+) Curr Use (HS): | + | $0 | $0 |
| (+) Curr Use (NHS): | + | $0 | $0 |
| | | -------------------------- | |
| (=) Market Value: | = | $297,590 | |
| (–) Productivity Loss: | – | $0 | |
| | | -------------------------- | |
| (=) Subtotal: | = | $297,590 | |
| (+) Senior Appraised Value: | + | $0 | |
| (+) Non-Senior Appraised Value: | + | $297,590 | |
| | | -------------------------- | |
| (=) Total Appraised Value: | = | $297,590 | |
| (–) Senior Exemption Loss: | – | $0 | |
| (–) Exemption Loss: | – | $0 | |
| | | -------------------------- | |
| (=) Taxable Value: | = | $297,590 | |
Taxing Jurisdiction
| Owner: | BEST RICHARD | | |
| % Ownership: | 100.0000000000% | | |
| Total Value: | $297,590 | | |
| Tax Area: | 1 - OL-140-F |
| CERFD | CURRENT EXPENSE REFUND 010 | 0.0000000000 | $297,590 | $297,590 | $0.00 | | |
| CURREXP | CURRENT EXPENSE 010 | 1.0175366760 | $297,590 | $297,590 | $302.81 | | |
| HUMNSERV | HUMAN SERVICES 119 | 0.0250000000 | $297,590 | $297,590 | $7.44 | | |
| SLDREL | SOLDIERS RELIEF 121 | 0.0155990005 | $297,590 | $297,590 | $4.64 | | |
| EMERGSER | EMS 147 | 0.3792580840 | $297,590 | $297,590 | $112.86 | | |
| EMSRFD | EMS REFUND 147 | 0.0000000000 | $297,590 | $297,590 | $0.00 | | |
| PORTRFD | PORT REFUND 640 | 0.0000000000 | $297,590 | $297,590 | $0.00 | | |
| PORTWWGEN | PORT OF WW 640 | 0.2460186015 | $297,590 | $297,590 | $73.21 | | |
| SD140BOND | SD #140 BOND 764 | 0.8342371393 | $297,590 | $297,590 | $248.26 | | |
| SD140GEN | SD #140 GENERAL 760 | 2.0646500647 | $297,590 | $297,590 | $614.42 | | |
| ST2 | STATE SCHOOL PART 2 600 | 0.8131451643 | $297,590 | $297,590 | $241.98 | | |
| STATESCHL | STATE SCHOOL 600 | 1.5158548041 | $297,590 | $297,590 | $451.10 | | |
| STREFUND | STATE REFUND LEVY 603 | 0.0000000000 | $297,590 | $297,590 | $0.00 | | |
| CWWBOND | C OF WW BOND 643 | 0.2760494372 | $297,590 | $297,590 | $82.15 | | |
| CWWGEN | CITY OF WW 631 | 1.6100204973 | $297,590 | $297,590 | $479.13 | | |
| CWWRFD | CITY OF WALLA WALLA REFUND 631 | 0.0000000000 | $297,590 | $297,590 | $0.00 | | |
| | Total Tax Rate: | 8.7973694689 | | | | | |
| | | | | Taxes w/Current Exemptions: | $2,618.00 | | |
| | | | | Taxes w/o Exemptions: | $2,618.00 | | |
Improvement / Building
| Improvement #1: | RESIDENTIAL | State Code: | 11 | 1232.0 sqft | Value: | $214,830 |
| Exterior Wall: | STUCCO | Foundation: | SLAB FOUNDATION | | Heating/Cooling: | WARM & COOLED AIR | Number of Bathrooms: | 1 | | Number of Bedrooms: | 2 | Plumbing: | 6 | | Roof Covering: | COMP SHINGLE |   |   |
|
| | Type | Description | Class CD | Sub Class CD | Year Built | Area |
| | MA | Main Area | 1 | 30 | 1949 | 1232.0 |
| | SI1 | SITE IMPROVEMENT | 1 | 30 | 1949 | 1.0 |
| | S1F | Single One Story Fireplace | 1 | 30 | 1949 | 1.0 |
| | PRC | PORCH W STEPS, ROOF,CEILED | 1 | 30 | 1949 | 8.0 |
| | DTG | Detached Garage | 1 | 30 | 1949 | 264.0 |
Sketch
Property Image
Land
| 1 | RES 1 | Converted: Residential | 0.1900 | 8276.00 | 0.00 | 0.00 | 1.00 | $82,760 | $0 |
Roll Value History
| 2026 | N/A | N/A | N/A | N/A | N/A |
| 2025 | $202,790 | $99,310 | $0 | $302,100 | $302,100 |
| 2024 | $214,830 | $82,760 | $0 | $297,590 | $297,590 |
| 2023 | $214,830 | $82,760 | $0 | $297,590 | $297,590 |
| 2022 | $214,830 | $68,280 | $0 | $283,110 | $283,110 |
| 2021 | $195,300 | $68,280 | $0 | $263,580 | $263,580 |
| 2020 | $139,500 | $68,280 | $0 | $207,780 | $207,780 |
| 2019 | $139,500 | $68,280 | $0 | $207,780 | $207,780 |
| 2018 | $121,970 | $45,700 | $0 | $167,670 | $167,670 |
| 2017 | $110,880 | $45,700 | $0 | $156,580 | $156,580 |
| 2016 | $69,300 | $45,700 | $0 | $115,000 | $115,000 |
| 2015 | $69,300 | $45,700 | $0 | $115,000 | $115,000 |
| 2014 | $69,300 | $45,700 | $0 | $115,000 | $115,000 |
| 2013 | $69,300 | $45,700 | $0 | $115,000 | $115,000 |
| 2012 | $69,300 | $45,700 | $0 | $0 | $0 |
| 2011 | $82,300 | $45,700 | $0 | $0 | $0 |
| 2010 | $71,700 | $45,700 | $0 | $0 | $0 |
| 2009 | $84,700 | $45,700 | $0 | $0 | $0 |
| 2008 | $84,700 | $45,700 | $0 | $0 | $0 |
| 2007 | $65,500 | $23,200 | $0 | $0 | $0 |
Deed and Sales History
| 1 | 12/28/2016 | SWD | STATUTORY WARRANTY DEED | BELL KENNETH & SARAH | BEST RICHARD | | | $166,500.00 | 131676 | 2016-10730 |
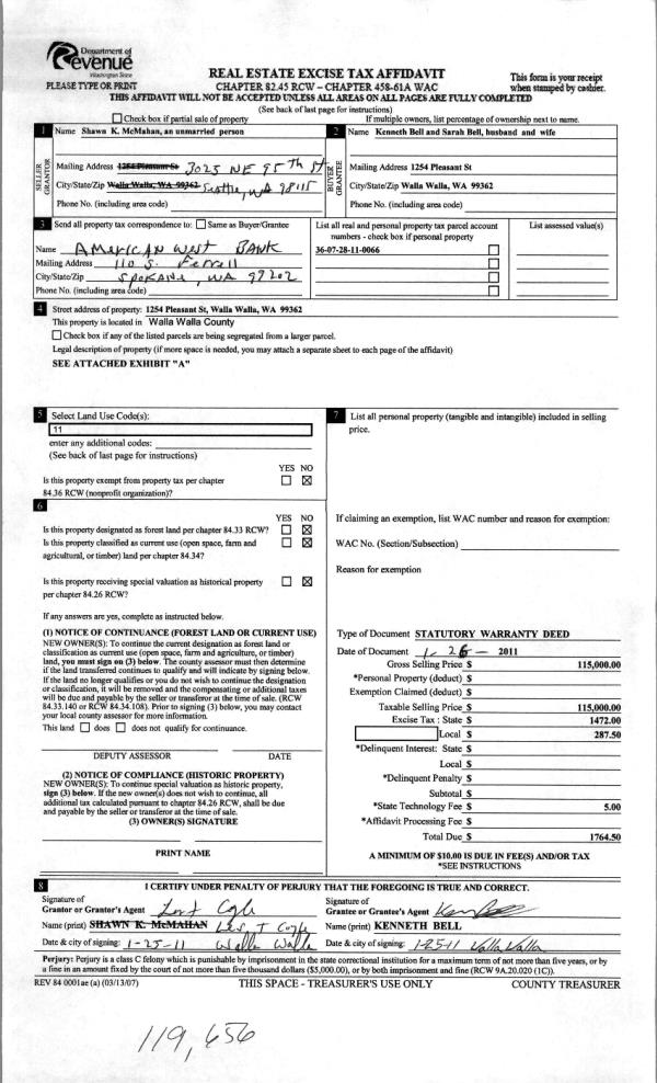
| 2 | 01/27/2011 | WARRANTY D | WARRANTY DEED | MC MAHAN, SHAUN K | BELL, KENNETH & SARAH | | | $115,000.00 | 119656 | 2011-00838 |
| 3 | 06/27/2005 | WARRANTY D | WARRANTY DEED | BROWN, JAMES G & LISA C | MC MAHAN, SHAUN K | | | $119,900.00 | 107813 | 2005-07770 |
| 4 | 04/02/2001 | WARRANTY D | WARRANTY DEED | | | | | $89,000.00 | 96871 | 3100-103172 |
Payout Agreement
| No payout information available.. |