Property
Account |
| Property ID: | 30526 | Abbreviated Legal Description: | 28-7-36 TAX 166 |
| Parcel Number: | 360728140100 | Agent Code: | |
| Type: | Real | | |
| Tax Area: | 105 - 140-F-4 | Land Use Code | 11 |
| Open Space: | N | DFL | N |
| Historic Property: | N | Remodel Property: | N |
| Multi-Family Redevelopment: | N | | |
| Township: | 7 | Section: | 28 |
| Range: | 36 |
Location |
| Address: | 1307 BRYANT AVE WA 99362 | Mapsco: | |
| Neighborhood: | A Res | Map ID: | |
| Neighborhood CD: | 613011 |
Owner |
| Name: | SCHULTHEIS PETER | Owner ID: | 70900 |
| Mailing Address: | 1307 BRYANT AVE WALLA WALLA, WA 99362 | % Ownership: | 100.0000000000% |
| | | Exemptions: | |
Taxes and Assessment Details
Property Tax Information as of
02/21/2026
Click on "Statement Details" to expand or collapse a tax statement.
* Please enter a valid date ** Please enter a valid date *
Statement Details |
| | TOTAL: | $0.00 | $0.00 | $0.00 | $0.00 | $0.00 | $0.00 |
|
| | $0.00 | $0.00 | $0.00 | $0.00 | $0.00 | $0.00 |
Values
| (+) Improvement Homesite Value: | + | $0 | |
| (+) Improvement Non-Homesite Value: | + | $227,260 | |
| (+) Land Homesite Value: | + | $0 | |
| (+) Land Non-Homesite Value: | + | $90,710 | |
| (+) Curr Use (HS): | + | $0 | $0 |
| (+) Curr Use (NHS): | + | $0 | $0 |
| | | -------------------------- | |
| (=) Market Value: | = | $317,970 | |
| (–) Productivity Loss: | – | $0 | |
| | | -------------------------- | |
| (=) Subtotal: | = | $317,970 | |
| (+) Senior Appraised Value: | + | $0 | |
| (+) Non-Senior Appraised Value: | + | $317,970 | |
| | | -------------------------- | |
| (=) Total Appraised Value: | = | $317,970 | |
| (–) Senior Exemption Loss: | – | $0 | |
| (–) Exemption Loss: | – | $0 | |
| | | -------------------------- | |
| (=) Taxable Value: | = | $317,970 | |
Taxing Jurisdiction
| Owner: | SCHULTHEIS PETER | | |
| % Ownership: | 100.0000000000% | | |
| Total Value: | $317,970 | | |
| Tax Area: | 105 - 140-F-4 |
| CERFD | CURRENT EXPENSE REFUND 010 | 0.0000000000 | $317,970 | $317,970 | $0.00 | | |
| CURREXP | CURRENT EXPENSE 010 | 1.0175366760 | $317,970 | $317,970 | $323.55 | | |
| HUMNSERV | HUMAN SERVICES 119 | 0.0250000000 | $317,970 | $317,970 | $7.95 | | |
| SLDREL | SOLDIERS RELIEF 121 | 0.0155990005 | $317,970 | $317,970 | $4.96 | | |
| EMERGSER | EMS 147 | 0.3792580840 | $317,970 | $317,970 | $120.59 | | |
| EMSRFD | EMS REFUND 147 | 0.0000000000 | $317,970 | $317,970 | $0.00 | | |
| FD4EXP | FD #4 EXPENSE 686 | 0.8836993059 | $317,970 | $317,970 | $280.99 | | |
| RLBRFD | RURAL LIBRARY REFUND 623 | 0.0000000000 | $317,970 | $317,970 | $0.00 | | |
| RURALLIB | RURAL LIBRARY 623 | 0.3710609029 | $317,970 | $317,970 | $117.99 | | |
| PORTRFD | PORT REFUND 640 | 0.0000000000 | $317,970 | $317,970 | $0.00 | | |
| PORTWWGEN | PORT OF WW 640 | 0.2460186015 | $317,970 | $317,970 | $78.23 | | |
| SD140BOND | SD #140 BOND 764 | 0.8342371393 | $317,970 | $317,970 | $265.26 | | |
| SD140GEN | SD #140 GENERAL 760 | 2.0646500647 | $317,970 | $317,970 | $656.50 | | |
| ST2 | STATE SCHOOL PART 2 600 | 0.8131451643 | $317,970 | $317,970 | $258.56 | | |
| STATESCHL | STATE SCHOOL 600 | 1.5158548041 | $317,970 | $317,970 | $482.00 | | |
| STREFUND | STATE REFUND LEVY 603 | 0.0000000000 | $317,970 | $317,970 | $0.00 | | |
| COROAD | COUNTY ROAD 115 | 1.6549953990 | $317,970 | $317,970 | $526.24 | | |
| CRPRD | COUNTY ROAD REFUND 115 | 0.0000000000 | $317,970 | $317,970 | $0.00 | | |
| | Total Tax Rate: | 9.8210551422 | | | | | |
| | | | | Taxes w/Current Exemptions: | $3,122.82 | | |
| | | | | Taxes w/o Exemptions: | $3,122.82 | | |
Improvement / Building
| Improvement #1: | RESIDENTIAL | State Code: | 11 | 1332.0 sqft | Value: | $227,260 |
| Exterior Wall: | CONCRETE BLOCK | Foundation: | SLAB FOUNDATION | | Heating/Cooling: | WARM & COOLED AIR | Number of Bathrooms: | 1 | | Number of Bedrooms: | 2 | Plumbing: | 6 | | Roof Covering: | COMP SHINGLE |   |   |
|
| | Type | Description | Class CD | Sub Class CD | Year Built | Area |
| | MA | Main Area | 1 | 30 | 1950 | 1332.0 |
| | SI1 | SITE IMPROVEMENT | 1 | 30 | 1950 | 2.0 |
| | S1F | Single One Story Fireplace | 1 | 30 | 1950 | 1.0 |
| | CPC | COVERED CARPORT/PATIO | 1 | 30 | 1950 | 138.0 |
| | CPC | COVERED CARPORT/PATIO | 1 | 30 | 1950 | 368.0 |
| | ATG | Attached Garage | 1 | 30 | 1950 | 468.0 |
Sketch
Property Image
Land
| 1 | RES 1 | Converted: Residential | 0.2500 | 10890.00 | 0.00 | 0.00 | 1.00 | $90,710 | $0 |
Roll Value History
| 2026 | N/A | N/A | N/A | N/A | N/A |
| 2025 | $232,020 | $110,860 | $0 | $342,880 | $342,880 |
| 2024 | $238,630 | $90,710 | $0 | $329,340 | $329,340 |
| 2023 | $227,260 | $90,710 | $0 | $317,970 | $317,970 |
| 2022 | $216,440 | $72,960 | $0 | $289,400 | $289,400 |
| 2021 | $173,150 | $72,960 | $0 | $246,110 | $246,110 |
| 2020 | $123,680 | $72,960 | $0 | $196,640 | $196,640 |
| 2019 | $123,680 | $72,960 | $0 | $196,640 | $196,640 |
| 2018 | $141,550 | $47,900 | $0 | $189,450 | $189,450 |
| 2017 | $128,690 | $47,900 | $0 | $176,590 | $176,590 |
| 2016 | $111,900 | $47,900 | $0 | $159,800 | $159,800 |
| 2015 | $111,900 | $47,900 | $0 | $159,800 | $159,800 |
| 2014 | $111,900 | $47,900 | $0 | $159,800 | $159,800 |
| 2013 | $111,900 | $47,900 | $0 | $159,800 | $159,800 |
| 2012 | $130,400 | $47,900 | $0 | $0 | $0 |
| 2011 | $121,900 | $47,900 | $0 | $0 | $0 |
| 2010 | $106,500 | $47,900 | $0 | $0 | $0 |
| 2009 | $123,700 | $47,900 | $0 | $0 | $0 |
| 2008 | $123,700 | $47,900 | $0 | $0 | $0 |
| 2007 | $61,300 | $25,400 | $0 | $0 | $0 |
Deed and Sales History
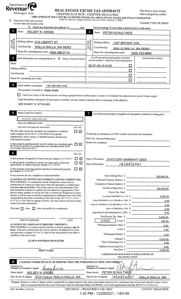
| 1 | 12/29/2021 | SWD | STATUTORY WARRANTY DEED | KREBS KELSEY N | SCHULTHEIS PETER | | | $320,000.00 | 143149 | 2021-15130 |
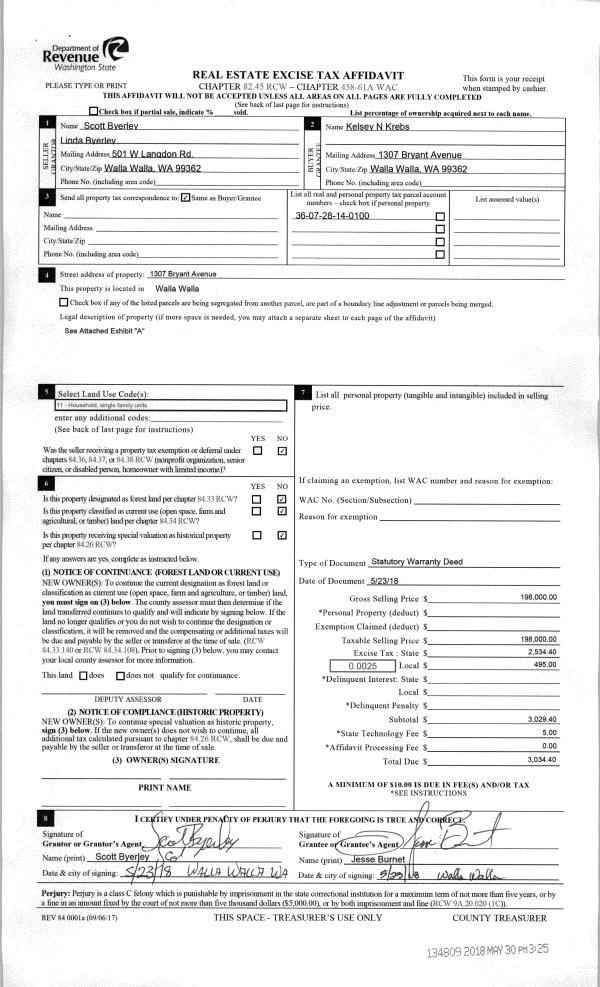
| 2 | 05/30/2018 | SWD | STATUTORY WARRANTY DEED | BYERLEY SCOTT & LINDA | KREBS KELSEY N | | | $198,000.00 | 134809 | 2018-04278 |
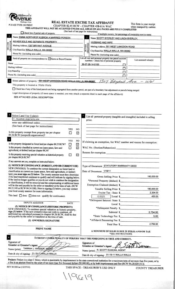
| 3 | 01/19/2011 | WARRANTY D | WARRANTY DEED | NORTHROP, EMMA | BYERLEY, SCOTT & LINDA | | | $180,000.00 | 119619 | 2011-00597 |
| 4 | 03/30/2009 | QCD | QUIT CLAIM DEED | NORTHROP, EMMA | NORTHROP, EMMA | | | | 116543 | 2009-03109 |
| 5 | 06/08/2007 | WARRANTY D | WARRANTY DEED | WILLIAMS, GEORGE M TRUST (ESTA | NORTHROP, EMMA | | | $172,000.00 | 113011 | 2007-06533 |
| 6 | 07/18/1977 | QCD | QUIT CLAIM DEED | | | | | $39,000.00 | 0 | 1969-203253 |
Payout Agreement
| No payout information available.. |