Property
Account |
| Property ID: | 30517 | Abbreviated Legal Description: | HARVEST MEADOWS LOT 6 BLK 3 |
| Parcel Number: | 350601520306 | Agent Code: | |
| Type: | Real | | |
| Tax Area: | 75 - CP 250 | Land Use Code | 11 |
| Open Space: | N | DFL | N |
| Historic Property: | N | Remodel Property: | N |
| Multi-Family Redevelopment: | N | | |
| Township: | 6 | Section: | 1 |
| Range: | 35 |
Location |
| Address: | 920 SE HARVEST DR WA 99324 | Mapsco: | |
| Neighborhood: | G SFR Rural/City Inf | Map ID: | |
| Neighborhood CD: | 114012 |
Owner |
| Name: | DAVIS DOUGLAS M & ALEJANDRA M | Owner ID: | 66547 |
| Mailing Address: | PO BOX 2438 WALLA WALLA, WA 99362 | % Ownership: | 100.0000000000% |
| | | Exemptions: | |
Taxes and Assessment Details
Values
| (+) Improvement Homesite Value: | + | $377,070 | |
| (+) Improvement Non-Homesite Value: | + | $0 | |
| (+) Land Homesite Value: | + | $75,000 | |
| (+) Land Non-Homesite Value: | + | $0 | |
| (+) Curr Use (HS): | + | $0 | $0 |
| (+) Curr Use (NHS): | + | $0 | $0 |
| | | -------------------------- | |
| (=) Market Value: | = | $452,070 | |
| (–) Productivity Loss: | – | $0 | |
| | | -------------------------- | |
| (=) Subtotal: | = | $452,070 | |
| (+) Senior Appraised Value: | + | $0 | |
| (+) Non-Senior Appraised Value: | + | $452,070 | |
| | | -------------------------- | |
| (=) Total Appraised Value: | = | $452,070 | |
| (–) Senior Exemption Loss: | – | $0 | |
| (–) Exemption Loss: | – | $0 | |
| | | -------------------------- | |
| (=) Taxable Value: | = | $452,070 | |
Taxing Jurisdiction
| Owner: | DAVIS DOUGLAS M & ALEJANDRA M | | |
| % Ownership: | 100.0000000000% | | |
| Total Value: | $452,070 | | |
| Tax Area: | 75 - CP 250 |
| CERFD | CURRENT EXPENSE REFUND 010 | 0.0000000000 | $452,070 | $452,070 | $0.00 | | |
| CURREXP | CURRENT EXPENSE 010 | 1.0175366760 | $452,070 | $452,070 | $460.00 | | |
| HUMNSERV | HUMAN SERVICES 119 | 0.0250000000 | $452,070 | $452,070 | $11.30 | | |
| SLDREL | SOLDIERS RELIEF 121 | 0.0155990005 | $452,070 | $452,070 | $7.05 | | |
| COLLPLBOND | C OF CP BOND 644 | 0.4374241808 | $452,070 | $452,070 | $197.75 | | |
| COLLPLGEN | CITY OF CP 632 | 1.4453819216 | $452,070 | $452,070 | $653.41 | | |
| EMERGSER | EMS 147 | 0.3792580840 | $452,070 | $452,070 | $171.45 | | |
| EMSRFD | EMS REFUND 147 | 0.0000000000 | $452,070 | $452,070 | $0.00 | | |
| RURALLIB | RURAL LIBRARY 623 | 0.3710609029 | $452,070 | $452,070 | $167.75 | | |
| PORTRFD | PORT REFUND 640 | 0.0000000000 | $452,070 | $452,070 | $0.00 | | |
| PORTWWGEN | PORT OF WW 640 | 0.2460186015 | $452,070 | $452,070 | $111.22 | | |
| SD250BOND | SD #250 BOND 773 | 1.4560608159 | $452,070 | $452,070 | $658.24 | | |
| SD250GEN | SD #250 GENERAL 770 | 2.3880724087 | $452,070 | $452,070 | $1,079.58 | | |
| ST2 | STATE SCHOOL PART 2 600 | 0.8131451643 | $452,070 | $452,070 | $367.60 | | |
| STATESCHL | STATE SCHOOL 600 | 1.5158548041 | $452,070 | $452,070 | $685.27 | | |
| STREFUND | STATE REFUND LEVY 603 | 0.0000000000 | $452,070 | $452,070 | $0.00 | | |
| | Total Tax Rate: | 10.1104125603 | | | | | |
| | | | | Taxes w/Current Exemptions: | $4,570.62 | | |
| | | | | Taxes w/o Exemptions: | $4,570.62 | | |
Improvement / Building
| Improvement #1: | RESIDENTIAL | State Code: | 11 | 2049.0 sqft | Value: | $377,070 |
| Exterior Wall: | HARDBOARD | Heating/Cooling: | WARM & COOLED AIR | | Number of Bathrooms: | 2 | Number of Bedrooms: | 3 | | Plumbing: | 10 | Roof Covering: | COMP SHINGLE |
|
| | Type | Description | Class CD | Sub Class CD | Year Built | Area |
| | MA | Main Area | 1 | 35 | 1998 | 2049.0 |
| | SI1 | SITE IMPROVEMENT | 1 | 35 | 1998 | 2.5 |
| | ATG | Attached Garage | 1 | 35 | 1998 | 721.0 |
| | RPO | OPEN PORCH W/ROOF | 1 | 35 | 1998 | 148.0 |
| | RPC | OPEN PORCH W/ROOF , CEILED | 1 | 35 | 1998 | 36.0 |
| | GFP | GAS FIREPLACE | 1 | 35 | 1998 | 1.0 |
Sketch
Property Image
Land
| 1 | RES 1 | Converted: Residential | 0.2147 | 9351.00 | 0.00 | 0.00 | 1.00 | $75,000 | $0 |
Roll Value History
| 2026 | N/A | N/A | N/A | N/A | N/A |
| 2025 | $320,510 | $135,000 | $0 | $455,510 | $455,510 |
| 2024 | $377,070 | $75,000 | $0 | $452,070 | $452,070 |
| 2023 | $377,070 | $75,000 | $0 | $452,070 | $452,070 |
| 2022 | $352,400 | $75,000 | $0 | $427,400 | $427,400 |
| 2021 | $271,080 | $75,000 | $0 | $346,080 | $346,080 |
| 2020 | $258,170 | $75,000 | $0 | $333,170 | $333,170 |
| 2019 | $268,170 | $65,000 | $0 | $333,170 | $333,170 |
| 2018 | $206,280 | $65,000 | $0 | $271,280 | $271,280 |
| 2017 | $206,280 | $65,000 | $0 | $271,280 | $271,280 |
| 2016 | $196,460 | $65,000 | $0 | $261,460 | $261,460 |
| 2015 | $196,460 | $65,000 | $0 | $261,460 | $261,460 |
| 2014 | $178,600 | $65,000 | $0 | $243,600 | $243,600 |
| 2013 | $178,600 | $65,000 | $0 | $243,600 | $243,600 |
| 2012 | $178,600 | $65,000 | $0 | $0 | $0 |
| 2011 | $178,600 | $65,000 | $0 | $0 | $0 |
| 2010 | $178,600 | $65,000 | $0 | $0 | $0 |
| 2009 | $205,700 | $65,000 | $0 | $0 | $0 |
| 2008 | $162,400 | $35,000 | $0 | $0 | $0 |
| 2007 | $162,400 | $35,000 | $0 | $0 | $0 |
Deed and Sales History
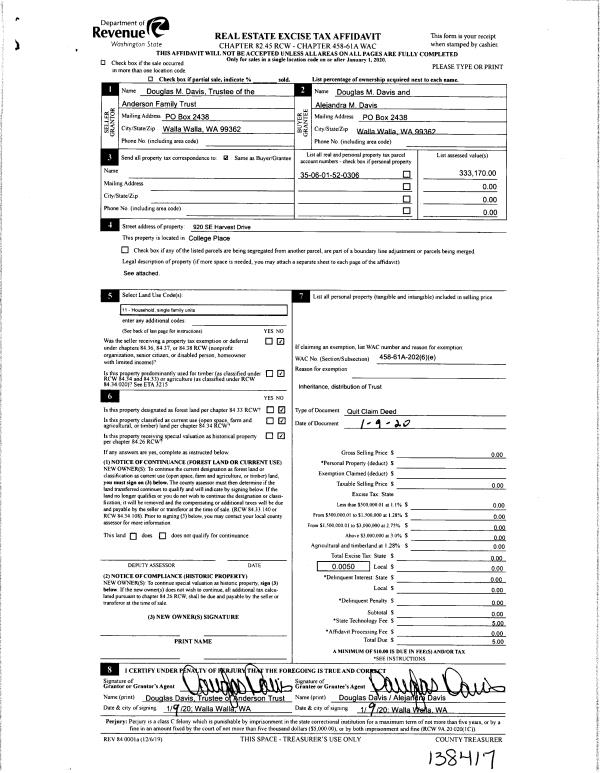
| 1 | 01/09/2020 | QCD | QUIT CLAIM DEED | ARLENE ANDERSON | DAVIS DOUGLAS M & ALEJANDRA M | | | $0.00 | 138417 | 2020-00357 |
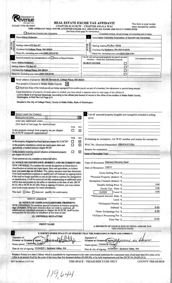
| 2 | 01/26/2011 | WARRANTY D | WARRANTY DEED | ANDERSON, ARLENE | UPPER COLUMBIA CORP SDA | | | | 119644 | 2011-00780 |
| 3 | 11/05/2010 | WARRANTY D | WARRANTY DEED | STREAMER, MARGARET ESTATE OF | ANDERSON, ARLENE | | | $249,000.00 | 119298 | 2010-03044 |
| 4 | 08/24/1999 | WARRANTY D | WARRANTY DEED | | | | | $172,000.00 | 93454 | 2889-909887 |
Payout Agreement
| No payout information available.. |