Property
Account |
| Property ID: | 30514 | Abbreviated Legal Description: | TABLEROCK SUBDIVISION II LOT 39 |
| Parcel Number: | 360604590039 | Agent Code: | |
| Type: | Real | | |
| Tax Area: | 5 - OL-140 | Land Use Code | 11 |
| Open Space: | N | DFL | N |
| Historic Property: | N | Remodel Property: | N |
| Multi-Family Redevelopment: | N | | |
| Township: | 6 | Section: | 4 |
| Range: | 36 |
Location |
| Address: | 404 COYOTE RIDGE DR WA 99362 | Mapsco: | |
| Neighborhood: | VG Res Rural/City Inf | Map ID: | |
| Neighborhood CD: | 615012 |
Owner |
| Name: | SMITH WADE & MARIANNE | Owner ID: | 59025 |
| Mailing Address: | 404 COYOTE RIDGE RD WALLA WALLA, WA 99362 | % Ownership: | 100.0000000000% |
| | | Exemptions: | |
Taxes and Assessment Details
Values
| (+) Improvement Homesite Value: | + | $0 | |
| (+) Improvement Non-Homesite Value: | + | $656,120 | |
| (+) Land Homesite Value: | + | $0 | |
| (+) Land Non-Homesite Value: | + | $120,000 | |
| (+) Curr Use (HS): | + | $0 | $0 |
| (+) Curr Use (NHS): | + | $0 | $0 |
| | | -------------------------- | |
| (=) Market Value: | = | $776,120 | |
| (–) Productivity Loss: | – | $0 | |
| | | -------------------------- | |
| (=) Subtotal: | = | $776,120 | |
| (+) Senior Appraised Value: | + | $0 | |
| (+) Non-Senior Appraised Value: | + | $776,120 | |
| | | -------------------------- | |
| (=) Total Appraised Value: | = | $776,120 | |
| (–) Senior Exemption Loss: | – | $0 | |
| (–) Exemption Loss: | – | $0 | |
| | | -------------------------- | |
| (=) Taxable Value: | = | $776,120 | |
Taxing Jurisdiction
| Owner: | SMITH WADE & MARIANNE | | |
| % Ownership: | 100.0000000000% | | |
| Total Value: | $776,120 | | |
| Tax Area: | 5 - OL-140 |
| CERFD | CURRENT EXPENSE REFUND 010 | 0.0000000000 | $776,120 | $776,120 | $0.00 | | |
| CURREXP | CURRENT EXPENSE 010 | 1.0175366760 | $776,120 | $776,120 | $789.73 | | |
| HUMNSERV | HUMAN SERVICES 119 | 0.0250000000 | $776,120 | $776,120 | $19.40 | | |
| SLDREL | SOLDIERS RELIEF 121 | 0.0155990005 | $776,120 | $776,120 | $12.11 | | |
| EMERGSER | EMS 147 | 0.3792580840 | $776,120 | $776,120 | $294.35 | | |
| EMSRFD | EMS REFUND 147 | 0.0000000000 | $776,120 | $776,120 | $0.00 | | |
| PORTRFD | PORT REFUND 640 | 0.0000000000 | $776,120 | $776,120 | $0.00 | | |
| PORTWWGEN | PORT OF WW 640 | 0.2460186015 | $776,120 | $776,120 | $190.94 | | |
| SD140BOND | SD #140 BOND 764 | 0.8342371393 | $776,120 | $776,120 | $647.47 | | |
| SD140GEN | SD #140 GENERAL 760 | 2.0646500647 | $776,120 | $776,120 | $1,602.42 | | |
| ST2 | STATE SCHOOL PART 2 600 | 0.8131451643 | $776,120 | $776,120 | $631.10 | | |
| STATESCHL | STATE SCHOOL 600 | 1.5158548041 | $776,120 | $776,120 | $1,176.49 | | |
| STREFUND | STATE REFUND LEVY 603 | 0.0000000000 | $776,120 | $776,120 | $0.00 | | |
| CWWBOND | C OF WW BOND 643 | 0.2760494372 | $776,120 | $776,120 | $214.25 | | |
| CWWGEN | CITY OF WW 631 | 1.6100204973 | $776,120 | $776,120 | $1,249.57 | | |
| CWWRFD | CITY OF WALLA WALLA REFUND 631 | 0.0000000000 | $776,120 | $776,120 | $0.00 | | |
| | Total Tax Rate: | 8.7973694689 | | | | | |
| | | | | Taxes w/Current Exemptions: | $6,827.83 | | |
| | | | | Taxes w/o Exemptions: | $6,827.83 | | |
Improvement / Building
| Improvement #1: | RESIDENTIAL | State Code: | 11 | 2869.0 sqft | Value: | $656,120 |
| Exterior Wall: | STUCCO | Heating/Cooling: | WARM & COOLED AIR | | Number of Bathrooms: | 3 | Number of Bedrooms: | 5 | | Plumbing: | 15 | Roof Covering: | COMP SHINGLE |
|
| | Type | Description | Class CD | Sub Class CD | Year Built | Area |
| | MA | Main Area | 1 | 45 | 2013 | 2869.0 |
| | BRF | BASEMENT - REC FINISH | 1 | 45 | 2013 | 1573.0 |
| | BIG | Built In Garage | 1 | 45 | 2013 | 947.0 |
| | RPC | OPEN PORCH W/ROOF , CEILED | 1 | 45 | 2013 | 80.0 |
| | RPC | OPEN PORCH W/ROOF , CEILED | 1 | 45 | 2013 | 166.0 |
| | GFP | GAS FIREPLACE | 1 | 45 | 2013 | 1.0 |
| | SI1 | SITE IMPROVEMENT | 1 | 45 | 2013 | 6.0 |
| | BLW | WOOD BALCONIES | 1 | 45 | 2013 | 166.0 |
| | BASE | BASEMENT | 1 | 45 | 2013 | 1573.0 |
Sketch
Property Image
Land
| 1 | RES 1 | Converted: Residential | 0.3040 | 13244.00 | 0.00 | 0.00 | 1.00 | $120,000 | $0 |
Roll Value History
| 2026 | N/A | N/A | N/A | N/A | N/A |
| 2025 | $658,050 | $180,000 | $0 | $838,050 | $838,050 |
| 2024 | $656,120 | $120,000 | $0 | $776,120 | $776,120 |
| 2023 | $656,120 | $120,000 | $0 | $776,120 | $776,120 |
| 2022 | $624,880 | $95,000 | $0 | $719,880 | $719,880 |
| 2021 | $568,070 | $95,000 | $0 | $663,070 | $663,070 |
| 2020 | $420,790 | $95,000 | $0 | $515,790 | $515,790 |
| 2019 | $420,790 | $95,000 | $0 | $515,790 | $515,790 |
| 2018 | $436,620 | $50,000 | $0 | $486,620 | $486,620 |
| 2017 | $423,900 | $50,000 | $0 | $473,900 | $473,900 |
| 2016 | $423,900 | $50,000 | $0 | $473,900 | $473,900 |
| 2015 | $423,900 | $50,000 | $0 | $473,900 | $473,900 |
| 2014 | $423,900 | $50,000 | $0 | $473,900 | $473,900 |
| 2013 | $0 | $50,000 | $0 | $50,000 | $50,000 |
| 2012 | $0 | $65,000 | $0 | $0 | $0 |
| 2011 | $0 | $80,000 | $0 | $0 | $0 |
| 2010 | $0 | $80,000 | $0 | $0 | $0 |
| 2009 | $0 | $80,000 | $0 | $0 | $0 |
| 2008 | $0 | $80,000 | $0 | $0 | $0 |
| 2007 | $0 | $500 | $0 | $0 | $0 |
Deed and Sales History
| 1 | 06/30/2016 | SWD | STATUTORY WARRANTY DEED | NICOARA RADU & CRISTINA | SMITH WADE & MARIANNE | | | $487,500.00 | 130538 | 2016-05069 |
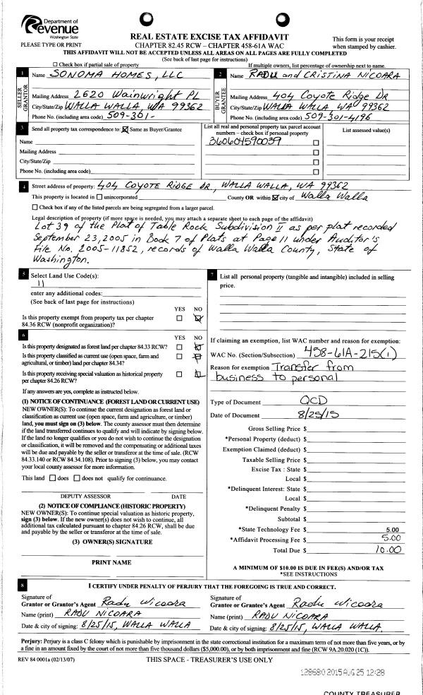
| 2 | 08/25/2015 | QCD | QUIT CLAIM DEED | SONOMA HOMES LLC | NICOARA RADU & CRISTINA | | | $0.00 | 128680 | 2015-07444 |
| 3 | 06/20/2013 | WARRANTY D | WARRANTY DEED | PEHA, CHRIS ALLAN K & JENNIFER | SONOMA HOMES LLC | | | $75,000.00 | 124158 | 2013-06201 |
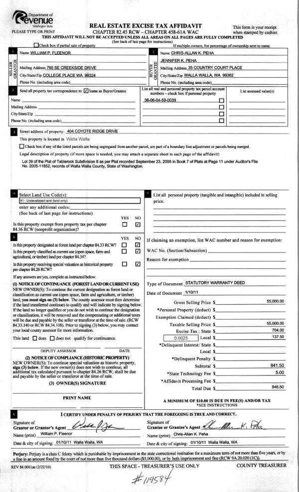
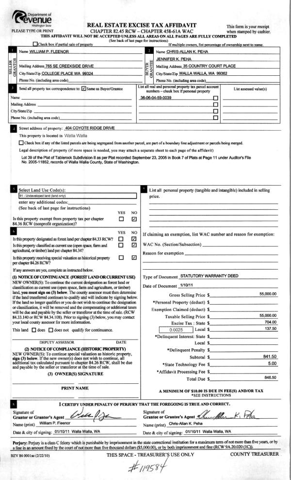
| 4 | 01/10/2011 | WARRANTY D | WARRANTY DEED | FLEENOR, WILLIAM P | PEHA, CHRIS ALLAN K & JENNIFER | | | $55,000.00 | 119584 | 2011-00326 |
| 5 | 08/09/2006 | WARRANTY D | WARRANTY DEED | GATEWOOD, W PAUL & CAROL | FLEENOR, WILLIAM P | | | $67,500.00 | 110914 | 2006-09490 |
Payout Agreement
| No payout information available.. |