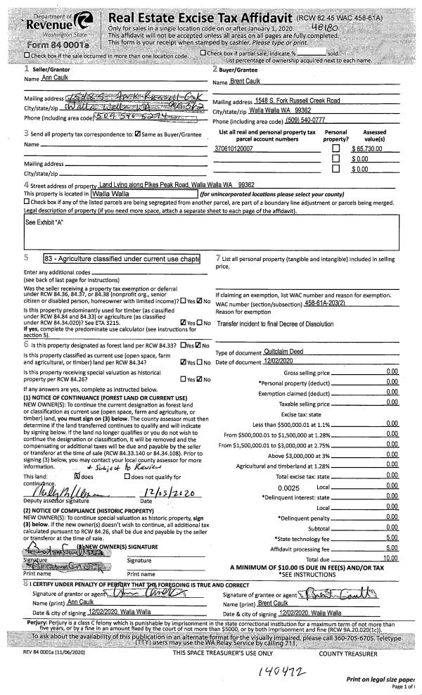
Property
Account |
| Property ID: | 30490 | Abbreviated Legal Description: | 10-6-37 PARCEL TWO OF LARGE LOT SEG SURVEY 2010-03476 (SLY PTN NW1/4NE1/4;SW1/4NE1/4; SELY PTN NE1/4NW1/4; SE1/4NW1/4 LESS NWLY PTN; NLYSTRIP OF NE1/4SW1/4; SELY PTN SW1/4NW1/4 LY ELY OF S FORK RUSSELLCR RD; NELY PTN NW1/4SW1/4 LY ELY OF S FO |
| Parcel Number: | 370610120007 | Agent Code: | |
| Type: | Real | | |
| Tax Area: | 101 - 140-4 | Land Use Code | 83 |
| Open Space: | Y | DFL | N |
| Historic Property: | N | Remodel Property: | N |
| Multi-Family Redevelopment: | N | | |
| Township: | 6 | Section: | 10 |
| Range: | 37 |
Location |
| Address: | SOUTH FORK RUSSELL CREEK RD WA 99362 | Mapsco: | |
| Neighborhood: | 0 Farm | Map ID: | |
| Neighborhood CD: | 4240 |
Owner |
| Name: | CAULK BRENT | Owner ID: | 68344 |
| Mailing Address: | 633 N DIVISION ST WALLA WALLA, WA 99362 | % Ownership: | 100.0000000000% |
| | | Exemptions: | |
Taxes and Assessment Details
Values
| (+) Improvement Homesite Value: | + | $0 | |
| (+) Improvement Non-Homesite Value: | + | $435,430 | |
| (+) Land Homesite Value: | + | $0 | |
| (+) Land Non-Homesite Value: | + | $140,000 | |
| (+) Curr Use (HS): | + | $0 | $0 |
| (+) Curr Use (NHS): | + | $181,500 | $67,580 |
| | | -------------------------- | |
| (=) Market Value: | = | $756,930 | |
| (–) Productivity Loss: | – | $113,920 | |
| | | -------------------------- | |
| (=) Subtotal: | = | $643,010 | |
| (+) Senior Appraised Value: | + | $0 | |
| (+) Non-Senior Appraised Value: | + | $643,010 | |
| | | -------------------------- | |
| (=) Total Appraised Value: | = | $643,010 | |
| (–) Senior Exemption Loss: | – | $0 | |
| (–) Exemption Loss: | – | $0 | |
| | | -------------------------- | |
| (=) Taxable Value: | = | $643,010 | |
Taxing Jurisdiction
| Owner: | CAULK BRENT | | |
| % Ownership: | 100.0000000000% | | |
| Total Value: | $756,930 | | |
| Tax Area: | 101 - 140-4 |
| CERFD | CURRENT EXPENSE REFUND 010 | 0.0000000000 | $643,010 | $643,010 | $0.00 | | |
| CURREXP | CURRENT EXPENSE 010 | 1.0175366760 | $643,010 | $643,010 | $654.29 | | |
| HUMNSERV | HUMAN SERVICES 119 | 0.0250000000 | $643,010 | $643,010 | $16.08 | | |
| SLDREL | SOLDIERS RELIEF 121 | 0.0155990005 | $643,010 | $643,010 | $10.03 | | |
| EMERGSER | EMS 147 | 0.3792580840 | $643,010 | $643,010 | $243.87 | | |
| EMSRFD | EMS REFUND 147 | 0.0000000000 | $643,010 | $643,010 | $0.00 | | |
| FD4EXP | FD #4 EXPENSE 686 | 0.8836993059 | $643,010 | $643,010 | $568.23 | | |
| RLBRFD | RURAL LIBRARY REFUND 623 | 0.0000000000 | $643,010 | $643,010 | $0.00 | | |
| RURALLIB | RURAL LIBRARY 623 | 0.3710609029 | $643,010 | $643,010 | $238.60 | | |
| PORTRFD | PORT REFUND 640 | 0.0000000000 | $643,010 | $643,010 | $0.00 | | |
| PORTWWGEN | PORT OF WW 640 | 0.2460186015 | $643,010 | $643,010 | $158.19 | | |
| SD140BOND | SD #140 BOND 764 | 0.8342371393 | $643,010 | $643,010 | $536.42 | | |
| SD140GEN | SD #140 GENERAL 760 | 2.0646500647 | $643,010 | $643,010 | $1,327.59 | | |
| ST2 | STATE SCHOOL PART 2 600 | 0.8131451643 | $643,010 | $643,010 | $522.86 | | |
| STATESCHL | STATE SCHOOL 600 | 1.5158548041 | $643,010 | $643,010 | $974.71 | | |
| STREFUND | STATE REFUND LEVY 603 | 0.0000000000 | $643,010 | $643,010 | $0.00 | | |
| COROAD | COUNTY ROAD 115 | 1.6549953990 | $643,010 | $643,010 | $1,064.18 | | |
| CRPRD | COUNTY ROAD REFUND 115 | 0.0000000000 | $643,010 | $643,010 | $0.00 | | |
| | Total Tax Rate: | 9.8210551422 | | | | | |
| | | | | Taxes w/Current Exemptions: | $6,315.05 | | |
| | | | | Taxes w/o Exemptions: | $6,315.05 | | |
Improvement / Building
| Improvement #1: | RESIDENTIAL | State Code: | 83 | 2136.0 sqft | Value: | $435,430 |
| Exterior Wall: | METAL/STEEL | Heating/Cooling: | MINI-SPLIT HP SYSTEM | | Number of Bathrooms: | 2 | Number of Bedrooms: | 3 | | Plumbing: | 12 | Roof Covering: | METAL ROOFING |
|
| | Type | Description | Class CD | Sub Class CD | Year Built | Area |
| | MA | Main Area | POLE LVG G | POLE LVG G | 2022 | 2136.0 |
| | UPFL | Upper Floor (included in main area) | POLE LVG G | POLE LVG G | 2022 | 840.0 |
| | POL3-2 STY | POLE 3 BLD 2 STY | 2 | 40 | 2022 | 2160.0 |
Sketch
Property Image
Land
| 1 | 10-HS | Homesite 10 | 1.0000 | 43560.00 | 0.00 | 0.00 | 1.00 | $140,000 | $0 |
| 2 | 1-PAST | Pasture | 16.5500 | 720918.00 | 0.00 | 0.00 | 1.00 | $9,100 | $2,980 |
| 3 | WASTE | Waste | 2.0000 | 0.00 | 0.00 | 0.00 | 1.00 | $0 | $0 |
| 4 | 55-C2AN | Class 2 55 BU Annual | 100.0000 | 0.00 | 0.00 | 0.00 | 1.00 | $172,400 | $64,600 |
Roll Value History
| 2026 | N/A | N/A | N/A | N/A | N/A |
| 2025 | $405,800 | $331,500 | $62,340 | $608,140 | $608,140 |
| 2024 | $435,430 | $326,500 | $65,710 | $641,140 | $641,140 |
| 2023 | $435,430 | $321,500 | $67,580 | $643,010 | $643,010 |
| 2022 | $0 | $168,750 | $65,060 | $65,060 | $65,060 |
| 2021 | $0 | $158,850 | $64,860 | $64,860 | $64,860 |
| 2020 | $0 | $149,080 | $65,730 | $65,730 | $65,730 |
| 2019 | $0 | $145,180 | $66,630 | $66,630 | $66,630 |
| 2018 | $0 | $144,680 | $75,930 | $75,930 | $75,930 |
| 2017 | $0 | $143,680 | $76,930 | $76,930 | $76,930 |
| 2016 | $0 | $143,680 | $77,130 | $77,130 | $77,130 |
| 2015 | $300 | $143,680 | $69,230 | $69,530 | $69,530 |
| 2014 | $300 | $143,680 | $69,230 | $69,530 | $69,530 |
| 2013 | $300 | $136,300 | $55,500 | $55,800 | $55,800 |
| 2012 | $1,700 | $36,600 | $0 | $0 | $0 |
| 2011 | $1,700 | $34,700 | $0 | $0 | $0 |
| 2010 | $300 | $136,300 | $0 | $0 | $0 |
Deed and Sales History
| 1 | 12/03/2020 | QCD | QUIT CLAIM DEED | CAULK ANN | CAULK BRENT | | | | 140472 | 2020-12762 |
| 2 | 11/22/2013 | QCD | QUIT CLAIM DEED | SCOTT SUE A CAULK S ERWIN | CAULK ANN | | | | 124979 | 2013-11437 |
Payout Agreement
| No payout information available.. |