Property
Account |
| Property ID: | 30472 | Abbreviated Legal Description: | 12-6-33 PARCEL 1 OF SHORT PLAT (S1/2SW1/4 WLY OF PINE CREEK IN SEC1; SE1/4SE1/4 SEC 2; N1/2NE1/4 SEC 11; NE1/4SW1/4 NELY OF DITCH INSEC 12; NE1/4NW1/4 LY WLY OF PINE CREEK IN SEC 12; W1/2NW1/4 SEC12; SE1/4NW1/4 SEC 12) |
| Parcel Number: | 330612210003 | Agent Code: | |
| Type: | Real | | |
| Tax Area: | 318 - 300-6-TM | Land Use Code | 83 |
| Open Space: | Y | DFL | N |
| Historic Property: | N | Remodel Property: | N |
| Multi-Family Redevelopment: | N | | |
| Township: | 6 | Section: | 12 |
| Range: | 33 |
Location |
| Address: | 1004 GARDENA RD WA 99360 | Mapsco: | |
| Neighborhood: | 0 Farm | Map ID: | |
| Neighborhood CD: | 2220 |
Owner |
| Name: | THE LANGDON GROUP WW LLC | Owner ID: | 56671 |
| Mailing Address: | PO BOX 167 TOUCHET, WA 99360 | % Ownership: | 100.0000000000% |
| | | Exemptions: | |
Taxes and Assessment Details
Values
| (+) Improvement Homesite Value: | + | $0 | |
| (+) Improvement Non-Homesite Value: | + | $336,840 | |
| (+) Land Homesite Value: | + | $0 | |
| (+) Land Non-Homesite Value: | + | $0 | |
| (+) Curr Use (HS): | + | $45,000 | $370 |
| (+) Curr Use (NHS): | + | $1,715,470 | $360,250 |
| | | -------------------------- | |
| (=) Market Value: | = | $2,097,310 | |
| (–) Productivity Loss: | – | $1,399,850 | |
| | | -------------------------- | |
| (=) Subtotal: | = | $697,460 | |
| (+) Senior Appraised Value: | + | $0 | |
| (+) Non-Senior Appraised Value: | + | $697,460 | |
| | | -------------------------- | |
| (=) Total Appraised Value: | = | $697,460 | |
| (–) Senior Exemption Loss: | – | $0 | |
| (–) Exemption Loss: | – | $0 | |
| | | -------------------------- | |
| (=) Taxable Value: | = | $697,460 | |
Taxing Jurisdiction
| Owner: | THE LANGDON GROUP WW LLC | | |
| % Ownership: | 100.0000000000% | | |
| Total Value: | $2,097,310 | | |
| Tax Area: | 318 - 300-6-TM |
| CERFD | CURRENT EXPENSE REFUND 010 | 0.0000000000 | $697,460 | $697,460 | $0.00 | | |
| CURREXP | CURRENT EXPENSE 010 | 1.0175366760 | $697,460 | $697,460 | $709.69 | | |
| HUMNSERV | HUMAN SERVICES 119 | 0.0250000000 | $697,460 | $697,460 | $17.44 | | |
| SLDREL | SOLDIERS RELIEF 121 | 0.0155990005 | $697,460 | $697,460 | $10.88 | | |
| EMERGSER | EMS 147 | 0.3792580840 | $697,460 | $697,460 | $264.52 | | |
| EMSRFD | EMS REFUND 147 | 0.0000000000 | $697,460 | $697,460 | $0.00 | | |
| FD6EXP | FD #6 EXPENSE 693 | 0.6692985746 | $697,460 | $697,460 | $466.81 | | |
| RLBRFD | RURAL LIBRARY REFUND 623 | 0.0000000000 | $697,460 | $697,460 | $0.00 | | |
| RURALLIB | RURAL LIBRARY 623 | 0.3710609029 | $697,460 | $697,460 | $258.80 | | |
| PORTRFD | PORT REFUND 640 | 0.0000000000 | $697,460 | $697,460 | $0.00 | | |
| PORTWWGEN | PORT OF WW 640 | 0.2460186015 | $697,460 | $697,460 | $171.59 | | |
| SD300BOND | SD #300 BOND 783 | 1.8964951620 | $697,460 | $697,460 | $1,322.73 | | |
| SD300GEN | SD #300 GENERAL 780 | 2.1198322866 | $697,460 | $697,460 | $1,478.50 | | |
| ST2 | STATE SCHOOL PART 2 600 | 0.8131451643 | $697,460 | $697,460 | $567.14 | | |
| STATESCHL | STATE SCHOOL 600 | 1.5158548041 | $697,460 | $697,460 | $1,057.25 | | |
| STREFUND | STATE REFUND LEVY 603 | 0.0000000000 | $697,460 | $697,460 | $0.00 | | |
| COROAD | COUNTY ROAD 115 | 1.6549953990 | $697,460 | $697,460 | $1,154.29 | | |
| CRPRD | COUNTY ROAD REFUND 115 | 0.0000000000 | $697,460 | $697,460 | $0.00 | | |
| | Total Tax Rate: | 10.7240946555 | | | | | |
| | | | | Taxes w/Current Exemptions: | $7,479.64 | | |
| | | | | Taxes w/o Exemptions: | $7,479.64 | | |
Improvement / Building
| Improvement #1: | FARM BUILDINGS | State Code: | 83 | 0.0 sqft | Value: | $116,020 |
| | Type | Description | Class CD | Sub Class CD | Year Built | Area |
| | IMPL-BLDG | IMPLEMENT BUILDING | 1 | 30 | 2016 | 2880.0 |
| | POL3 | POLE BUILDING-CON,ELEC,INSU | 1 | 30 | 2016 | 3384.0 |
| | FBAT | FULL BATH | 1 | 30 | 2016 | 1.0 |
| Improvement #2: | MANUFACTURED HOME | State Code: | 83 | 1512.0 sqft | Value: | $220,820 |
| Exterior Wall: | CEMENT FIBER | Heating/Cooling: | WARM & COOLED AIR | | Number of Bathrooms: | 2 | Number of Bedrooms: | 3 | | Plumbing: | 10 | Roof Covering: | COMP SHINGLE |
|
| | Type | Description | Class CD | Sub Class CD | Year Built | Area |
| | MOBHOME | MANUFACTURD HOMES | 1 | 40 | 2019 | 1512.0 |
| | MI1 | MH SET-UP COSTS | 1 | 40 | 2019 | 1.0 |
| | DTG | Detached Garage | 1 | 40 | 2019 | 782.0 |
| | LNT | LEAN TO DIRT FLOOR | 1 | 40 | 2019 | 207.0 |
| | WOD | Wood Deck | 1 | 40 | 2019 | 480.0 |
Sketch
Property Image
Land
| 1 | C2-I | Class 2 Irrigated | 317.6800 | 0.00 | 0.00 | 0.00 | 1.00 | $1,715,470 | $360,250 |
| 2 | WASTE | Waste | 25.6000 | 0.00 | 0.00 | 0.00 | 1.00 | $0 | $0 |
| 3 | 45000-HS4 | Homesite 45000 Open Space | 1.0000 | 0.00 | 0.00 | 0.00 | 1.00 | $45,000 | $370 |
Roll Value History
| 2026 | N/A | N/A | N/A | N/A | N/A |
| 2025 | $336,840 | $1,887,540 | $355,920 | $692,760 | $692,760 |
| 2024 | $336,840 | $1,824,010 | $362,610 | $699,450 | $699,450 |
| 2023 | $336,840 | $1,760,470 | $360,620 | $697,460 | $697,460 |
| 2022 | $336,840 | $1,633,400 | $347,910 | $684,750 | $684,750 |
| 2021 | $336,840 | $1,474,560 | $354,580 | $691,420 | $691,420 |
| 2020 | $245,880 | $1,143,650 | $361,520 | $607,400 | $607,400 |
| 2019 | $116,020 | $1,016,580 | $372,960 | $488,980 | $488,980 |
| 2018 | $116,020 | $984,810 | $379,950 | $495,970 | $495,970 |
| 2017 | $116,020 | $984,810 | $392,020 | $508,040 | $508,040 |
| 2016 | $0 | $984,810 | $393,610 | $393,610 | $393,610 |
| 2015 | $0 | $857,740 | $358,340 | $358,340 | $358,340 |
| 2014 | $0 | $857,740 | $358,340 | $358,340 | $358,340 |
| 2013 | $0 | $826,000 | $307,500 | $307,500 | $307,500 |
| 2012 | $0 | $244,900 | $0 | $0 | $0 |
| 2011 | $0 | $235,100 | $0 | $0 | $0 |
| 2010 | $0 | $242,400 | $0 | $0 | $0 |
| 2009 | $0 | $238,300 | $0 | $0 | $0 |
| 2008 | $0 | $301,200 | $0 | $0 | $0 |
| 2007 | $0 | $301,200 | $0 | $0 | $0 |
Deed and Sales History
| 1 | 05/29/2015 | SWD | STATUTORY WARRANTY DEED | ESTES MARGARET TRUSTEE OF THE | THE LANGDON GROUP WW LLC | | | $918,000.00 | 128068 | 2015-04559 |
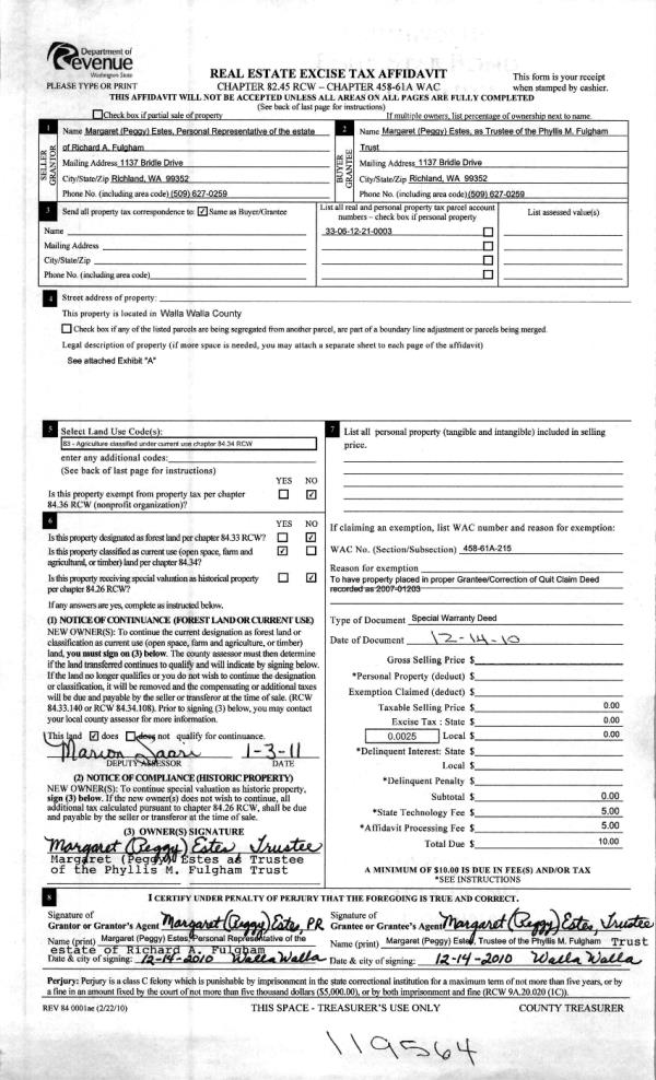
| 2 | 01/03/2011 | WARRANTY D | WARRANTY DEED | FULGHAM, RICHARD A ESTATE OF | ESTES, MARGARET TRUSTEE OF THE | | | | 119564 | 2010-00111 |
| 3 | 10/30/2007 | WARRANTY D | WARRANTY DEED | "FULGHAM, PHYLLIS M ESTATE~OF" | | | | | 0 | CC #07-4-00001-0 |
| 4 | 01/31/2007 | QCD | QUIT CLAIM DEED | FULGHAM, ROBERT M & NAOMI G | FULGHAM, RICHARD A | | | | 112156 | 2007-01203 |
Payout Agreement
| No payout information available.. |