Property
Account |
| Property ID: | 30433 | Abbreviated Legal Description: | MTN VIEW TAX 4 BLK 26 |
| Parcel Number: | 360729852606 | Agent Code: | |
| Type: | Real | | |
| Tax Area: | 1 - OL-140-F | Land Use Code | 11 |
| Open Space: | N | DFL | N |
| Historic Property: | N | Remodel Property: | N |
| Multi-Family Redevelopment: | N | | |
| Township: | 7 | Section: | 29 |
| Range: | 36 |
Location |
| Address: | 28 SHERIDAN RD WA 99362 | Mapsco: | |
| Neighborhood: | A Res | Map ID: | |
| Neighborhood CD: | 613011 |
Owner |
| Name: | DODDS TIMOTHY | Owner ID: | 54662 |
| Mailing Address: | 20 SHERIDAN RD WALLA WALLA, WA 99362 | % Ownership: | 100.0000000000% |
| | | Exemptions: | |
Taxes and Assessment Details
Values
| (+) Improvement Homesite Value: | + | $0 | |
| (+) Improvement Non-Homesite Value: | + | $60,580 | |
| (+) Land Homesite Value: | + | $0 | |
| (+) Land Non-Homesite Value: | + | $51,840 | |
| (+) Curr Use (HS): | + | $0 | $0 |
| (+) Curr Use (NHS): | + | $0 | $0 |
| | | -------------------------- | |
| (=) Market Value: | = | $112,420 | |
| (–) Productivity Loss: | – | $0 | |
| | | -------------------------- | |
| (=) Subtotal: | = | $112,420 | |
| (+) Senior Appraised Value: | + | $0 | |
| (+) Non-Senior Appraised Value: | + | $112,420 | |
| | | -------------------------- | |
| (=) Total Appraised Value: | = | $112,420 | |
| (–) Senior Exemption Loss: | – | $0 | |
| (–) Exemption Loss: | – | $0 | |
| | | -------------------------- | |
| (=) Taxable Value: | = | $112,420 | |
Taxing Jurisdiction
| Owner: | DODDS TIMOTHY | | |
| % Ownership: | 100.0000000000% | | |
| Total Value: | $112,420 | | |
| Tax Area: | 1 - OL-140-F |
| CERFD | CURRENT EXPENSE REFUND 010 | 0.0000000000 | $112,420 | $112,420 | $0.00 | | |
| CURREXP | CURRENT EXPENSE 010 | 1.0175366760 | $112,420 | $112,420 | $114.39 | | |
| HUMNSERV | HUMAN SERVICES 119 | 0.0250000000 | $112,420 | $112,420 | $2.81 | | |
| SLDREL | SOLDIERS RELIEF 121 | 0.0155990005 | $112,420 | $112,420 | $1.75 | | |
| EMERGSER | EMS 147 | 0.3792580840 | $112,420 | $112,420 | $42.64 | | |
| EMSRFD | EMS REFUND 147 | 0.0000000000 | $112,420 | $112,420 | $0.00 | | |
| PORTRFD | PORT REFUND 640 | 0.0000000000 | $112,420 | $112,420 | $0.00 | | |
| PORTWWGEN | PORT OF WW 640 | 0.2460186015 | $112,420 | $112,420 | $27.66 | | |
| SD140BOND | SD #140 BOND 764 | 0.8342371393 | $112,420 | $112,420 | $93.78 | | |
| SD140GEN | SD #140 GENERAL 760 | 2.0646500647 | $112,420 | $112,420 | $232.11 | | |
| ST2 | STATE SCHOOL PART 2 600 | 0.8131451643 | $112,420 | $112,420 | $91.41 | | |
| STATESCHL | STATE SCHOOL 600 | 1.5158548041 | $112,420 | $112,420 | $170.41 | | |
| STREFUND | STATE REFUND LEVY 603 | 0.0000000000 | $112,420 | $112,420 | $0.00 | | |
| CWWBOND | C OF WW BOND 643 | 0.2760494372 | $112,420 | $112,420 | $31.03 | | |
| CWWGEN | CITY OF WW 631 | 1.6100204973 | $112,420 | $112,420 | $181.00 | | |
| CWWRFD | CITY OF WALLA WALLA REFUND 631 | 0.0000000000 | $112,420 | $112,420 | $0.00 | | |
| | Total Tax Rate: | 8.7973694689 | | | | | |
| | | | | Taxes w/Current Exemptions: | $988.99 | | |
| | | | | Taxes w/o Exemptions: | $988.99 | | |
Improvement / Building
| Improvement #1: | RESIDENTIAL | State Code: | 11 | 578.0 sqft | Value: | $60,580 |
| Exterior Wall: | SIDING | Foundation: | POST & PIER | | Heating/Cooling: | BASEBOARD ELECTRIC | Number of Bathrooms: | 1 | | Number of Bedrooms: | 1 | Plumbing: | 6 | | Roof Covering: | COMP SHINGLE |   |   |
|
| | Type | Description | Class CD | Sub Class CD | Year Built | Area |
| | MA | Main Area | 1 | 15 | 1930 | 578.0 |
| | SI1 | SITE IMPROVEMENT | 1 | 15 | 1930 | 1.0 |
| | RPO | OPEN PORCH W/ROOF | 1 | 15 | 1930 | 20.0 |
| | DTG | Detached Garage | 1 | 15 | 1930 | 396.0 |
Sketch
Property Image
Land
| 1 | RES 1 | Converted: Residential | 0.1322 | 5760.00 | 0.00 | 0.00 | 1.00 | $51,840 | $0 |
Roll Value History
| 2026 | N/A | N/A | N/A | N/A | N/A |
| 2025 | $49,630 | $63,360 | $0 | $112,990 | $112,990 |
| 2024 | $60,580 | $51,840 | $0 | $112,420 | $112,420 |
| 2023 | $60,580 | $51,840 | $0 | $112,420 | $112,420 |
| 2022 | $60,580 | $41,760 | $0 | $102,340 | $102,340 |
| 2021 | $30,290 | $41,760 | $0 | $72,050 | $72,050 |
| 2020 | $25,240 | $41,760 | $0 | $67,000 | $67,000 |
| 2019 | $25,240 | $41,760 | $0 | $67,000 | $67,000 |
| 2018 | $28,860 | $34,600 | $0 | $63,460 | $63,460 |
| 2017 | $22,200 | $34,600 | $0 | $56,800 | $56,800 |
| 2016 | $22,200 | $34,600 | $0 | $56,800 | $56,800 |
| 2015 | $22,200 | $34,600 | $0 | $56,800 | $56,800 |
| 2014 | $18,500 | $34,600 | $0 | $53,100 | $53,100 |
| 2013 | $18,500 | $34,600 | $0 | $53,100 | $53,100 |
| 2012 | $18,500 | $34,600 | $0 | $0 | $0 |
| 2011 | $16,000 | $34,600 | $0 | $0 | $0 |
| 2010 | $16,000 | $34,600 | $0 | $0 | $0 |
| 2009 | $45,700 | $34,600 | $0 | $0 | $0 |
| 2008 | $45,700 | $34,600 | $0 | $0 | $0 |
| 2007 | $21,200 | $17,300 | $0 | $0 | $0 |
Deed and Sales History
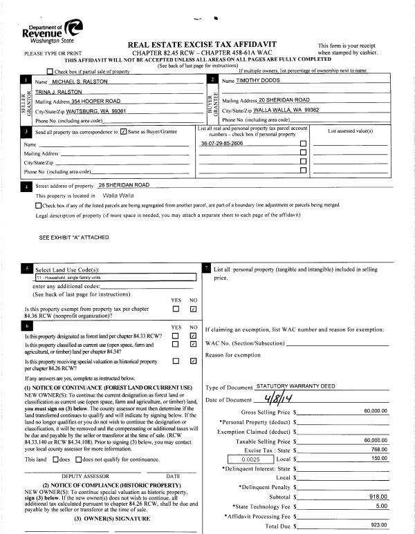
| 1 | 04/14/2014 | SWD | STATUTORY WARRANTY DEED | RALSTON MICHAEL S & TRINA J | DODDS TIMOTHY | | | $60,000.00 | 125721 | 2014-02535 |
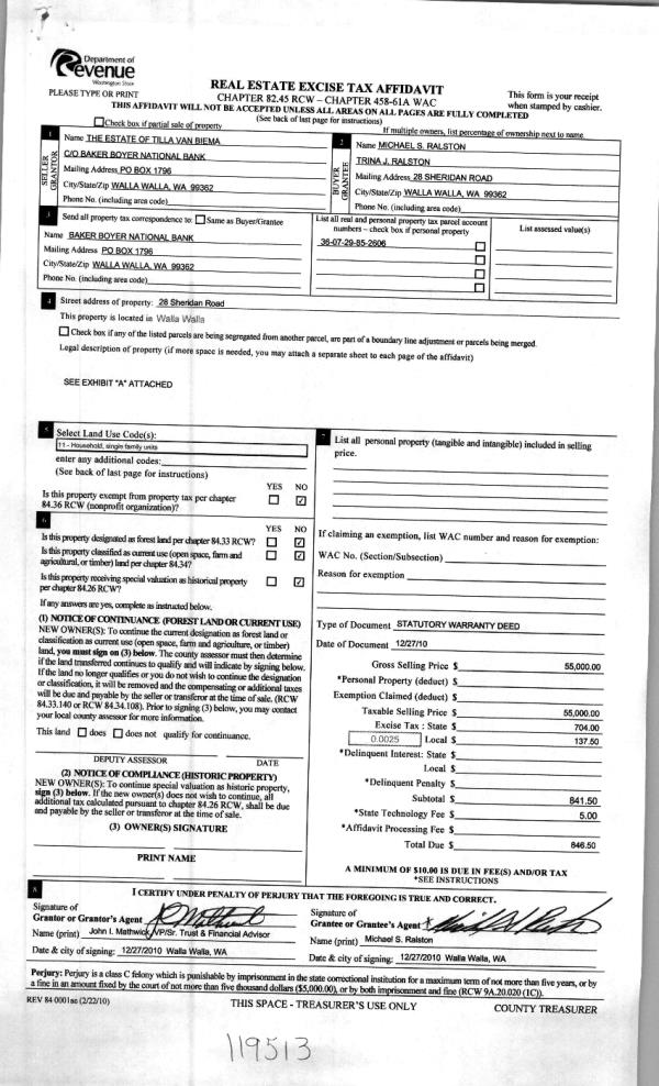
| 2 | 12/27/2010 | WARRANTY D | WARRANTY DEED | VAN BIEMA, TILLA ESTATE OF | RALSTON, MICHAEL S & TRINA J | | | $55,000.00 | 119513 | 2010-10731 |
| 3 | 07/01/1968 | WARRANTY D | WARRANTY DEED | | | | | $0.00 | 0 | 3270-495902 |
Payout Agreement
| No payout information available.. |