Property
Account |
| Property ID: | 30428 | Abbreviated Legal Description: | 21-7-36 TAX 207 |
| Parcel Number: | 360721240073 | Agent Code: | |
| Type: | Real | | |
| Tax Area: | 1 - OL-140-F | Land Use Code | 11 |
| Open Space: | N | DFL | N |
| Historic Property: | N | Remodel Property: | N |
| Multi-Family Redevelopment: | N | | |
| Township: | 7 | Section: | 21 |
| Range: | 36 |
Location |
| Address: | 236 N BELLEVUE AVE WA 99362 | Mapsco: | |
| Neighborhood: | A-SFR | Map ID: | |
| Neighborhood CD: | 513011 |
Owner |
| Name: | PODOLSKI RICHARD MICHAEL JR & CHRISTY MARIE | Owner ID: | 70574 |
| Mailing Address: | 236 N BELLEVUE AVE WALLA WALLA, WA 99362 | % Ownership: | 100.0000000000% |
| | | Exemptions: | |
Taxes and Assessment Details
Property Tax Information as of
04/19/2026
Click on "Statement Details" to expand or collapse a tax statement.
* Please enter a valid date ** Please enter a valid date *
Statement Details |
| | TOTAL: | $0.00 | $0.00 | $0.00 | $0.00 | $0.00 | $0.00 |
|
| | $0.00 | $0.00 | $0.00 | $0.00 | $0.00 | $0.00 |
Values
| (+) Improvement Homesite Value: | + | $419,660 | |
| (+) Improvement Non-Homesite Value: | + | $0 | |
| (+) Land Homesite Value: | + | $62,980 | |
| (+) Land Non-Homesite Value: | + | $0 | |
| (+) Curr Use (HS): | + | $0 | $0 |
| (+) Curr Use (NHS): | + | $0 | $0 |
| | | -------------------------- | |
| (=) Market Value: | = | $482,640 | |
| (–) Productivity Loss: | – | $0 | |
| | | -------------------------- | |
| (=) Subtotal: | = | $482,640 | |
| (+) Senior Appraised Value: | + | $0 | |
| (+) Non-Senior Appraised Value: | + | $482,640 | |
| | | -------------------------- | |
| (=) Total Appraised Value: | = | $482,640 | |
| (–) Senior Exemption Loss: | – | $0 | |
| (–) Exemption Loss: | – | $0 | |
| | | -------------------------- | |
| (=) Taxable Value: | = | $482,640 | |
Taxing Jurisdiction
| Owner: | PODOLSKI RICHARD MICHAEL JR & CHRISTY MARIE | | |
| % Ownership: | 100.0000000000% | | |
| Total Value: | $482,640 | | |
| Tax Area: | 1 - OL-140-F |
| CERFD | CURRENT EXPENSE REFUND 010 | 0.0000000000 | $482,640 | $482,640 | $0.00 | | |
| CURREXP | CURRENT EXPENSE 010 | 1.0175366760 | $482,640 | $482,640 | $491.10 | | |
| HUMNSERV | HUMAN SERVICES 119 | 0.0250000000 | $482,640 | $482,640 | $12.07 | | |
| SLDREL | SOLDIERS RELIEF 121 | 0.0155990005 | $482,640 | $482,640 | $7.53 | | |
| EMERGSER | EMS 147 | 0.3792580840 | $482,640 | $482,640 | $183.05 | | |
| EMSRFD | EMS REFUND 147 | 0.0000000000 | $482,640 | $482,640 | $0.00 | | |
| PORTRFD | PORT REFUND 640 | 0.0000000000 | $482,640 | $482,640 | $0.00 | | |
| PORTWWGEN | PORT OF WW 640 | 0.2460186015 | $482,640 | $482,640 | $118.74 | | |
| SD140BOND | SD #140 BOND 764 | 0.8342371393 | $482,640 | $482,640 | $402.64 | | |
| SD140GEN | SD #140 GENERAL 760 | 2.0646500647 | $482,640 | $482,640 | $996.48 | | |
| ST2 | STATE SCHOOL PART 2 600 | 0.8131451643 | $482,640 | $482,640 | $392.46 | | |
| STATESCHL | STATE SCHOOL 600 | 1.5158548041 | $482,640 | $482,640 | $731.61 | | |
| STREFUND | STATE REFUND LEVY 603 | 0.0000000000 | $482,640 | $482,640 | $0.00 | | |
| CWWBOND | C OF WW BOND 643 | 0.2760494372 | $482,640 | $482,640 | $133.23 | | |
| CWWGEN | CITY OF WW 631 | 1.6100204973 | $482,640 | $482,640 | $777.06 | | |
| CWWRFD | CITY OF WALLA WALLA REFUND 631 | 0.0000000000 | $482,640 | $482,640 | $0.00 | | |
| | Total Tax Rate: | 8.7973694689 | | | | | |
| | | | | Taxes w/Current Exemptions: | $4,245.97 | | |
| | | | | Taxes w/o Exemptions: | $4,245.97 | | |
Improvement / Building
| Improvement #1: | RESIDENTIAL | State Code: | 11 | 1930.0 sqft | Value: | $419,660 |
| Exterior Wall: | METAL/STEEL | Heating/Cooling: | WARM & COOLED AIR | | Number of Bathrooms: | 3 | Number of Bedrooms: | 2 | | Plumbing: | 13 | Roof Covering: | COMP SHINGLE |
|
| | Type | Description | Class CD | Sub Class CD | Year Built | Area |
| | MA | Main Area | 1 | 35 | 1940 | 1930.0 |
| | SI1 | SITE IMPROVEMENT | 1 | 35 | 1940 | 1.5 |
| | BASE | BASEMENT | 1 | 35 | 1940 | 886.0 |
| | BPF | BASEMENT -PARTITIONED FINISH | 1 | 35 | 1940 | 886.0 |
| | S2F | Single 2S Fireplace | 1 | 35 | 1940 | 1.0 |
| | WOD | Wood Deck | 1 | 35 | 1940 | 511.0 |
| | WDR | WOOD DECK W/ROOF | 1 | 35 | 1940 | 81.0 |
| | OPS | OPEN PORCH W/STEPS | 1 | 35 | 1940 | 45.0 |
| | DTG | Detached Garage | 1 | 35 | 1940 | 396.0 |
| | POL3 | POLE BUILDING-CON,ELEC,INSU | 1 | 35 | 0 | 925.0 |
Sketch
Property Image
Land
| 1 | RES 1 | Converted: Residential | 0.2476 | 10785.00 | 0.00 | 0.00 | 1.00 | $62,980 | $0 |
Roll Value History
| 2026 | N/A | N/A | N/A | N/A | N/A |
| 2025 | $388,200 | $100,620 | $0 | $488,820 | $488,820 |
| 2024 | $369,710 | $100,620 | $0 | $470,330 | $470,330 |
| 2023 | $419,660 | $62,980 | $0 | $482,640 | $482,640 |
| 2022 | $399,680 | $62,980 | $0 | $462,660 | $462,660 |
| 2021 | $180,130 | $62,980 | $0 | $243,110 | $243,110 |
| 2020 | $144,100 | $62,980 | $0 | $207,080 | $207,080 |
| 2019 | $144,100 | $62,980 | $0 | $207,080 | $193,980 |
| 2018 | $131,000 | $62,980 | $0 | $193,980 | $126,087 |
| 2017 | $136,800 | $40,600 | $0 | $177,400 | $177,400 |
| 2016 | $130,280 | $40,600 | $0 | $170,880 | $111,072 |
| 2015 | $124,080 | $40,600 | $0 | $164,680 | $164,680 |
| 2014 | $112,800 | $40,600 | $0 | $153,400 | $153,400 |
| 2013 | $112,800 | $40,600 | $0 | $153,400 | $153,400 |
| 2012 | $116,500 | $40,600 | $0 | $0 | $0 |
| 2011 | $144,200 | $40,600 | $0 | $0 | $0 |
| 2010 | $135,400 | $40,600 | $0 | $0 | $0 |
| 2009 | $155,000 | $40,600 | $0 | $0 | $0 |
| 2008 | $115,900 | $40,600 | $0 | $0 | $0 |
| 2007 | $115,900 | $40,600 | $0 | $0 | $0 |
Deed and Sales History
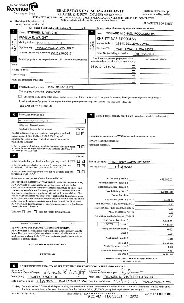
| 1 | 11/04/2021 | SWD | STATUTORY WARRANTY DEED | WRIGHT STEPHEN L & PAMELA R | PODOLSKI RICHARD MICHAEL JR & CHRISTY MARIE | | | $479,000.00 | 142802 | 2021-13240 |
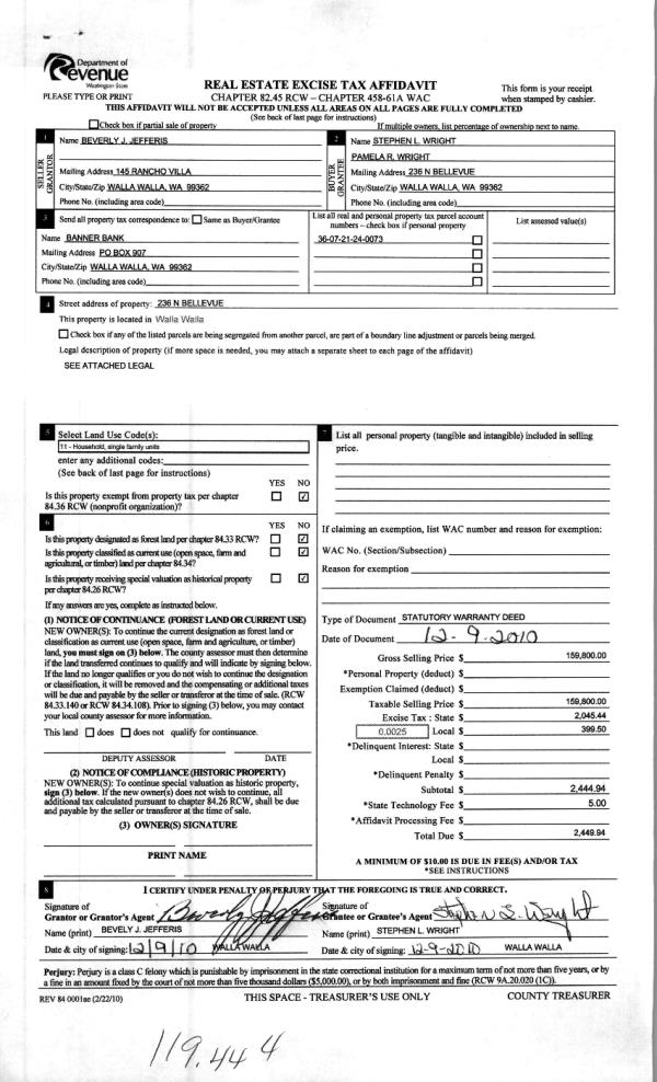
| 2 | 12/10/2010 | WARRANTY D | WARRANTY DEED | JEFFERIS, BEVERLY J | WRIGHT, STEPHEN L & PAMELA R | | | $159,800.00 | 119444 | 2010-10209 |
| 3 | 01/01/1956 | QCD | QUIT CLAIM DEED | | | | | $0.00 | 0 | 2770-386074 |
Payout Agreement
| No payout information available.. |