Property
Account |
| Property ID: | 30425 | Abbreviated Legal Description: | UNNUMBERED BLOCK-ROBERTS TAX 21 |
| Parcel Number: | 360729870425 | Agent Code: | |
| Type: | Real | | |
| Tax Area: | 1 - OL-140-F | Land Use Code | 11 |
| Open Space: | N | DFL | N |
| Historic Property: | N | Remodel Property: | N |
| Multi-Family Redevelopment: | N | | |
| Township: | 7 | Section: | 29 |
| Range: | 36 |
Location |
| Address: | 249 E BIRCH ST WA 99362 | Mapsco: | |
| Neighborhood: | G-SFR | Map ID: | |
| Neighborhood CD: | 514011 |
Owner |
| Name: | ROGAR AND RUTH BLAIR 2017 TRUST | Owner ID: | 73019 |
| Mailing Address: | 4201 PASSAGES LN MODESTO, CA 95356 | % Ownership: | 100.0000000000% |
| | | Exemptions: | |
Taxes and Assessment Details
Property Tax Information as of
02/21/2026
Click on "Statement Details" to expand or collapse a tax statement.
* Please enter a valid date ** Please enter a valid date *
Statement Details |
| | TOTAL: | $0.00 | $0.00 | $0.00 | $0.00 | $0.00 | $0.00 |
|
| | $0.00 | $0.00 | $0.00 | $0.00 | $0.00 | $0.00 |
Values
| (+) Improvement Homesite Value: | + | $0 | |
| (+) Improvement Non-Homesite Value: | + | $792,450 | |
| (+) Land Homesite Value: | + | $0 | |
| (+) Land Non-Homesite Value: | + | $65,250 | |
| (+) Curr Use (HS): | + | $0 | $0 |
| (+) Curr Use (NHS): | + | $0 | $0 |
| | | -------------------------- | |
| (=) Market Value: | = | $857,700 | |
| (–) Productivity Loss: | – | $0 | |
| | | -------------------------- | |
| (=) Subtotal: | = | $857,700 | |
| (+) Senior Appraised Value: | + | $0 | |
| (+) Non-Senior Appraised Value: | + | $857,700 | |
| | | -------------------------- | |
| (=) Total Appraised Value: | = | $857,700 | |
| (–) Senior Exemption Loss: | – | $0 | |
| (–) Exemption Loss: | – | $0 | |
| | | -------------------------- | |
| (=) Taxable Value: | = | $857,700 | |
Taxing Jurisdiction
| Owner: | ROGAR AND RUTH BLAIR 2017 TRUST | | |
| % Ownership: | 100.0000000000% | | |
| Total Value: | $857,700 | | |
| Tax Area: | 1 - OL-140-F |
| CERFD | CURRENT EXPENSE REFUND 010 | 0.0000000000 | $857,700 | $857,700 | $0.00 | | |
| CURREXP | CURRENT EXPENSE 010 | 1.0175366760 | $857,700 | $857,700 | $872.74 | | |
| HUMNSERV | HUMAN SERVICES 119 | 0.0250000000 | $857,700 | $857,700 | $21.44 | | |
| SLDREL | SOLDIERS RELIEF 121 | 0.0155990005 | $857,700 | $857,700 | $13.38 | | |
| EMERGSER | EMS 147 | 0.3792580840 | $857,700 | $857,700 | $325.29 | | |
| EMSRFD | EMS REFUND 147 | 0.0000000000 | $857,700 | $857,700 | $0.00 | | |
| PORTRFD | PORT REFUND 640 | 0.0000000000 | $857,700 | $857,700 | $0.00 | | |
| PORTWWGEN | PORT OF WW 640 | 0.2460186015 | $857,700 | $857,700 | $211.01 | | |
| SD140BOND | SD #140 BOND 764 | 0.8342371393 | $857,700 | $857,700 | $715.53 | | |
| SD140GEN | SD #140 GENERAL 760 | 2.0646500647 | $857,700 | $857,700 | $1,770.85 | | |
| ST2 | STATE SCHOOL PART 2 600 | 0.8131451643 | $857,700 | $857,700 | $697.43 | | |
| STATESCHL | STATE SCHOOL 600 | 1.5158548041 | $857,700 | $857,700 | $1,300.15 | | |
| STREFUND | STATE REFUND LEVY 603 | 0.0000000000 | $857,700 | $857,700 | $0.00 | | |
| CWWBOND | C OF WW BOND 643 | 0.2760494372 | $857,700 | $857,700 | $236.77 | | |
| CWWGEN | CITY OF WW 631 | 1.6100204973 | $857,700 | $857,700 | $1,380.91 | | |
| CWWRFD | CITY OF WALLA WALLA REFUND 631 | 0.0000000000 | $857,700 | $857,700 | $0.00 | | |
| | Total Tax Rate: | 8.7973694689 | | | | | |
| | | | | Taxes w/Current Exemptions: | $7,545.50 | | |
| | | | | Taxes w/o Exemptions: | $7,545.50 | | |
Improvement / Building
| Improvement #1: | RESIDENTIAL | State Code: | 11 | 2944.0 sqft | Value: | $792,450 |
| Exterior Wall: | STUCCO | Heating/Cooling: | WARM & COOLED AIR | | Number of Bathrooms: | 3.5 | Number of Bedrooms: | 4 | | Plumbing: | 15 | Roof Covering: | COMP SHINGLE |
|
| | Type | Description | Class CD | Sub Class CD | Year Built | Area |
| | MA | Main Area | 2 | 50 | 1912 | 2944.0 |
| | SI1 | SITE IMPROVEMENT | 2 | 50 | 0 | 3.0 |
| | BASE | BASEMENT | 2 | 50 | 1912 | 1408.0 |
| | BPF | BASEMENT -PARTITIONED FINISH | 2 | 50 | 1912 | 800.0 |
| | UPFL | Upper Floor (included in main area) | 2 | 50 | 1912 | 1440.0 |
| | D2F | Double 2 Story Fireplace | 2 | 50 | 1912 | 2.0 |
| | RCD | WOOD DECK W/ROOF, CEILED | 2 | 50 | 1912 | 320.0 |
| | WOD | Wood Deck | 2 | 50 | 1912 | 382.0 |
| | DTG | Detached Garage | 2 | 50 | 1912 | 480.0 |
Sketch
Property Image
Land
| 1 | RES 1 | Converted: Residential | 0.2066 | 9000.00 | 0.00 | 0.00 | 1.00 | $65,250 | $0 |
Roll Value History
| 2026 | N/A | N/A | N/A | N/A | N/A |
| 2025 | $766,600 | $99,000 | $0 | $865,600 | $865,600 |
| 2024 | $766,600 | $99,000 | $0 | $865,600 | $865,600 |
| 2023 | $792,450 | $65,250 | $0 | $857,700 | $857,700 |
| 2022 | $689,090 | $65,250 | $0 | $754,340 | $754,340 |
| 2021 | $459,390 | $65,250 | $0 | $524,640 | $524,640 |
| 2020 | $399,470 | $65,250 | $0 | $464,720 | $464,720 |
| 2019 | $399,470 | $65,250 | $0 | $464,720 | $464,720 |
| 2018 | $399,470 | $65,250 | $0 | $464,720 | $464,720 |
| 2017 | $310,390 | $40,500 | $0 | $350,890 | $350,890 |
| 2016 | $310,390 | $40,500 | $0 | $350,890 | $350,890 |
| 2015 | $310,390 | $40,500 | $0 | $350,890 | $350,890 |
| 2014 | $269,900 | $40,500 | $0 | $310,400 | $310,400 |
| 2013 | $269,900 | $40,500 | $0 | $310,400 | $310,400 |
| 2012 | $257,200 | $40,500 | $0 | $0 | $0 |
| 2011 | $290,300 | $40,500 | $0 | $0 | $0 |
| 2010 | $274,500 | $40,500 | $0 | $0 | $0 |
| 2009 | $309,500 | $40,500 | $0 | $0 | $0 |
| 2008 | $338,800 | $40,500 | $0 | $0 | $0 |
| 2007 | $338,800 | $40,500 | $0 | $0 | $0 |
Deed and Sales History
| 1 | 01/09/2023 | SWD | STATUTORY WARRANTY DEED | BLAIR ROGER J & RUTH A | ROGAR AND RUTH BLAIR 2017 TRUST | | | $0.00 | 145244 | 2023-00130 |
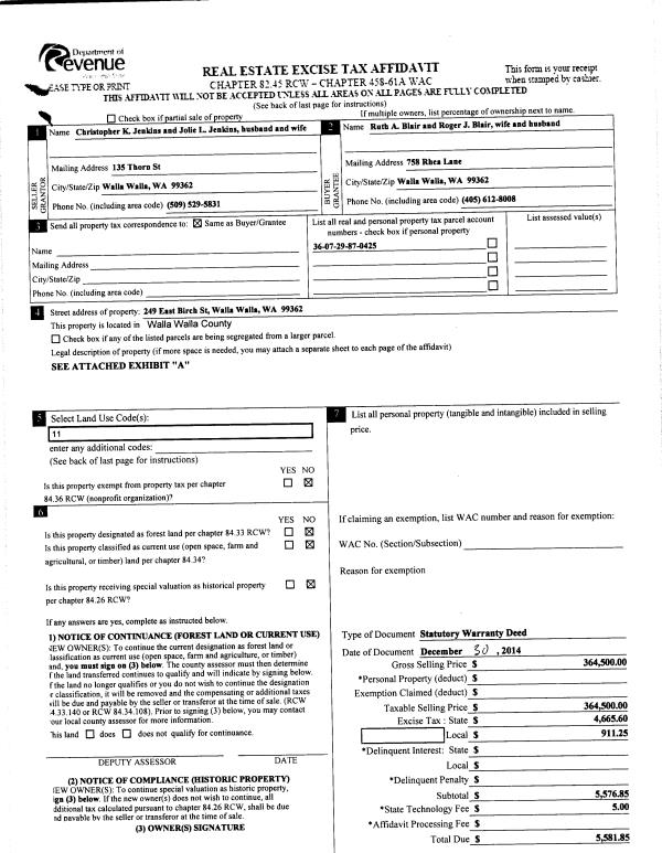
| 2 | 12/31/2014 | SWD | STATUTORY WARRANTY DEED | JENKINS CHRISTOPHER K & JOLIE L | BLAIR ROGER J & RUTH A | | | $364,500.00 | 127206 | 2014-09510 |
| 3 | 12/27/2010 | WARRANTY D | WARRANTY DEED | WARKENTIN, DAVID & JENNIFER | JENKINS, CHRISTOPHER K & JOLIE | | | $310,000.00 | 119514 | 2010-10733 |
| 4 | 12/13/2002 | WARRANTY D | WARRANTY DEED | DOBBINS, MICHAEL R | WARKENTIN, DAVID & JENNIFER | | | $190,000.00 | 101012 | 2002-14278 |
| 5 | 07/12/1979 | WARRANTY D | WARRANTY DEED | | | | | $38,000.00 | 0 | 1077-906526 |
Payout Agreement
| No payout information available.. |