Property
Account |
| Property ID: | 30418 | Abbreviated Legal Description: | EAST WALLA WALLA 1ST LOTS 21 & 22 BLK 3 |
| Parcel Number: | 360727540321 | Agent Code: | |
| Type: | Real | | |
| Tax Area: | 1 - OL-140-F | Land Use Code | 11 |
| Open Space: | N | DFL | N |
| Historic Property: | N | Remodel Property: | N |
| Multi-Family Redevelopment: | N | | |
| Township: | 7 | Section: | 27 |
| Range: | 36 |
Location |
| Address: | 1845 PLEASANT ST WA 99362 | Mapsco: | |
| Neighborhood: | A Inferior Res | Map ID: | |
| Neighborhood CD: | 413111 |
Owner |
| Name: | ASHLAND REBEKAH J | Owner ID: | 61571 |
| Mailing Address: | 1845 PLEASANT ST WALLA WALLA, WA 99362 | % Ownership: | 100.0000000000% |
| | | Exemptions: | |
Taxes and Assessment Details
Values
| (+) Improvement Homesite Value: | + | N/A | |
| (+) Improvement Non-Homesite Value: | + | N/A | |
| (+) Land Homesite Value: | + | N/A | |
| (+) Land Non-Homesite Value: | + | N/A | Ag / Timber Use Value |
| (+) Curr Use (HS): | + | N/A | N/A |
| (+) Curr Use (NHS): | + | N/A | N/A |
| | | -------------------------- | |
| (=) Market Value: | = | N/A | |
| (–) Productivity Loss: | – | N/A | |
| | | -------------------------- | |
| (=) Subtotal: | = | N/A | |
| (+) Senior Appraised Value: | + | N/A | |
| (+) Non-Senior Appraised Value: | + | N/A | |
| | | -------------------------- | |
| (=) Total Appraised Value: | = | N/A | |
| (–) Senior Exemption Loss: | – | N/A | |
| (–) Exemption Loss: | – | N/A | |
| | | -------------------------- | |
| (=) Taxable Value: | = | N/A | |
Taxing Jurisdiction
| Owner: | ASHLAND REBEKAH J | | |
| % Ownership: | 100.0000000000% | | |
| Total Value: | N/A | | |
| Tax Area: | 1 - OL-140-F |
| CERFD | CURRENT EXPENSE REFUND 010 | N/A | N/A | N/A | N/A | | |
| CURREXP | CURRENT EXPENSE 010 | N/A | N/A | N/A | N/A | | |
| HUMNSERV | HUMAN SERVICES 119 | N/A | N/A | N/A | N/A | | |
| SLDREL | SOLDIERS RELIEF 121 | N/A | N/A | N/A | N/A | | |
| EMERGSER | EMS 147 | N/A | N/A | N/A | N/A | | |
| EMSRFD | EMS REFUND 147 | N/A | N/A | N/A | N/A | | |
| PORTRFD | PORT REFUND 640 | N/A | N/A | N/A | N/A | | |
| PORTWWGEN | PORT OF WW 640 | N/A | N/A | N/A | N/A | | |
| SD140BOND | SD #140 BOND 764 | N/A | N/A | N/A | N/A | | |
| SD140GEN | SD #140 GENERAL 760 | N/A | N/A | N/A | N/A | | |
| ST2 | STATE SCHOOL PART 2 600 | N/A | N/A | N/A | N/A | | |
| STATESCHL | STATE SCHOOL 600 | N/A | N/A | N/A | N/A | | |
| STREFUND | STATE REFUND LEVY 603 | N/A | N/A | N/A | N/A | | |
| CWWBOND | C OF WW BOND 643 | N/A | N/A | N/A | N/A | | |
| CWWGEN | CITY OF WW 631 | N/A | N/A | N/A | N/A | | |
| CWWRFD | CITY OF WALLA WALLA REFUND 631 | N/A | N/A | N/A | N/A | | |
| | Total Tax Rate: | N/A | | | | | |
| | | | | Taxes w/Current Exemptions: | N/A | | |
| | | | | Taxes w/o Exemptions: | N/A | | |
Improvement / Building
| Improvement #1: | RESIDENTIAL | State Code: | 11 | 1494.0 sqft | Value: | N/A |
| Exterior Wall: | STUCCO | Heating/Cooling: | WARM & COOLED AIR | | Number of Bathrooms: | 2 | Number of Bedrooms: | 4 | | Plumbing: | 9 | Roof Covering: | COMP SHINGLE |
|
| | Type | Description | Class CD | Sub Class CD | Year Built | Area |
| | MA | Main Area | 1 | 30 | 1950 | 1494.0 |
| | CPC | COVERED CARPORT/PATIO | 1 | 30 | 0 | 156.0 |
| | CPC | COVERED CARPORT/PATIO | 1 | 30 | 0 | 224.0 |
| | SI1 | SITE IMPROVEMENT | 1 | 30 | 0 | 2.0 |
| | RPS | PORCH W/STEPS,ROOF | 1 | 30 | 0 | 36.0 |
| | S1F | Single One Story Fireplace | 1 | 30 | 0 | 1.0 |
| | UTST | Utility Storage Shed | 1 | 30 | 0 | 144.0 |
Sketch
Property Image
Land
| 1 | RES 1 | Converted: Residential | 0.2755 | 12000.00 | 0.00 | 0.00 | 1.00 | N/A | N/A |
Roll Value History
| 2026 | N/A | N/A | N/A | N/A | N/A |
| 2025 | $216,650 | $81,240 | $0 | $297,890 | $297,890 |
| 2024 | $216,650 | $81,240 | $0 | $297,890 | $297,890 |
| 2023 | $206,330 | $81,240 | $0 | $287,570 | $287,570 |
| 2022 | $186,460 | $54,120 | $0 | $240,580 | $240,580 |
| 2021 | $133,180 | $54,120 | $0 | $187,300 | $187,300 |
| 2020 | $95,130 | $54,120 | $0 | $149,250 | $149,250 |
| 2019 | $95,130 | $54,120 | $0 | $149,250 | $149,250 |
| 2018 | $95,130 | $54,120 | $0 | $149,250 | $149,250 |
| 2017 | $90,600 | $54,120 | $0 | $144,720 | $144,720 |
| 2016 | $95,920 | $48,800 | $0 | $144,720 | $144,720 |
| 2015 | $95,920 | $48,800 | $0 | $144,720 | $144,720 |
| 2014 | $87,200 | $48,800 | $0 | $136,000 | $136,000 |
| 2013 | $87,200 | $48,800 | $0 | $136,000 | $136,000 |
| 2012 | $87,200 | $48,800 | $0 | $0 | $0 |
| 2011 | $75,100 | $48,800 | $0 | $0 | $0 |
| 2010 | $75,100 | $48,800 | $0 | $0 | $0 |
| 2009 | $88,900 | $48,800 | $0 | $0 | $0 |
| 2008 | $104,200 | $48,800 | $0 | $0 | $0 |
| 2007 | $82,300 | $26,300 | $0 | $0 | $0 |
Deed and Sales History
| 1 | 08/14/2017 | SWD | STATUTORY WARRANTY DEED | PETERS MICHAEL J & CHERYL C | ASHLAND REBEKAH J | | 2-PARCELS | $155,000.00 | 132992 | 2017-06218 |
|   | |
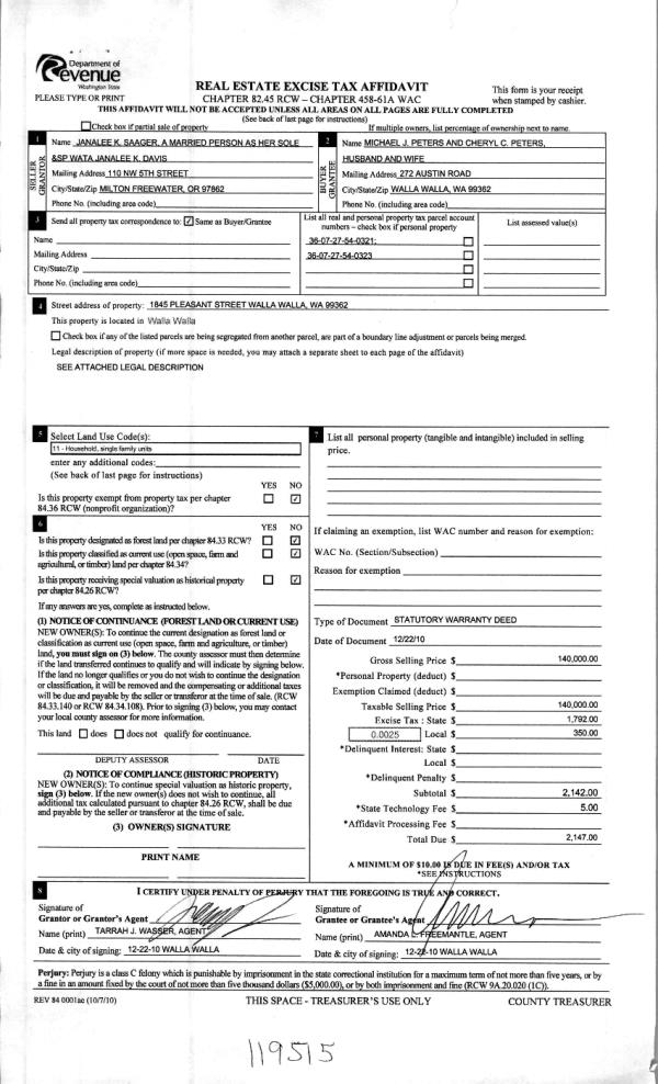
| 2 | 12/27/2010 | WARRANTY D | WARRANTY DEED | DAVIS JANALEE K | PETERS MICHAEL J & CHERYL C | | | $140,000.00 | 119515 | 2010-10735 |
|   | |
| 3 | 11/13/2006 | QCD | QUIT CLAIM DEED | DAVIS ROY A & JANA LEE | DAVIS JANALEE K | | | | 111633 | 2006-13557 |
| 4 | 06/08/1995 | WARRANTY D | WARRANTY DEED | | | | | $97,000.00 | 84138 | 2309-505230 |
|   | |
Payout Agreement
| No payout information available.. |