Property
Account |
| Property ID: | 30417 | Abbreviated Legal Description: | DIXIE LOT 6 BLK 21 |
| Parcel Number: | 370826512122 | Agent Code: | |
| Type: | Real | | |
| Tax Area: | 310 - 101-8 | Land Use Code | 54 |
| Open Space: | N | DFL | N |
| Historic Property: | N | Remodel Property: | N |
| Multi-Family Redevelopment: | N | | |
| Township: | 8 | Section: | 26 |
| Range: | 37 |
Location |
| Address: | 10162 E HIGHWAY 12 WA 99329 | Mapsco: | |
| Neighborhood: | Dixie Commercial | Map ID: | |
| Neighborhood CD: | 4301 |
Owner |
| Name: | STARTIN STACY & MARIA | Owner ID: | 71944 |
| Mailing Address: | DIXIE GROCERY LLC 10162 E HIGHWAY 12 DIXIE, WA 99329 | % Ownership: | 100.0000000000% |
| | | Exemptions: | |
Taxes and Assessment Details
Property Tax Information as of
02/21/2026
Click on "Statement Details" to expand or collapse a tax statement.
* Please enter a valid date ** Please enter a valid date *
Statement Details |
| | TOTAL: | $0.00 | $0.00 | $0.00 | $0.00 | $0.00 | $0.00 |
|
| | $0.00 | $0.00 | $0.00 | $0.00 | $0.00 | $0.00 |
Values
| (+) Improvement Homesite Value: | + | $0 | |
| (+) Improvement Non-Homesite Value: | + | $110,500 | |
| (+) Land Homesite Value: | + | $0 | |
| (+) Land Non-Homesite Value: | + | $6,800 | |
| (+) Curr Use (HS): | + | $0 | $0 |
| (+) Curr Use (NHS): | + | $0 | $0 |
| | | -------------------------- | |
| (=) Market Value: | = | $117,300 | |
| (–) Productivity Loss: | – | $0 | |
| | | -------------------------- | |
| (=) Subtotal: | = | $117,300 | |
| (+) Senior Appraised Value: | + | $0 | |
| (+) Non-Senior Appraised Value: | + | $117,300 | |
| | | -------------------------- | |
| (=) Total Appraised Value: | = | $117,300 | |
| (–) Senior Exemption Loss: | – | $0 | |
| (–) Exemption Loss: | – | $0 | |
| | | -------------------------- | |
| (=) Taxable Value: | = | $117,300 | |
Taxing Jurisdiction
| Owner: | STARTIN STACY & MARIA | | |
| % Ownership: | 100.0000000000% | | |
| Total Value: | $117,300 | | |
| Tax Area: | 310 - 101-8 |
| CERFD | CURRENT EXPENSE REFUND 010 | 0.0000000000 | $117,300 | $117,300 | $0.00 | | |
| CURREXP | CURRENT EXPENSE 010 | 1.0175366760 | $117,300 | $117,300 | $119.36 | | |
| HUMNSERV | HUMAN SERVICES 119 | 0.0250000000 | $117,300 | $117,300 | $2.93 | | |
| SLDREL | SOLDIERS RELIEF 121 | 0.0155990005 | $117,300 | $117,300 | $1.83 | | |
| EMERGSER | EMS 147 | 0.3792580840 | $117,300 | $117,300 | $44.49 | | |
| EMSRFD | EMS REFUND 147 | 0.0000000000 | $117,300 | $117,300 | $0.00 | | |
| FD8EXP | FD #8 EXPENSE 697 | 0.6647992540 | $117,300 | $117,300 | $77.98 | | |
| RLBRFD | RURAL LIBRARY REFUND 623 | 0.0000000000 | $117,300 | $117,300 | $0.00 | | |
| RURALLIB | RURAL LIBRARY 623 | 0.3710609029 | $117,300 | $117,300 | $43.53 | | |
| PORTRFD | PORT REFUND 640 | 0.0000000000 | $117,300 | $117,300 | $0.00 | | |
| PORTWWGEN | PORT OF WW 640 | 0.2460186015 | $117,300 | $117,300 | $28.86 | | |
| SD101CAP | SD #101 CAP 752 | 0.5894423472 | $117,300 | $117,300 | $69.14 | | |
| SD101GEN | SD #101 GENERAL 750 | 0.7455117868 | $117,300 | $117,300 | $87.45 | | |
| ST2 | STATE SCHOOL PART 2 600 | 0.8131451643 | $117,300 | $117,300 | $95.38 | | |
| STATESCHL | STATE SCHOOL 600 | 1.5158548041 | $117,300 | $117,300 | $177.81 | | |
| STREFUND | STATE REFUND LEVY 603 | 0.0000000000 | $117,300 | $117,300 | $0.00 | | |
| COROAD | COUNTY ROAD 115 | 1.6549953990 | $117,300 | $117,300 | $194.13 | | |
| CRPRD | COUNTY ROAD REFUND 115 | 0.0000000000 | $117,300 | $117,300 | $0.00 | | |
| | Total Tax Rate: | 8.0382220203 | | | | | |
| | | | | Taxes w/Current Exemptions: | $942.89 | | |
| | | | | Taxes w/o Exemptions: | $942.89 | | |
Improvement / Building
| Improvement #1: | COMMERCIAL | State Code: | 54 | 1124.0 sqft | Value: | $110,500 |
| | Type | Description | Class CD | Sub Class CD | Year Built | Area |
| | MA | Main Area | D | * | 1915 | 1124.0 |
| | SI1 | SITE IMPROVEMENT | D | * | 1915 | 2.0 |
Sketch
Property Image
Land
| 1 | COM 1 | Converted: Commercial | 0.1150 | 5009.40 | 0.00 | 0.00 | 1.00 | $6,800 | $0 |
Roll Value History
| 2026 | N/A | N/A | N/A | N/A | N/A |
| 2025 | $116,000 | $15,000 | $0 | $131,000 | $131,000 |
| 2024 | $105,100 | $15,000 | $0 | $120,100 | $120,100 |
| 2023 | $110,500 | $6,800 | $0 | $117,300 | $117,300 |
| 2022 | $76,400 | $6,760 | $0 | $83,160 | $83,160 |
| 2021 | $76,400 | $6,760 | $0 | $83,160 | $83,160 |
| 2020 | $76,400 | $6,760 | $0 | $83,160 | $83,160 |
| 2019 | $76,400 | $6,760 | $0 | $83,160 | $83,160 |
| 2018 | $76,400 | $6,760 | $0 | $83,160 | $83,160 |
| 2017 | $76,400 | $6,760 | $0 | $83,160 | $83,160 |
| 2016 | $76,400 | $6,800 | $0 | $83,200 | $83,200 |
| 2015 | $76,400 | $6,800 | $0 | $83,200 | $83,200 |
| 2014 | $76,400 | $6,800 | $0 | $83,200 | $83,200 |
| 2013 | $76,400 | $6,800 | $0 | $83,200 | $83,200 |
| 2012 | $102,000 | $6,800 | $0 | $0 | $0 |
| 2011 | $21,400 | $6,800 | $0 | $0 | $0 |
| 2010 | $21,400 | $6,800 | $0 | $0 | $0 |
| 2009 | $21,400 | $6,800 | $0 | $0 | $0 |
| 2008 | $21,400 | $6,800 | $0 | $0 | $0 |
| 2007 | $21,400 | $6,800 | $0 | $0 | $0 |
Deed and Sales History
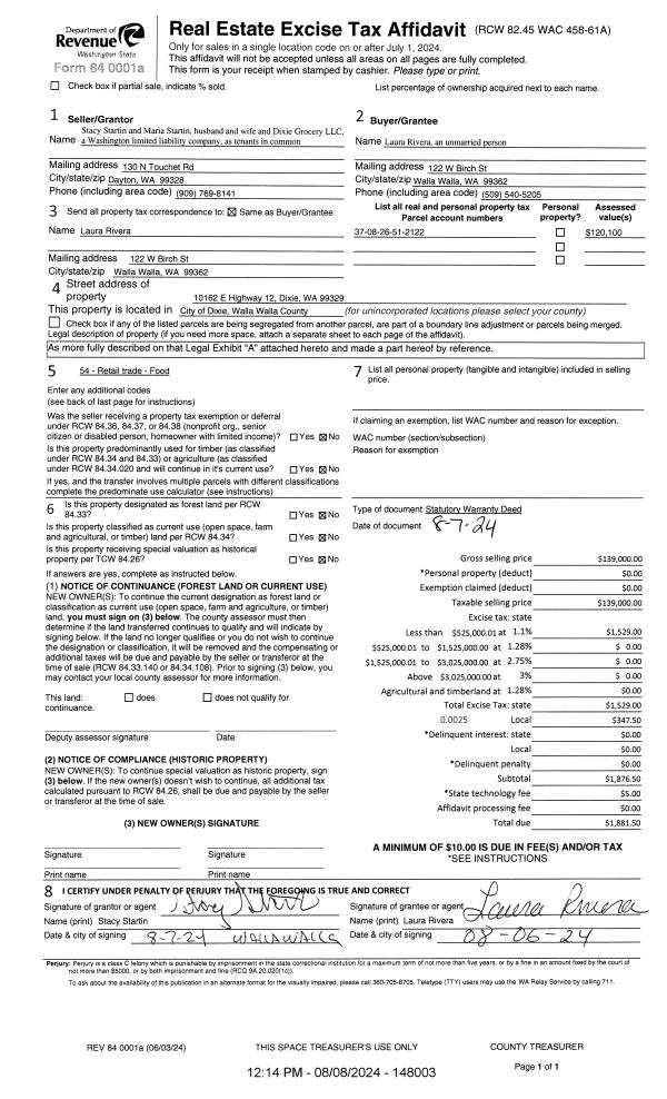
| 1 | 08/08/2024 | SWD | STATUTORY WARRANTY DEED | STARTIN STACY & MARIA | RIVERA LAURA | | | $139,000.00 | 148003 | 2024-04382 |
| 2 | 07/13/2022 | QCD | QUIT CLAIM DEED | STARTIN STACY & MARIA | STARTIN STACY & MARIA | | | $0.00 | 144292 | 2022-05932 |
| 3 | 06/17/2022 | SWD | STATUTORY WARRANTY DEED | TATE CINDY | STARTIN STACY & MARIA | | | $120,000.00 | 144162 | 2022-05139 |
| 4 | 05/07/2013 | WARRANTY D | WARRANTY DEED | JOSEPH INVESTMENTS LLC | TATE, CINDY | | | $100,000.00 | 123920 | 2013-04556 |
| 5 | 12/30/2010 | WARRANTY D | WARRANTY DEED | KRIKA, SCOTT & ANGELA | JOSEPH INVESTMENTS LLC | | | $112,500.00 | 119541 | 2010-10846 |
| 6 | 06/30/2006 | WARRANTY D | WARRANTY DEED | CUMMINGS, RICHARD & GWENDOLYN | KRIKA, SCOTT & ANGELA | | | $154,900.00 | 110652 | 2006-07738 |
| 7 | 01/19/1990 | WARRANTY D | WARRANTY DEED | | | | | $28,937.00 | 0 | 7187-4 |
Payout Agreement
| No payout information available.. |