Property
Account |
| Property ID: | 30409 | Abbreviated Legal Description: | BUTLERS ALL LOT 12 & E 12.5' OF LOT 11 BLK 4 PLUS STRIP |
| Parcel Number: | 360719520434 | Agent Code: | |
| Type: | Real | | |
| Tax Area: | 1 - OL-140-F | Land Use Code | 11 |
| Open Space: | N | DFL | N |
| Historic Property: | N | Remodel Property: | N |
| Multi-Family Redevelopment: | N | | |
| Township: | 7 | Section: | 19 |
| Range: | 36 |
Location |
| Address: | 1109 N 9TH AVE WA 99362 | Mapsco: | |
| Neighborhood: | SFR MH | Map ID: | |
| Neighborhood CD: | 313061 |
Owner |
| Name: | ROZUMNY IVAN JR | Owner ID: | 56463 |
| Mailing Address: | 1109 N 9TH AVE WALLA WALLA, WA 99362 | % Ownership: | 100.0000000000% |
| | | Exemptions: | |
Taxes and Assessment Details
Property Tax Information as of
02/21/2026
Click on "Statement Details" to expand or collapse a tax statement.
* Please enter a valid date ** Please enter a valid date *
Statement Details |
| | TOTAL: | $0.00 | $0.00 | $0.00 | $0.00 | $0.00 | $0.00 |
|
| | $0.00 | $0.00 | $0.00 | $0.00 | $0.00 | $0.00 |
Values
| (+) Improvement Homesite Value: | + | $128,570 | |
| (+) Improvement Non-Homesite Value: | + | $0 | |
| (+) Land Homesite Value: | + | $54,140 | |
| (+) Land Non-Homesite Value: | + | $0 | |
| (+) Curr Use (HS): | + | $0 | $0 |
| (+) Curr Use (NHS): | + | $0 | $0 |
| | | -------------------------- | |
| (=) Market Value: | = | $182,710 | |
| (–) Productivity Loss: | – | $0 | |
| | | -------------------------- | |
| (=) Subtotal: | = | $182,710 | |
| (+) Senior Appraised Value: | + | $0 | |
| (+) Non-Senior Appraised Value: | + | $182,710 | |
| | | -------------------------- | |
| (=) Total Appraised Value: | = | $182,710 | |
| (–) Senior Exemption Loss: | – | $0 | |
| (–) Exemption Loss: | – | $0 | |
| | | -------------------------- | |
| (=) Taxable Value: | = | $182,710 | |
Taxing Jurisdiction
| Owner: | ROZUMNY IVAN JR | | |
| % Ownership: | 100.0000000000% | | |
| Total Value: | $182,710 | | |
| Tax Area: | 1 - OL-140-F |
| CERFD | CURRENT EXPENSE REFUND 010 | 0.0000000000 | $182,710 | $182,710 | $0.00 | | |
| CURREXP | CURRENT EXPENSE 010 | 1.0175366760 | $182,710 | $182,710 | $185.91 | | |
| HUMNSERV | HUMAN SERVICES 119 | 0.0250000000 | $182,710 | $182,710 | $4.57 | | |
| SLDREL | SOLDIERS RELIEF 121 | 0.0155990005 | $182,710 | $182,710 | $2.85 | | |
| EMERGSER | EMS 147 | 0.3792580840 | $182,710 | $182,710 | $69.29 | | |
| EMSRFD | EMS REFUND 147 | 0.0000000000 | $182,710 | $182,710 | $0.00 | | |
| PORTRFD | PORT REFUND 640 | 0.0000000000 | $182,710 | $182,710 | $0.00 | | |
| PORTWWGEN | PORT OF WW 640 | 0.2460186015 | $182,710 | $182,710 | $44.95 | | |
| SD140BOND | SD #140 BOND 764 | 0.8342371393 | $182,710 | $182,710 | $152.42 | | |
| SD140GEN | SD #140 GENERAL 760 | 2.0646500647 | $182,710 | $182,710 | $377.23 | | |
| ST2 | STATE SCHOOL PART 2 600 | 0.8131451643 | $182,710 | $182,710 | $148.57 | | |
| STATESCHL | STATE SCHOOL 600 | 1.5158548041 | $182,710 | $182,710 | $276.96 | | |
| STREFUND | STATE REFUND LEVY 603 | 0.0000000000 | $182,710 | $182,710 | $0.00 | | |
| CWWBOND | C OF WW BOND 643 | 0.2760494372 | $182,710 | $182,710 | $50.44 | | |
| CWWGEN | CITY OF WW 631 | 1.6100204973 | $182,710 | $182,710 | $294.17 | | |
| CWWRFD | CITY OF WALLA WALLA REFUND 631 | 0.0000000000 | $182,710 | $182,710 | $0.00 | | |
| | Total Tax Rate: | 8.7973694689 | | | | | |
| | | | | Taxes w/Current Exemptions: | $1,607.36 | | |
| | | | | Taxes w/o Exemptions: | $1,607.36 | | |
Improvement / Building
| Improvement #1: | MANUFACTURED HOME | State Code: | 11 | 1782.0 sqft | Value: | $128,570 |
| Exterior Wall: | PLYWOOD | Foundation: | CB-12 | | Heating/Cooling: | WARM & COOLED AIR | Number of Bathrooms: | 2 | | Number of Bedrooms: | 3 | Plumbing: | 8 | | Roof Covering: | COMP SHINGLE |   |   |
|
| | Type | Description | Class CD | Sub Class CD | Year Built | Area |
| | MOBHOME | MANUFACTURD HOMES | 1 | 30 | 1998 | 1782.0 |
| | POL2 | POLE BUILDING-CONCRETE | 1 | 30 | 2011 | 432.0 |
| | MI1 | MH SET-UP COSTS | 1 | 30 | 0 | 1.0 |
Sketch
Property Image
Land
| 1 | RES 1 | Converted: Residential | 0.1506 | 6562.00 | 0.00 | 0.00 | 1.00 | $54,140 | $0 |
Roll Value History
| 2026 | N/A | N/A | N/A | N/A | N/A |
| 2025 | $205,710 | $54,140 | $0 | $259,850 | $259,850 |
| 2024 | $128,570 | $54,140 | $0 | $182,710 | $182,710 |
| 2023 | $128,570 | $54,140 | $0 | $182,710 | $182,710 |
| 2022 | $128,570 | $54,140 | $0 | $182,710 | $182,710 |
| 2021 | $154,090 | $13,100 | $0 | $167,190 | $167,190 |
| 2020 | $114,140 | $13,100 | $0 | $127,240 | $127,240 |
| 2019 | $114,140 | $13,100 | $0 | $127,240 | $127,240 |
| 2018 | $114,140 | $13,100 | $0 | $127,240 | $127,240 |
| 2017 | $114,140 | $13,100 | $0 | $127,240 | $127,240 |
| 2016 | $114,140 | $13,100 | $0 | $127,240 | $127,240 |
| 2015 | $114,140 | $13,100 | $0 | $127,240 | $127,240 |
| 2014 | $87,800 | $13,100 | $0 | $100,900 | $24,100 |
| 2013 | $87,800 | $13,100 | $0 | $100,900 | $24,100 |
| 2012 | $71,000 | $13,100 | $0 | $0 | $0 |
| 2011 | $83,500 | $13,100 | $0 | $0 | $0 |
| 2010 | $114,800 | $13,100 | $0 | $0 | $0 |
| 2009 | $130,600 | $11,500 | $0 | $0 | $0 |
| 2008 | $77,300 | $11,500 | $0 | $0 | $0 |
| 2007 | $77,300 | $11,500 | $0 | $0 | $0 |
Deed and Sales History
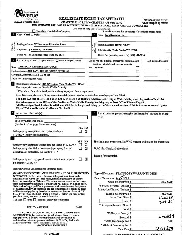
| 1 | 04/17/2015 | SWD | STATUTORY WARRANTY DEED | OPITZ CAROL A | ROZUMNY IVAN JR | | | $131,300.00 | 127796 | 2015-03110 |
| 2 | 06/13/2012 | QCD | QUIT CLAIM DEED | OPITZ, DUWAYNE F | OPITZ, CAROL A | | | | 122178 | 2012-04890 |
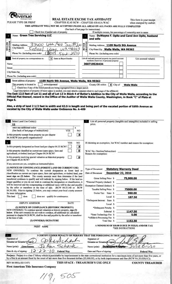
| 3 | 12/27/2010 | WARRANTY D | WARRANTY DEED | GREEN TREE SERVICING LLC | OPITZ, DUWAYNE F & CAROL ANN | | | $75,000.00 | 119505 | 2010-10682 |
| 4 | 10/14/2009 | WARRANTY D | WARRANTY DEED | BARRAZA, ADELAIDA S | GREEN TREE SERVICING LLC | | | | 117485 | 2009-10205 |
| 5 | 05/05/1998 | WARRANTY D | WARRANTY DEED | | | | | $11,000.00 | 90349 | 2669-804961 |
Payout Agreement
| No payout information available.. |