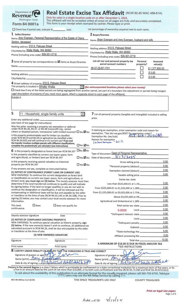
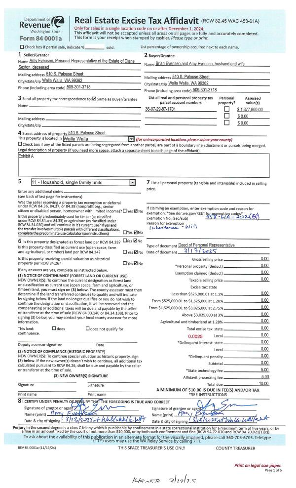
Property
Account |
| Property ID: | 30348 | Abbreviated Legal Description: | ROBERTS TAX 6 BLK 17 |
| Parcel Number: | 360729871701 | Agent Code: | |
| Type: | Real | | |
| Tax Area: | 1 - OL-140-F | Land Use Code | 11 |
| Open Space: | N | DFL | N |
| Historic Property: | N | Remodel Property: | N |
| Multi-Family Redevelopment: | N | | |
| Township: | 7 | Section: | 29 |
| Range: | 36 |
Location |
| Address: | 510 S PALOUSE ST WA 99362 | Mapsco: | |
| Neighborhood: | G-SFR | Map ID: | |
| Neighborhood CD: | 514011 |
Owner |
| Name: | SEXTON FAMILY TRUST | Owner ID: | 46715 |
| Mailing Address: | ROGER K & DIANE SEXTON TRUSTEES 510 S PALOUSE ST WALLA WALLA, WA 99362 | % Ownership: | 100.0000000000% |
| | | Exemptions: | |
Taxes and Assessment Details
Property Tax Information as of
02/21/2026
Click on "Statement Details" to expand or collapse a tax statement.
* Please enter a valid date ** Please enter a valid date *
Statement Details |
| | TOTAL: | $0.00 | $0.00 | $0.00 | $0.00 | $0.00 | $0.00 |
|
| | $0.00 | $0.00 | $0.00 | $0.00 | $0.00 | $0.00 |
Values
| (+) Improvement Homesite Value: | + | $0 | |
| (+) Improvement Non-Homesite Value: | + | $1,350,440 | |
| (+) Land Homesite Value: | + | $0 | |
| (+) Land Non-Homesite Value: | + | $27,360 | |
| (+) Curr Use (HS): | + | $0 | $0 |
| (+) Curr Use (NHS): | + | $0 | $0 |
| | | -------------------------- | |
| (=) Market Value: | = | $1,377,800 | |
| (–) Productivity Loss: | – | $0 | |
| | | -------------------------- | |
| (=) Subtotal: | = | $1,377,800 | |
| (+) Senior Appraised Value: | + | $0 | |
| (+) Non-Senior Appraised Value: | + | $1,377,800 | |
| | | -------------------------- | |
| (=) Total Appraised Value: | = | $1,377,800 | |
| (–) Senior Exemption Loss: | – | $0 | |
| (–) Exemption Loss: | – | $0 | |
| | | -------------------------- | |
| (=) Taxable Value: | = | $1,377,800 | |
Taxing Jurisdiction
| Owner: | SEXTON FAMILY TRUST | | |
| % Ownership: | 100.0000000000% | | |
| Total Value: | $1,377,800 | | |
| Tax Area: | 1 - OL-140-F |
| CERFD | CURRENT EXPENSE REFUND 010 | 0.0000000000 | $1,377,800 | $1,377,800 | $0.00 | | |
| CURREXP | CURRENT EXPENSE 010 | 1.0175366760 | $1,377,800 | $1,377,800 | $1,401.96 | | |
| HUMNSERV | HUMAN SERVICES 119 | 0.0250000000 | $1,377,800 | $1,377,800 | $34.45 | | |
| SLDREL | SOLDIERS RELIEF 121 | 0.0155990005 | $1,377,800 | $1,377,800 | $21.49 | | |
| EMERGSER | EMS 147 | 0.3792580840 | $1,377,800 | $1,377,800 | $522.54 | | |
| EMSRFD | EMS REFUND 147 | 0.0000000000 | $1,377,800 | $1,377,800 | $0.00 | | |
| PORTRFD | PORT REFUND 640 | 0.0000000000 | $1,377,800 | $1,377,800 | $0.00 | | |
| PORTWWGEN | PORT OF WW 640 | 0.2460186015 | $1,377,800 | $1,377,800 | $338.96 | | |
| SD140BOND | SD #140 BOND 764 | 0.8342371393 | $1,377,800 | $1,377,800 | $1,149.41 | | |
| SD140GEN | SD #140 GENERAL 760 | 2.0646500647 | $1,377,800 | $1,377,800 | $2,844.67 | | |
| ST2 | STATE SCHOOL PART 2 600 | 0.8131451643 | $1,377,800 | $1,377,800 | $1,120.35 | | |
| STATESCHL | STATE SCHOOL 600 | 1.5158548041 | $1,377,800 | $1,377,800 | $2,088.54 | | |
| STREFUND | STATE REFUND LEVY 603 | 0.0000000000 | $1,377,800 | $1,377,800 | $0.00 | | |
| CWWBOND | C OF WW BOND 643 | 0.2760494372 | $1,377,800 | $1,377,800 | $380.34 | | |
| CWWGEN | CITY OF WW 631 | 1.6100204973 | $1,377,800 | $1,377,800 | $2,218.29 | | |
| CWWRFD | CITY OF WALLA WALLA REFUND 631 | 0.0000000000 | $1,377,800 | $1,377,800 | $0.00 | | |
| | Total Tax Rate: | 8.7973694689 | | | | | |
| | | | | Taxes w/Current Exemptions: | $12,121.00 | | |
| | | | | Taxes w/o Exemptions: | $12,121.00 | | |
Improvement / Building
| Improvement #1: | RESIDENTIAL | State Code: | 11 | 4194.0 sqft | Value: | $1,350,440 |
| Exterior Wall: | SIDING | Heating/Cooling: | WARM & COOLED AIR | | Number of Bathrooms: | 3.5 | Number of Bedrooms: | 5 | | Plumbing: | 15 | Roof Covering: | COMP SHINGLE |
|
| | Type | Description | Class CD | Sub Class CD | Year Built | Area |
| | MA | Main Area | 7 | 60 | 1905 | 4194.0 |
| | UPFL | Upper Floor (included in main area) | 7 | 60 | 1905 | 2713.0 |
| | SI1 | SITE IMPROVEMENT | 7 | 60 | 1905 | 10.0 |
| | BASE | BASEMENT | 7 | 60 | 1905 | 1462.0 |
| | BPF | BASEMENT -PARTITIONED FINISH | 7 | 60 | 1905 | 1462.0 |
| | S2F | Single 2S Fireplace | 7 | 60 | 1905 | 1.0 |
| | RESE | RES ELEVATOR | 7 | 60 | 1905 | 1.0 |
| | PRC | PORCH W STEPS, ROOF,CEILED | 7 | 60 | 1905 | 114.0 |
| | BLW | WOOD BALCONIES | 7 | 60 | 1905 | 120.0 |
| | RPS | PORCH W/STEPS,ROOF | 7 | 60 | 1905 | 162.0 |
| | OPS | OPEN PORCH W/STEPS | 7 | 60 | 1905 | 235.0 |
| | PRC | PORCH W STEPS, ROOF,CEILED | 7 | 60 | 1905 | 360.0 |
| | DTG | Detached Garage | 7 | 60 | 1905 | 625.0 |
Sketch
Property Image
Land
| 1 | RES 1 | Converted: Residential | 0.3271 | 14250.00 | 0.00 | 0.00 | 1.00 | $27,360 | $0 |
Roll Value History
| 2026 | N/A | N/A | N/A | N/A | N/A |
| 2025 | $1,246,050 | $86,350 | $0 | $1,332,400 | $1,332,400 |
| 2024 | $1,246,050 | $86,350 | $0 | $1,332,400 | $1,332,400 |
| 2023 | $1,350,440 | $27,360 | $0 | $1,377,800 | $1,377,800 |
| 2022 | $1,174,300 | $27,360 | $0 | $1,201,660 | $1,201,660 |
| 2021 | $1,118,380 | $27,360 | $0 | $1,145,740 | $1,145,740 |
| 2020 | $1,118,380 | $27,360 | $0 | $1,145,740 | $1,145,740 |
| 2019 | $10,870 | $27,360 | $0 | $38,230 | $38,230 |
| 2018 | $10,870 | $27,360 | $0 | $38,230 | $38,230 |
| 2017 | $0 | $0 | $0 | $0 | $0 |
| 2016 | $0 | $0 | $0 | $0 | $0 |
| 2015 | $0 | $0 | $0 | $0 | $0 |
| 2014 | $0 | $0 | $0 | $0 | $0 |
| 2013 | $0 | $0 | $0 | $0 | $0 |
| 2012 | $0 | $0 | $0 | $0 | $0 |
| 2011 | $0 | $0 | $0 | $0 | $0 |
| 2010 | $337,600 | $47,600 | $0 | $0 | $0 |
| 2009 | $591,400 | $47,600 | $0 | $0 | $0 |
| 2008 | $271,900 | $47,600 | $0 | $0 | $0 |
| 2007 | $271,900 | $47,600 | $0 | $0 | $0 |
Deed and Sales History
| 1 | 09/10/2025 | WARRANTY D | WARRANTY DEED | EVENSEN BRIAN & AMY | EVENSEN BRIAN & AMY REVOCABLE LIVING TRUST | | | | 149995 | 2025-05477 |
| 2 | 03/13/2025 | DPR | DEED OF PERSONAL REPRESENTATIVE | SEXTON FAMILY TRUST | EVENSEN BRIAN & AMY | | | | 149058 | 2025-01318 |
| 3 | 12/31/2008 | QCD | QUIT CLAIM DEED | SEXTON, ROGER & DIANE | SEXTON FAMILY TRUST | | | | 116155 | 2008-12761 |
| 4 | 11/03/2006 | WARRANTY D | WARRANTY DEED | HOARE FAMILY RV LIVING TRUST | SEXTON, ROGER & DIANE | | | $675,000.00 | 111589 | 2006-13255 |
| 5 | 05/01/1964 | WARRANTY D | WARRANTY DEED | | | | | $12,000.00 | 0 | 3100-457576 |
Payout Agreement
| No payout information available.. |