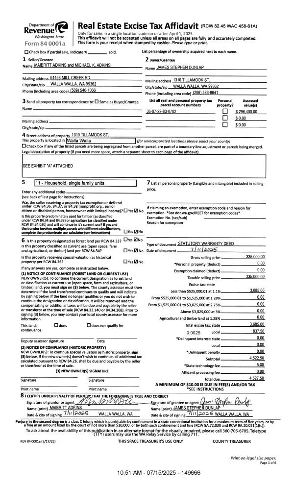
| 1 | 07/15/2025 | SWD | STATUTORY WARRANTY DEED | ADKINS MAIBRITT & MICHAEL K | DUNLAP JAMES STEPHEN | | | $335,000.00 | 149666 | 2025-04012 |
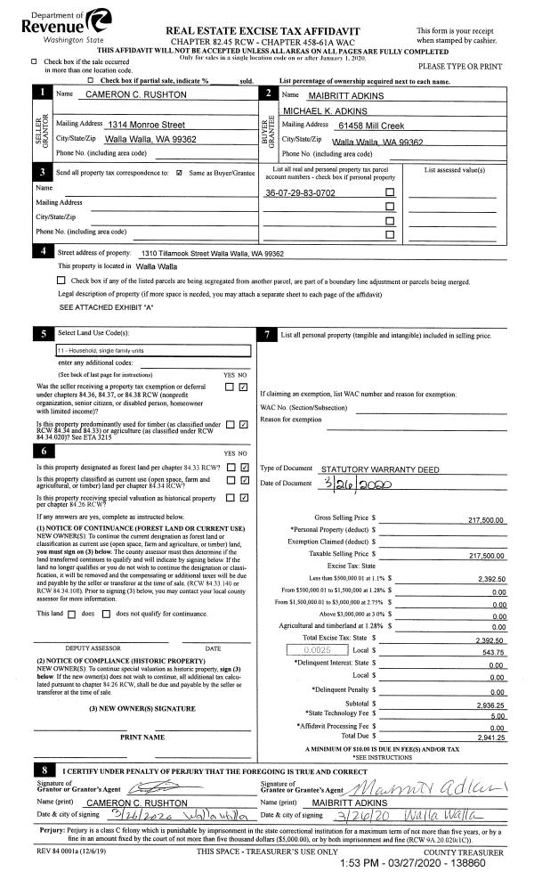
| 2 | 03/27/2020 | SWD | STATUTORY WARRANTY DEED | RUSHTON CAMERON C | ADKINS MAIBRITT & MICHAEL K | | | $217,500.00 | 138860 | 2020-02721 |
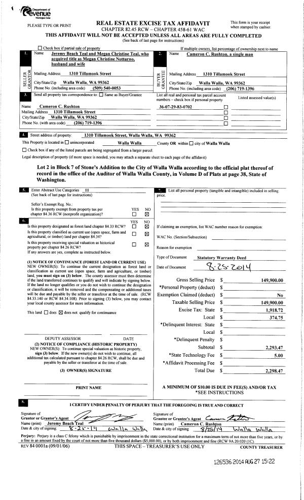
| 3 | 08/25/2014 | SWD | STATUTORY WARRANTY DEED | TEAL JEREMY BEACH | RUSHTON CAMERON C | | | $149,900.00 | 126536 | 2014-06284 |
| 4 | 09/03/2014 | WARRANTY D | WARRANTY DEED | KNUDSON EVERETT & BARBARA | TEAL JEREMY BEACH | | | | 120241 | 2014-06437 |
| 5 | 10/18/2012 | WARRANTY D | WARRANTY DEED | KNUDSON, EVERETT J & BARBARA J | KNUDSON FAMILY TRUST | | | $0.00 | 122829 | 2012-09182 |
| 6 | 06/07/2011 | WARRANTY D | WARRANTY DEED | KNUDSON, EVERETT & BARBARA | TEAL, JEREMY BEACH | | | $123,000.00 | 120241 | 2011-04408 |
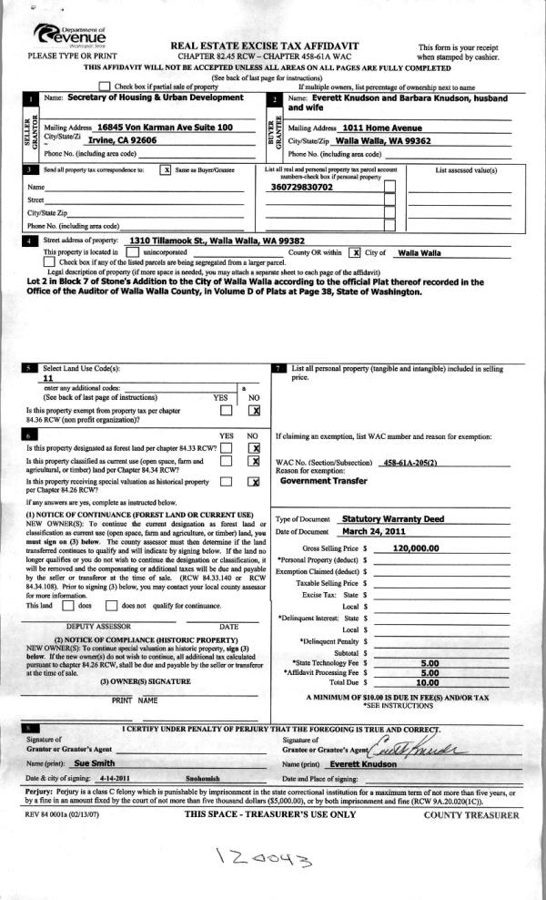
| 7 | 04/22/2011 | WARRANTY D | WARRANTY DEED | SECRETARY OF HOUSING & URBAN D | KNUDSON, EVERETT & BARBARA | | | $120,000.00 | 120043 | 2011-03302 |
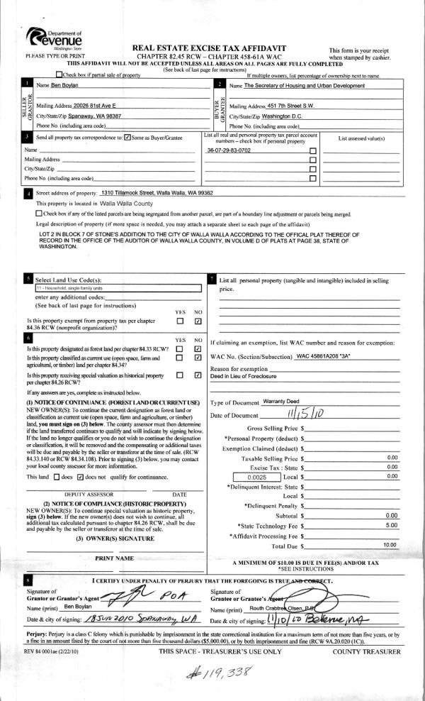
| 8 | 11/16/2010 | WARRANTY D | WARRANTY DEED | BOYLAN, BEN | SECRETARY OF HOUSING & URBAN D | | | | 119338 | 2010-09356 |
| 9 | 08/07/2008 | WARRANTY D | WARRANTY DEED | HARTLIEP, BOBBY D & SUSAN | BOYLAN, BEN | | | $161,500.00 | 115458 | 2008-08167 |
| 10 | 04/30/1993 | WARRANTY D | WARRANTY DEED | | | | | $57,500.00 | 79056 | 2069-304286 |