Property
Account |
| Property ID: | 30320 | Abbreviated Legal Description: | REEDS LOT 8 BLK 3 |
| Parcel Number: | 360721710308 | Agent Code: | |
| Type: | Real | | |
| Tax Area: | 1 - OL-140-F | Land Use Code | 11 |
| Open Space: | N | DFL | N |
| Historic Property: | N | Remodel Property: | N |
| Multi-Family Redevelopment: | N | | |
| Township: | 7 | Section: | 21 |
| Range: | 36 |
Location |
| Address: | 809 WASHINGTON ST WA 99362 | Mapsco: | |
| Neighborhood: | G-SFR | Map ID: | |
| Neighborhood CD: | 514011 |
Owner |
| Name: | CEDENO JOSE & JENNIFER | Owner ID: | 59385 |
| Mailing Address: | 809 WASHINGTON ST WALLA WALLA, WA 99362 | % Ownership: | 100.0000000000% |
| | | Exemptions: | |
Taxes and Assessment Details
Values
| (+) Improvement Homesite Value: | + | $0 | |
| (+) Improvement Non-Homesite Value: | + | $304,020 | |
| (+) Land Homesite Value: | + | $0 | |
| (+) Land Non-Homesite Value: | + | $52,200 | |
| (+) Curr Use (HS): | + | $0 | $0 |
| (+) Curr Use (NHS): | + | $0 | $0 |
| | | -------------------------- | |
| (=) Market Value: | = | $356,220 | |
| (–) Productivity Loss: | – | $0 | |
| | | -------------------------- | |
| (=) Subtotal: | = | $356,220 | |
| (+) Senior Appraised Value: | + | $0 | |
| (+) Non-Senior Appraised Value: | + | $356,220 | |
| | | -------------------------- | |
| (=) Total Appraised Value: | = | $356,220 | |
| (–) Senior Exemption Loss: | – | $0 | |
| (–) Exemption Loss: | – | $0 | |
| | | -------------------------- | |
| (=) Taxable Value: | = | $356,220 | |
Taxing Jurisdiction
| Owner: | CEDENO JOSE & JENNIFER | | |
| % Ownership: | 100.0000000000% | | |
| Total Value: | $356,220 | | |
| Tax Area: | 1 - OL-140-F |
| CERFD | CURRENT EXPENSE REFUND 010 | 0.0000000000 | $356,220 | $356,220 | $0.00 | | |
| CURREXP | CURRENT EXPENSE 010 | 1.0175366760 | $356,220 | $356,220 | $362.47 | | |
| HUMNSERV | HUMAN SERVICES 119 | 0.0250000000 | $356,220 | $356,220 | $8.91 | | |
| SLDREL | SOLDIERS RELIEF 121 | 0.0155990005 | $356,220 | $356,220 | $5.56 | | |
| EMERGSER | EMS 147 | 0.3792580840 | $356,220 | $356,220 | $135.10 | | |
| EMSRFD | EMS REFUND 147 | 0.0000000000 | $356,220 | $356,220 | $0.00 | | |
| PORTRFD | PORT REFUND 640 | 0.0000000000 | $356,220 | $356,220 | $0.00 | | |
| PORTWWGEN | PORT OF WW 640 | 0.2460186015 | $356,220 | $356,220 | $87.64 | | |
| SD140BOND | SD #140 BOND 764 | 0.8342371393 | $356,220 | $356,220 | $297.17 | | |
| SD140GEN | SD #140 GENERAL 760 | 2.0646500647 | $356,220 | $356,220 | $735.47 | | |
| ST2 | STATE SCHOOL PART 2 600 | 0.8131451643 | $356,220 | $356,220 | $289.66 | | |
| STATESCHL | STATE SCHOOL 600 | 1.5158548041 | $356,220 | $356,220 | $539.98 | | |
| STREFUND | STATE REFUND LEVY 603 | 0.0000000000 | $356,220 | $356,220 | $0.00 | | |
| CWWBOND | C OF WW BOND 643 | 0.2760494372 | $356,220 | $356,220 | $98.33 | | |
| CWWGEN | CITY OF WW 631 | 1.6100204973 | $356,220 | $356,220 | $573.52 | | |
| CWWRFD | CITY OF WALLA WALLA REFUND 631 | 0.0000000000 | $356,220 | $356,220 | $0.00 | | |
| | Total Tax Rate: | 8.7973694689 | | | | | |
| | | | | Taxes w/Current Exemptions: | $3,133.81 | | |
| | | | | Taxes w/o Exemptions: | $3,133.81 | | |
Improvement / Building
| Improvement #1: | RESIDENTIAL | State Code: | 11 | 1171.0 sqft | Value: | $304,020 |
| Exterior Wall: | METAL/STEEL | Heating/Cooling: | FORCED AIR | | Number of Bathrooms: | 2 | Number of Bedrooms: | 3 | | Plumbing: | 10 | Roof Covering: | COMP SHINGLE |
|
| | Type | Description | Class CD | Sub Class CD | Year Built | Area |
| | MA | Main Area | 1 | 30 | 1900 | 1171.0 |
| | SI1 | SITE IMPROVEMENT | 1 | 30 | 1900 | 1.0 |
| | BASE | BASEMENT | 1 | 30 | 1900 | 975.0 |
| | OPS | OPEN PORCH W/STEPS | 1 | 30 | 1900 | 66.0 |
| | SWP | Solid Wall Porch | 1 | 30 | 1900 | 186.0 |
| | DTG | Detached Garage | 1 | 30 | 1900 | 320.0 |
Sketch
Property Image
Land
| 1 | RES 1 | Converted: Residential | 0.1653 | 7200.00 | 0.00 | 0.00 | 1.00 | $52,200 | $0 |
Roll Value History
| 2026 | N/A | N/A | N/A | N/A | N/A |
| 2025 | $275,250 | $79,200 | $0 | $354,450 | $354,450 |
| 2024 | $275,250 | $79,200 | $0 | $354,450 | $354,450 |
| 2023 | $304,020 | $52,200 | $0 | $356,220 | $356,220 |
| 2022 | $276,380 | $52,200 | $0 | $328,580 | $328,580 |
| 2021 | $230,310 | $52,200 | $0 | $282,510 | $282,510 |
| 2020 | $143,950 | $52,200 | $0 | $196,150 | $196,150 |
| 2019 | $143,950 | $52,200 | $0 | $196,150 | $196,150 |
| 2018 | $125,170 | $52,200 | $0 | $177,370 | $177,370 |
| 2017 | $129,840 | $32,400 | $0 | $162,240 | $162,240 |
| 2016 | $112,900 | $32,400 | $0 | $145,300 | $145,300 |
| 2015 | $112,900 | $32,400 | $0 | $145,300 | $145,300 |
| 2014 | $112,900 | $32,400 | $0 | $145,300 | $145,300 |
| 2013 | $112,900 | $32,400 | $0 | $145,300 | $145,300 |
| 2012 | $112,900 | $32,400 | $0 | $0 | $0 |
| 2011 | $112,900 | $32,400 | $0 | $0 | $0 |
| 2010 | $106,000 | $32,400 | $0 | $0 | $0 |
| 2009 | $121,400 | $32,400 | $0 | $0 | $0 |
| 2008 | $89,500 | $28,800 | $0 | $0 | $0 |
| 2007 | $89,500 | $28,800 | $0 | $0 | $0 |
Deed and Sales History
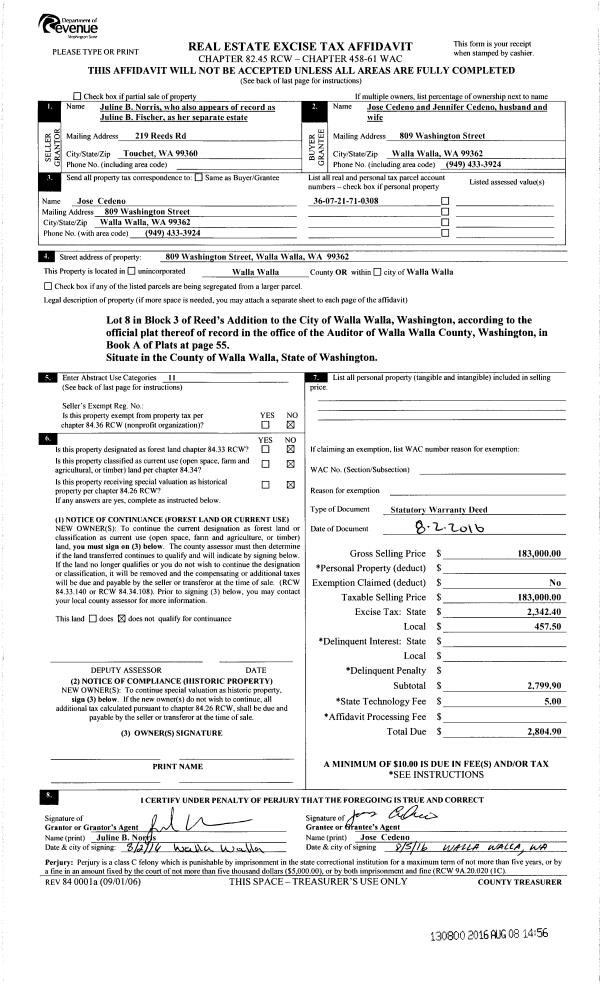
| 1 | 08/08/2016 | SWD | STATUTORY WARRANTY DEED | NORRIS JULINE B | CEDENO JOSE & JENNIFER | | | $183,000.00 | 130800 | 2016-06304 |
| 2 | 03/16/2012 | QCD | QUIT CLAIM DEED | FISCHER, JONATHAN P | NORRIS, JULINE B | | | | 121535 | 2012-02188 |
| 3 | 03/09/2012 | WARRANTY D | WARRANTY DEED | FISCHER, JONATHAN | NORRIS, JULINE B | | | | 0 | CC #10-3-00336-8 |
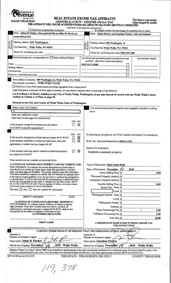
| 4 | 11/29/2010 | QCD | QUIT CLAIM DEED | NORRIS, JULINE B | FISCHER, JONATHAN & JULINE | | | | 119378 | 2010-09672 |
| 5 | 06/28/2002 | WARRANTY D | WARRANTY DEED | | | | | $87,000.00 | 99818 | 2002-0007427 |
Payout Agreement
| No payout information available.. |