Property
Account |
| Property ID: | 30314 | Abbreviated Legal Description: | PROSPECT TERRACE LOT 16 |
| Parcel Number: | 360732810016 | Agent Code: | |
| Type: | Real | | |
| Tax Area: | 6 - OL-140-F-FB | Land Use Code | 11 |
| Open Space: | N | DFL | N |
| Historic Property: | N | Remodel Property: | N |
| Multi-Family Redevelopment: | N | | |
| Township: | 7 | Section: | 32 |
| Range: | 36 |
Location |
| Address: | 2550 WILLIAMS RD WALLA WALLA, WA 99362 | Mapsco: | |
| Neighborhood: | G Res Rural/City Inf | Map ID: | |
| Neighborhood CD: | 614012 |
Owner |
| Name: | BUN MARY & VUTHY THAV | Owner ID: | 73601 |
| Mailing Address: | 2550 WILLIAMS RD WALLA WALLA, WA 99362 | % Ownership: | 100.0000000000% |
| | | Exemptions: | |
Taxes and Assessment Details
Values
| (+) Improvement Homesite Value: | + | $0 | |
| (+) Improvement Non-Homesite Value: | + | $315,000 | |
| (+) Land Homesite Value: | + | $0 | |
| (+) Land Non-Homesite Value: | + | $85,000 | |
| (+) Curr Use (HS): | + | $0 | $0 |
| (+) Curr Use (NHS): | + | $0 | $0 |
| | | -------------------------- | |
| (=) Market Value: | = | $400,000 | |
| (–) Productivity Loss: | – | $0 | |
| | | -------------------------- | |
| (=) Subtotal: | = | $400,000 | |
| (+) Senior Appraised Value: | + | $0 | |
| (+) Non-Senior Appraised Value: | + | $400,000 | |
| | | -------------------------- | |
| (=) Total Appraised Value: | = | $400,000 | |
| (–) Senior Exemption Loss: | – | $0 | |
| (–) Exemption Loss: | – | $0 | |
| | | -------------------------- | |
| (=) Taxable Value: | = | $400,000 | |
Taxing Jurisdiction
| Owner: | BUN MARY & VUTHY THAV | | |
| % Ownership: | 100.0000000000% | | |
| Total Value: | $400,000 | | |
| Tax Area: | 6 - OL-140-F-FB |
| CERFD | CURRENT EXPENSE REFUND 010 | 0.0000000000 | $400,000 | $400,000 | $0.00 | | |
| CURREXP | CURRENT EXPENSE 010 | 1.0175366760 | $400,000 | $400,000 | $407.01 | | |
| HUMNSERV | HUMAN SERVICES 119 | 0.0250000000 | $400,000 | $400,000 | $10.00 | | |
| SLDREL | SOLDIERS RELIEF 121 | 0.0155990005 | $400,000 | $400,000 | $6.24 | | |
| EMERGSER | EMS 147 | 0.3792580840 | $400,000 | $400,000 | $151.70 | | |
| EMSRFD | EMS REFUND 147 | 0.0000000000 | $400,000 | $400,000 | $0.00 | | |
| PORTRFD | PORT REFUND 640 | 0.0000000000 | $400,000 | $400,000 | $0.00 | | |
| PORTWWGEN | PORT OF WW 640 | 0.2460186015 | $400,000 | $400,000 | $98.41 | | |
| SD140BOND | SD #140 BOND 764 | 0.8342371393 | $400,000 | $400,000 | $333.69 | | |
| SD140GEN | SD #140 GENERAL 760 | 2.0646500647 | $400,000 | $400,000 | $825.86 | | |
| ST2 | STATE SCHOOL PART 2 600 | 0.8131451643 | $400,000 | $400,000 | $325.26 | | |
| STATESCHL | STATE SCHOOL 600 | 1.5158548041 | $400,000 | $400,000 | $606.34 | | |
| STREFUND | STATE REFUND LEVY 603 | 0.0000000000 | $400,000 | $400,000 | $0.00 | | |
| CWWBOND | C OF WW BOND 643 | 0.2760494372 | $400,000 | $400,000 | $110.42 | | |
| CWWGEN | CITY OF WW 631 | 1.6100204973 | $400,000 | $400,000 | $644.01 | | |
| CWWRFD | CITY OF WALLA WALLA REFUND 631 | 0.0000000000 | $400,000 | $400,000 | $0.00 | | |
| | Total Tax Rate: | 8.7973694689 | | | | | |
| | | | | Taxes w/Current Exemptions: | $3,518.94 | | |
| | | | | Taxes w/o Exemptions: | $3,518.94 | | |
Improvement / Building
| Improvement #1: | RESIDENTIAL | State Code: | 11 | 1632.0 sqft | Value: | $315,000 |
| Exterior Wall: | HARDBOARD | Heating/Cooling: | WARM & COOLED AIR | | Number of Bathrooms: | 2 | Number of Bedrooms: | 4 | | Plumbing: | 10 | Roof Covering: | COMP SHINGLE |
|
| | Type | Description | Class CD | Sub Class CD | Year Built | Area |
| | MA | Main Area | 1 | 30 | 2010 | 1632.0 |
| | SI1 | SITE IMPROVEMENT | 1 | 30 | 2010 | 2.2 |
| | ATG | Attached Garage | 1 | 30 | 2010 | 400.0 |
| | GFP | GAS FIREPLACE | 1 | 30 | 2010 | 1.0 |
| | RPO | OPEN PORCH W/ROOF | 1 | 30 | 2010 | 39.0 |
Sketch
Property Image
Land
| 1 | RES 1 | Converted: Residential | 0.1659 | 7225.00 | 0.00 | 0.00 | 1.00 | $85,000 | $0 |
Roll Value History
| 2026 | N/A | N/A | N/A | N/A | N/A |
| 2025 | $346,600 | $125,000 | $0 | $471,600 | $471,600 |
| 2024 | $330,750 | $85,000 | $0 | $415,750 | $415,750 |
| 2023 | $315,000 | $85,000 | $0 | $400,000 | $400,000 |
| 2022 | $300,000 | $70,000 | $0 | $370,000 | $370,000 |
| 2021 | $245,900 | $70,000 | $0 | $315,900 | $315,900 |
| 2020 | $171,960 | $70,000 | $0 | $241,960 | $241,960 |
| 2019 | $171,960 | $70,000 | $0 | $241,960 | $241,960 |
| 2018 | $160,310 | $60,000 | $0 | $220,310 | $220,310 |
| 2017 | $155,640 | $60,000 | $0 | $215,640 | $215,640 |
| 2016 | $152,590 | $60,000 | $0 | $212,590 | $212,590 |
| 2015 | $145,320 | $60,000 | $0 | $205,320 | $205,320 |
| 2014 | $138,400 | $60,000 | $0 | $198,400 | $198,400 |
| 2013 | $138,400 | $60,000 | $0 | $198,400 | $198,400 |
| 2012 | $133,100 | $60,000 | $0 | $0 | $0 |
| 2011 | $133,100 | $60,000 | $0 | $0 | $0 |
| 2010 | $0 | $60,000 | $0 | $0 | $0 |
| 2009 | $0 | $60,000 | $0 | $0 | $0 |
| 2008 | $0 | $3,700 | $0 | $0 | $0 |
| 2007 | $138,400 | $60,000 | $0 | $0 | $0 |
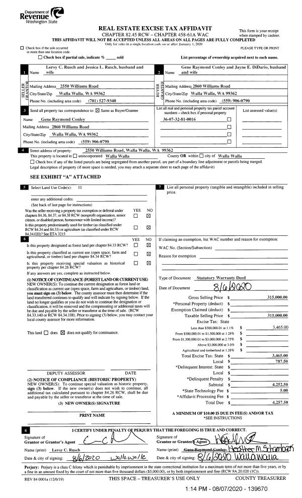
Deed and Sales History
| 1 | 05/16/2023 | SWD | STATUTORY WARRANTY DEED | CONLEY GENE RAYMOND | BUN MARY & VUTHY THAV | | | $450,000.00 | 145815 | 2023-02593 |
| 2 | 08/07/2020 | SWD | STATUTORY WARRANTY DEED | RUSCH LEROY C & JESSICA L | CONLEY GENE RAYMOND | | | $315,000.00 | 139670 | 2020-07758 |
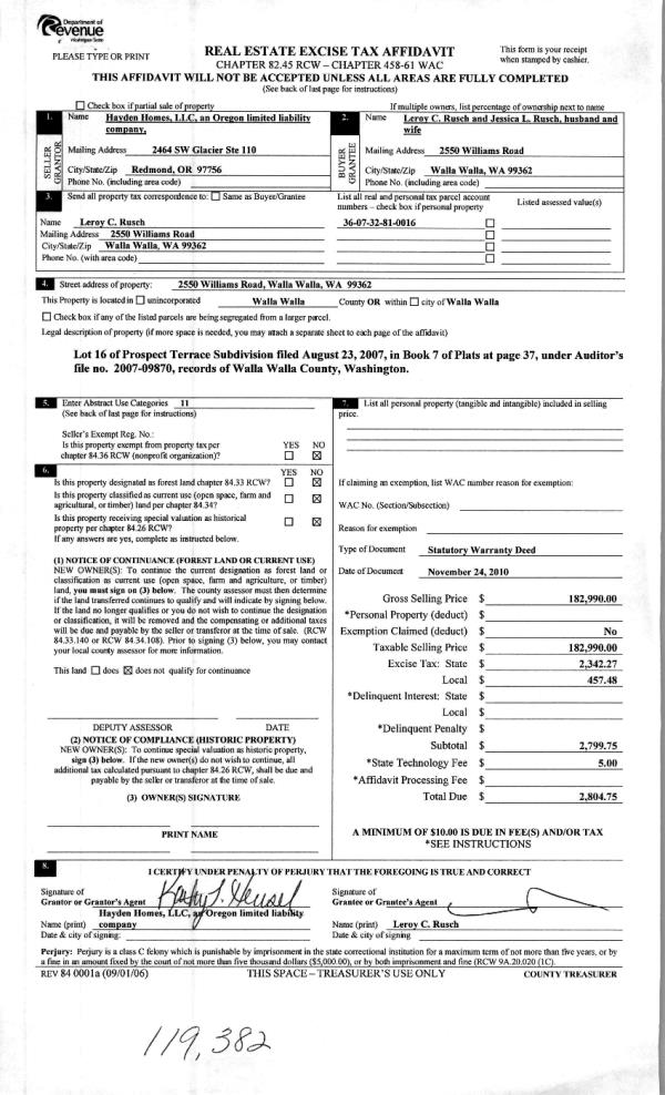
| 3 | 11/29/2010 | WARRANTY D | WARRANTY DEED | HAYDEN HOMES LLC | RUSCH, LEROY C & JESSICA L | | | $182,990.00 | 119382 | 2010-09786 |
| 4 | 12/05/2007 | WARRANTY D | WARRANTY DEED | HAYDEN ENTERPRISES INC | | | | | 114183 | 2007-13846 |
Payout Agreement
| No payout information available.. |