Property
Account |
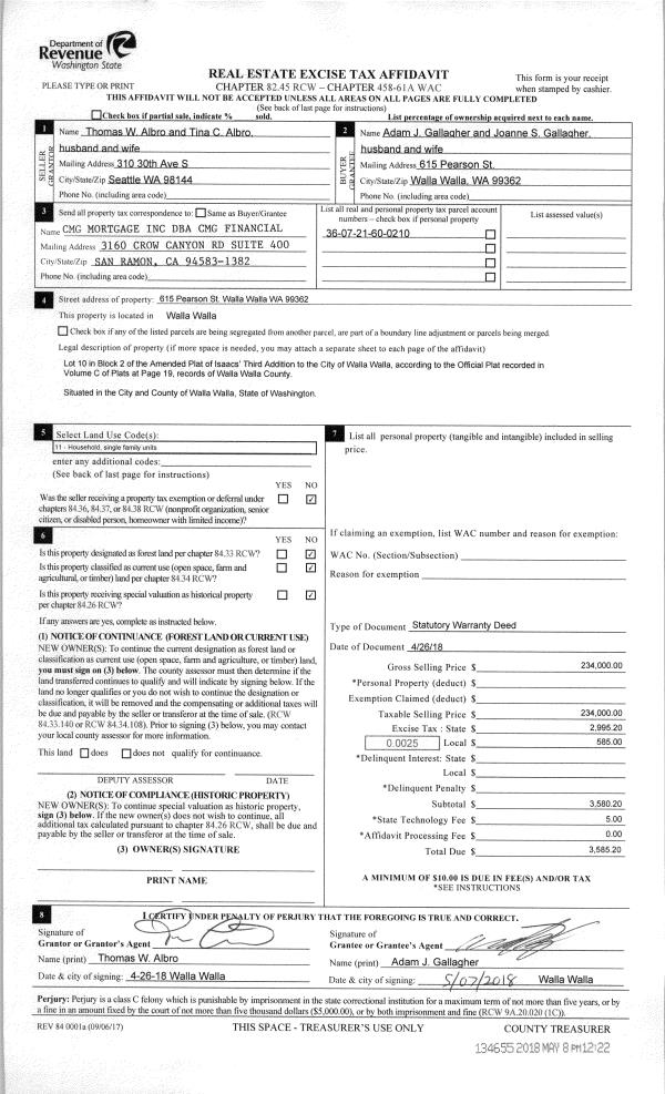
| Property ID: | 30301 | Abbreviated Legal Description: | ISAACS 3RD LOT 10 BLK 2 |
| Parcel Number: | 360721600210 | Agent Code: | |
| Type: | Real | | |
| Tax Area: | 1 - OL-140-F | Land Use Code | 11 |
| Open Space: | N | DFL | N |
| Historic Property: | N | Remodel Property: | N |
| Multi-Family Redevelopment: | N | | |
| Township: | 7 | Section: | 21 |
| Range: | 36 |
Location |
| Address: | 615 PEARSON ST WA 99362 | Mapsco: | |
| Neighborhood: | G Superior SFR | Map ID: | |
| Neighborhood CD: | 514211 |
Owner |
| Name: | GALLAGHER ADAM J & JOANNE S | Owner ID: | 63035 |
| Mailing Address: | 615 PEARSON ST WALLA WALLA, WA 99362 | % Ownership: | 100.0000000000% |
| | | Exemptions: | |
Taxes and Assessment Details
Property Tax Information as of
02/21/2026
Click on "Statement Details" to expand or collapse a tax statement.
* Please enter a valid date ** Please enter a valid date *
Statement Details |
| | TOTAL: | $0.00 | $0.00 | $0.00 | $0.00 | $0.00 | $0.00 |
|
| | $0.00 | $0.00 | $0.00 | $0.00 | $0.00 | $0.00 |
Values
| (+) Improvement Homesite Value: | + | $0 | |
| (+) Improvement Non-Homesite Value: | + | $614,820 | |
| (+) Land Homesite Value: | + | $0 | |
| (+) Land Non-Homesite Value: | + | $52,200 | |
| (+) Curr Use (HS): | + | $0 | $0 |
| (+) Curr Use (NHS): | + | $0 | $0 |
| | | -------------------------- | |
| (=) Market Value: | = | $667,020 | |
| (–) Productivity Loss: | – | $0 | |
| | | -------------------------- | |
| (=) Subtotal: | = | $667,020 | |
| (+) Senior Appraised Value: | + | $0 | |
| (+) Non-Senior Appraised Value: | + | $667,020 | |
| | | -------------------------- | |
| (=) Total Appraised Value: | = | $667,020 | |
| (–) Senior Exemption Loss: | – | $0 | |
| (–) Exemption Loss: | – | $0 | |
| | | -------------------------- | |
| (=) Taxable Value: | = | $667,020 | |
Taxing Jurisdiction
| Owner: | GALLAGHER ADAM J & JOANNE S | | |
| % Ownership: | 100.0000000000% | | |
| Total Value: | $667,020 | | |
| Tax Area: | 1 - OL-140-F |
| CERFD | CURRENT EXPENSE REFUND 010 | 0.0000000000 | $667,020 | $667,020 | $0.00 | | |
| CURREXP | CURRENT EXPENSE 010 | 1.0175366760 | $667,020 | $667,020 | $678.72 | | |
| HUMNSERV | HUMAN SERVICES 119 | 0.0250000000 | $667,020 | $667,020 | $16.68 | | |
| SLDREL | SOLDIERS RELIEF 121 | 0.0155990005 | $667,020 | $667,020 | $10.40 | | |
| EMERGSER | EMS 147 | 0.3792580840 | $667,020 | $667,020 | $252.97 | | |
| EMSRFD | EMS REFUND 147 | 0.0000000000 | $667,020 | $667,020 | $0.00 | | |
| PORTRFD | PORT REFUND 640 | 0.0000000000 | $667,020 | $667,020 | $0.00 | | |
| PORTWWGEN | PORT OF WW 640 | 0.2460186015 | $667,020 | $667,020 | $164.10 | | |
| SD140BOND | SD #140 BOND 764 | 0.8342371393 | $667,020 | $667,020 | $556.45 | | |
| SD140GEN | SD #140 GENERAL 760 | 2.0646500647 | $667,020 | $667,020 | $1,377.16 | | |
| ST2 | STATE SCHOOL PART 2 600 | 0.8131451643 | $667,020 | $667,020 | $542.38 | | |
| STATESCHL | STATE SCHOOL 600 | 1.5158548041 | $667,020 | $667,020 | $1,011.11 | | |
| STREFUND | STATE REFUND LEVY 603 | 0.0000000000 | $667,020 | $667,020 | $0.00 | | |
| CWWBOND | C OF WW BOND 643 | 0.2760494372 | $667,020 | $667,020 | $184.13 | | |
| CWWGEN | CITY OF WW 631 | 1.6100204973 | $667,020 | $667,020 | $1,073.92 | | |
| CWWRFD | CITY OF WALLA WALLA REFUND 631 | 0.0000000000 | $667,020 | $667,020 | $0.00 | | |
| | Total Tax Rate: | 8.7973694689 | | | | | |
| | | | | Taxes w/Current Exemptions: | $5,868.02 | | |
| | | | | Taxes w/o Exemptions: | $5,868.02 | | |
Improvement / Building
| Improvement #1: | RESIDENTIAL | State Code: | 11 | 1670.0 sqft | Value: | $614,820 |
| Exterior Wall: | SIDING | Heating/Cooling: | HEAT PUMP | | Number of Bathrooms: | 3 | Number of Bedrooms: | 3 | | Plumbing: | 15 | Roof Covering: | COMP SHINGLE |
|
| | Type | Description | Class CD | Sub Class CD | Year Built | Area |
| | MA | Main Area | 1 | 50 | 1915 | 1670.0 |
| | SI1 | SITE IMPROVEMENT | 1 | 50 | 1915 | 5.0 |
| | BASE | BASEMENT | 1 | 50 | 1915 | 1476.0 |
| | BPF | BASEMENT -PARTITIONED FINISH | 1 | 50 | 2019 | 1476.0 |
| | S1F | Single One Story Fireplace | 1 | 50 | 1915 | 1.0 |
| | RCD | WOOD DECK W/ROOF, CEILED | 1 | 50 | 1915 | 108.0 |
| | WOD | Wood Deck | 1 | 50 | 2019 | 77.0 |
| | WOD | Wood Deck | 1 | 50 | 2019 | 72.0 |
| | TOOL | TOOL SHED | 1 | 50 | 2019 | 35.0 |
Sketch
Property Image
Land
| 1 | RES 1 | Converted: Residential | 0.1653 | 7200.00 | 0.00 | 0.00 | 1.00 | $52,200 | $0 |
Roll Value History
| 2026 | N/A | N/A | N/A | N/A | N/A |
| 2025 | $594,570 | $79,200 | $0 | $673,770 | $673,770 |
| 2024 | $594,570 | $79,200 | $0 | $673,770 | $673,770 |
| 2023 | $614,820 | $52,200 | $0 | $667,020 | $667,020 |
| 2022 | $614,820 | $52,200 | $0 | $667,020 | $667,020 |
| 2021 | $535,830 | $52,200 | $0 | $588,030 | $588,030 |
| 2020 | $318,680 | $52,200 | $0 | $370,880 | $370,880 |
| 2019 | $173,270 | $52,200 | $0 | $225,470 | $225,470 |
| 2018 | $165,020 | $52,200 | $0 | $217,220 | $217,220 |
| 2017 | $183,420 | $32,400 | $0 | $215,820 | $215,820 |
| 2016 | $183,420 | $32,400 | $0 | $215,820 | $215,820 |
| 2015 | $174,690 | $32,400 | $0 | $207,090 | $207,090 |
| 2014 | $151,900 | $32,400 | $0 | $184,300 | $184,300 |
| 2013 | $151,900 | $32,400 | $0 | $184,300 | $184,300 |
| 2012 | $143,300 | $32,400 | $0 | $0 | $0 |
| 2011 | $143,300 | $32,400 | $0 | $0 | $0 |
| 2010 | $127,300 | $32,400 | $0 | $0 | $0 |
| 2009 | $127,300 | $32,400 | $0 | $0 | $0 |
| 2008 | $127,300 | $32,400 | $0 | $0 | $0 |
| 2007 | $127,300 | $32,400 | $0 | $0 | $0 |
Deed and Sales History
| 1 | 10/10/2018 | SURVEY | SURVEY | | | 13 | 108 | | 0 | 2018-08417 |
| 2 | 05/08/2018 | SWD | STATUTORY WARRANTY DEED | ALBRO THOMAS W & TINA C | GALLAGHER ADAM J & JOANNE S | | | $234,000.00 | 134655 | 2018-03582 |
| 3 | 11/12/2010 | WARRANTY D | WARRANTY DEED | FRUITFUL VENTURES LLC | ALBRO, THOMAS W & TINA C | | | $190,000.00 | 119320 | 2010-09248 |
| 4 | 10/02/2009 | WARRANTY D | WARRANTY DEED | KIMEY, LOIS Y ESTATE OF | FRUITFUL VENTURES LLC | | | $185,000.00 | 117431 | 2009-09884 |
| 5 | 08/05/1971 | WARRANTY D | WARRANTY DEED | | | | | $13,900.00 | 0 | 3415-159000 |
Payout Agreement
| No payout information available.. |