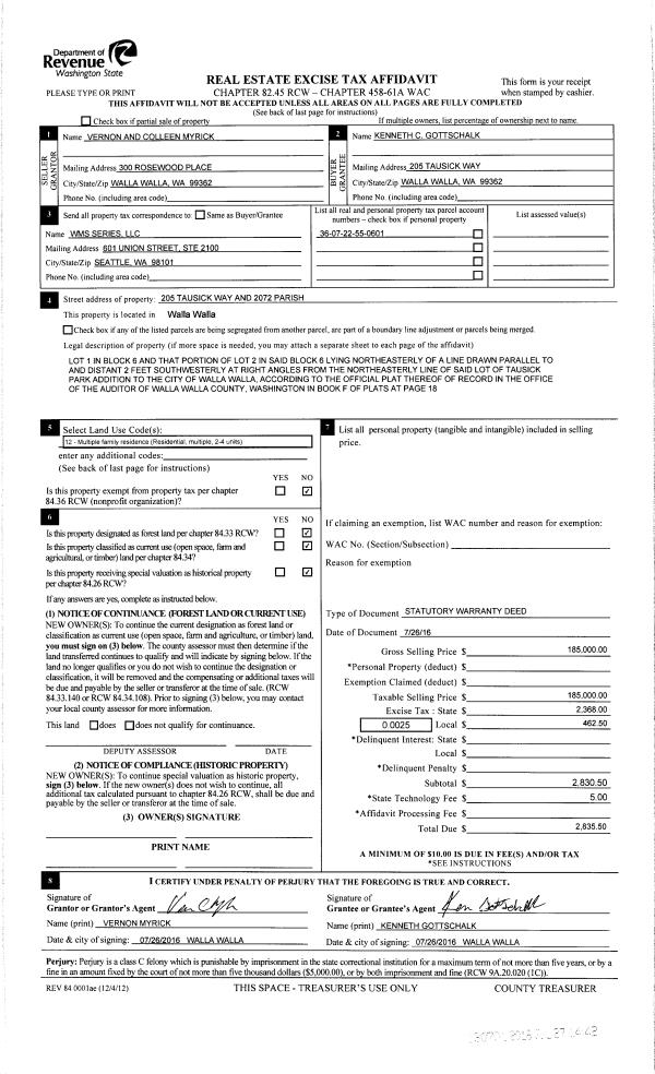
Property
Account |
| Property ID: | 30290 | Abbreviated Legal Description: | TAUSICK PARK LOT 1 BLK 6 ELY 2' OF LOT 2 BLK 6 |
| Parcel Number: | 360722550601 | Agent Code: | |
| Type: | Real | | |
| Tax Area: | 1 - OL-140-F | Land Use Code | 12 |
| Open Space: | N | DFL | N |
| Historic Property: | N | Remodel Property: | N |
| Multi-Family Redevelopment: | N | | |
| Township: | 7 | Section: | 22 |
| Range: | 36 |
Location |
| Address: | 205 S TAUSICK WAY WALLA WALLA, WA 99362 | Mapsco: | |
| Neighborhood: | A Duplex | Map ID: | |
| Neighborhood CD: | 413031 |
Owner |
| Name: | GOTTSCHALK KENNETH C | Owner ID: | 59303 |
| Mailing Address: | 205 TAUSICK WAY WALLA WALLA, WA 99362 | % Ownership: | 100.0000000000% |
| | | Exemptions: | |
Taxes and Assessment Details
Values
| (+) Improvement Homesite Value: | + | $0 | |
| (+) Improvement Non-Homesite Value: | + | $213,180 | |
| (+) Land Homesite Value: | + | $0 | |
| (+) Land Non-Homesite Value: | + | $73,920 | |
| (+) Curr Use (HS): | + | $0 | $0 |
| (+) Curr Use (NHS): | + | $0 | $0 |
| | | -------------------------- | |
| (=) Market Value: | = | $287,100 | |
| (–) Productivity Loss: | – | $0 | |
| | | -------------------------- | |
| (=) Subtotal: | = | $287,100 | |
| (+) Senior Appraised Value: | + | $0 | |
| (+) Non-Senior Appraised Value: | + | $287,100 | |
| | | -------------------------- | |
| (=) Total Appraised Value: | = | $287,100 | |
| (–) Senior Exemption Loss: | – | $0 | |
| (–) Exemption Loss: | – | $0 | |
| | | -------------------------- | |
| (=) Taxable Value: | = | $287,100 | |
Taxing Jurisdiction
| Owner: | GOTTSCHALK KENNETH C | | |
| % Ownership: | 100.0000000000% | | |
| Total Value: | $287,100 | | |
| Tax Area: | 1 - OL-140-F |
| CERFD | CURRENT EXPENSE REFUND 010 | 0.0000000000 | $287,100 | $287,100 | $0.00 | | |
| CURREXP | CURRENT EXPENSE 010 | 1.0175366760 | $287,100 | $287,100 | $292.13 | | |
| HUMNSERV | HUMAN SERVICES 119 | 0.0250000000 | $287,100 | $287,100 | $7.18 | | |
| SLDREL | SOLDIERS RELIEF 121 | 0.0155990005 | $287,100 | $287,100 | $4.48 | | |
| EMERGSER | EMS 147 | 0.3792580840 | $287,100 | $287,100 | $108.88 | | |
| EMSRFD | EMS REFUND 147 | 0.0000000000 | $287,100 | $287,100 | $0.00 | | |
| PORTRFD | PORT REFUND 640 | 0.0000000000 | $287,100 | $287,100 | $0.00 | | |
| PORTWWGEN | PORT OF WW 640 | 0.2460186015 | $287,100 | $287,100 | $70.63 | | |
| SD140BOND | SD #140 BOND 764 | 0.8342371393 | $287,100 | $287,100 | $239.51 | | |
| SD140GEN | SD #140 GENERAL 760 | 2.0646500647 | $287,100 | $287,100 | $592.76 | | |
| ST2 | STATE SCHOOL PART 2 600 | 0.8131451643 | $287,100 | $287,100 | $233.45 | | |
| STATESCHL | STATE SCHOOL 600 | 1.5158548041 | $287,100 | $287,100 | $435.20 | | |
| STREFUND | STATE REFUND LEVY 603 | 0.0000000000 | $287,100 | $287,100 | $0.00 | | |
| CWWBOND | C OF WW BOND 643 | 0.2760494372 | $287,100 | $287,100 | $79.25 | | |
| CWWGEN | CITY OF WW 631 | 1.6100204973 | $287,100 | $287,100 | $462.24 | | |
| CWWRFD | CITY OF WALLA WALLA REFUND 631 | 0.0000000000 | $287,100 | $287,100 | $0.00 | | |
| | Total Tax Rate: | 8.7973694689 | | | | | |
| | | | | Taxes w/Current Exemptions: | $2,525.71 | | |
| | | | | Taxes w/o Exemptions: | $2,525.71 | | |
Improvement / Building
| Improvement #1: | RESIDENTIAL | State Code: | 12 | 1584.0 sqft | Value: | $213,180 |
| Exterior Wall: | PLYWOOD | Heating/Cooling: | WARM & COOLED AIR | | Number of Bathrooms: | 2 | Number of Bedrooms: | 3 | | Plumbing: | 12 | Roof Covering: | COMP SHINGLE |
|
| | Type | Description | Class CD | Sub Class CD | Year Built | Area |
| | MA | Main Area | 1 | 30 | 1967 | 1584.0 |
| | SI1 | SITE IMPROVEMENT | 1 | 30 | 0 | 2.5 |
| | ATG | Attached Garage | 1 | 30 | 1967 | 264.0 |
| | ATG | Attached Garage | 1 | 30 | 1967 | 264.0 |
| | OSP | Open | 1 | 30 | 1967 | 76.0 |
| | OSP | Open | 1 | 30 | 1967 | 76.0 |
Sketch
Property Image
Land
| 1 | RES 1 | Converted: Residential | 0.2121 | 9240.00 | 0.00 | 0.00 | 1.00 | $73,920 | $0 |
Roll Value History
| 2026 | N/A | N/A | N/A | N/A | N/A |
| 2025 | $216,800 | $74,000 | $0 | $290,800 | $290,800 |
| 2024 | $216,800 | $74,000 | $0 | $290,800 | $290,800 |
| 2023 | $213,180 | $73,920 | $0 | $287,100 | $287,100 |
| 2022 | $226,090 | $48,510 | $0 | $274,600 | $274,600 |
| 2021 | $150,730 | $48,510 | $0 | $199,240 | $199,240 |
| 2020 | $120,580 | $48,510 | $0 | $169,090 | $169,090 |
| 2019 | $120,580 | $48,510 | $0 | $169,090 | $169,090 |
| 2018 | $100,490 | $48,510 | $0 | $149,000 | $149,000 |
| 2017 | $100,490 | $48,510 | $0 | $149,000 | $149,000 |
| 2016 | $100,490 | $37,000 | $0 | $137,490 | $137,490 |
| 2015 | $100,490 | $37,000 | $0 | $137,490 | $137,490 |
| 2014 | $95,700 | $37,000 | $0 | $132,700 | $132,700 |
| 2013 | $95,700 | $37,000 | $0 | $132,700 | $132,700 |
| 2012 | $95,700 | $37,000 | $0 | $0 | $0 |
| 2011 | $102,900 | $37,000 | $0 | $0 | $0 |
| 2010 | $102,900 | $37,000 | $0 | $0 | $0 |
| 2009 | $102,900 | $37,000 | $0 | $0 | $0 |
| 2008 | $90,200 | $37,000 | $0 | $0 | $0 |
| 2007 | $90,200 | $37,000 | $0 | $0 | $0 |
Deed and Sales History
| 1 | 07/27/2016 | SWD | STATUTORY WARRANTY DEED | MYRICK VERNON C & COLLEEN P | GOTTSCHALK KENNETH C | | | $185,000.00 | 130701 | 20106-05882 |
| 2 | 04/30/1998 | WARRANTY D | WARRANTY DEED | | | | | $90,000.00 | 90321 | 2669-804743 |
Payout Agreement
| No payout information available.. |