Property
Account |
| Property ID: | 30235 | Abbreviated Legal Description: | SEC 24 TWN 7 RNG 33 SW1/4 |
| Parcel Number: | 330724310003 | Agent Code: | |
| Type: | Real | | |
| Tax Area: | 316 - 300-6 | Land Use Code | 83 |
| Open Space: | Y | DFL | N |
| Historic Property: | N | Remodel Property: | N |
| Multi-Family Redevelopment: | N | | |
| Township: | 7 | Section: | 24 |
| Range: | 33 |
Location |
| Address: | WA 99360 | Mapsco: | |
| Neighborhood: | 0 Farm | Map ID: | |
| Neighborhood CD: | 2220 |
Owner |
| Name: | BAUMANN BENJAMIN K | Owner ID: | 49218 |
| Mailing Address: | 1277 WOODWARD CANYON RD TOUCHET, WA 99360 | % Ownership: | 100.0000000000% |
| | | Exemptions: | |
Taxes and Assessment Details
Values
| (+) Improvement Homesite Value: | + | $0 | |
| (+) Improvement Non-Homesite Value: | + | $0 | |
| (+) Land Homesite Value: | + | $0 | |
| (+) Land Non-Homesite Value: | + | $0 | |
| (+) Curr Use (HS): | + | $0 | $0 |
| (+) Curr Use (NHS): | + | $762,000 | $152,340 |
| | | -------------------------- | |
| (=) Market Value: | = | $762,000 | |
| (–) Productivity Loss: | – | $609,660 | |
| | | -------------------------- | |
| (=) Subtotal: | = | $152,340 | |
| (+) Senior Appraised Value: | + | $0 | |
| (+) Non-Senior Appraised Value: | + | $152,340 | |
| | | -------------------------- | |
| (=) Total Appraised Value: | = | $152,340 | |
| (–) Senior Exemption Loss: | – | $0 | |
| (–) Exemption Loss: | – | $0 | |
| | | -------------------------- | |
| (=) Taxable Value: | = | $152,340 | |
Taxing Jurisdiction
| Owner: | BAUMANN BENJAMIN K | | |
| % Ownership: | 100.0000000000% | | |
| Total Value: | $762,000 | | |
| Tax Area: | 316 - 300-6 |
| CERFD | CURRENT EXPENSE REFUND 010 | 0.0000000000 | $152,340 | $152,340 | $0.00 | | |
| CURREXP | CURRENT EXPENSE 010 | 0.9851088983 | $152,340 | $152,340 | $150.07 | | |
| HUMNSERV | HUMAN SERVICES 119 | 0.0250000000 | $152,340 | $152,340 | $3.81 | | |
| SLDREL | SOLDIERS RELIEF 121 | 0.0155990000 | $152,340 | $152,340 | $2.38 | | |
| EMERGSER | EMS 147 | 0.3676811629 | $152,340 | $152,340 | $56.01 | | |
| EMSRFD | EMS REFUND 147 | 0.0000000000 | $152,340 | $152,340 | $0.00 | | |
| FD6EXP | FD #6 EXPENSE 693 | 0.6637564225 | $152,340 | $152,340 | $101.12 | | |
| RLBRFD | RURAL LIBRARY REFUND 623 | 0.0000000000 | $152,340 | $152,340 | $0.00 | | |
| RURALLIB | RURAL LIBRARY 623 | 0.3601547782 | $152,340 | $152,340 | $54.87 | | |
| PORTRFD | PORT REFUND 640 | 0.0000000000 | $152,340 | $152,340 | $0.00 | | |
| PORTWWGEN | PORT OF WW 640 | 0.2344301070 | $152,340 | $152,340 | $35.71 | | |
| SD300BOND | SD #300 BOND 783 | 1.9432820025 | $152,340 | $152,340 | $296.04 | | |
| SD300GEN | SD #300 GENERAL 780 | 2.2641297109 | $152,340 | $152,340 | $344.92 | | |
| ST2 | STATE SCHOOL PART 2 600 | 0.8853714103 | $152,340 | $152,340 | $134.88 | | |
| STATESCHL | STATE SCHOOL 600 | 1.6424571473 | $152,340 | $152,340 | $250.21 | | |
| STREFUND | STATE REFUND LEVY 603 | 0.0000000000 | $152,340 | $152,340 | $0.00 | | |
| COROAD | COUNTY ROAD 115 | 1.6137667997 | $152,340 | $152,340 | $245.84 | | |
| CRPRD | COUNTY ROAD REFUND 115 | 0.0000000000 | $152,340 | $152,340 | $0.00 | | |
| | Total Tax Rate: | 11.0007374396 | | | | | |
| | | | | Taxes w/Current Exemptions: | $1,675.86 | | |
| | | | | Taxes w/o Exemptions: | $1,675.86 | | |
Improvement / Building
Sketch
| No sketches available for this property. |
Property Image
Land
| 1 | C4-I | Class 4 Irrigated | 54.0000 | 0.00 | 0.00 | 0.00 | 1.00 | $221,400 | $46,980 |
| 2 | C3-I | Class 3 Irrigated | 106.0000 | 0.00 | 0.00 | 0.00 | 1.00 | $540,600 | $105,360 |
Roll Value History
| 2026 | N/A | N/A | N/A | N/A | N/A |
| 2025 | $0 | $762,000 | $152,340 | $152,340 | $152,340 |
| 2024 | $0 | $730,000 | $155,220 | $155,220 | $155,220 |
| 2023 | $0 | $703,400 | $154,480 | $154,480 | $154,480 |
| 2022 | $0 | $639,400 | $148,980 | $148,980 | $148,980 |
| 2021 | $0 | $596,800 | $151,870 | $151,870 | $151,870 |
| 2020 | $0 | $490,400 | $155,060 | $155,060 | $155,060 |
| 2019 | $0 | $453,200 | $159,860 | $159,860 | $159,860 |
| 2018 | $0 | $437,200 | $162,900 | $162,900 | $162,900 |
| 2017 | $0 | $437,200 | $168,070 | $168,070 | $168,070 |
| 2016 | $0 | $437,200 | $168,710 | $168,710 | $168,710 |
| 2015 | $0 | $373,200 | $153,680 | $153,680 | $153,680 |
| 2014 | $0 | $373,200 | $153,680 | $153,680 | $153,680 |
| 2013 | $0 | $357,200 | $131,800 | $131,800 | $131,800 |
| 2012 | $0 | $105,000 | $0 | $0 | $0 |
| 2011 | $0 | $100,900 | $0 | $0 | $0 |
| 2010 | $0 | $103,900 | $0 | $0 | $0 |
| 2009 | $0 | $104,500 | $0 | $0 | $0 |
| 2008 | $0 | $131,900 | $0 | $0 | $0 |
| 2007 | $0 | $131,900 | $0 | $0 | $0 |
Deed and Sales History
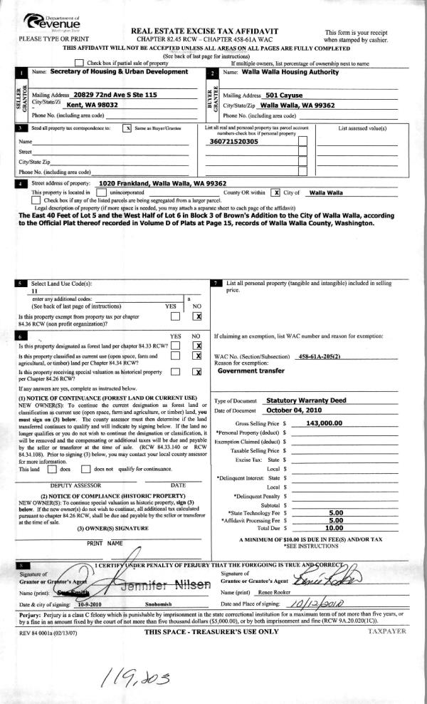
| 1 | 10/18/2010 | WARRANTY D | WARRANTY DEED | CARSON & COLE LLC | BAUMANN BENJAMIN K | | | $1,600,000.00 | 119204 | 2010-08396 |
|   | |
| 2 | 11/23/2005 | WARRANTY D | WARRANTY DEED | BAUMANN ROBERT A | CARSON & COLE LLC | | | $596,000.00 | 109110 | 2005-14810 |
|   | |
| 3 | 08/31/2005 | QCD | QUIT CLAIM DEED | TAGGART, MURRAY RESIDUARY CRED | BAUMANN, ROBERT A INDIVIDUALLY | | | | 108381 | 2005-10829 |
| 4 | 06/29/1989 | WARRANTY D | WARRANTY DEED | | | | | | 0 | 1778-904007 |
Payout Agreement
| No payout information available.. |