Property
Account |
| Property ID: | 30229 | Abbreviated Legal Description: | LANGFORDS (SURVEY 2023-03271) PORTION LOT 14; PLUS PORTION LOT 15 BLK 28; PLUS PORTION VACA ROW |
| Parcel Number: | 360719592815 | Agent Code: | |
| Type: | Real | | |
| Tax Area: | 1 - OL-140-F | Land Use Code | 91 |
| Open Space: | N | DFL | N |
| Historic Property: | N | Remodel Property: | N |
| Multi-Family Redevelopment: | N | | |
| Township: | 7 | Section: | 19 |
| Range: | 36 |
Location |
| Address: | WA 99362 | Mapsco: | |
| Neighborhood: | COMMERCIAL | Map ID: | |
| Neighborhood CD: | 3302 |
Owner |
| Name: | EATON ANDREW | Owner ID: | 11617 |
| Mailing Address: | 708 W PINE ST WALLA WALLA, WA 99362 | % Ownership: | 100.0000000000% |
| | | Exemptions: | |
Taxes and Assessment Details
Property Tax Information as of
02/21/2026
Click on "Statement Details" to expand or collapse a tax statement.
* Please enter a valid date ** Please enter a valid date *
Statement Details |
| | TOTAL: | $0.00 | $0.00 | $0.00 | $0.00 | $0.00 | $0.00 |
|
| | $0.00 | $0.00 | $0.00 | $0.00 | $0.00 | $0.00 |
Values
| (+) Improvement Homesite Value: | + | $0 | |
| (+) Improvement Non-Homesite Value: | + | $0 | |
| (+) Land Homesite Value: | + | $0 | |
| (+) Land Non-Homesite Value: | + | $57,000 | |
| (+) Curr Use (HS): | + | $0 | $0 |
| (+) Curr Use (NHS): | + | $0 | $0 |
| | | -------------------------- | |
| (=) Market Value: | = | $57,000 | |
| (–) Productivity Loss: | – | $0 | |
| | | -------------------------- | |
| (=) Subtotal: | = | $57,000 | |
| (+) Senior Appraised Value: | + | $0 | |
| (+) Non-Senior Appraised Value: | + | $57,000 | |
| | | -------------------------- | |
| (=) Total Appraised Value: | = | $57,000 | |
| (–) Senior Exemption Loss: | – | $0 | |
| (–) Exemption Loss: | – | $0 | |
| | | -------------------------- | |
| (=) Taxable Value: | = | $57,000 | |
Taxing Jurisdiction
| Owner: | EATON ANDREW | | |
| % Ownership: | 100.0000000000% | | |
| Total Value: | $57,000 | | |
| Tax Area: | 1 - OL-140-F |
| CERFD | CURRENT EXPENSE REFUND 010 | 0.0000000000 | $57,000 | $57,000 | $0.00 | | |
| CURREXP | CURRENT EXPENSE 010 | 1.0175366760 | $57,000 | $57,000 | $58.00 | | |
| HUMNSERV | HUMAN SERVICES 119 | 0.0250000000 | $57,000 | $57,000 | $1.43 | | |
| SLDREL | SOLDIERS RELIEF 121 | 0.0155990005 | $57,000 | $57,000 | $0.89 | | |
| EMERGSER | EMS 147 | 0.3792580840 | $57,000 | $57,000 | $21.62 | | |
| EMSRFD | EMS REFUND 147 | 0.0000000000 | $57,000 | $57,000 | $0.00 | | |
| PORTRFD | PORT REFUND 640 | 0.0000000000 | $57,000 | $57,000 | $0.00 | | |
| PORTWWGEN | PORT OF WW 640 | 0.2460186015 | $57,000 | $57,000 | $14.02 | | |
| SD140BOND | SD #140 BOND 764 | 0.8342371393 | $57,000 | $57,000 | $47.55 | | |
| SD140GEN | SD #140 GENERAL 760 | 2.0646500647 | $57,000 | $57,000 | $117.69 | | |
| ST2 | STATE SCHOOL PART 2 600 | 0.8131451643 | $57,000 | $57,000 | $46.35 | | |
| STATESCHL | STATE SCHOOL 600 | 1.5158548041 | $57,000 | $57,000 | $86.40 | | |
| STREFUND | STATE REFUND LEVY 603 | 0.0000000000 | $57,000 | $57,000 | $0.00 | | |
| CWWBOND | C OF WW BOND 643 | 0.2760494372 | $57,000 | $57,000 | $15.73 | | |
| CWWGEN | CITY OF WW 631 | 1.6100204973 | $57,000 | $57,000 | $91.77 | | |
| CWWRFD | CITY OF WALLA WALLA REFUND 631 | 0.0000000000 | $57,000 | $57,000 | $0.00 | | |
| | Total Tax Rate: | 8.7973694689 | | | | | |
| | | | | Taxes w/Current Exemptions: | $501.45 | | |
| | | | | Taxes w/o Exemptions: | $501.45 | | |
Improvement / Building
Sketch
| No sketches available for this property. |
Property Image
Land
| 1 | RES 1 | Converted: Residential | 0.2106 | 9175.00 | 0.00 | 0.00 | 1.00 | $57,000 | $0 |
Roll Value History
| 2026 | N/A | N/A | N/A | N/A | N/A |
| 2025 | $0 | $55,050 | $0 | $55,050 | $55,050 |
| 2024 | $0 | $55,050 | $0 | $55,050 | $55,050 |
| 2023 | $0 | $57,000 | $0 | $57,000 | $57,000 |
| 2022 | $0 | $57,000 | $0 | $57,000 | $57,000 |
| 2021 | $0 | $47,500 | $0 | $47,500 | $47,500 |
| 2020 | $0 | $47,500 | $0 | $47,500 | $47,500 |
| 2019 | $0 | $47,500 | $0 | $47,500 | $47,500 |
| 2018 | $0 | $47,500 | $0 | $47,500 | $0 |
| 2017 | $0 | $47,500 | $0 | $47,500 | $0 |
| 2016 | $0 | $47,500 | $0 | $47,500 | $0 |
| 2015 | $0 | $47,500 | $0 | $47,500 | $0 |
| 2014 | $0 | $47,500 | $0 | $47,500 | $47,500 |
| 2013 | $0 | $47,500 | $0 | $47,500 | $47,500 |
| 2012 | $0 | $47,500 | $0 | $0 | $0 |
| 2011 | $0 | $7,100 | $0 | $0 | $0 |
| 2010 | $0 | $7,100 | $0 | $0 | $0 |
| 2009 | $0 | $7,100 | $0 | $0 | $0 |
| 2008 | $0 | $7,100 | $0 | $0 | $0 |
| 2007 | $0 | $7,100 | $0 | $0 | $0 |
Deed and Sales History
| 1 | 06/14/2023 | SURVEY | SURVEY | | | 14 | 114 | | 0 | 2023-03271 |
| 2 | 12/16/2019 | SWD | STATUTORY WARRANTY DEED | PINE STREET WW LLC | EATON ANDREW | | 2-PARCELS | $165,000.00 | 138257 | 2019-10412 |
|   | |
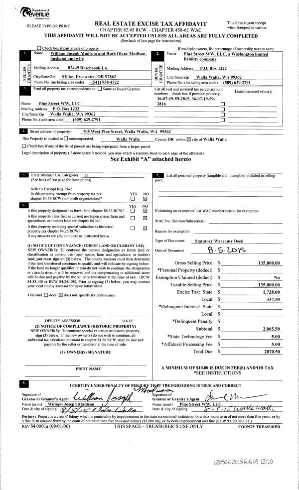
| 3 | 08/05/2015 | SWD | STATUTORY WARRANTY DEED | MADISON WILLIAM JOSEPH & RUTH DIANE | PINE STREET WW LLC | | 2-PARCELS | $135,000.00 | 128544 | 2015-06763 |
|   | |
| 4 | 10/08/2010 | WARRANTY D | WARRANTY DEED | BUTLER, JUDY ARLENE | MADISON WILLIAM JOSEPH & RUTH DIANE | | | $135,000.00 | 119150 | 2010-08073 |
|   | |
| 5 | 11/18/2005 | WARRANTY D | WARRANTY DEED | "HARDING, JOHN L" | | | | | 109072 | 2005-14584 |
| 6 | 03/21/1991 | WARRANTY D | WARRANTY DEED | | | | | | 0 | 1889-101665 |
Payout Agreement
| No payout information available.. |